五島列島富江町で『住人の暮らしと来島者の想いをつなぐ場』をつくりたい!

五島列島富江町にある築140年の元商店だった古民家を、地域の方々の作品や商品を販売する手づくり市場とし、お茶やコーヒーを飲みながら人々の集まる場所へと改修するプロジェクトです。

現在の支援総額

1,133,000

113%

目標金額は1,000,000円

支援者数

117

募集終了まで残り

終了

このプロジェクトは、2016/08/30に募集を開始し、 117人の支援により 1,133,000円の資金を集め、 2016/11/13に募集を終了しました

五島列島富江町で『住人の暮らしと来島者の想いをつなぐ場』をつくりたい!

現在の支援総額

1,133,000

113%達成

終了

目標金額1,000,000

支援者数117

このプロジェクトは、2016/08/30に募集を開始し、 117人の支援により 1,133,000円の資金を集め、 2016/11/13に募集を終了しました

五島列島富江町にある築140年の元商店だった古民家を、地域の方々の作品や商品を販売する手づくり市場とし、お茶やコーヒーを飲みながら人々の集まる場所へと改修するプロジェクトです。

このプロジェクトを見た人はこちらもチェックしています

【富江の笑顔PR MOVIE】 

こんにちは!

te to baプロジェクト代表の村野麻梨絵です。

地域おこし協力隊として五島市に来て1年半になります。

 

私が現在住んでいるのは五島列島の中で、一番大きな島『福江島』です。

そしてその福江島の★がついているの、動画でご紹介しているこのプロジェクトを行う富江町です。

 

 

両親の出身地である五島市。幼いころから何度も訪れていた為、親戚や知り合いも多いということもありますが、あたたかい島の人たちに支えられながら様々な活動をさせてもらっています。

 

 

■富江町について■

 

【防波堤でイカ釣りをする人たち】

 

このページをご覧になっている方の中には、五島はもちろんte to baプロジェクトが取り組まれている富江がどんな町かご存じない方もたくさんいらっしゃるかと思います。

  

五島市富江町は漁業が盛んな町で人口は、福江島の中では第2位。

人々が行き交う商店街や、幼稚園、学校、そして病院などが揃い非常に住みやすい町です。

とはいっても、人口は減り商店街でもシャッターが目立つようになってきました。

それでも地元の人たちは元気。どうにか以前の活気を取り戻そうと協力し合っています。

観光で訪れる方の数は、他の地区と比べると少ない富江町ですが、人のあたたかさや、古い町並みを見ていると目立った観光地がなくても十分訪れる人を満足させることのできる町だと感じます。

そんな富江の人や町の良さを全国の人たちに知ってもらいたいとte to baプロジェクトチームは考え、PR動画を作成しました。(ページトップの動画)

 

富江の良さを全世界に発信したいという想いを笑いながらも受け止め、出演してくださった皆さんの笑顔を見れば、富江の町がどんなところか少しでも伝わるのではないかと思います。

 

最後のお祭りシーンでは、フラッシュモブという大掛かりなドッキリもさせてもらい、

地元の方々と何ヶ月も前から準備を進めさせてもらいました。

 

そして伝統的なお祭りの中でもte to baのプロジェクトをご紹介させていただき、

このプロジェクトに対する期待と責任をますます感じることができました。

 

◆動画URL◆

 https://www.youtube.com/watch?v=9p_lzxUxCnc

 

 

■ハンドメイドマーケット開催■

地域おこし協力隊として活動していく中で、いろいろな活動をしています。

その中のひとつ、住人の方々の生きがい作りになるようなイベントとして、「ハンドメイドマーケット」というイベントを開催しました。

 

 

 

開催するにあたり、手づくりの作品を作っている方々に声をかけ、40名近くの作家さんが集まりました。

 

そしてイベント当日には、2日間で600人以上の方が訪れ、150万円以上の売上げへと繋がりました。売上げはすべて販売者さんへ還元し、皆さんの夢の実現への一歩にしてもらっています。

 

 

 

すでに第2回も10月に控えており出展者の数も増えています。

 

このイベントをきっかけに五島市内には、たくさんのアーティストがいて、販売するキッカケさえあればいろいろな交流が生まれ、それぞれの夢の実現への一歩になると確信することができました。

 

■増えていく空き家を活用したい■

1回目のハンドメイドマーケットを計画していたころから五島にたくさんある空き家をどうにか活用できないかと考え始めました。

 

一人の力ではなかなか難しいと思っていましたが、縁があって長崎大学の西村ゼミの皆さんと一緒に取り組んでいくことに。

 

 【はじめて五島に訪れたte to baプロジェクトチームの長崎大学生】

 

そして間もなく物件も決まりました。

 

【なんと築140年以上】

 

te to baの物件は、もともとわたし、村野の親戚の家でしたが誰も住んでおらず家主も帰ってこないということで、貸していただくことができました。

 

目の前には、公園があり2Fからは海を見渡すことが出来ます。商店街の駐車場からも徒歩30秒で、商店街からは1分もかからない場所にあるため、町へお買い物に来たついでに、一休みになどに立ち寄ってもらえそうです。

 

こうしてte to baプロジェクトは、始まりました。

 

大盛況だったハンドメイドマーケットを常時開催できるようなスペースを持ちつつ、地元の方が立ち寄れるよう、コーヒーやお茶の出せる小さなカフェを目指していきます。

 

 

 【入った当初の台所には植物が入り込んでいました。】

 

■まずは片付けから■

出来ることは自分たちで行い、なるべくお金をかけずに改修をしていきたいと考えています。まずは、家財を整理するところから。

 

ご近所の方など、地元の方々の応援を受けながらみんなで大掃除をしました。

 

【不要な畳や、家財を運び出します】

 

【地元の方々と一緒に草木が生茂った敷地を綺麗に】

 

 

【とりあえずひと段落のところで写真撮影】

 

 

不要なものがなくなった家は、とても広々とした空間に生まれ変わりました。

 

【ふすまや畳を取り外した内観】

 

【草木が生茂っていた台所】

 

■これからのte to ba■ 

 いよいよ綺麗になったところで具体的な内装のデザインなどを詰めています。

 

 

 

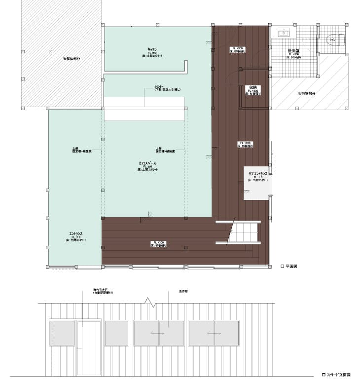
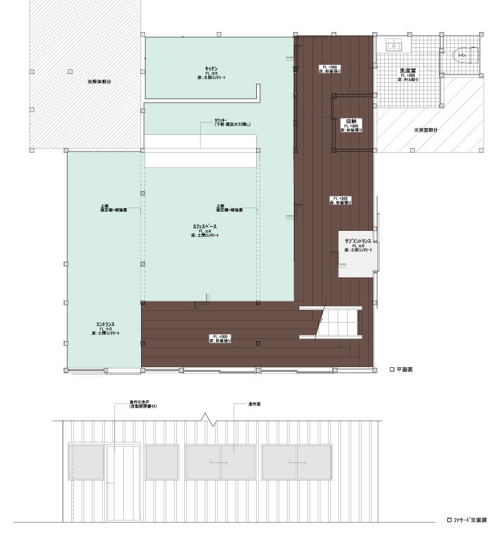
【完成予定平面図】

 

痛みの激しいところは、解体をしますが、基本的には元の古民家を活かしていきます。特に柱や梁などはとてもいい味を出しているので そのまま使用しますが、床下は大きく土間にする予定です。

 

壁を増やしたりカウンター等を設置することで強度を強化します。

 

土間のスペースなどには、作品の展示スペースなどを設けます。

作品はもともとあったガラス戸のガラスを解体し、棚にリメイクします。

 

 【外観完成予定イメージ】

 

概観に大きな変化はありませんが、窓を大きくしたり、2Fの雨戸をしまう戸袋を全体の雰囲気に合わせた廃材でカバーをしようと考えています。

 

 

 

メインで取り扱うこととなる作家さんの作品たちは、2週間に1度のタイミングで入れ替わる予定です。コーヒーを飲みながら作品を見るのもよし、商店街で購入した食品をそこで食べるのもよし。いずれはカフェとして軽食や郷土料理などを提供できる場を目指しています。

 

しかし、現在の間取りのままだと台所は狭く、カフェスペースにするには設備も不足しています。

 

自分たちでできることは行っていきますが、やはり水周り関係等はプロの力をお借りしなければなりません。

 

そこで、不足している費用をクラウドファンディングにてご支援を募りたいと考えています。

目標金額に達成しなかった場合でも自主財源などをやりくりしつつどうにかオープンをさせようと思いますが、できることは大きく限られてしまいます。

 

予算内訳については次の通りです。

 

●目標金額:100万円

・台所解体

・水周り改修

・コンクリートや漆喰などの材料

・クラウドファンディング返礼

 

 

本来であれば2F部分や、お手洗いなどにも大幅な改修が必要ですが、まずは最低限1Fから着手していこうと思っています。

 

■リターン品について■

五島に来たことが無い方にも少しでも五島の良さを感じてもらおうと、さまざまなリターンをご用意しています。

ご協力いただく金額により、リターンの内容が異なりますので、お返し品の説明をご確認ください。

 

【te to baオリジナル商品】

 

五島の素敵な風景を紹介するためのポストカードや、te to baのロゴステッカー、そしてte to baの象徴的な場所だった草が生茂る台所をモチーフにしたTシャツとトートバッグをお作りしました。

 

Tシャツは、レディースS~L,メンズS~XLのサイズがお選びいただけます。

しっかりとした生地で、シンプルなデザインなのでさらっと普段使いにもお勧めです。

トートバッグもしっかりと厚みがあります。

 

 

【浜口水産 かまぼこの詰め合わせ】

 

 浜口水産で人気の高い商品をセットにしています。

浜口水産の看板商品である、ばらもん揚げから、無でん粉で仕上げた極上の歯ごたえに、昆布のとろみと素材の旨味を絶妙に活かし、手造りで仕上げた浜口水産渾身の昆布巻蒲鉾や、新鮮なすり身でゆで卵をまるごと包んだ揚げ蒲鉾など、ご協力頂いた金額により内容は異なりますが、どれも昔ながらの手づくりで、魚本来の味を十分に引き出した練り物です。

魚の種類によって違った旨味や歯ごたえをお楽しみください。

 

 

 

 

 

【川元さんのかんころ餅・ゆず胡椒・安納いものジャム】

 

 手作業にこだわる川元さんのかんころ餅とゆず胡椒、そして安納いものジャム。

甘さを控えたかんころ餅は、トースターで焼くと香ばしい香りと共にお召し上がれます。

 

赤いゆず胡椒は、しっかりとした辛さの中にも、ゆずの風味を感じることが出来、いつものお料理についつい足してしまいたくなります。

 

安納いものジャムは、甘くて濃厚な安納いもをペースト状にし、グラニュー糖と混ぜ合わせた川元さんお勧めの一品。食パンにつけて食べると、豪華な朝食になります!

 

 

 

【はまなすのかんころ餅・手づくり無添加味噌】

 

五島産の材料にこだわり、添加物が一切入っていない無添加の商品。

もちもちとしたかんころ餅と、手づくり味噌をご用意しております。

 

まきで炊いた新米のもち米と五島産の芋を干し、湯がいたものを使用したかんころ餅は絶品。一度食べたら忘れられない味です。

手づくり味噌は、九州ならではの麦味噌で、酢味噌を作りきゅうりを食べたら絶品!もちろん、お味噌汁にも。

 

 

 

【五島ライブカンパニーの海産加工物詰め合わせ】

 

五島といえば、きびなごというぐらい有名な名産品のひとつ、きびなごの一夜干しとみりん干し。

そしてやわらかくて味のあるスルメイカの一夜干し、食べやすい太刀魚のみりん干しのセットです。

 

キビナゴの一夜干しは、五島灘で獲れた活きのいいきびなごをその日のうちに加工しています。軽く炙るだけで美味しく召し上がれます。

みりん干しは魚醤油を使用し、ほんのり甘く風味豊な味わいです。

 

五島灘で水揚げされた新鮮なスルメイカの一夜干しは、軽く炙って食べればお酒のおつまみとして最適。

 

太刀魚のみりん干しは、小骨も取り除き食べやすく仕上げているのでお子様にもお勧め。もちろんお酒のおつまみにも。

 

どれも新鮮な五島灘で水揚げされた水産物の加工品です。

五島の海の幸を存分にお楽しみください。

 

【3万円のリターン】

 

たくさんのリターンを集めています。

五島にまだ来たことがない人も、行った気持ちになれる、行ってみたくなるようなリターンです。

 

 

 

■少しづつ変化する町並み■

 te to baから徒歩3分のところに、つい先日オープンしたばかりの図書館「さんごさん」があります。

こちらも実は、クラウドファンディングをしながら古民家を改修し、オープンした図書館。

誰かの「人生のベスト3の本」に出会える図書館です。

te to baよりも一足先にオープンされた先輩古民家ですが、すでに地元の方々のコミュニティーの場として活用される場となっています。

 

島内ではこういった取り組みが徐々に広がっています。

ひとつの動きがたとえ小さくても、いろいろなところで動きが広がれば、次第に大きなムーブメントになっていき、町の中の人の流れも変わってくるのではないかと思います。

 

 

■銀行振込・手続きに関してのお知らせ■ 

 銀行振込での支援をご希望される方は、下記アドレスまでメールにてご連絡ください。

担当者より、折り返し手順についてご案内させていただきます。 

 

※ご連絡頂く際は、"te to baについて"と件名に記載をお願い致します。

 

▼メールアドレス 

★mail【te.to.ba.in.goto@gmail.com】 

 

 

ご支援を検討してくださる皆さまへ

 

 

「支援したいけど、どうすればいいの?」

「どういう手順で支援すればいいの?」

 

プロジェクトへのご支援のステップをご紹介いたします。

(↓下記、リンク先をご参照ください)

 

 

◆まずはFAAVOで会員登録を!

※上記リンク先の下の方へ進み、メールアドレス等を記入すると会員登録ができます。

 

◆支援の手順をご案内いたします!

 

 

その他、支援のことでわからないことがあれば、

 

 

「当プロジェクト起案者(te.to.ba.in.goto@gmail.com)」

または

「FAAVO長崎運営事務局」までご連絡ください!

 

 

 

■今後のスケジュール■

 床下を土間にし、より多くの方が立ち寄れる場所へと改修するため、まずは床をはがすなど、自分たちでできる作業を行います。

 

その後、クラウドファンディング終了後に大工さん等による工事を開始し、

壁塗のワークショップなどを開催しながら、来年春ごろまでに試運転ができるようにと考えています。

 

そしてハンドメイドマーケットが開催できるよう出展者さんを募ります。

ハンドメイドマーケットだけでなく、地域の方のイベントや、郷土料理作り体験、アクセサリー作り体験などさまざまな体験のできるスペースとしても活用していく予定です。

 

 

 まだまだ始まったばかりのプロジェクトですが、すでにたくさんの富江町のみなさんにご協力頂いて、ここまでやってきました。

両親が生まれ育った富江町は私にとってもふるさとのような町です。

 

長崎大学の学生5人にとっても、あたたかい町の人たちと触れ合ううちに第2のふるさとのような町になりつつあります。

 

そんなあたたかい富江の方々のためになるような場、いずれは五島市のみなさんが寄り合う場、そして観光客までもが訪れる場になればと思っています。

 

ご協力をよろしくお願い致します。

 

 

 

【富江町の多郎島公園】

 

 

支援に関するよくある質問

ヘルプページを見る

このプロジェクトの問題報告はこちらよりお問い合わせください

最新の活動報告

もっと見る
  • 8月末から始めたクラウドファンディングも 残り2日となりました。   皆様のおかげで 無事に目標金額の100万円達成いたしました!!   本当に本当にありがとうございます。   今までなんども、達成しなかったら・・・と不安になりました。   その度にいろいろな方に応援の言葉をかけていただきました。   地元の方々からの期待の言葉もいただいております。   皆様からいただいたご支援を元にこれから私たちは、 まずは地元に愛される場を目指し、作り上げていきます。     これからが本当の勝負となります。   今後もぜひ応援よろしくお願いいたします!     また、クラウドファンディングも13日23時59分が締め切りとなっているので 、そちらも最後まで応援よろしくお願いいたします。       写真は、地元へ聞き取り調査に来てくれた長崎大学の皆さん。       今日は先進地視察として玉ノ浦の古民家に行ってきました。   すごくたくさん勉強させてもらいました!今後に活かしていこうと思います。     もっと見る
  • こんにちは。   少し寒くなってきましたね。   気づけば今日はハロウィーン。もう明日から11月です。 つまり。。。クラウドファンディング終了まで、2週間をきりました!   現在、96%で、達成間近となりました!   本当にありがとうございます。あと少しどうぞよろしくお願いいたします。     そして、長崎大学のT君からまた新たなPR動画が届きました。   https://www.youtube.com/watch?v=QCj6JMQF7fU   五島・長崎のあるあるネタで懐かしさを感じることができると思います。どうぞご覧ください。   また今回もアンケートを実施しています。   下記、T君からのコメントです。 どうぞよろしくお願いいたします!   ーーーーー この動画に関するアンケートを実施しています。 アンケート結果は長崎大学経済学部の卒業研究に使用させていただきます。 前回ご協力いただいた方も、お手数ですがご協力いただけると幸いです。 30秒ほどで終わりますので、 もしよろしければ、ご協力をお願いします。 https://goo.gl/forms/lIHHJH7Oa40byF7A3 今回3回目で最後のアンケートになります。 これまで動画を視聴していただき、またアンケートにご協力いただき、ありがとうございました。       もっと見る
  • こんにちは   朝のラジオをお聞きになってくださった方、有難うございました。   緊張しましたがとても良い経験のをさせて頂きました   さて、今日は長崎大学の学生さんが作ってくださった PR動画のご紹介です。   すでに2つ作ってくれているのですがそれぞれにアンケートがありますので 宜しかったらご協力くださいませ。30秒もかかりません。     te to baって・・・何? という疑問に対し、簡潔な動画にまとめてくれているver.01   【URL】 https://youtu.be/p0ai_6qR-oY   ⇒アンケート https://goo.gl/forms/RQfuWQd4OcqbqTcr1     te to baがオープンした後のCMになりそうな、ver.02   【URL】 https://youtu.be/RGyNz8Bpn4U   ⇒アンケート https://goo.gl/forms/RQfuWQd4OcqbqTcr1     それぞれとても簡潔にまとめてくれていますので ぜひぜひご覧くださいませ。     よろしくお願い致します。         もっと見る

同じカテゴリーの人気プロジェクト

あなたにおすすめのプロジェクト

新しいアイデアや挑戦を、アプリで見つけるcampfireにアプリが登場しました!
App Storeからダウンロード Google Playで手に入れよう
スマートフォンでQRコードを読み取って、アプリをダウンロード!