はじめに・ご挨拶

昭和26年に祖父が開業し、私で四代目になります浅野裕美45歳です。
2019年12月に社長に就任し、翌年3月に新型コロナウィルス感染症で経営に大打撃を受けました。
ですが、入浴部門だけは売上が変わらず、何故だろう?と、お客様に古戦場のお風呂の良さを聞いたところ
「サウナが熱いのがいいんだよ」と言われた事がきっかけでサウナに目を向けるようになりました。
当初全くサウナに興味がなくむしろただの灼熱地獄と思っていたサウナに、サウナのドラマを一気見して勉強し、今はドはまりしています。
社長に就任して一番の応援者はお客様でした。
そんなお客様達に恩返しをしたいとの思いで今回の外気浴拡張を決めました。
このプロジェクトで実現したいこと
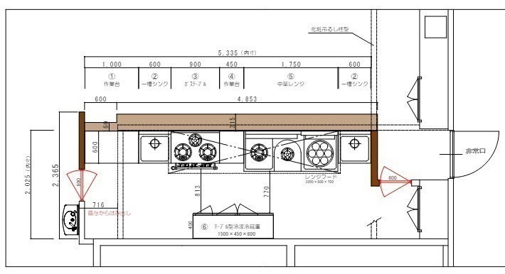
サウナ室の満足度だけではなくサウナ飯も充実させお客様の声を直接聞けるキッチンカウンターで、新メニュー考案に取り組みたい。
「灼熱地獄 水風呂天国 ととのい外気浴 美食満腹」の「美食満腹」の部分を実行する。

私たちの地域のご紹介
一関市は岩手県の玄関口で、厳美渓・猊鼻渓・栗駒山があり、世界遺産平泉や気仙沼への観光にも便利な自然豊かな市です。

プロジェクトを立ち上げた背景
サウナのお客様が増えたことで『サウナ飯』を希望するお客様が増えましたが、弊社では一般料理の他に宴会料理も賄っているためオペレーションに弊害が出てきています。
このプロジェクトで厨房をカウンター式に増設させることで、敏速で安定した調理作業サービスの向上を図り、お客様の声を聞きながら自らメニュー考案しお客様により楽しんでもらいたいと思っております。
これまでの活動
2019年12月 代表取締役社長に浅野裕美が就任
2020年3月 新型コロナウィルス感染症が世界的に猛威を振るう
2020年9月 サウナ開拓に着手(社長がサウナに目覚める)
2020年10月 荒れ果てた元露天風呂スペースを社長自らDIYをし外気浴に






2020年11月 サウナストーブをロウリュが出来るように社長自ら設計

社長が「古戦場サウナハット(特許取得)」を考案制作開始
2020年12月 ECサイト開設(古戦場サウナハットの累計販売数1237個 2023年5月末)
2021年1月 男外気浴でテントサウナのイベント
2021年3月 社長の誕生日が「サウナの日」の3月7日のため四代目生誕祭を開催、入浴料¥370に
2021年4月 SNSサイト サウナイキタイ岩手県2位に
2021年5月 サウナ闇市に出店
2021年6月 SNSサイト サウナイキタイ岩手県1位に
2021年7月 サウナ物産展に出店
2021年8月~10月 若手スタッフ2人が自腹で100万円分の古戦場サウナグッズを購入し全国に古戦場サウナを広める旅に

2021年10月 サウナ物産展2(大阪)に出店
2021年11月 若手スタッフが全国旅で教わった熱波を「熱波イベント」として開始(女性スタッフが「タイガー愛美」として熱波師となる)

全国旅でお世話になった施設のうち、仙台の「キュア国分町」様・「やまびこの湯」様に熱波イベントとしてお礼参り

2022年3月 四代目生誕祭でパートスタッフの古希熱波師「熱波熊谷」誕生

2022年4月 古戦場のお客様に熱波の受講を無料で開催する「熱波講習」を開始

2022年7月 クラウドファンディングで第二サウナ「漢方サウナ」を増設



2023年2月 第2弾クラウドファンディングで「水風呂」を拡張

2023年3月 熱波講習生が講師となりお客様を指導するまでに

2023年 熱波講習卒業生が続々と古戦場専属熱波師に








2023年6月 社長DIYの外気浴を整備するため第3弾のクラウドファンディングを決意

2023年9月 クラウドファンディングで外気浴が完成


現在に至る。
資金の使い道
設備費:4,000,000円
工事 2,640,000円
支援者掲示板 60,000円
リターン商品・送料:約500,000円
手数料:約800,000円
実施スケジール
2024年6月下旬 工事開始
2024年7月上旬 工事終了
2024年9月中旬 クラウドファンディング終了
2024年9月下旬 リターン発送
2024年10月下旬 支援者掲示板をカウンターに設置
リターンのご紹介
※全てのプランには、カウンターに支援者名を提示させていただきます。
(希望者のみ・ニックネームOK)
・¥2,980プラン 支援コース
・¥3,000プラン ステッカー 1枚
・¥4,000プラン タオル 1枚
・¥5,000プラン 缶バッチ 1個
・¥10,000プラン サウナストーン煎餅(灼熱石煎餅) 1袋
・¥10,000プラン MOKUタオル(M) 1枚
・¥15,000プラン 古戦場商品券¥2,500分(有効期限2025年4月まで)
・¥35,000プラン 各種古戦場サウナハット 1枚
・¥45,000プラン 各種今治サウナハット 1枚
・¥50,000プラン 入浴回数券80枚 有効期限2027年10月
・¥100,000プラン 入浴回数券180枚 有効期限2027年10月
・¥150,000プラン 入浴回数券310枚 有効期限2027年10月
・¥200,000プラン 入浴回数券525枚 有効期限2027年10月
・¥50,000プラン お食事付き入浴券40枚 有効期限2027年10月
・¥100,000プラン お食事付き入浴券85枚 有効期限2027年10月
・¥150,000プラン お食事付き入浴券135枚 有効期限2027年10月
・¥200,000プラン お食事付き入浴券190枚 有効期限2027年10月
最後に
これで「サウナ・水風呂・外気浴」のととのいルーティーンにプラスして「美食満腹」が追加されることになります。
これからもお客様に喜ばれる施設であり続けられるよう一層努力致します。

<募集方式について>
本プロジェクトはAll-in方式で実施します。目標金額に満たない場合も、計画を実行し、リターンをお届けします。




コメント
もっと見る