はじめに
はじめまして、「自宅にサウナをつくる人」と申します。本プロジェクトをご覧いただきありがとうございます。

Instagram:@自宅にサウナをつくる人
私は自宅にサウナをつくることを目標に、その課程を歩み進めてきました。いつかは自分だけでなく、他の誰かも整う場所をつくりたいという想いが強くなりました。サウナをつくるにあたり、もっとサウナのことを知りたくなり、全国の施設を巡ったり、関連書籍を読み漁るなど、プロジェクト化に向けた準備を進めて参りました。
自然と都市が融合するまち・高崎とmui
私の住む群馬県高崎市は関東平野の北端に位置し、首都圏と北陵・上信越を結ぶ群馬を代表する都市です。人口は37万人で、美しい自然と活力ある都市機能が融合する個性的な街です。
一日に6万人が利用する高崎駅。周辺には、高崎芸術劇場、Gメッセ群馬、高崎アリーナが近接します。
muiは、そんな都市部に近接しながら、50年の歴史を持つ自然公園・群馬の森と利根川水系一級河川・烏川に挟まれた場所に位置します。融合的なまち・高崎を象徴するような場所に位置するのがmuiです。
都市部に近接する私のまちですが、数年前から徐々に空き家が増え始め、今では住宅よりも空き家多く目立ちます。そもそもこの状況を変えるべきなのか。私には分かりませんが、住んでいる人たちが笑顔になれる場所、そんなまちに根ざした場所づくりがしたい、その思いがもう一つのきっかけです。

サウナに入ると
5年前。日々の忙しさに追われ、毎日を慌ただしく過ごしていました。気持ちが沈んでいたとき、サウナに偶然出逢いました。その日は仕事がうまくいかず、考え事をしていました。深夜ドラマが好きな私は、以前観た「サ道」を思い出し、気軽な気持ちでサウナへ向かいました。灼熱のサウナ室で10分間蒸され、キンキンに冷えた水風呂に入り、最後にイスに座り、目を瞑る。すると、身体の浮遊感とともに、頭の中が深くリラックス。思考が明快に整理されたような感覚になりました。理由は分からないけれど、自然と笑みがこぼれていました。それを、3セット。繰り返すうちに、疲れや悩みが吹き飛び、前向きな気持ちに変わります。こんなにも気持ちを切り替えられる経験は初めてでした。サウナに入ることで、幸せになれることに気づいたのです。
私がつくりたいもの
セルフロウリュが楽しめるだけでなく、日の光と自然の緑が心地よく差し込むサウナ室。天然地下水を汲み上げ、よい水質と心地よい温度の水風呂。水面に映る光と木漏れ日を眺めながら内気浴が楽しめる休息スペース。それらをひとりで、時には大切な人たちと一緒に、他人に気を使うことなく心ゆくまでリラックスできる、そんな空間をつくります。
パブリック型のサウナ施設は、男性専用だったり、人気施設ほど入退室によるサウナ室の温度低下やマナー、衛生面が気になってしまいます。一方で、プライベート型サウナは水風呂がなかったり、高額だったり、なかなか手軽に利用しづらい施設も多々あります。
サウナーなら、サウナに救われた事は多けれど、残念な気持ちになったことも少なからずあるはずです。
完全貸切にすることで、サウナ室や水風呂がベストなコンディションで維持できる上、それを毎日でも使っていただける価格のサウナをつくろうと決意しました。

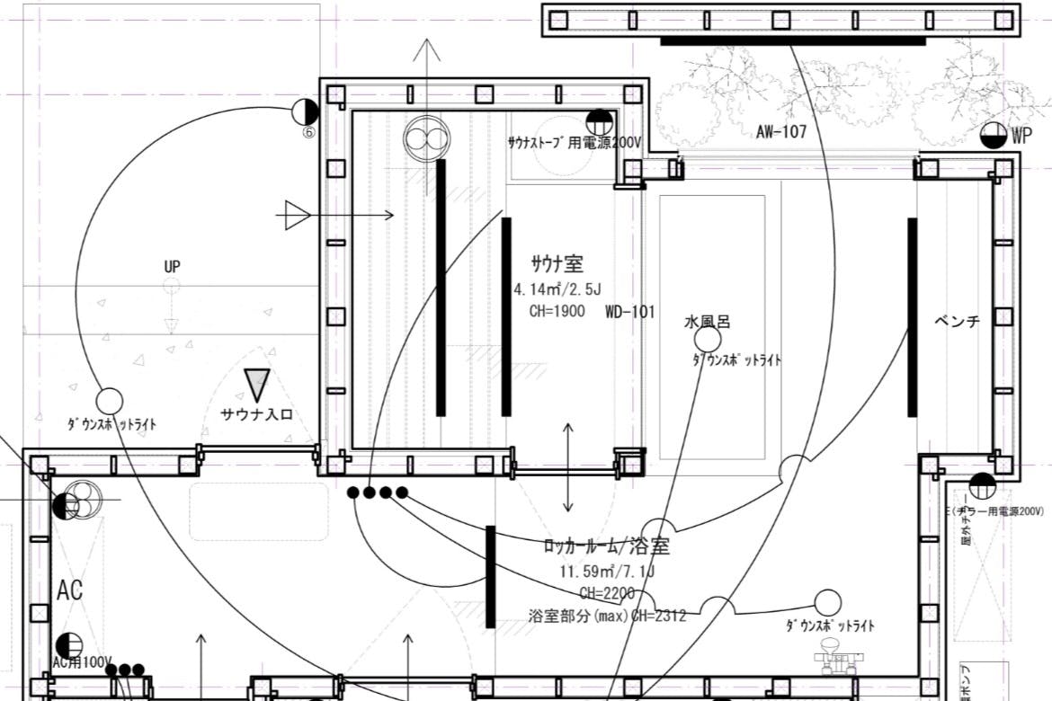
その実現のため、サウナ室は一定の高温度と高湿度を維持できる設計にし、水風呂は天然地下水を使用。さらにできる限りセルフビルドで施工し、コストを抑えながら理想のサウナづくりに挑戦しています。

寡黙で優しい大工のトーさん、現場監督には ますいいリビングカンパニー さんに入っていただき、コツコツと制作しました。

しかし、水風呂のために掘った地下水の水質で、予想外の事態に直面しました。
予想外の事態
サウナにとって、水風呂は欠かせない存在。だからこそ、最高の水質を求めて地下水を掘りました。
保健所からは、「サウナの事例が少ないため、飲料水の基準を満たさなければ営業はできない」と言われてしまいました。
恐る恐る水質検査を行うと、鉄分が多く含まれていることが判明。追加検査の結果、ヒ素と鉄分が基準を超えて検出され、水風呂としての使用は認められないという厳しい判断が下されました。

「せっかく掘った水が使えない…。」
頭が真っ白になりました。だけど、ここで諦めるわけにはいきませんでした。
何か方法はないかと調べ続けると、この水は群馬五大温泉の一つ、伊香保温泉と似た泉質を持つということがわかりました。
複数回保健所に相談の上、再調査を行ったところ、温泉成分であるメタケイ酸が検出され、温泉成分を含む水風呂としての利用が認められました。
ただ、この結果に辿り着くまでには、想像以上の費用と時間がかかりました。再調査や結果に伴う排水工事など、想定を超える費用が発生し、残念ながら今も大きな負担としてのしかかっています。
この水風呂を形にするために、クラウドファンディングを決意しました。
水風呂
群馬の豊かな山々に育まれた天然の地下水を使用。長い年月をかけて地下深層部でろ過されたので、地層中のミネラルが適度に溶け込んでいます。一年中14~17度と一定の水温の地下水を贅沢に掛け流しで使用します。
掛け流しなので、多くのサウナ施設では禁止されている潜水も可能。全身を冷やすことができます。

ロウリュ
ドクダミやほうじ茶、漢方、ヴィヒタ・・・季節や気候の時々で使うロウリュ水が変わります。ドクダミやミントの薬草類は自家栽培したものを使用するほか、石川県産ほうじ茶や番茶などの玄米茶など。他人を気にせず思う存分楽しめます。
※イメージ図
休憩
住宅街に居ながら、快適な温度で自然を感じて内気浴ができる空間にします。フルフラットに寝転べるヒノキのベッドを備え付け、ベッドからは水面に映る自然光や植物の表情、水の滴る音を感じられます。情報とかけ離れて自然を感じ、心身を癒やす。ここだけの特別な時間を過ごせます。

音
サウナ室にテレビはありません。あるのは熱気と木、そして音楽。ジャズやリラックスした音楽を聴くと、自律神経が整い、心拍数や呼吸をゆっくりになるといわれています。理由は音楽のリズム感のようで、サウナのリフレッシュ効果を相乗します。
サウナ
国産ヒノキを使用したサウナ室は、熱をダイレクトに感じられるよう天井を低くし、さらにあぐらをかいたり寝転べるよう設計。天井には3重の断熱材を使用しています。
また、ストーブはHARVIA社製のCILINDRO6を設置します。本場、フィンランド人にとって、ロウリュができないサウナはサウナではないというそうです。ロウリュができ、かつハードに身体の芯まで温めることができるストーブを選びました。

※イメージ図



営業内容
スケジュール

最後までお読みいただいた方へ
ここまでお読みいただき、ありがとうございます。私の想いを精一杯言葉にしましたが、文章だけでは伝わりきらない部分があると感じています。
どうすればこの魅力を感じてもらえるか…。実際に見学いただく機会をご用意することにしました…!(無料/限定10組※応募者多数の場合は出来る限り増枠します ※給排水工事中のため水風呂はご利用いただけない可能性があります)
ご希望の方は、Instagram:@自宅にサウナをつくる人から以下の内容をDMでお送りください。(序でにフォローもしていただけますと私がとても喜びます。)
ー DM送信内容(コピーしてお使いください)
件名:見学希望
① お名前(フルネーム)
② ご希望の利用日(2025.⚫︎.⚫︎)
③ 同行者の有無(基本はお一人様限定ですが、ご相談ください)
④ ご意見・ご不明点・支援を検討している理由や気になっているリターンなど(任意)
いただいた内容を確認後、折り返しご連絡いたします。
[サウナカルチャーが、地域に根付いていくことを想像して。]
Instagram:@自宅にサウナをつくる人
※着工後の様子など最新情報はSNSでアップしています。







コメント
もっと見る