はじめに:このプロジェクトについて
高齢者が“最後まで自分らしく”暮らせる場所をつくりたい!
そんな想いから、私たちは東京都町田市に「サービス付き高齢者向け住宅(サ高住)」を建設します。
♦高齢者が安心して、最後まで“自分の家”として住める場所を提供したい
♦家族が離れていても安心できる見守り体制を整えたい
♦介護職員が誇りをもって働ける環境をつくりたい
♦地域の人々とも交流できる“ひらかれた福祉施設”を町田につくりたい
♦訪問系事業の強みを活かしながら、サービス付き高齢者向け住宅(サ高住)を開設し、より効率的で安定 した経営を実現したい
♦福祉の心をもって日々頑張ってくれている職員さんへ十分な報酬を渡したい
♦働く職員さんの人数を余裕をもって、もっと増やしたい
これは、母が訪問看護師とケアマネとして30年以上の人生をかけて歩んできた“理想の介護”のかたちです。

≪プロジェクト立ち上げの背景≫
①事業の背景と目的
現在、訪問介護・訪問看護・居宅支援事業を8年間運営してきましたが、以下の課題を抱えています。
②訪問系事業の経営不安
人件費と売上げがほぼ同額で、収益が上がらない。今後の経営が不安定。
介護保険制度の単価は下がる一方で、国から賃上げが要求されています。
人材不足で常に職員の募集をしています。
③訪問介護・訪問看護の課題
訪問スケジュールの調整に限界があり、1日6件が平均。
移動時間が無駄であり、効率が悪い状態です。
訪問している利用者の多くが、住環境に不安を抱えており、バリアフリー住宅を望んでいます。
≪会社の課題≫
代表取締役でもある70歳に近い母が人材不足の為にナースステーションとケアマネージメントセンターの管理者として今も現役で働いています。
福祉への奉仕の想いが強く、理想の介護事業所を続けているが国の報酬が下がる一方では、経営的に収益は上がらない状況です。

≪リターンについて≫
併設するカラオケ施設やプライベートサウナの利用券をお配りします。

♦カラオケルーム 1時間500円 24時間分 12,000円相当
♦10,000円支援で カラオケ4時間分無料でついてきます。

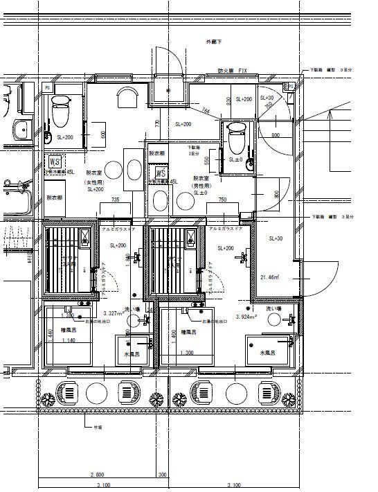
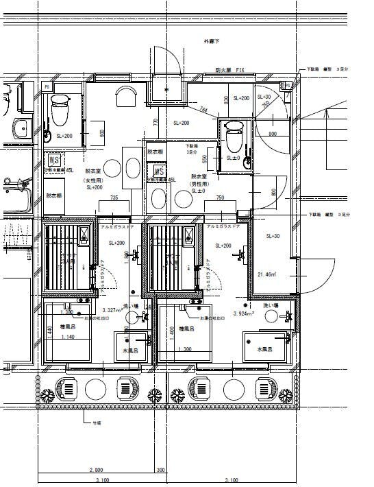
♦プライベート半露天風呂付きサウナ
2時間 5,000円 12時間分 60,000円相当
50,000円支援で プライベートサウナ 4時間分無料でついてきます。
≪これまでの歩み≫
📅 2022年「自宅では不安、でも施設には入りたくない」——訪問介護の現場で高齢者の本音に触れ、私たちは“住まい”そのものを変える必要があると痛感。この年から、サービス付き高齢者向け住宅の構想をスタート。土地探し、資金計画、制度調査に奔走しました。
📅 2023年サ高住に求められる設備基準や法令を徹底的に調査。建築士・行政書士・会計士・ケアマネ・地域包括と連携しながら、設計と制度のすり合わせを進めました。何度も図面のやり直し、役所との調整を繰り返しながら、事業の骨格を固めました。
📅 2024年3月ようやく建築確認済証を取得。町田市建築審査課との協議も完了し、法的に建設が可能となりました。同時に、町田市介護保険課との事前協議で「デイサービス指定基準を満たす図面」として認可を受け、制度面でも安心の裏付けを得ました。
📅 2024年4月資金調達で最大の壁に直面。地元金融機関の消極的な対応に心が折れかけましたが、クラウドファンディング、令和の虎、複数の金融機関をあたり、可能性を模索。そんな中、ある銀行の担当者からの「共感できる企画ですね」という一言に救われ、涙が出ました。
📅 2024年5月8日ついに、東京都より「サービス付き高齢者向け住宅」の登録通知書が交付され、正式な事業として認められました。ここまでの道のりは、制度の壁と現場の声のはざまで試行錯誤の連続でしたが、仲間や専門家、関係機関の皆様の支えで、ようやくここまで来ました。
ここまで支えてくださった皆さまに、心から感謝しています。


≪事業計画≫
♦ 町田市森野のサ高住市場はほぼ満室状態であり、新規参入でも満室になる可能性が高い
♦近隣に病院やスーパーがあり便利なため入居率も高くなる予想
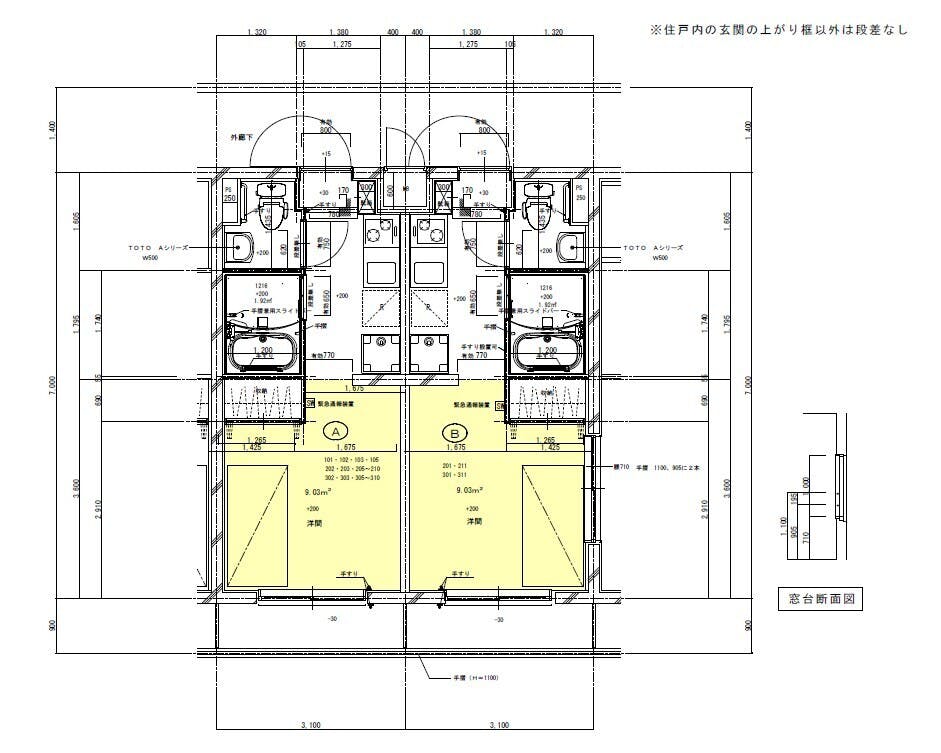
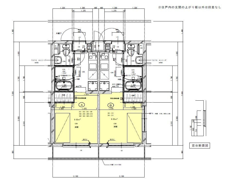
♦近隣のサ高住にはない「トイレ」「お風呂」「ミニキッチン」「洗濯機置き場」が全室に完備!で
プライベート重視の居室となっているため入居率も高くなる予想

♦ 既存の訪問介護・訪問看護・居宅支援利用者300名のうち、15名が入居希望者であり、開所から安定した稼働率を見込める
♦居室のコンセプト
テーマ:安心して快適にプライベートを過ごせる家
♦介護負担の軽減が、採用促進につながる
≪施設の特徴≫
・完全バリアフリー
・周辺の施設にはない「全室トイレ・浴室付き」
・顔をみて話せるナースコールを導入
・安否確認や服薬確認が簡単にスムーズに
・ボタンナースコールは居室・浴室・トイレに設置
・弊社のデイサービス・訪問看護・訪問介護・居宅支援事業所が生活をサポート
・24時間ナースコール対応
・コールにて部屋まで食事配送も可能

・ 満床の場合、月間利益は約890万円、入居15人でも約378万円の黒字経営が可能です。
・近隣よりリーズナブルな価格設定で高コストパフォーマンスを実現・医療・介護・リハビリの一体提供により、より手厚いサポート。
・デイサービスを併設し、リハビリ・トレーニング・檜の半露天風呂での入浴を可能にし介護者も楽な跨がない浴槽設置。

・デイサービスでは利用者の興味がある活動をして過ごせるように、家庭菜園コーナー、シアターコーナー、体操コーナー、リハビリコーナー、麻雀コーナーなど退屈しないように工夫します。



・近隣のサ高住にはない 各部屋に顔をみて話せるモニターを設置し、訪問介護・食事の依頼・緊急時や服薬確認や様子が簡単にできるシステムを導入します。
・既存事業の訪問では、移動時間の短縮により1日2件追加の訪問が可能になり1日2万程度の売上げUPが可能です。
・総工費約2億1千万円のうち、約1億1700万円を補助金で賄うことが可能です。
・カラオケ・サウナは補助金を使い、自己負担額は約1,155万円に抑えられ、資金調達の負担を大幅に軽減できます。
・広いプライベートサウナは町田に新規参入となり他にはない檜風呂があります。

・東京23区でサウナ施設が多くあるが、町田は人口が多いのにサウナ施設が1つしかない為、リーズナブルな価格で利用を可能とし、収益が見込めます。
≪スケジュール≫
2024.12月 近隣の市場調査済みで、ほぼ満床のサ高住が多い2025.1月 サ高住の要件や町田市のバリアフリー条例など考慮し図面作成2025.3月 エレベーター新設のため確認申請し 検査済み証発行済み2025.4月 東京都福祉財団へ図面申請 指定許可のためシステム登録
2025.5月 銀行 資金確保の融資内諾2025.5月 国土交通省「サービス付き高齢者向け住宅整備事業」補助金を申請
2025.6月 東京都「サービス付き高齢者向け住宅整備事業」の申請
2025.7月 クラウドファンディング
2025.7月 融資実行後、改修工事を本格始動
2026.3月 営業開始
≪図面≫



≪資金の使い道≫
皆さまからのご支援は、以下に充てさせていただきます。
- • 建設費の一部(約1億円のうち、自己資金・融資では不足分)
- • プライベートサウナなどの地域交流設備導入費
- • 入居者用の見守りシステム費用
• 医療・介護連携のICT設備導入費 -
≪応援してくださる方へ≫
35年以上訪問看護とケアマネとして高齢者の在宅支援を支え続けた母への想いを引き継ぎたいという想いでこのプロジェクトを立ち上げました。
このプロジェクトは、「誰もが安心して年を重ねられる社会」をつくるための一歩です。母のように、人生を介護に捧げた方たちが安心して次の方へバトンを渡せるように。そしてそのバトンを、私たちが次の世代へつないでいけるように。
どうか、あなたの応援という力を貸してください。
町田で住宅環境に不安を感じている高齢者が、現在の在宅支援と連携をして安心して暮らせるようにしたいです。
どうか私達、親子の町田市にサービス付き高齢者住宅建設の夢の実現の為に応援お願いいたします。
高齢者住宅を作るプロジェクトも立ち上げています。↓ 参加して頂けたら嬉しいです。
https://www.facebook.com/profile.php?id=61576020779024




コメント
もっと見る