おかげさまで、100%達成しました!
Next GOAL 120万円に挑戦します!
はじめまして!
数あるプロジェクトの中から、私たちのページをご覧いただきありがとうございます。
福井県でダイビングスクール・ダイビングショップ「越前マリンサービス」を運営している、池田健人(たけっち)です。
私たちは、海とダイビングが大好きで、ここ越前海岸からたくさんの人に海の素晴らしさを伝えながら、日々活動しています。

このプロジェクトは、そんな私の「海を愛する人たちがもっと気持ちよく過ごせる場所をつくりたい」という想いから立ち上げました。
越前海岸の魅力をもっと多くの人にお届けし、そしてこの地を好きになって、大切に思ってくれる方々に、心地よい空間とサービスをお届けしたいです。
越前マリンサービスは、日本海・越前海岸の厨(くりや)地区(福井県越前町)に位置し、ダイビングスクールやスノーケリング、マリンレジャーを提供しています。
越前海岸を一望できるロケーションに建つ当施設は、長年にわたり、地域の方々や全国から訪れるダイバーの皆さまに親しまれてきました。
私たちは「より多くの人に越前海岸の魅力を知ってもらうこと」を大切にしています。
そのためには、訪れてくださる皆さまに、心地よく過ごしていただける空間づくりが欠かせません。

しかし、当施設はもともとドライブインという名目の建物を再利用しているため、お風呂やシャワーといった設備がありません。さらに、トイレは男女共用、更衣室もないといった状況です。
お客様に快適な環境を提供できているのかと聞かれると、正直できていないのが現状です。
当施設の外観(左:2階建て建物)
特に当施設に対する意見で最も多いのが、共用トイレについてとお風呂やシャワーといった設備がないことについてです

「越前海岸の魅力を存分に楽しんでほしいという」気持ちとは裏腹に、お客さまの思い出の一部に不快感を与えてしまっている現状がとても悔しいです。
そのため、このプロジェクトではまず第一歩として、水回りの快適さを取り戻すことに注力します。

気持ちよく使える施設がひとつでも増えることで、私たちが大切にしている「より多くの人に越前海岸の魅力を知ってもらうこと」に少しずつ繋がっていく——そんな風に感じています。
このプロジェクトでは以下のことを実現させます!
・男性も女性も安心して使用できるトイレに改修!
・快適に使用できるシャワー&脱衣所を設置!
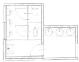
【現状】
現状
男女共用トイレ
洗面台
【改修後イメージ(予定)】

【仕様(予定)】
トイレ
・男性:洋式トイレ1
・女性:洋式トイレ1
シャワー
・男性用、女性用それぞれ1機ずつ設置
➡お湯が出るシャワーにします!
その他の設備
・脱衣所×2
・洗面台
たとえば、ダイビング後にあたたかいシャワーを浴びて、鏡付きの洗面台でゆっくり髪を乾かす時間。
その何気ない時間が、「また越前海岸に戻ってきたい」と思えるひとときになると私たちは信じています。
このプロジェクトの実施は、私たちの大好きな越前海岸に面する越前町の活性化にもつながると信じています。
せっかくなので、この機会にぜひ皆さんにも、越前町と越前海岸の魅力をお伝えさせてください!
私たちの愛する越前町――
福井県の嶺北地方西部に位置する越前町は、人口およそ2万人。
2005年に4つの町村(朝日町・宮崎村・越前町・織田町)が合併し、誕生しました。
日本海の雄大な海と、豊かな山々に囲まれた自然豊かな町です。

越前町と聞くと多くの人が思い浮かべるのはきっと、越前カニだと思います。
しかし越前町の魅力はそれだけではないんです!
越前焼のふるさと
越前町は日本六古窯(古くから続く全国6か所の焼き物の産地)のひとつに数えられる伝統工芸「越前焼」のふるさとです。
越前焼は、平安時代から続く歴史ある焼き物で、越前の土の特色を生かした、素朴で頑丈なつくり、民芸的な美しさを持っています。
町内には越前焼の窯元や体験施設が点在し、職人の技に触れることもできます。
織田信長ゆかりの地
越前町は、戦国武将・織田信長の先祖が暮らしていたとされる、ゆかりの地です。
越前町内にある劔(つるぎ)神社は、織田一族の氏神として信長も崇敬した由緒ある神社です。
地名「織田」も一族の名に由来し、今なお歴史の面影を色濃く残しています。
「日本の夕陽百選」にも選ばれている越前岬
越前岬は越前海岸随一の景勝地です。
岬の突端の海抜132mの頂上部には、越前岬灯台が立ち、越前岬のシンボルとなっています!
この一帯は越前水仙の群生地でもあり、12月~1月のシーズンともなれば、可憐な越前水仙の甘く清楚な香りが漂う中、美しい景色を眺めることができます
越前灯台近くから見る景色
越前町はノスタルジックな雰囲気があり、たくさんの船が止まる港も、自然豊かな山もすぐそばにある。まるでドラマのワンシーンに入り込んだような町並みです。
誰にとっても、心の奥に触れるような温かさを感じられる場所だと私は思っています。
越前町を、おおらかに、ときには厳しく見守ってくれる越前海岸―――
そんな越前町が面している越前海岸は、日本海沿岸に広がる、ダイナミックで美しい海岸で、断崖や奇岩、入り江が織りなす自然美が圧巻です。
特に、8月中旬から9月にかけては海の透明度が高く、ダイバーの間では「越前ブルー」と呼ばれており、多くのダイバーを魅了しています。
そして越前海岸は日本有数のウミウシポイントです。
日本近海で見られるウミウシは1,000種類ほどいますが、そのうち約300種類を越前海岸で見ることができます!
ウミウシはそのカラフルな見た目から「海の宝石」とも呼ばれます。
「越前ブルーで見る海の宝石」なんだかとても素敵な響きですよね笑
魅力いっぱいの越前町!
越前カニだけを楽しむのはもったいないです!
ぜひ越前町の様々な表情を現地に足を運び体感してみてください。
ー見積りー
✓設備改修費(トイレ、シャワー、脱衣所、洗面台) 約200万円
✓人件費 約50万円
✓その他(リターン、広報費、CAMPFIRE掲載手数料など) 約50万
合計 約300万円
このうち100万円をクラウドファンディングで募集します。
そしてもし達成できれば、ネクストゴールとして全額300万円を目指します!
最終的に私たちの目標は、当店を宿泊施設として、全国各地から集まるダイバーや地域の人々の新たな交流の場として、整備していくことです!
◆共通
【お気持ち支援】 3,000円
➡ただただ応援したいという方向けにご用意させていただきました。
感謝の気持ちを込めたお礼動画を送付させていただきます!
◇推し活プラン
【ぺたぺた支援】 5,000円
➡ステッカー+お礼メッセージ
【てぇてぇ支援】 8,000円
➡アクアマリングループオリジナルTシャツ
【ぬくぬく支援】 10,000円
➡アクアマリングループオリジナルパーカー
【全力推し活支援】 20,000円
➡ステッカー+Tシャツ+パーカー+お礼メッセージ
◇越前体感プラン

\スタッフイチオシ/
【毎日いらっしゃい】 12,000円
➡施設利用年間パスポート
【ゆったり楽しみましょう】 15,000円
➡スノーケリング+カヤックレンタル
【体験しに来てください!】 18,000円
➡体験ダイビング
※ダイビングライセンス不要です
【ジャブジャブ楽しもう!】 18,000円
➡2ビーチダイビング
※ダイビングライセンスが必要です
【越前の海を堪能】 25,000円
➡2ボートダイビング
※ダイビングライセンスが必要です
\New/【スノーケリング+水中スクーター】 8,000円
\New/【スノーケリング+水中スクーター【ペア割】】 15,000円
➡ペアでお得にご利用いただけます
\New/【ボート貸し切りプラン】 50,000円
➡1支援で最大10名まで参加可!
➡貸し切りは最大3時間!
➡皆さんがやりたいことを可能な範囲で実現します!
◇スポンサープラン
【お名前掲載しませんか】 20,000円
➡スポンサーボードにお名前や企業名・ロゴを掲載します
【目立つところにお名前掲載しませんか】 50,000円
➡スポンサーボードの目立つ場所にお名前や企業名・ロゴを掲載します
詳しくはリターン欄をご確認ください✨
正直、トイレやシャワーの改修だけなら、自分たちの力でもなんとかなるかもしれません。
しかし、私が本当に実現させたいことは、越前で過ごす時間が誰かの宝物になるような、そんな場所を育てていくことです。
そして「ここにまた帰ってきたい」と思ってもらえるような空間を、皆さんと一緒に育てていくことです。
だからこそ、このクラウドファンディングという形に意味があると信じています。
海が好きなあなたに。
旅が好きなあなたに。
まだ越前を知らないあなたにも。
どうか、私たちの想いに力を貸してください。
一緒に、越前の海辺に新しい風を吹かせましょう。
ご支援、心よりお待ちしています!

<募集方式について>
本プロジェクトはAll-in方式で実施します。目標金額に満たない場合も、計画を実行し、リターンをお届けします。
最新の活動報告
もっと見る
プロジェクト終了のご報告
2025/09/01 19:07皆さまの温かいご支援・応援のおかげで、 無事にクラウドファンディング期間を完走いたしました! 最後まで一緒に走り抜いてくださり、本当にありがとうございます。 今回の挑戦では、51名の方から合計1,150,000円のご支援をいただきました。 いただいたご支援は老朽化した施設の改修費用(まずはトイレ!)に充て、 より快適に安心してご利用いただける環境づくりを進めてまいります。 今後は改修の進捗やリターン準備について、 活動報告やSNSで随時お知らせしていこうと考えておりますので、ぜひご覧ください。 改めて、皆さまの温かい応援に心から感謝申し上げます。 また、今回プロジェクトを行う上でサポートをいただいた、 株式会社GKコンサルティング様にも心から感謝申し上げます。 本当にありがとうございました。 もっと見るついに最終日、最後まで走り抜けます!
2025/08/31 07:00これまでたくさんの温かいご支援・応援をいただき、本当にありがとうございます。皆さまのおかげで100%を達成し、現在はNEXT GOAL 120万円に挑戦中です!ここまで走ってこられたのは、一人ひとりの応援の積み重ねがあったからこそです。心から感謝いたします。クラウドファンディングは本日が最終日。最後にもう一歩、皆さまと一緒に駆け抜けたいと思っています。もし周りに興味を持っていただけそうな方がいらっしゃいましたら、ぜひシェアやご紹介をお願いいたします。最後の瞬間まで、どうぞよろしくお願いいたします! もっと見る
残り1日!NEXT GOAL 120万円に挑戦中です!
2025/08/30 07:00皆さまのおかげで、100%を達成し、現在は“NEXT GOAL 120万円”に挑戦しています!残りあと1日。この挑戦を通してたくさんの方に支えられたこと、越前町の魅力を伝える機会をいただけたことに心から感謝しています。「応援したい!」と思っていただける方にぜひシェアやご紹介をお願いします。一緒にプロジェクトのゴールテープを気持ちよく切りましょう! もっと見る












コメント
もっと見る