2025年12月30日追記・更新
NEXT×3 GOALとして250万円に挑戦します!
皆様の多大なご支援やご協力、拡散のお陰で目標金額、並びにNEXT GOAL、さらにNEXT×2 GOALを達成する事ができました!
多くのご支援やご協力、拡散、本当にありがとうございます!日々増える支援者に大変勇気付けられました。
今回のクラウドファンディングも残り1週間となりましたが、NEXT×3 GOALとして250万円に挑戦します。
「レーザーカッター」などものづくりのための設備を増強する以外に、新たにギャラリースペース(レンタルスペース)を設けてクリエーターが発表する場所を提供する予定です。
また、いくつか貸切のイベントのお問い合わせもあったので、¥20,000の1日貸切チケットを追加しました。このプロジェクトを通じて、宮古島に来て頂くクリエーターの方の力になれればと思います。
皆さんがお忙しい年末で残り1日となりましたが、引き続きご支援やご協力、拡散をよろしくお願いします!

宮古島を拠点に活動するデザイナーの大前洋輔です!
上:インテリアデザインを手掛けた宮古島の「ニンギン珈琲」|下:ミラノデザインウィーク・bud brandに出展した作品「RHOMBUS」※LINEs AND ANGLEsと共同
宮古島で「働く」と「ものづくり」の新しい形を創造するために創る「NOMAD miyakojima」。代表を務めるのは、建築・インテリアを中心に様々なモノやコトをデザインするデザイナーの大前洋輔です。
左:設計した宮古島のゲストハウス※unbuild|右:デザインした宮古島のアパレルショップ
コロナ禍直前に長年住んでいた東京から、以前から旅行で度々訪れていた宮古島に拠点を移し、ノマドワーカー・アドレスホッパーのような形で活動しています。自分自身、数年にわたりノマドワーカーとして活動する中で、場所を選ばない働き方の自由さと同時に、「クリエイティブな活動を支える、質の高い拠点」の重要性を痛感してきました。
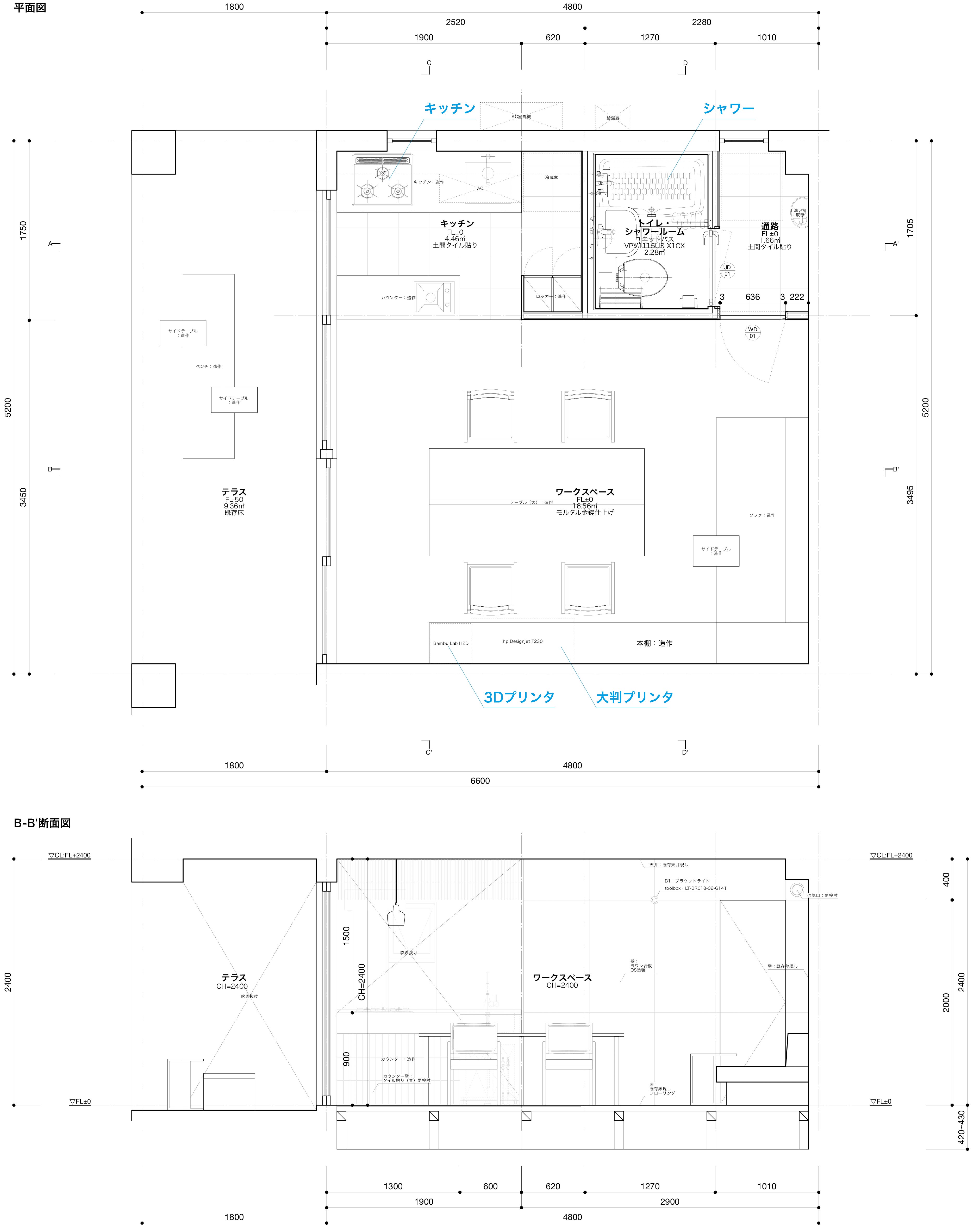
宮古島の中心部に3Dプリンタなどを備えたものづくり特化型のコワーキングスペースを作ります!
内観パース
このクラウドファンディングで実現したいことは、3Dプリンタや大判プリンタを備えた少人数制のコワーキングスペース「NOMAD miyakojima」の開設。
図面一式3Dプリンタや大判プリンタを備えたものづくり特化型で、24時間365日利用可能でシャワーやキッチンも備えたフレキシブルに使えるコワーキングスペースとなります。
Google Mapで開く宮古島の中心部、目抜き通りの西里通りの入り口にある琉球銀行宮古支店のすぐ裏手と便利な場所に位置します。

ここ宮古島は、美しい海と自然、独特な文化があったり、ユニークな島の人々との出会いがあったりと新しいアイディアの源になり得ます。「NOMAD miyakojima」は、宮古島で得たインスピレーションや旅の中で温めていたアイディアを実現し、新しい価値を生み出すための「島のラボ」のような存在にしたいと考えています。
コンセプトは「COMMONS」「STUDIO」「DISCUSS」の3つ。
1. COMMONS(コモンズ):旅人や島人が集い、互いの「知」や「技」を自然に共有できる場。
2. STUDIO(スタジオ):アイディアを形にする「ものづくり」の場として、多様な創造活動を支援。
3. DISCUSS(ディスカス):様々な視点やアイディアを持ち寄り、議論を通して理解を深める場。
「NOMAD miyakojima」はこんな空間!

クリエイティブな活動を支える環境構築: 3Dプリンタや大判プリンタを備え、デジタルデータだけでなく「モノづくり」まで完結できるアトリエ・ラボ機能を提供します。主に想定は建築やインテリア、プロダクトデザインですが、より多様な人に提供することで新しい使い方を模索します。

ノマドワーカーに最適なワーケーション拠点:創作に没頭したいクリエイターのために、中長期の滞在の方は24時間365日利用可能(貸切利用時以外)とします。創作活動を中断することなく作業に打ち込める環境を提供するためです。合間に海でリフレッシュできるようシャワーブースを完備し、交流ができるキッチンも整備することで、持続的な集中を求めるノマドワーカーを支えます。

地域と繋がるコミュニティ形成: 利用者と地元クリエイターが交流できるイベントを企画し、宮古島発の新しいデザインやアート、スタートアップが生まれるハブを創造します。
プロジェクト立ち上げの背景
左上:サハラ砂漠・モロッコ|右上:ミラノサローネ本会場・イタリア・ミラノ|左下:グッゲンハイム・ビルバオ・スペイン|右下:ウユニ塩湖・ボリビア
自分自身が世界中を旅しながらノマドワーカーとして活動する中で、デジタルからアナログ、つまりラップトップの中で完結しないプロセスの限界を感じていました。現在、宮古島にもコワーキングスペースは増えましたが、やはりIT関係やコンサルタント、バックオフィス系の方々には最適でも、デジタルで完結しない「ものづくり」系の人にとっては不完全な空間ばかりです。
具体的には、紙でスケッチを描いたり、建築やインテリアの模型を作ったりするときに、多少汚したり散らかしたりできるアトリエのようなスペースが必要であることと、移動が多いために物理的に大きくて繊細な模型を持ち歩いたりすることが困難であることが挙げられます。
左上:タオ島・タイ|右上:バウハウス・デッサウ校・ドイツ|左下:セルラキウス美術館・アートサウナ・フィンランド|右下:サグラダファミリア・バルセロナ・スペイン
また、哲学者ジャック・デリダ(ノマドの先駆者である高城剛氏も)が提唱した「アイディアは移動距離に比例する」は、確かにその通りであはあるけれど、そのアイディアを煮詰め、飛躍と発展させるためにも集中して創作に取り組むことができる場所も必要性も実感しています。
これまで自分でも宮古島の既存のコワーキングスペースを使っていましたが、縁があって広くはないけれど、ある程度自分がイメージする空間が実現できそうな物件を借りることができました。出張などで月の半分しか宮古島にいられないこともあり、せっかくなのでこの空間をシェアできるようにコワーキングスペースとして作ることにしました。
左上:エースホテル・ポートランド・アメリカ|右上:カッパドキア・トルコ|左下:ホッシーニャ(ファベーラ)・リオ デ ジャネイロ・ブラジル|右下:ドブロブニク・クロアチア
多くのノマドワーカーは、カフェやホテルのロビーで一時的に作業をしますが、集中できる環境、設備、そして何より同じ志を持つ仲間との繋がりを求めていると思います。「宮古島の自然のインスピレーション」とその「アイディアのシェア」、「最新のクリエイティブ環境」を融合させた場所が必要だと確信し、この「NOMAD miyakojima」の立ち上げを決意しました。
現在の準備状況と資金の使い道

現在プロジェクトの実現に向けて、着実に準備を進めています。
物件は宮古島の一番の目抜き通り西里通りの一本裏手、利便性は高い場所にあります。広くはないので、路面店でもあるので、わかりやすく採光も取れた物件です。
業者や職人さん不足の宮古島の中にあって、もともとトイレもない物件だったため、給排水工事などの設備工事の待ち時間が長くかかってしまいましたが、おおよそ完了し各種設備工事の準備中です。また、導入予定の3Dプリンターや大判プリンタの機種選定、および専門業者との設置に関する打ち合わせを進行中です。
このクラウドファンディングで、内装工事の費用やクリエイティブ設備の初期導入費用を確保し、最高の状態でオープンを迎える準備を整えたいと考えています。
リターンについて:NOMAD miyakojimaを共に創る、未来の働き方へのご支援を!

宮古島でのワーケーションからクリエイティブ支援まで。あなたの「働く」を豊かにする特別なリターンをご用意しました。
リモートワークなどで宮古島を訪れる方にも、宮古島在住の方にも、そしてクリエイティブな挑戦をしたい全ての方にも魅力的なリターンを用意しました。このクラウドファンディングを通じて、皆様と宮古島でお会いし、コワーキングスペースを共に利用したり、語り合える機会ができることを心から期待しています。
*1:有効期限・発行から1年間
*2:3Dプリンタや大判プリンタ、シャワー、グッズなどに使用可能
*3:記載するクレジットを備考欄にご記入ください。
*4:リンク先を備考欄にご記入の上、後日バナーやロゴデータをメールなどで送付ください。
*5:取材や打ち合わせに必要な出張費(交通費や宿泊費)がかかる場合は、別途請求させて頂きます。
スケジュール
【2025年】
-
11月:内装工事(初期段階)
給排水・電気工事など、コワーキングスペースの基本インフラ整備を完了させます。
-
12月:クラウドファンディング終了
皆様からの温かいご支援をいただき、資金調達を完了します。この資金使途を確定させ、最終準備に入ります。
【2026年】
-
1月〜3月:内装工事(仕上げ・アトリエ化)
塗装、タイル施工、遮音・防汚対策など、ものづくり特化型アトリエスペースの本格的な整備を進めます。
-
3月:クリエイティブ設備導入
3Dプリンター、大判プリンターといった主要機材の搬入、設置、動作確認を完了させます。
-
3月上旬:プレオープン・最終調整
サポーター様や関係者の皆様をお招きし、実際の運用テストを実施。快適な空間提供のため、最終的な調整を行います。
-
3月下旬:NOMAD miyakojima グランドオープン!
ついに「NOMAD miyakojima」が正式に営業を開始します。ここから、コワーキングスペースの利用リターンが開始されます。
-
4月〜6月:リターンサービス順次実施
【物理リターン】 内装タイルへのクレジット刻印の設置、ウェブサイトへのクレジット・バナー掲載を順次開始します。
【サービスリターン】 インタビュー記事制作、ウェブサイトデザイン、建築・インテリアデザイン支援など、各支援者様と個別に日程を調整させていただき、心を込めてサービスを提供させていただきます。
【スケジュールの確実性について】宮古島は資材の輸送や職人さんの手配に時間を要することが多いため、オープンに向けたスケジュールは余裕をもって設定しております。万が一、不測の事態により大幅な遅延が発生する場合には、速やかに活動報告にてご支援者の皆様にご報告いたしますので、ご安心ください。
「ものづくり」場を作る挑戦に、ご支援を心よりお待ちしております!

「NOMAD miyakojima」は、単なる作業スペースではなく、クリエイターにとっての「プレップ・ルーム(準備室)」のような役割を持たせたいと考えています。
SNSでのキュレーションや、AIによる自動生成が可能な時代だからこそ、私たちは「自分の頭と手を使って、プロセスを大切にモノづくりに取り組むこと」の価値は変わらないと確信しています。ここで熱く煮詰めたアイデアを3Dプリンタや大判プリンタを用いて具現化し、世界に発信していく——この空間が、サポーターの皆様や訪れる人々にとって、新しいプロジェクトを立ち上げるきっかけとなることを目標としています。

一般的なコワーキングスペースとは異なり、「NOMAD miyakojima」は、旅人や島人が集い、「知」や「技」を自然に共有し、フィードバックし合うことで新たなプロジェクトを生み出す、多様な創造活動を支援する「ラボ」です。
今回のクラウドファンディングは、宮古島という特異な場所だからこそ集まる人々の情熱とアイデアを集約する舞台を作るための挑戦です。
この小さな島から、新しい働き方、新しい価値、そして新しいコミュニティを世界に発信していきます。
あなたのその一歩が、この宮古島のクリエイティブな未来を共に創ります。
私たちの挑戦に共感し、応援してくださる皆様からの温かいご支援を、心よりお待ちしております!
最新の活動報告
もっと見る
【重要】オープン延期の御報告とお詫び、新スケジュールについて
2026/04/05 01:49NOMAD miyakojima 代表の大前です。いつも温かいご支援と応援をいただき、誠にありがとうございます。2026年4月のオープンを目指して準備を進めてまいりました「NOMAD miyakojima」ですが、誠に心苦しいながら、工事・準備の遅延によりオープンスケジュールを変更させていただくこととなりました。楽しみにお待ちいただいている皆様、ならびにご支援いただいた皆様には、多大なるご迷惑をおかけしますことを深くお詫び申し上げます。1. 延期の理由について現在、工事自体の難航や一部建材の輸送に想定以上の時間を要したこと、必要な変更などで内装仕上げの工程に遅れが生じております。また、4月下旬から5月中旬まで代表の大前自身が島外にいるため準備が滞ってしまいます。「島のラボ」として、皆様に最高のクリエイティブ環境を提供するため、一切の妥協なく空間を作り上げたいと考えております。そのため、無理に工期を短縮するのではなく、確実な品質を確保するためにスケジュールの見直しを決断いたしました。2. 新しいスケジュール現在の進捗状況を鑑み、以下の通りオープン日を変更させていただきます。旧予定:2026年4月オープン新予定:2026年6月オープン予定3. リターンの提供時期についてオープン延期に伴い、施設利用を伴うリターンの開始時期も以下の通り変更させていただきます。プレオープン:4月中旬~5月末・施工完了次第利用チケット・サービスリターンの開始:2026年6月のオープン以降順次WEBサイト掲載・5月中旬より順次タイル刻印:順次施工予定その他:応相談既にご旅行やワーケーションの計画を立てられていた方には、個別にご相談を承ります。お手数ですが、メッセージ機能よりお問い合わせいただけますと幸いです。4. 代表より皆様へオープンが遅れてしまうことは非常に悔しく、申し訳ない気持ちでいっぱいです。しかし、その分、完成した暁には皆様が「待った甲斐があった」と思えるような、没頭できる空間をお約束します。現場の進捗状況については、引き続きこの活動報告にて、写真と共にお伝えしてまいります。宮古島のクリエイティブの拠点となる「NOMAD miyakojima」の誕生まで、今しばらくお時間をいただけますよう、何卒よろしくお願い申し上げます。NOMAD miyakojima 代表:大前 洋輔 もっと見る













八戸のスズキミノリさんのリポストでプロジェクトを知りました アタシは、ものづくりとは全く縁がないけれど、例えばリターン品の「チケット🎫」を、ミノリさんに譲ったりするのはOKですか?