目次
①これまでの活動 私の略歴
②テーマパークな雑貨屋「Anatomic Circus」の現在
③カフェを併設する理由
④カフェの設計図
⑤Anatomic Circus Cafeが想像する未来(本題)
⑥最後に
⑦資金の使い道
//////////////////////////////////////////////////////////////////////////
ー最初にー
当店、Anatomic Circusは、映画監督・クリエイターである私、二階健が、
「自分が本当に好きなものだけ」を集めたいと思い、
京都・熊野神社(聖護院)の近くに2024年にオープンしました。
❶これまでの活動 私の略歴(手短に)
劇場映画デビュー作「Soundtrack」(柴咲コウ・SUGIZO主演)では自ら脚本を手がけ、第12回セマナ(スペイン)国際ファンタスティック映画祭において、その独創的な世界観が賞賛を浴び「最優秀脚本賞」「最優秀撮影監督賞」をW受賞。その後、松竹全国公開「下弦の月~ラスト・クォーター」(矢沢あい原作 栗山千明、成宮寛貴)、映画「ファンタスマゴリー」(小川紗良・HYDE・永瀬正敏)、TVドラマ「GO ! GO !HEAVEN !」(編集協会 最優秀タイトルバック賞)、AAA主演「未来世紀シェイクスピア」、「演技者 REDRUM」(フジテレビ優秀照明賞)、ベルギーの絵本作家 G・バンサンの世界的ベストセラー絵本「アンジュール」初のオフィシャルアニメーション化(音楽 坂本龍一)、L’Arc~en~Ciel、 HYDE、VAMPS、Halloween Junky Orchestraなどの人気バンドのミュージックビデオや、新宿マルイのハロウィンイベント「Get Ready for Halloween!」の全館プロデュース、アトリエサードより写真作品集「Dead Hours Museum〜午前三時の美術館」他9册を刊行。 https://ja.wikipedia.org/wiki/二階健
❷テーマパークな雑貨屋「Anatomic Circus」の現在
― ここは少しだけ現実とは外れた場所です ―
Anatomic Circusはダークで、少し怖くて、でもどこか可笑しい。かわいらしさと不穏さが同居する雑貨たち。手に取ると、何故か心に残るもの。ここは、そんな“違和感”を楽しむ雑貨店です。
これまで多くの方が足を運んでくださり、
「この空間に、もう少し長くいたい」
「世界観に浸りながら、ゆっくり過ごしたい」
そんな声をたくさん頂いて来ました。
外国人観光客は必ずと言って良いほど親指を立てて(サムズアップ)笑顔で帰って行きます。
「絶対に人と被らないプレゼントなら、Anatomic Circus」と、
多くの方にご利用いただいていることも、私にとって大きな励みになっています。
所在地 京都市左京区聖護院山王町11-1
(京都駅から熊野神社前 206番のバスで1本、もしくは京阪電車 神宮丸太町下車)
営業日などの詳しい情報はこちら↓
Instagram @anatomic_circus
X(旧Twitter)@anatomic_circus
続く↓
外観↑1階(ショーウインドウA)↑
1階(ショーウインドウB)↑
個性的な商品たち↑
オリジナルクッキー↑
❸カフェを併設する理由
しかしここであえてカフェを作る理由があります。
家賃、光熱費、材料費――小さな個人店を続けていくには、「好き」だけではどうしても乗り越えられない現実があります。売上が季節や天候に左右されやすく「良い月」と「厳しい月」の波が生まれてきてしまいます。冷やかしだけで一日の売り上げが0円の日も少なくありません。このままではいつお店が潰れてもおかしくない状況です。
続く↓
1階店内(左側)↑
なかなか他では手に入らない品々↑
そこで私はアナトミックサーカスの中に小さなカフェを作ることを決めました。
このカフェは、ただ飲み物を提供する場所ではありません。
雑貨を眺め、手に取り、気になった本や雑誌を少しだけ読み、
この空間そのものを味わうための場所です。
けれど、世界観を削って生き残ることはしたくありませんでした。
だからこそ、この場所を“体験できる店”として、無理なく丁寧に続けて行きたい。
そう考え、今回クラウドファンディングに挑戦します。
このカフェが完成すれば、Anatomic Circusは
「買う場所」から「過ごし、感じ、記憶に残る場所」へと進みます。
続く↓
2階店内(イメージキャラクター 団長)↑

2階 フォトスポット↑
カフェは主役ではありません。
この雑貨屋を、無理なく丁寧に、未来に繋げて行くための土台です。
飲み物を片手に、雑貨をもう一度見渡し、
店内に置いてある本や資料をめくりながら、
「何かを選ぶ前の時間」を安心して過ごしてもらうための場所です。
今回のクラウドファンディングは、新しいことに挑戦するためというより、
この店を長く続けて行くためのものです。
支援していただくことは、一つのカフェを作ることではなく、一つの雑貨屋と、
その世界観を、「ここにあっていい」と肯定してもらうことだと思っています。
「京都・聖護院』という歴史のある街並みの一角に、世界観ごと没入出来る”異空間”を育てて行く挑戦。
ここにしかない時間と思い出を、この地で作ります。
続く↓

1階店内(盛況の日)↑
元パティシエが作る当店オリジナルクッキーたち↑
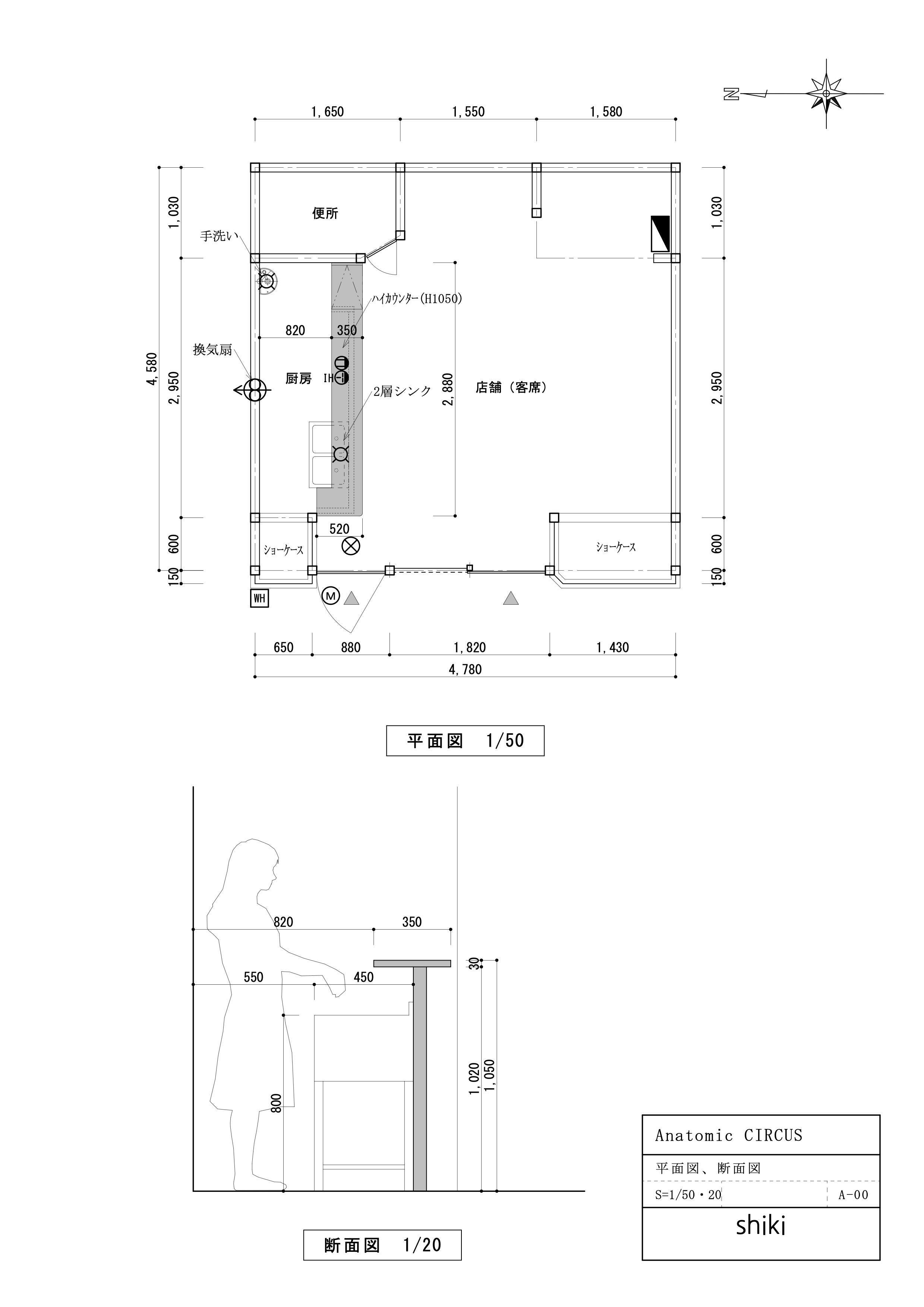
❹カフェの設計図(カフェは店内入って左側に小さなカウンターを設けます。
余裕があれば2階にもソファを置きお茶を飲めるスペースを設ける予定です。

❺Anatomic Circus Cafeが想像する未来(本題)
もし、Anatomic Circusが気になって立ち止まったことがある方、雑貨を手に取ったことがある方、この空間を「好きだな」と感じたことがある方、また映画やMVなどを通して、私の世界観が好きな方、ぜひこのプロジェクトに参加してください。このまま不安定な状況が続けば、この店は街から消えるでしょう。亡くなってからその大切さに気づくこともあるでしょう。しかし今回のプロジェクトでそれが回避される可能性があります。どうか、力を貸してください。このままではもう1年保ちません。。。
皆さまの支援が、Anatomic Circusを、もう少し先の未来へ運んでくれます。
このカフェが完成すれば、一人で静かに本を読む時間、世界観を共有する人たちとの会話、
そこから生まれる新しい何かが、きっと動き出します。例えば若い作家が作品を持参してくれたら、それを私が見て何かアドバイスすることも出来るでしょう。映画作家の方々とはテクニカルなことや助言が出来るでしょう。きっと面白いお客さんが増え、お客さん同士で何か一緒にプロジェクトが発生するかもしれません。もちろんただのんびり本を読むのも良いでしょう。
何より、「もっとこの世界に浸っていたい」という皆さまと一緒に、お茶を飲みながら、可愛いクッキーを食べながら、ゆっくりと別世界を感じていただける空間を共有できること。それこそが、私にとって何よりも嬉しく、素晴らしいことだと思っています。コーヒーや紅茶はテイクアウトも出来ます。短い滞在でもふらっと立ち寄って一杯だけでも、それぞれの距離感で使ってもらえるカフェです。近くには岡崎公園や平安神宮など、街の空気とのんびりできる場所もあります。
予定しているメニューはコーヒー、ハーブティー、季節のドリンク、アナトミックサーカスオリジナルクッキーなど ※全てテイクアウト対応 あくまで派手ではなく、この空間に馴染むものだけ。
雑貨や本と同じように「ここにあって違和感のない味」を大切にします。
限られた店内にカフェ機能を組み込むため、スペースは決して広くありません。
シンクや設備など、どうしても必要な要素も多く、簡単な挑戦ではありません。
それでも、映画美術の経験を活かし、制約を逆に楽しみながら、ここをもう一度“別世界”へと変えていきます。設計から施工まで、すべて私自身の手で監修し、「二階健の世界」をより深く体感できる空間を目指しています。
続く↓

1F

2F

外観
❻最後に
Anatomic Circus Caféは、そんな願いから生まれるプロジェクトです。
どうか、この新しい一歩に力を貸してください。
どうぞよろしくお願いします!!
クラウドファンディングで集まった資金はカフェ新設に関わる工事費(設計図に示した厨房、その周りの
機器、食器など)、当サイト利用手数料17%、リターン商品の購入作成コストや送料に使わせて頂きます。今回のクラウドファンディングは「購入型クラウドファンディング」です。私が設定したリターンの販売を通じて支援を募る仕組みとなっております。
//////////////////////////////////////////////////////////////////////////
二階健 これまでの仕事ダイジェスト↓
↑Halloween Junky Orchestra(HYDE,DAIGO,土屋アンナ他)美術・衣装デザイン・監督↑
↑HYDE, VAMPS,TETSUYA(L'Arc~en~Ciel)MVを監督↑

↑映画「Soundtrack」(SUGIZO・柴咲コウ主演)「下弦の月〜ラストクォーター」(栗山千明・成宮寛貴・HYDE)など↑

↑最新刊(記念すべき10冊目)「THE BLACK OPAL」↑
//////////////////////////////////////////////////////////////////////////
❼資金の使い道
内訳 カフェ設備費:約200万円 雑費20万円 リターン費10万円 CAMPFIRE掲載手数料・決済手数料:約17% 不足分は自己資金
※支援額によって店の規模は変わります。本プロジェクトはAll-or-Nothing方式で実施します。目標金額に満たない場合、計画の実行及びリターンのお届けはありません。ご支援頂いたお金は返金されます。 ※古物商許可証 第611222030028
//////////////////////////////////////////////////////////////////////////
貴方が都会の喧騒を逃れて開く扉が「Anatomic Circus」の扉であることを願っています。
共に終わらない夢を見ましょう!日常にファンタジーを!!
最新の活動報告
もっと見るいよいよあと3日!
2026/02/11 16:40ご支援頂いた現在52人の方々本当にありがとうございます!!!残すところあと3日となりました。なかなか数字が伸びず、現在34%の達成率です。僕をハラハラさせるつもりで、あえてギリギリに入れてくれる方々が沢山いらっしゃると期待して、今日も宣伝に余念がありません! もっと見るお力添えを!
2026/02/06 09:32現在21% ご支援くださった方々ありがとうございます!しかし、このままではお店が潰れてしまいます。。。残り1週間、奇跡が二つくらい起こらないと難しいですが、最後まで諦めません!!どうか皆さんのお力添えをよろしくお願いします!! もっと見る






コメント
もっと見る