はじめまして、白滝旅館の4代目店主 齋藤大輔と申します。
秋田県にかほ市、鳥海山の麓にある小さな集落・小滝。ここで93年間続いてきた宿「白滝旅館」は、2026年冬、大きな一歩を踏み出します。

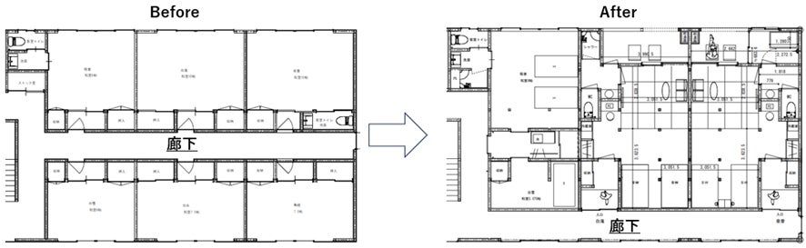
これまでの2階6部屋を、3つの“滞在型客室”へ。
父と祖母の死、一人になった母が守る旅館を承継するために2023年に夫婦で東京からUターンをしました。 これまで集落の方々、遠方から何度もご利用くださったお客様、たくさんの方々に支えていただき、長きにわたり旅館を続いてきた旅館を事業承継をしたものの、旅館は老朽化しており、今のお客様、特に若年層のお客様にご満足いただけるような設備は整っておらず、利用者が伸びていない状況でした。
たくさんの方のおかげで続けてこられた地域の宿が
「このままでは、10年後にこの宿はなくなってしまうかもしれない」
そんな危機感を、私たちは日々強く感じるようになり、この状況をなんとかしなければならないという使命感が生まれました。
そこで、私たちが今後のために考えたのは、
母が受け継いできた手料理を受け継ぎ、今まで以上に地元の食材にこだわること、
私たちが大切にしてきたホスピタリティ、鳥海山の麓の穏やかな空気の中でゆったり過ごせる空間は残し、より快適にくつろげるように質を高めることです。
部屋を広くし、テラス、檜風呂/シャワーを設置し、そして窓からは鳥海山の眺望を楽しめるようにし、「泊まる場所」から「滞在する拠点」へと進化させます。
総事業費は約3,300万円。補助金と銀行融資によって、この改修はすでに実行を決めました。
このクラウドファンディングは、資金の一部を募ると同時に、この場所の未来に「参加」してくださる仲間を募るものです。
白滝旅館とこの場所について

白滝旅館は昭和7年、鳥海山を訪れる人々を迎える宿として始まりました。山菜、日本海の魚、畑の野菜、自家栽培の米。土地の恵みを活かした料理と、家族経営のもてなしを大切にしてきました。
旅館のある小滝集落は、1200年以上前から続く信仰と祭事が今も残る場所です。かつては修験者が集う宿坊村でもあり、130世帯の小さな村に約5軒あった宿坊は、2026年現在、宿泊施設として営業しているのは当館のみとなりました。
この宿は、単なる建物ではなく、文化と人と自然をつなぐ「結節点」だと私たちは考えています。

私たちについて
私たち夫婦は2023年、東京からこの地に戻り、白滝旅館を継ぎました。
旅が好きで、人が好きで、もてなすことが好き。
そうして「迎える側」になることを選びました。

「左から:4代目・齋藤、3代目大女将の母、若女将。三人で白滝旅館を営んでいます。 父、祖母が同時期に他界し一人になった母を支えるために帰郷しました。」
かつてこの宿は、鳥海山を訪れる人の拠点でした。今もその役割は変わらないと、私たちは信じています。
母から料理を学び、バリスタの妻はコーヒーを淹れ、私たちは日々、旅人を迎え、送り出しています。
この場所を、次の世代につなぐために、私たちはここにいます。
なぜ改修するのか

<改修前の客室 10畳トイレ・シャワーなし>

<改修前の客室、6.5畳トイレ・シャワーなし>
施設は平成初期に建て替えられ、長期滞在の工事関係者向けに整備された「シンプルで必要最低限の設備」の構成でした。 壁は薄く、部屋にトイレ・シャワー設備等のない部屋の作りで窓からの眺望に配慮がない作りで、鳥海山を楽しみにして来られるお客様からは、「もっと鳥海山が良く見えれば」、「里山の雰囲気を感じたい」、「自然を感じたい」、「静かに滞在したい」、「プライベートな時間を大切にしたい」という声が多く、老朽化したお風呂についても「せっかく旅行にきたのだから特別な雰囲気を味わいたい」という設備に対するご要望、苦言をいただいておりました。そうした声が年々増えています。
私たちは帰省後に、まず、1部屋にトイレ・洗面、お風呂の設置に取り組みました。銀行からの借り入れを実施し、私財を投じて、お客様の滞在時間をよくすることに少しずつ取り組みました。 設備が良くなったお部屋は予約が多く、改めて施設の重要性を考えさせられました。
そこで、私たちは、さらに一歩進み、「部屋を広くし、ゆったりとくつろげる空間を作り、滞在の質を上げる」という決断をしました。

私たちのいる「にかほ市」
秋田県の南西部に位置し、日本海と雄大な鳥海山に囲まれた人口約22,000人の秋田県唯一のひらがな自治体です。 そのシンボルたる鳥海山は、海抜0mから2,236の頂上までの直線距離が16kmと非常に近く、独立峰として日本でも珍しい地形をもつ山です。 古来、信仰の対象として崇められ、麓の集落では今も修験者たちが伝えた文化が残り、住民により大切に受け継がれております。
<毎年5月に執り行われる大祭で舞われる国指定重要無形民俗文化財「チョウクライロ舞」約1200年続いている>
また、豊富な高山植物、海を眺めながらの登山、日本海を臨む鳥海ブルーラインのツーリングは、来た人を魅了し続けています。

鳥海山の珍しい地形は、私たちに様々な食の恵みも与えてくれます。
春、雪解けとともに山菜、サクラマス、梅雨明けから鳥海山の伏流水の栄養豊富な水で育った濃厚な岩ガキ、秋 新米 山にはキノコがあふれ、秋鮭、ハタハタ、冬が始まり鱈の季節。
山と海をダイレクトに味わえるこの土地をもっと知ってほしい。

秋田県およびにかほ市の宿泊数について
豊富な観光資源の一方で、コロナ禍以降、インバウンドを中心に東北全体では宿泊者数は回復してきておりますが、秋田県への宿泊者数は大幅に少なく、取り残されています。
<東北域内外国人宿泊者数の推移(宿泊者数・シェア)>

また、秋田県全体の観光客数は、回復傾向にありますが、にかほ市の観光客数の回復は停滞しております。
<秋田県・にかほ市の観光客推移>

私たちを取り巻く競争環境は厳しいものですが、世界中でここにしかない「鳥海山」が育んだ、自然、歴史、文化、食を滞在を通して広げ、地域を活性化させる使命が私たちにはあります。
そのために、白滝旅館は、お客様に選ばれる宿泊施設に変わる必要があるのです。
プロジェクト概要
改修内容
- 2階客室 6部屋 → 3部屋
- 部屋に檜風呂またはシャワー、専用トイレ・洗面を設置
- テラス付部屋を設置
- 鳥海山側に窓を設ける設計
工期:2026年1月〜春予定 総工費:約3,300万円補助金:750万円(確定)残額を自己資金あるだけと、銀行融資、このクラウドファンディングで実施。
目標金額について
本プロジェクトの1次目標金額は500万円です。これは、2階客室の改修をより良い形で実現するための一部費用(2,550万円の一部)に充てます。

<改修後イメージ、客室の一つに檜風呂を設置>

<改修後イメージ テラスから雪景色を楽しめる>

<改修後イメージ 広々としたベッドの部屋も整備>
もし支援が広がり、目標金額を超えた場合は、以下のようにプロジェクトをさらに発展させます。
- 800万円を超えた場合:大浴場の質的整備(浴室部・照明・水回りの改善)を実施します。

<現在の大浴場 雰囲気の良い檜調にリノベーション計画>
- 1,000万円を超えた場合:囲炉裏付きの客室に新たに専用風呂を設け、より滞在性の高い客室へと進化させます。
-
<現在の囲炉裏部屋 古い建物に近代的な設備を整備>
すでに本館2階の解体工事はすすんでおり、春に向けて着々とすすんでおります。
皆さまのご支援によって、この場所は一歩ずつ、より良い形へ育っていきます。
リターンについて
ご支援いただいた方には、私たちができることをささやかですがお返しさせていただきます。
ご支援いただいた方のお名前を掲載させていただくもの、実際にご宿泊いただくもの、地域をご案内させていただくもの、鳥海山の恵みが届くものなどをご用意させていただきました。

まだ、知らないこの地にぜひ興味をもっていただき、足を運ぶきっかけにもなりましたら幸せです。
このクラファンの意味
このプロジェクトは、私たちが覚悟を持って進めるものです。すでに私たちは、やると決めています。
それでもクラウドファンディングを行う理由はひとつです。
この場所の未来を、ここに価値を感じてくださる方と一緒につくりたいのです。
ここに価値を感じてくださる方と一緒に、この宿を、鳥海山を、この集落を、次の世代につなぎたいのです。

この場所を、「鳥海山を訪れる人の拠点、また戻れる場所」に育てていきたいと考えています。
最後に

昨年、私たちは娘を授かりました。この景色、この文化、この人のつながりを、この子の世代にも残したい。
そのために、今できることを一つずつ積み上げています。
もし、この想いに少しでも共感していただけたら、どうかこのプロジェクトに参加してください。
白滝旅館 齋藤大輔
最新の活動報告
もっと見る足場が取れました
2026/04/19 12:12こちらの活動報告は支援者限定の公開です。完成間近!
2026/04/01 23:07こちらの活動報告は支援者限定の公開です。改修進んでおります!
2026/02/27 07:00こちらの活動報告は支援者限定の公開です。
















コメント
もっと見る