
はじめまして。栃木県那須町で、プライベートサウナ&キャンプ施設「Mr.Forest」を運営しております。
私たちは、那須の豊かな自然の中で、日常を少し離れ、心と身体をゆっくり整えられる時間を届けたいという想いで、この場所を育ててきました。

慌ただしい毎日の中で、ただ静かに深呼吸をしたり、火を眺めたり、サウナのあとに余韻に浸ったりする時間は、思っている以上に人を元気にしてくれると感じています。
Mr.Forestも、そんな“自然の中で自分を整える場所”として、訪れてくださる方にとって心地よい時間を届けられるよう、一つひとつ手をかけながら運営してきました。

そして今回、その体験をもっと多くの方に届けるために、新たな一歩として宿泊キャビンの新設に挑戦します。
「Mr.Forest」とは...
Mr.Forestは、那須の森に囲まれたプライベートサウナ&キャンプ施設です。

大きな魅力は、自然の静けさの中で、サウナとアウトドアの両方をゆっくり楽しめること。
喧騒から少し離れ、木々に囲まれながら過ごす時間は、ただ“泊まる”だけではない特別な体験になります。


サウナで整ったあとに外気浴を楽しみ、焚き火を囲み、那須の澄んだ空気の中で過ごす。
そんな流れそのものが、Mr.Forestならではの魅力です。

一方で、これまでの宿泊スタイルはテント泊が中心だったため、キャンプに慣れている方には魅力がある反面、初心者の方や悪天候の日、寒い季節には少しハードルの高い面もありました。

だからこそ今回、Mr.Forestの魅力はそのままに、もっと気軽に、もっと快適に過ごせる場所へアップデートしたいと考えています。
このプロジェクトで実現したいこと
今回のプロジェクトで実現したいのは、【手ぶらで泊まれる宿泊キャビン】の新設です。
※イメージ画像
これまでのMr.Forestは、キャンプならではの魅力を味わっていただける一方で、

というお声も多くいただいてきました。
そこで今回、コンテナハウス型の宿泊キャビンを導入し、ベッドで快適に泊まれる新しい宿泊スタイルをつくりたいと考えています。
このアップデートによって、
※イメージ画像
・キャンプ初心者の方でも利用しやすくなる
・悪天候や寒い季節でも快適に過ごせる
・サウナのあと、そのままゆっくり休める
・自然の中にいながら、清潔で心地よい滞在ができる
そんな、これまで以上に満足度の高い体験をお届けできるようになります。
私たちが目指しているのは、ただ便利な宿泊施設をつくることではありません!!
那須の森の中で、北欧の休日のように、静かで温かい時間を過ごせる場所をつくることです。
木のぬくもりを感じる空間で、サウナで整い、自然に包まれながらゆっくり休む。
そんな“心がほどける時間”を、もっと多くの方に届けたいと思っています。

プロジェクト立ち上げの背景
施設を運営する中で、ありがたいことに多くのお客様にお越しいただいてきました。


その中で、繰り返しいただいていたのが、
「サウナはすごく良いけど、テント泊には少し不安がある」
「もっと気軽に泊まれたら利用しやすい」
「自然の中でゆっくり過ごしたいけれど、寝る環境は快適な方が嬉しい」
というお声でした。
私たち自身、テント泊の魅力はよく分かっています。
ただその一方で、誰もが気軽に楽しめるスタイルではないことも感じてきました。
せっかく那須の自然の中で、サウナも景色も空気も楽しめる場所があるなら、もっと幅広い方に、この魅力を届けられる形にしたい。

北欧の人たちが、自然の中のサマーハウスで静かな休日を楽しむように、那須にも、自然の中で整い、休み、また前向きに日常へ戻っていける場所をつくりたい。
そう考え、今回の宿泊キャビン新設を決意しました。
ご支援いただいた資金の使い道
ご支援いただいた資金は、主に以下の費用に充てさせていただきます。

・宿泊用コンテナハウスの設置費用
・内装工事費
・ベッドや寝具、家具などの宿泊設備費
・電気・照明・空調などの環境整備費
・これらに付随する人件費
・クラウドファンディング手数料
など、皆さまからのご支援によって、Mr.Forestは“テント泊だけの施設”から、“より快適に那須の自然を味わえる宿泊施設”へ 大きく進化することができます。
完成後の施設イメージ
新たに導入する宿泊キャビンも含め、最大8名が利用可能な滞在を想定しています。
※イメージ画像

自然の静けさ、森の空気、サウナの心地よさはそのままに、これまでよりも気軽に、そしてより快適に滞在していただける場所を目指しています。
※イメージ画像

「キャンプは少しハードルが高い」そんな方にも、“那須で過ごす特別な休日”を体験していただけるはずです。
※イメージ画像

現在の準備状況

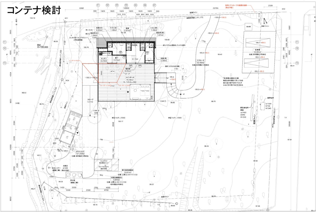
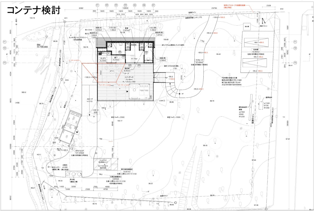
現在、6月1日グランドオープンを目指して、宿泊キャビン導入に向けた準備を進めています。
設置場所や導線、景観とのバランスも含めて検討を重ね、那須の森の魅力を損なわない形で整備を進める予定です。
また、内装や家具についても、木のぬくもりや落ち着いた空気感を大切にしながら、Mr.Forestらしい世界観を形にしていきます。
Instagramでは約3,700人、公式LINEでは392人の方にご覧いただいており、ここまで支えてくださった皆さまと一緒に、この新しい一歩を実現したいと考えています。

リターンについて
ご支援いただいた皆さまに、いち早く新しいMr.Forestを体験していただけるよう、現在リターンを準備しています。
予定している内容は、たとえば以下のようなものです。
● 3,000円|全力応援プラン
お礼のメッセージ + オリジナルステッカー
● 10,000円|【個人用】
Mr.Forest 刻印ボード(芳名板)
● 20,000円|【法人用】
Mr.Forest 刻印ボード(芳名板)
● <超早割>50% OFF 33,000円|
【平日】1棟貸切宿泊券 〜4名まで
● <いつでも割引プラン> ※1年間有効
25% OFF予約チケット 10,000円
● <超早割>50% OFF 59,500円|
【休日平日】1棟貸切大人数プラン〜8名
● 200,000円|【オーナー気分】
年間優先予約権 + 宿泊2回分
< 1棟貸切宿泊券はサウナ入り放題 / バーベキュー用具レンタル代込み >
他にもリターンが盛り沢山!!
「泊まりに行きたい」という方にも、「すぐには行けないけれど応援したい」という方にも、参加していただきやすい形でご用意したいと思っています。
※詳しくはリターン詳細をご覧ください。

スケジュール
4月下旬: クラウドファンディング開始
5月中旬: キャビン建築・内装工事完了
5月下旬: プレオープン、リターン発送開始
6月1日: 新施設としてグランドオープン!
最後に

Mr.Forestは、那須の自然の中で、自分を整え、心から休める場所として育ててきました。
今回の挑戦は、もっと多くの方に、この場所の心地よさを届けるための挑戦です。
自然の中で過ごす時間。サウナのあとの余韻。朝の澄んだ空気。静かな夜の贅沢。
そんな一つひとつを、今までよりもっと快適に、もっと気軽に楽しめる場所へ。
この想いに共感していただけましたら、ぜひ応援よろしくお願いいたします。
那須の森に、新しい癒やしの拠点を一緒につくっていただけたら嬉しいです。
プロジェクトに関するお問い合わせ
Mr.Forest
簡易宿所営業許可取得済:栃木県指令北保第040500595号
〒325-0303 栃木県那須郡那須町高久乙3374ー606
info@mr-forest.com
上記メールアドレス、公式LINE、または各種SNSのDM(ダイレクトメッセージ)にて受け付けております。






コメント
もっと見る