【自己紹介】

はじめまして!
空き家地方創生株式会社です。
私たちは、香川県坂出市を拠点に、空き家・空きビルの再生を通じて、地域と人をつなぐ場づくりに取り組んでいます。
これまで全国で宿泊施設の企画・運営にも携わり、地域に人の流れを生み出す取り組みを行ってきました。
今回、坂出商店街にある空きビルを活用し、人が集まり、滞在し、挑戦が生まれる拠点「AKIYAto BASE」を立ち上げます。
これは単なる施設づくりではありません。
本プロジェクトでは、この場所を一緒につくる“0期メンバー”として関わってくれる仲間を募集します。
【なぜ、この場所から始めるのか?】
坂出には、使われていない空きビルや空き家が残っています。かつて人が集まり、賑わっていた場所も、今では通り過ぎるだけの風景になりつつあります。
このビルも、その一つでした。
古く、使いづらく、手を入れるにはコストもかかる。不動産として見れば、決して条件の良い物件ではありません。

普通なら、そのまま使われることなく、いずれ解体されていく可能性が高い建物です。
そして実際に、このビルがある商店街も、今は人通りが多いとは言えず、アーケードの解体も予定されています。
かつて賑わっていた場所が、少しずつ役割を失っていく現実があります。

でも、私たちはそこに違和感がありました。
「この場所は、本当にこのまま終わっていいのか?」
人がいなくなった場所ではなく、もう一度、人が集まる理由をつくれる場所なんじゃないか。
だったら、この流れを変えたい。

ただの再生ではなく、人が集まり、滞在し、次の挑戦につながる“拠点”として蘇らせる。
単発のイベントでは終わらない、日常的に人の流れが生まれる場所をつくる。
このビルだからこそ、やる意味がある。
私たちは、この場所からその一歩を始めます。
【AKIYAto BASEとは?】


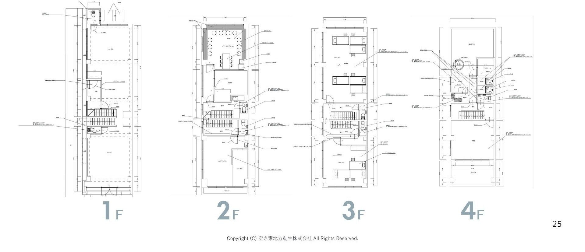
坂出商店街の空きビルを再生し、複数の機能が交差する“まちの拠点”へと生まれ変わります。
飲食・仕事・滞在が自然に交わることで、ビル全体で人の流れが生まれ続ける設計にしています。
1階|飲食・物販・チャレンジショップ
2階|シェアキッチン・コワーキング
3・4階|宿泊・サウナ

デザインコンセプトは「坂出ブルックリン」。
つくり込みすぎず、古いビルの素材や余白を活かすことで、使う人によって変化し続ける空間を目指します。
完成された場所ではなく、関わる人によって育っていく場所です。

この場所では、こんな時間が生まれます。
・ふらっと立ち寄って、誰かと話す夜
・チャレンジショップで、自分の商売を試す
・イベントで、新しいつながりが生まれる
・滞在しながら、まちと関わる
ここは「消費する場所」ではなく、関係が生まれる場所です。
来るたびに少しずつ、自分の居場所になっていく。
そんな場所を目指しています。
【プロジェクトメンバー】

本プロジェクトは、不動産を通じて坂出のまちづくりに取り組んでいる「株式会社レッツ」との共同運営です。
また、各分野の専門事業者の皆さまと連携しながら、チームでプロジェクトを進めています。
■宮前 昌弘|空き家地方創生(株)
プロジェクトプロデューサー
企画・事業設計を担当。AKIYAto BASE全体の構想をリード。
■内海 ありさ|空き家地方創生(株)
クリエイティブディレクター
空間デザインを担当。施設全体の世界観と体験設計を担う。
■杉山 祐樹|空き家地方創生(株)
プロジェクトサポート
元地域おこし協力隊。現場のあらゆることに関わりながら、プロジェクトを支える存在。
■宮前 裕花|空き家地方創生(株)
コミュニティコネクター
家族での暮らしを通じて地域と関わり、日常の中から人と人のつながりを生み出していく存在。
■津坂 拓哉|(株)レッツ
プロジェクトマネージャー
プロジェクト全体の進行を管理。坂出との接点をつくりながら現場を支える。
■牧本 由美子|(株)レッツ
PRディレクター
広報・情報発信を担当。プロジェクトの魅力を地域内外へ届ける。
■香川 敏彦|(株)かがわ敏彦工務店
コンストラクションディレクター
改修・施工を担当。既存建物を活かした空間づくりを実現。
【“はじまり”に関わるということ】

このプロジェクトは、完成された場所にお客様として来てもらうものではありません。
“つくる側”として関わってほしいと思っています。
・これから何かを始めたい人
・まちに関わりたい人
・ただ面白そうと思った人
関わり方は自由です。
ただの支援ではなく、この場所の“当事者”になれることが、最大の価値です。
《0期メンバー 本條 大地さん》
坂出市在住。店舗を持たず、スパイスカレーを提供する「This is Curry」として活動。「坂出で何かやりたいと思いながらも、自分のお店を持つにはハードルが高く、間借りやイベントで活動を続けてきました。
そんな中で出会ったのがAKIYAto BASEです。
宿やサウナで人が集まるこの場所で、“サ飯としてのカレー”を届けられるのも楽しみです。
この場所ができることで、坂出に新しい流れが生まれると思っています。
自分もその一人として、しっかりチャレンジしていきます。」
【リターンについて】
このプロジェクトでは“モノ”ではなく、この場所に関わる”体験”や”役割”をリターンとしてご用意しています。
《0期メンバー認定証について》

本プロジェクトでは、リターン②~⑧にご支援いただいた方に「AKIYAto BASE 0期メンバー会員証」を発行いたします。
AKIYAto BASEは、完成された場所ではなく、関わる人とともに育っていく拠点です。
その最初のタイミングで関わっていただいた方を、“0期メンバー”として認定し、この場所のはじまりを共につくった存在として記録していきます。
会員証はデジタル形式で発行し、ご支援いただいたリターン(ランク)に応じて、今後受けられる特典や関わり方が異なります。
今後、施設内での特典やサービスのきっかけとしても活用していく予定です。
この場所の“はじまり”に関われるのは、今回だけ。
立ち上げに関わった証として、ぜひ受け取っていただければと思います。
【リターン内容】
①スタートサポーター(3,000円)
②AKIYAto BASE 0期ブロンズメンバー(3,000円)
③AKIYAto BASE 0期シルバーメンバー (5,000円)
④AKIYAto BASE 0期DIYメンバー (5,000円)
⑤AKIYAto BASE 0期ゴールドメンバー(10,000円)
⑥AKIYAto BASE 親善大使(50,000円)
⑦AKIYAto BASE 応援団長(100,000円)
⑧AKIYAto BASE コーポレートメンバー(100,000円)
※企業としてプロジェクトに参画したい方向けのプランです。
【資金の使い道】

今回のクラウドファンディングでご支援いただいた資金は、AKIYAto BASEの改修工事費用の一部として活用させていただきます。
築年数の経過したビルを安全に活用し、人が集まり、滞在し、挑戦できる空間へと生まれ変わらせるためには、内装・設備・インフラ整備などに多くのコストがかかります。
今回のご支援は、その最初の一歩となる大切な資金です。
【現在の準備状況】
改修プラン打ち合わせ
チャレンジショップ説明会
現在、AKIYAto BASEは実現に向けて具体的に動き出しています。
改修プランの検討・見積もり作成、許認可の調整、同時進行でチャレンジショップ出店者や参画企業の募集も開始し、この場所に関わる仲間が少しずつ増えています。
【最後に】

このプロジェクトは、単なる空きビルの再生ではありません。
坂出というまちに、もう一度「人の流れ」と「挑戦の循環」を生み出す挑戦です。
そしてそれは、私たちだけでは絶対に実現できません。
この場所は、完成されたものを提供する場所ではなく、関わる人によって育っていく場所です。
だからこそ、この立ち上げのタイミングで関わってほしいと思っています。
ここに関わった人が、「この場所は自分たちでつくった」と言えるような、そんな拠点にしたい。
坂出に、もう一つの居場所を。そして、挑戦できる空気を。
この最初の一歩を、ぜひ一緒に踏み出してください。
あなたと、この場所で出会えることを楽しみにしています。
最新の活動報告
もっと見る
AKIYAto BASE|チャレンジショップ事業プレゼンを開催しました
2026/04/13 11:14チャレンジショップ事業プレゼンを開催しました。出店希望7組による、熱量の高いプレゼン。坂出への想いや、やりたいことがしっかり伝わる内容で、こちらまでワクワクする時間でした。出店者同士のコラボの話も生まれ、この場所の可能性を強く感じています。AKIYAto BASEは、完成された施設ではなく関わる人と一緒に育っていく場所です。今回プレゼンに参加してくださった皆さんも、そしてクラファンを通じて関わってくださる皆さんも、この場所の「はじまり」を一緒につくる仲間だと思っています。ここから、この場所がどう育っていくのか。ぜひ一緒に見届けてください。 もっと見る
坂出AKIYAto BASE、ついに解体スタート!
2026/04/07 15:23本日、AKIYAto BASEの解体工事がスタートしました。長い間、この場所を支えてきた建物。その歴史を感じる空間が、いよいよ次のステージへ進みます。正直、想定以上の大変さもあります。でも同時に、「ここからどう生まれ変わるのか」というワクワクも大きくなっています。このプロジェクトは、ただのリノベーションではなく、人が集まり、挑戦が生まれ、まちに新しい流れをつくる拠点づくりです。その“はじまりの一歩”が、今日でした。ご支援いただいている皆さま、本当にありがとうございます。これから少しずつ、この場所の変化を共有していきますので、ぜひ一緒に見守っていただけたら嬉しいです。 もっと見る




コメント
もっと見る