神楽坂でシェアオフィス兼コミュニティスペースを作り、発信拠点を創りたい!

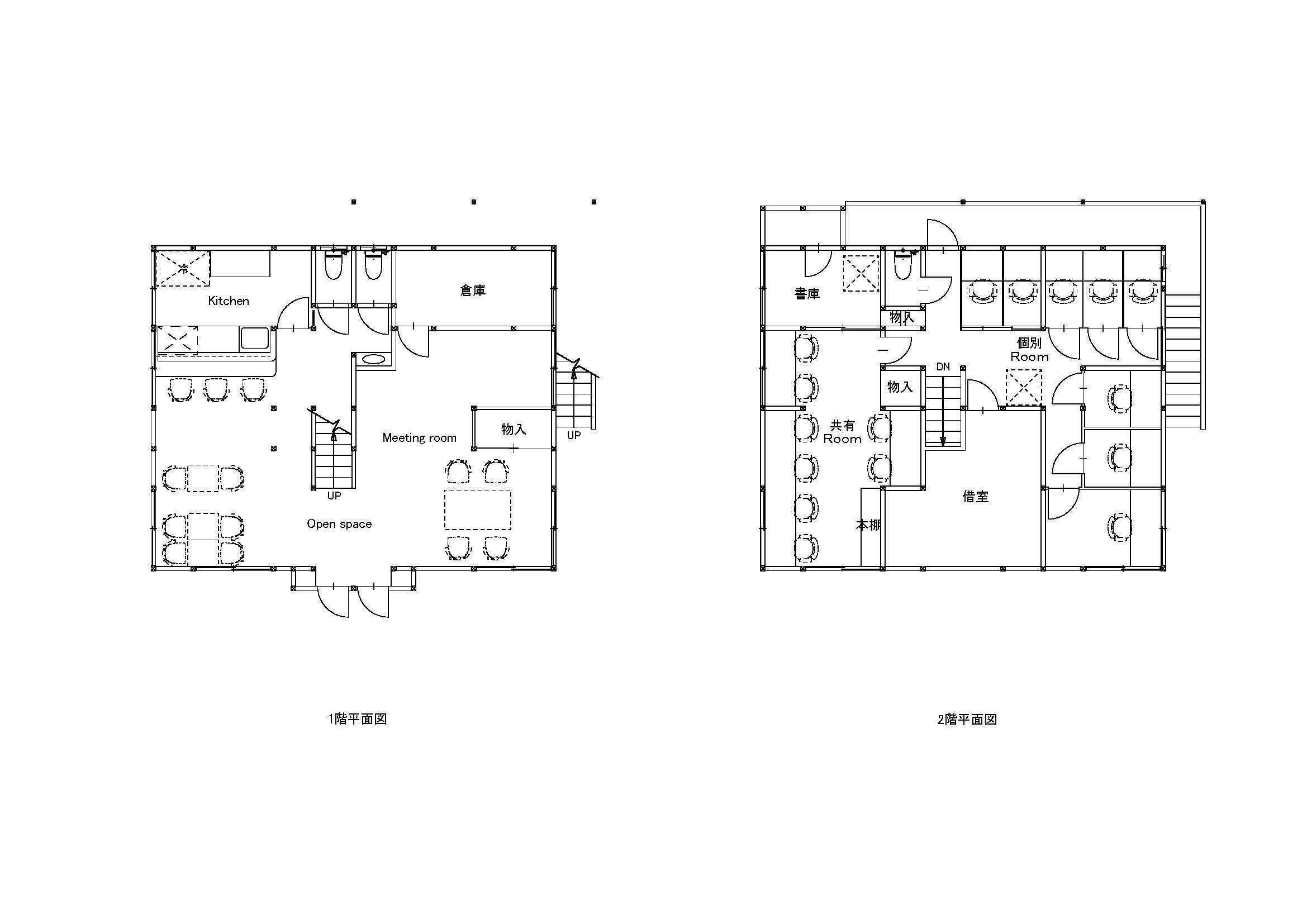
神楽坂6丁目の空き家を1棟借り、改修いたします。2階にはシェアオフィスと個室ブースを、1階にはキッチンスペースと会議用の個室、作業スペースを作る予定。1階は様々なことに使えるよう企画したいと考えています!絡むメンバーにより計画は調整しながら、発展性のある場にしたいと考えております。

現在の支援総額

0

0%

目標金額は500,000円

支援者数

0

募集終了まで残り

終了

このプロジェクトは、2019/08/01に募集を開始し、 2019/09/15に募集を終了しました

神楽坂でシェアオフィス兼コミュニティスペースを作り、発信拠点を創りたい!

現在の支援総額

0

0%達成

終了

目標金額500,000

支援者数0

このプロジェクトは、2019/08/01に募集を開始し、 2019/09/15に募集を終了しました

神楽坂6丁目の空き家を1棟借り、改修いたします。2階にはシェアオフィスと個室ブースを、1階にはキッチンスペースと会議用の個室、作業スペースを作る予定。1階は様々なことに使えるよう企画したいと考えています!絡むメンバーにより計画は調整しながら、発展性のある場にしたいと考えております。

このプロジェクトを見た人はこちらもチェックしています

新しいアイデアや挑戦を、アプリで見つけるcampfireにアプリが登場しました!
App Storeからダウンロード Google Playで手に入れよう
スマートフォンでQRコードを読み取って、アプリをダウンロード!