2019/08/17 18:00

おかげさまで、支援金が100,000円を突破しました!
支援していただいた方々、感謝申し上げます。
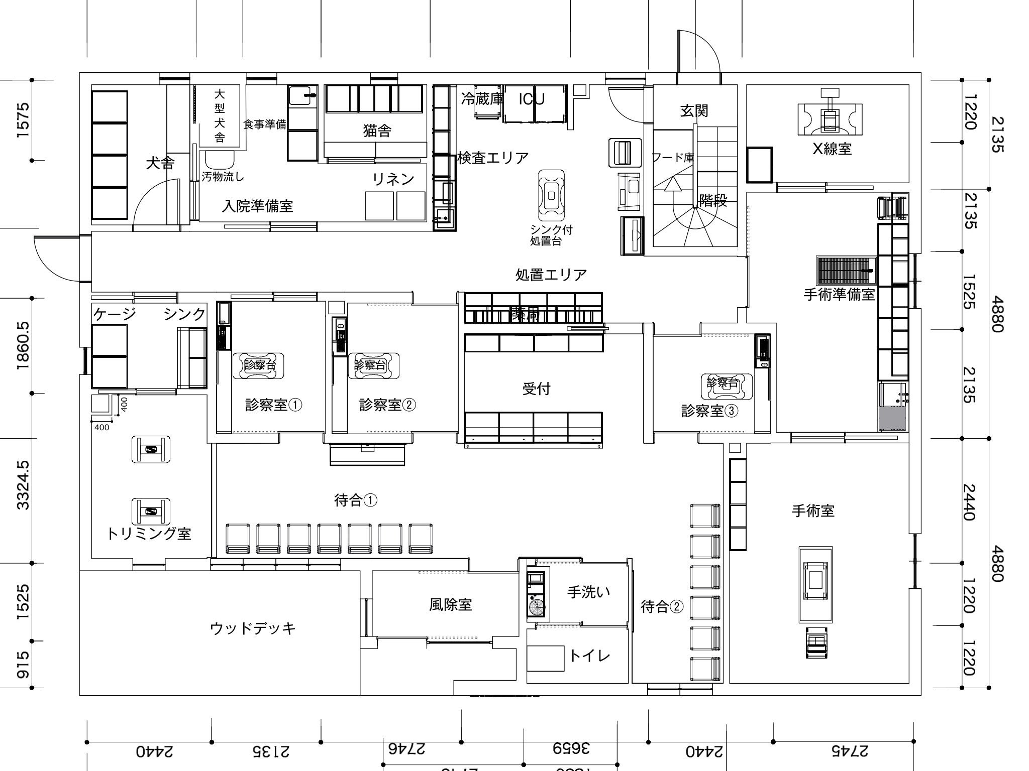
さて、先日に病院の設計図が完成しました!
当初の予定通り、ワンちゃん用とネコちゃん用の待合室、診察室を設置しました。

現在、内装設備を選定しており、決まり次第公開していく予定です。
これからも温かいご支援、応援のほどよろしくお願いいたします。




現在の支援総額
280,500円
目標金額は3,000,000円
支援者数
41人
募集終了まで残り
終了
このプロジェクトは、2019/08/05に募集を開始し、 41人の支援により 280,500円の資金を集め、 2019/09/30に募集を終了しました




現在の支援総額
280,500円
9%達成
目標金額3,000,000円
支援者数41人
このプロジェクトは、2019/08/05に募集を開始し、 41人の支援により 280,500円の資金を集め、 2019/09/30に募集を終了しました

おかげさまで、支援金が100,000円を突破しました!
支援していただいた方々、感謝申し上げます。
さて、先日に病院の設計図が完成しました!
当初の予定通り、ワンちゃん用とネコちゃん用の待合室、診察室を設置しました。

現在、内装設備を選定しており、決まり次第公開していく予定です。
これからも温かいご支援、応援のほどよろしくお願いいたします。