
はじめまして。
どれぃぶの松川智子です。今回初めてクラウドファンディングに挑戦させていただきます。
現在、愛知県西尾市永吉町で、ハンドメイドのアクセサリーをショップで制作、販売しています。
私は、22年前に活動を開始して以来、ずっと女性が輝ける場所を提供したいという思いで活動しています。
ママ達が、家事や子育てをしながら、好きな事、得意な事で収入を得られるハンドメイド。そんなハンドメイドの素晴らしさ、温かさを伝える為に、ハンドメイドイベントの開催、委託作家さんを募って、地元のショッピングセンターに出店、ハンドメイド教室を開講、イベントなどを通じて知り合ったハンドメイド作家さん達に、ハンドメイド教室の講師としてカルチャースクールなどで活動してもらったり、いろんな企業様に、講師の派遣もしています。
今後もハンドメイドを通じて、さまざまな形で広く活動をしていきたいと思います。
ショップ営業日は毎週金・土曜日のみで、月~木曜日は同ショップにてアクセサリー教室を開催しています。ショップはたった3坪と、狭いので、教室をしながらの販売営業ができませんでした。

今回市内のショッピングセンター『おしろタウンシャオ』さんより出店のお話をいただきました。


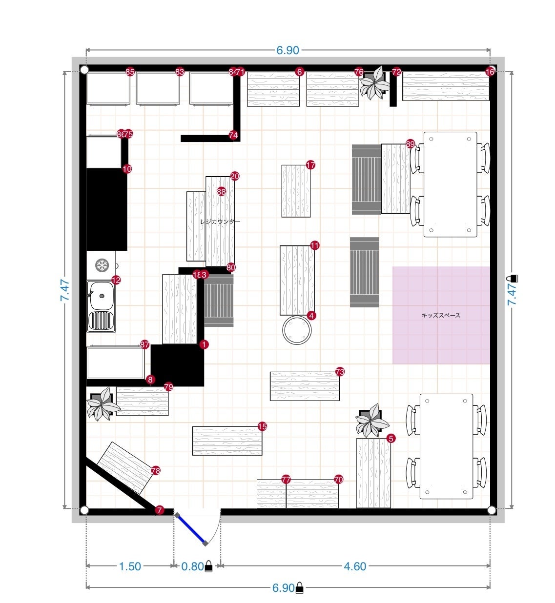
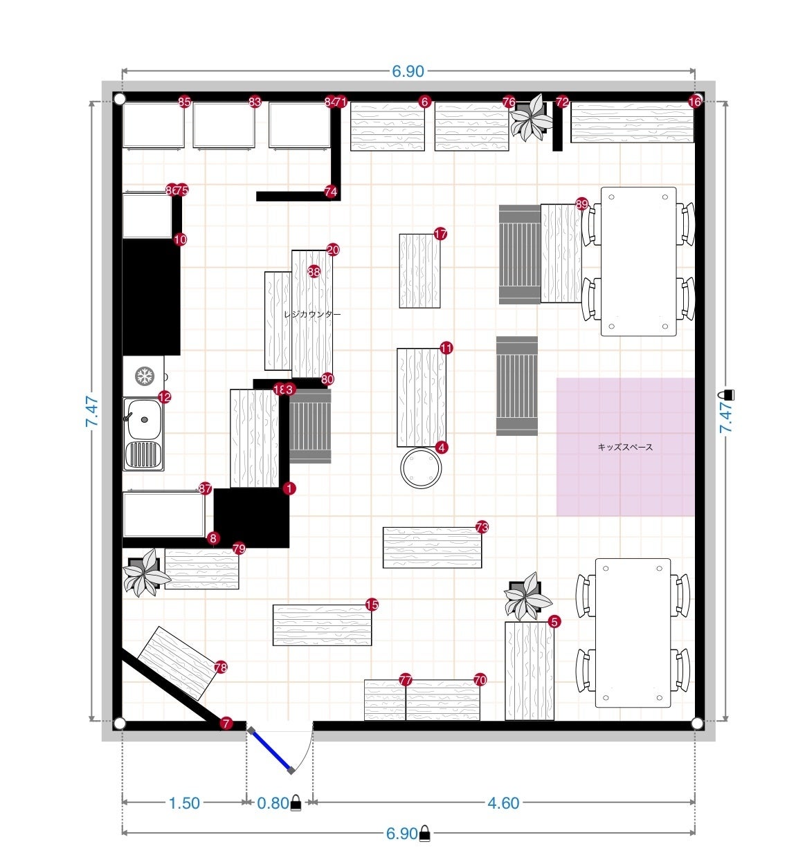
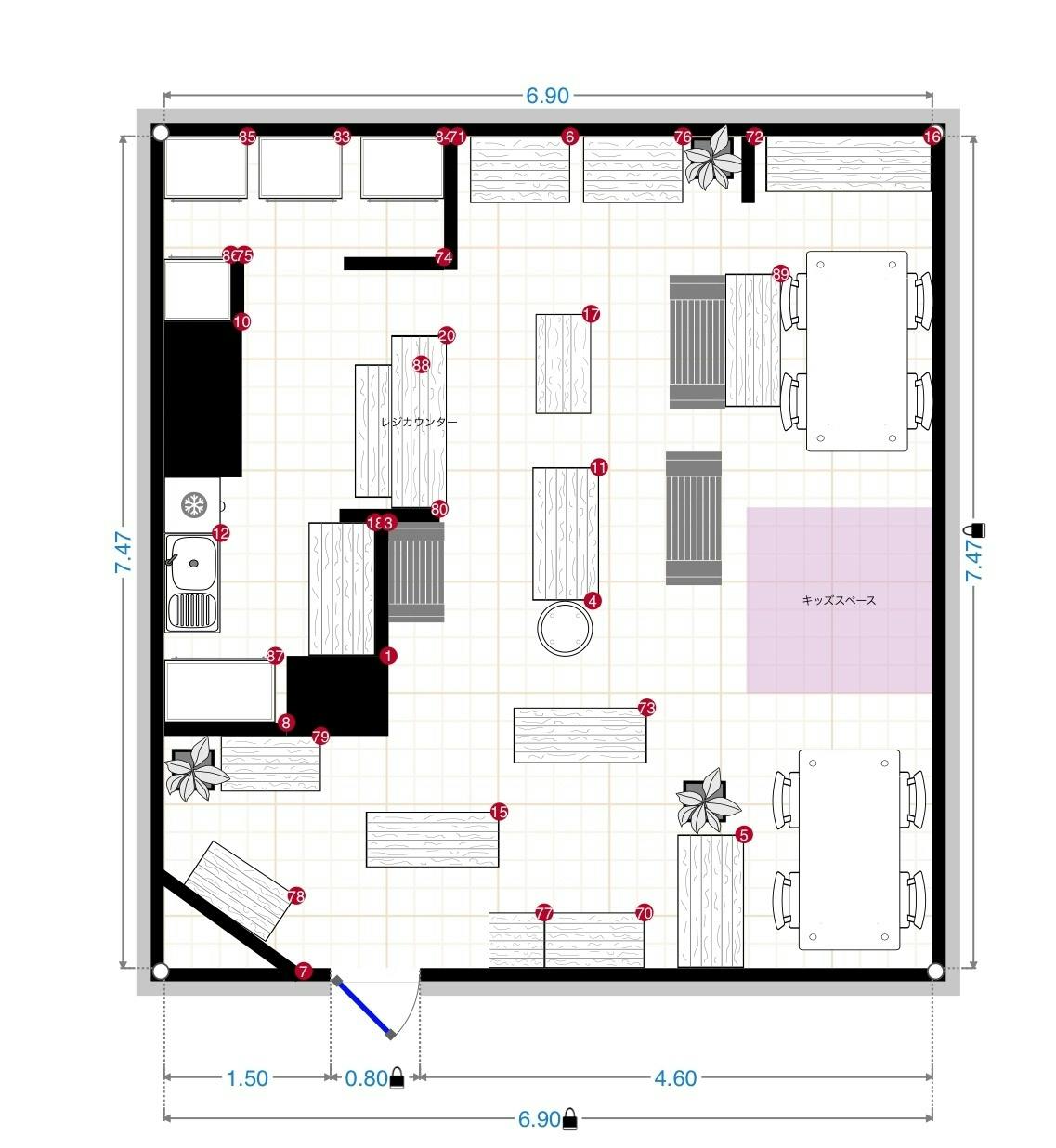
私にとって15坪のショップはもったいないくらい広い場所ですが、ここなら『より多くの方たちに、のびのびとスキルを高めるため、学んでいただく事ができる!』と思い、このプロジェクトを立ち上げました。

実現したいのは、『子育てを頑張ってるママが子どもを育てしながら好きな習い事をしたり、教室の講師や委託作家として活躍できるお手伝いをする場所を作る事。』
アクセサリー教室で学んで頂き、将来経済的に自立できる、『プロのアクセサリー作家』としてスキルを高めて、自作のアクセサリーを販売したり、教室を開講したりできる様にお手伝いします。教室開催の場所は15坪のショップの内、1/3くらいです。


また、地元を中心にすでに活動している委託作家さんやハンドメイド講師さんが、得意のハンドメイドで今以上に、収入を得られる様な場所にして行きたいと思つています。
そのために教室開催の場所と、目の届くところで子どもさんを遊ばせてあげられるキッズスペースを作りたいです。

ショップの名前である『どれぃぶ』とは、『夢=ドリーム』の意味で、フランス語からヒントを得た造語です。
女性の夢、自分の夢を叶える。
子育てを頑張ってるママが、子どもを育てながら好きな習い事をしたり、その先には作家さんや講師としても活躍できる、そのお手伝いをしたいです。

私が生まれ育った愛知県西尾市は、海があり、自然に恵まれた所です。
西尾市の名産品と言えば『抹茶』
西尾市の中学校を卒業した人のほとんどは、中学で『お茶摘み』を経験しています。私は、父の実家にお茶畑があったので、小学生のころから、お茶摘み体験をしていました。
茶道の師範も持っていますので、『西尾の抹茶』で認定講座の受講生さんに、時にはお抹茶で一服なんてこともしていただきたいです。

自分の妹に子どもが生まれた時、彼女を見ていて、小さい子がいることは、お金がかかる反面、働きたくても、外に働きに行く事もままならないんだなぁ、、、と言う事を強く感じました。
一方、当時私は、不妊治療をしていましたが、結局子どもを授かる事ができませんでした。
友達からは「子どもがいないから気楽に何でもできて良いよね」などと言われ、悔しい思いをして、落ち込んだりもしました。
でも、だったら『子どもさんを育てているママ達の代わりに私ができる事をやろう!』と思い、ハンドメイド仲間の子育て中のママ達の手作り品をお預かりして、販売をしてきました。
ハンドメイドは、子育て中で外に働きに行けないママも、子どもやパパとの時間を大切に、家に居ながら収入が得られらる『好き、得意をお仕事にできる』素晴らしいお仕事と言うことを、今まで以上にもっともっとたくさんの人に広めていきたいです。そのために、子どもさんが隣で遊んでいて、安心して習い事ができる、そんな場所を西尾に作りたいです。

22年前、アメリカ発祥で、お母さんの手作りのお人形である、『カントリードール』の可愛らしさと温かさに惹かれ、カントリードール作家として制作やワゴンで販売などをしてきました。
当時は、ハンドメイド品の販売の場所はフリーマーケットなどしかありませんでした。ハンドメイドのイベントがないのなら自分で立ち上げようと『カントリーマーケットin西尾』と言うハンドメイドを立ち上げます。
その1年後、名古屋のショッピングモールに知り合いの紹介で、ワゴンショップという形で出店させて頂いたのをきっかけに、地元のショッピングセンターに声をかけて頂き、ワゴンショップを出店しました。『手作りマーケットin西尾』を通じて知り合った作家さんにお願いして、作品をワゴンショップに委託して頂き、年に数回、出店するようになりました。
ワゴンショップを始めた頃は、空前のビーズアクセサリーブームでした。私のショップでも、何人かの方のビーズアクセサリーをお預かりしていました。
ワゴン出店している中、他店でアクセサリーを購入されたお客様が、「ビーズのアクセサリーってすぐに壊れるよねー」と言う何気なく仰られた言葉に、衝撃を受けました。実際にお預かりしていたアクセサリーも、プツンと糸が切れてしまったり、金具が外れたりしてしまう。

『お金を頂戴して販売している以上、それではいけない』と思い、カントリードールを作ると同時に自分自身もアクセサリー作りの勉強を始め、破損したアクセサリーの修理をするようになりました。
一方、自分で作っていたアクセサリーが好評を頂いていたので、カントリードール作りを止め、本格的にアクセサリー作家として活動する様になりました。
その時から、可愛いのは当然の事、長持ちするアクセサリーとは?と常に研究しながら制作を。
たくさんのお客様に直接販売もする事を通して、お客様からの様々なご意見やご要望を伺う事ができ、『丈夫で長持ちする』に加えて、『使いやすい』と言う事もアクセサリーには大切なんだと痛感させられます。
あらゆる材料を使い比べたて試したり、色んな作り方をしたり引っ張ったりの耐久実験をしたりと研究しました。その結果、金具の質や処理の仕方で大きく異なると判明、丈夫な金具を、〇〇の種類は何処、△△の種類は何処と、材料の種類ごとに採用することにしました。ですので、私の仕入れ先は20軒は越えています。

アクセサリー作家として10年程活動した時、『コットンパール』と言う素材が登場しました。『コットン=綿=軽い』素材の持つカジュアルさももちろんですが、『軽い』と言う事がとても好評でした。
かなりのブームになり、コットンパールが品切れ状態に・・・材料がなければ制作ができない!
そんな時に、常連の問屋さんで紹介してもらい、『水に浮く程軽くて、しかも水や汗にも安心』なパールに出合います。扱いやすく品質もとても良いので、『エンジェルパール︎®』という名前で商標登録をして、自店で独占販売を始めました。こちらはコットンパールと同じくらい軽い上、大人の女性にぴったりの高級感が魅力的です。

更に、コットンパールは穴が貫通してない=不良品が多くあったため、『制作キット』を作って販売ができませんでしたが、エンジェルパール®に代えてからは、完成品だけでなく、『制作キット』として販売できる様になりました。
好調だったワゴンショップもショッピングセンターの閉店と共に辞めなくてはいけなくなり、その後、細々とイベント出店をしていました。
そんな時、当時のお客様から、「どこへ行けば買えるの?」と言うお言葉をたくさん頂き、旧店舗をお店としてお借りできるご縁に恵まれ、自分のお店を持つことの楽しさを知ることになります。そのお店は2件のお店で共有して利用していたので、単独のお店が持ちたいと思い、6年前に西尾で一番小さいセレクトショップ『クラフトハウスどれぃぶ』をオープンしました。3坪トイレ無しのショップは、狭いながらにとても居心地の良い空間です。
オープンの1年後、アクセサリー教室を開講しました。何人かの生徒さんが集まって下さり、毎月1回『アクセサリーステップアップ教室』として始まります。

販売の方では、苦手だったSNSを頑張って、SNSで発信しての集客にも取り組みました。そんな努力を評価していただき、2015年には西尾商工会議所より、頑張ってるお店に贈られる『頑張ってる店賞』を頂きました。
ショップが3坪と狭いので、教室は店の定休日を利用していましたが、徐々に生徒さんが増え、ショップ営業日をだんだん少なくして現在は週2日の営業に。定休日を知らずにご来店下さったお客様に、お断りをしなくてはいけなく、心苦しい思いでした。この先も、せっかく来て下さったお客様をいつもお迎えしたい!・・・と思い、営業と教室が同時にできるくらいの広い場所を探すようになりました。
そしてありがたい事に、『おしろタウンシャオ』の方に声をかけていただき、あまりにも規模の大きいお話しに悩みましたが、周りの人達の後押しもあり、出店しようと思いました。

今回のプロジェクトでご支援いただいた資金は、パトロン様へのリターンの材料費と、教室スペースの充実、テーブル、イス、電源の確保や明るい場所で作業ができる様に、照明器具、また、教室のすぐ隣で安心して子供さんを遊ばせておける、キッズスペースを作る事などの実現のために使わせていただきます。

現在は、何もない店内ですが、9月下旬に内装工事が終了する予定ですので、その後、教室スペースづくりや、キッズスペース設置をすすめます。



◆女性の自立に対して応援をして下さる方は、お花、レセプション参加、お礼メールの『お祝いコース』にご支援くださいます様お願いいたします。

◆どれぃぶの講座を体験、体感してみたい方は、認定講座、通信講座モニター、お試し教室などの『体験コース』にご支援下さい。

◆どれぃぶ独自の材料、エンジェルパールにご興味がある方は、エンジェルパールアクセサリーの完成品やキットなどの『商品コース』にてお試しください。

※すべてのリターンにお礼メールが付きます。
リターンの商品はには選ぶ楽しさがあります。特にレセプション参加の女性向けには、エンジェルパール®全9色、誕生石12か月、金具3色の全324通りからご自分の1点をお作りいたします。

私の強みはズバリ『転んでもタダでは起きない』と言う事だと思っています。
これまで、数々の失敗や挫折を経験してきましたが、必ずその後の役に立てる!と言う気持ちで乗り越えて来ました。
今回、広いショップに移転することは、私にとって大きな大きな挑戦です。そして、教室ができる場所を作る事で、そんな私の経験や、長年ハンドメイドに関わって来た経験を、少しでもお伝えできれば良いなぁと思っています。
子育てを頑張ってるママ達が、『ハンドメイドのアクセサリー作り』を通して、お家にいても作る事ができ、いずれは作家さんや講師として、好きなお仕事でキラキラ輝くお手伝いができたら、と言う思いでこのプロジェクトを立ち上げました。
そんな場所を作ることは私の長年の夢であり目標でした。
皆様どうぞ応援をよろしくお願い致します。
どれぃぶ 松川智子
<All-or-Nothing方式の場合>
本プロジェクトはAll-or-Nothing方式で実施します。目標金額に満たない場合、計画の実行及びリターンのお届けはございません。
最新の活動報告
もっと見る天使のクローバーキット 作り方Instagramライブ配信します。
2019/11/12 23:01こちらの活動報告は支援者限定の公開です。リターンの品を発送しました。
2019/10/29 10:12こちらの活動報告は支援者限定の公開です。
10月10日ショップは無事オープンしました!
2019/10/12 18:04こんにちは。どれぃぶ 松川智子です。10月10日10時、『どれぃぶ』はおしろタウンシャオに無事オープンすることができました。このチャレンジのお花を届けて下さった、パトロン様からのスタンドフラワーを外に飾つて頂きました。当日は、本当にたくさんの方がご来店下さり、また、お祝いかけつけて下さいました。キッズコーナーでは、お母さんがお買い物中、子どもさん達が、楽しそうに遊んでくれてました。教室開催はこれからです。これから、更に頑張ります!どれぃぶ 松川智子 もっと見る




コメント
もっと見る