皆さんはじめまして!ぶそん市事務局代表の黒田 淳一(くろだ じゅんいち)と申します。

たくさんのプロジェクトの中から、興味をお持ち頂き、ありがとうございます!
今回、大阪市都島区の蕪村通り商店街活性化に向けた、空き店舗をリノベーションし、1日から使える
レンタルキッチン・ポップアップストア・多目的ルームの複合チャレンジショップ 「ARCH -アルヒ-」を
オープンします。
私黒田はフリーランスとして建築・空間づくりやまちづくりに関わる業務に取り組んでおります。
このチャレンジショップ をつくるプロジェクトに至るまでには2年を遡ります。
まずは商店街のご紹介とこのプロジェクト発足までの経緯をお話しします。
- 蕪村通り商店街について -
蕪村通り商店街は大阪都島区の北の淀川近くに位置しています。江戸時代中期の俳人・画家の巨匠与謝蕪村(1716~1783)生誕の地に近いことから名付けられています。

全長260m道幅4mの商店街は日中車の乗り入れがない為、のんびりと過ごすことができるコンパクトな商店街です。しかし、総店舗数79店のうち46店が空き店舗(住宅含む)という深刻なシャッター商店街という現状を抱えています。
かつては大企業の有する工場のお膝元として100件を超える店舗が並び、賑わいを見せていたようですが、工場の撤退を始めとした商圏人口の減少、事業者の高齢化、大型スーパーの進出などの要因からシャッター商店街化してきたようです。
中には住宅として建て替わっているところも。
- 金子会長との出会い -
とあるご縁から蕪村通り商店街の金子会長と出会いました。
2年前、教員をされながら商店会長を務められていた金子会長から商店街の現状を伺いました。
商店街でありながら、一部は専用住宅として建て替えられてしまっている場所が出始め、このまま放っておいたら商店街そのものが失われてしまうのでは?と危惧されていました。
「これからの時代の中で、この商店街はどのような形で未来へ引き継いでいけるのか?」
この大きな課題に対して何ができるのか?を考え始めました。
- はじめの一歩を踏み出すこと -
シャッターの閉まった商店街に活気を取り戻すためにはシャッターを開けることが必要なのは言うまでもない事実ですが、事はそう簡単ではありません。誰がお店を開けるのか?店を開けたらお客さんは来るのか?というシビアな問題がすぐに頭に浮かびます。
その問題はすぐに解決するものではありません。商店街の店舗が開き、お客さんが訪れて賑わうことは最終目標として、段階を踏んでその目標へ辿り着こうと考えました。
- すべてのきっかけとなる第一歩 “ぶそん市‘’ -

まずは近隣に住む子育て世代のファミリーに商店街を知ってもらおう、商店街で買い物をしてもらおうという目的で、定期的にマーケットイベント「ぶそん市」を始めることにしました。
空き店舗を所有するオーナー奥田さん(写真右)が、商店街の為になるならと店舗スペースの使用を快諾して下さり、会場も手づくりで設えたイベントをスタートさせました。
金子会長もDIYで一緒に会場づくり。
この小さなマーケットイベント「ぶそん市」は約2ヶ月に1回のペースで定期的に開催してきました。
昨年の秋までに7回の開催を数え、これまで約30組の出店者が集まりました。1カ所の元酒屋の空き店舗から始まり、商店街内の空き店舗を持つ他のオーナー様からも店舗の使用をお申し出いただき、現在3ヶ所での開催まで広がりました。通りの賑わいを少しずつつくりだすことに成功しています。

- 次の一手として -
マーケットイベント「ぶそん市」が少しずつではありますが、認知もされ始め、訪れる人の数も徐々に増えてきました。その中で、出店者の方の中から様々な要望や意見を聞くことがありました。
出店者の方も様々な状況の中で自身の活動をいかに広げていくかを、それぞれのステージで模索されていることがわかりました。
「いろんなイベントへ出向いて活動しているけど、拠点のような場所も欲しい・・・。」
「作品を多くの人に観て欲しいけど、ギャラリーや貸しスペースは費用が高い・・・。」
そんな声を聞きながら、何かをやってみたい人が、その人の都合に合わせた使い勝手の良い場所が求められていることに気がつきました。
〝ぶそん市をきっかけにしながら、この商店街で、ぶそん市とはまた違った方法で次のステージへ向けてチャレンジ出来る場所をつくろう!〟
早速動き出します。
商店街金子会長のご協力の元、お借りできる空き店舗が見つかりました!

かつて関西ビデオセンターという名の元電気屋さんだった建物です。

この建物をリノベーションして、『やってみたい』を実現できるチャレンジショップ をつくります!!

- チャレンジショップ とは? -
これからつくろうとしているチャレンジショップ とはどのようなお店なのか。
価値観が多様化し、働くスタイルも広がっていくこれからの時代に合わせ、様々なやり方・ステージに合わせた商売の仕方が実践できる場所が商店街の中に必要だと感じました。
そこで、元電気屋さんとして使われていた店舗を活用して、これからやりたいことを小さく始めることのできる、1日からスペースをレンタルできるお店をはじめます。
「好きなことを仕事にしたい。」
「ふと思い付いたアイデアを試してみたい。」
というようなひらめきを、小さく始めて大きく育てる場所を目指します。

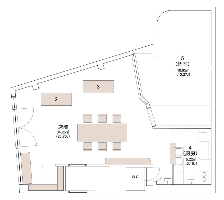
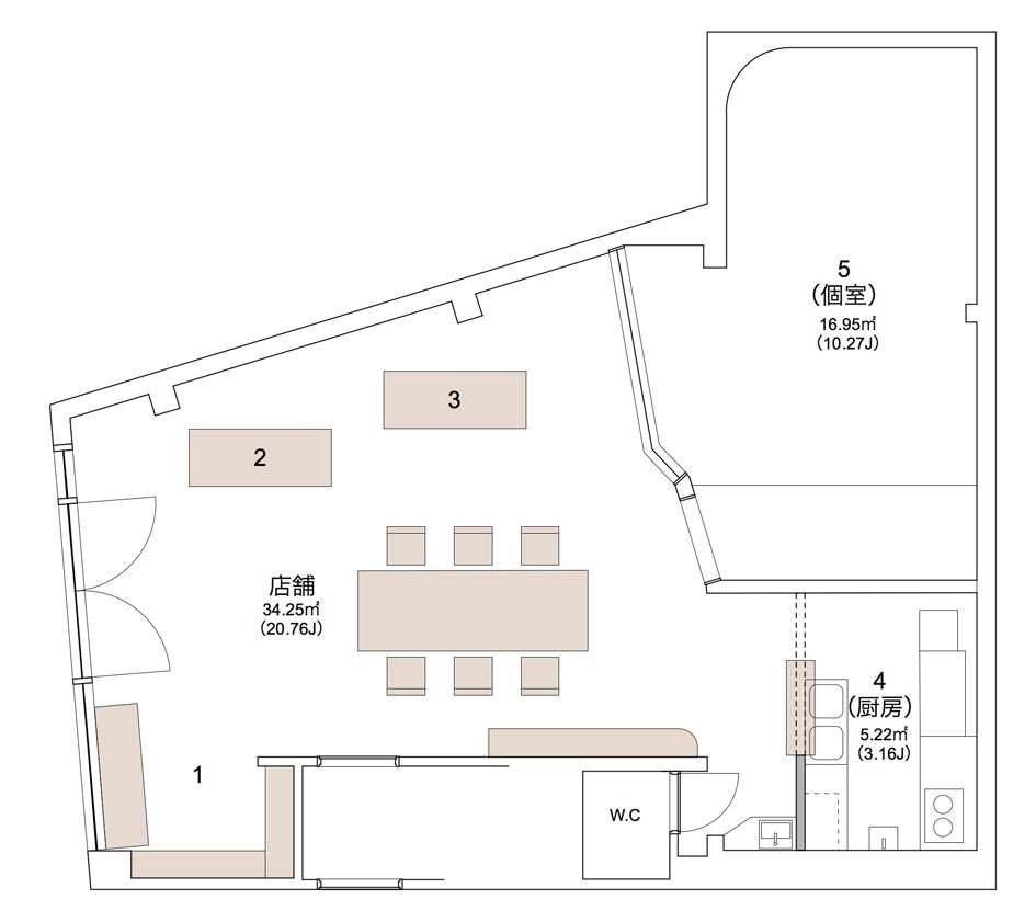
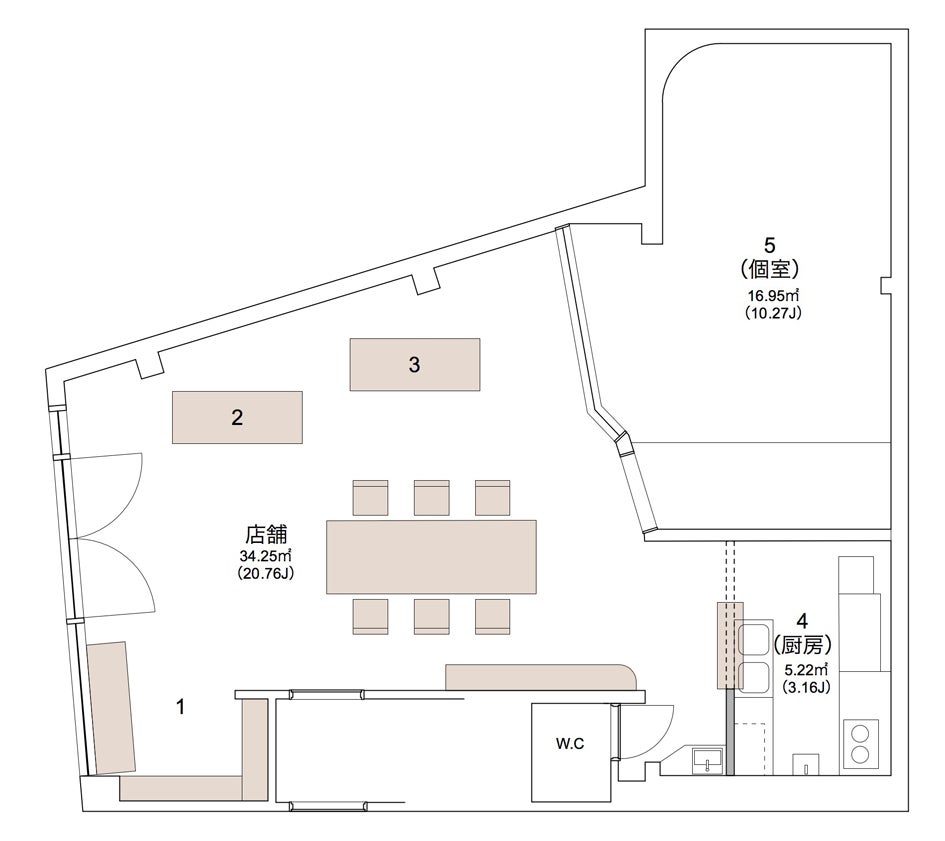
チャレンジショップ のプランがこちら。
広めの店舗フロアと厨房、仕切られた個室という構成です。
1.2.3販売ブース
大きめの什器に雑貨やアクセサリー作家さんの作品などを中心に物販の活動ができる場所です。
4.厨房
店内奥には小さなキッチンを備え、店内中央のテーブルコーナーを利用した、食事やスイーツ、カフェなどが営めます。
5.個室
店舗フロアから仕切られた個室はフローリング敷の小上がりの個室で、多目的スペースとして様々な活動の場として使用出来ます。
店内に複数の出店者がスペースをシェアする複合的なお店ですので、
『ちょっとコーヒーを飲みに立ち寄ったら素敵なアクセサリー作家さんに出会った!』
『アンティーク古着を目当てに立ち寄ったら、とても楽しいワークショップに飛び入り参加できた!』
などの思いがけない嬉しいハプニングが起こります。
また、厨房と個室を借りてママ友パーティーを開催するなんて使い方もできるかもしれません。
さらには
『実はこんなことを考えているんだけど、こんな使い方は出来ますか?』
なんていう声が聞かれるようになってくれたら感激です!
日々の暮らしの中に溶け込みながら、様々な出会いや活動の始まるきっかけとなるような場所として、地域の拠点を目指してお店づくりを進めています。
ちなみに店名の“ARCH -アルヒ-”ですが、
ギリシャ語で「はじまり、起源」となる言葉であり、英語ではアーチ「架け橋」となる言葉です。
出店する人にとってはじまりの場所となり、訪れる人との架け橋となる場所という意味を込めて。
また、この場所で出会ったものやこと、様々な人と過ごした一日が記憶に刻まれるような“ある日”となって欲しいという願いを込めて名付けています。
- クラウドファンディングに挑戦する理由 -
お店づくりは可能な限り自分たちの手でつくろうとDIY作業で進めています。
物置だった店内の片付けから始まり、壁紙はがしや壁立て・床組みなどの大工作業なども友人・知人の助けを借りながらみんなで手づくりしています。
しかし、小さな店をつくるということはやはりまとまった資金が必要です。自己資金の他、融資を受けての資金繰りでほとんどの部分の目処は立っておりますが、素人には手が出せない設備関係の費用分がコストとして大きくなってしまいます。CAMPFIREで支援いただいた資金は、空調設備工事、備品購入等に充てさせていただきます。
- リターンについて -
チャレンジショップ ARCH -アルヒ-やマーケットイベントぶそん市を最大限楽しんでいただけるリターンをご用意しました。詳細、注意事項については右のリターンをご確認ください。
皆様のご支援が、暮らしを豊かにしていくための場所づくりの実現に欠かせません。
これからの商店街のあり方についてのトライアルに応援いただけたら幸いです。
ご一読いただきありがとうございました。改めて、ご支援をよろしくお願いいたします。
最新の活動報告
もっと見るDIY作業完了!オープンまであと少し
2020/03/22 09:253/28(土)オープンまであと1週間となりました。DIY作業も無事完了し、先日備品や装飾を配置し始めました。オープンの28日にみなさまのお越しをお待ちしております! もっと見る
トートバッグイメージ発表!!
2020/03/05 22:02クラウドファンディングチャレンジが始まって10日が経ちました。おかげさまで目標に対して30%を達成しました!!温かいご支援、誠にありがとうございます。arch -アルヒ-のオープンに向けて様々な準備が整いつつあります。その中で、リターンの商品の一つである、arch -アルヒ-オリジナルデザインのトートバッグのイメージが出来上がりました!質感のある生地にシンプルなロゴが印象的なデザインです。買い物やお出かけに重宝する使いやすいトートバッグです。このバッグを持って是非arch -アルヒ-に遊びに来てください!まだまだご支援お待ちしております!! もっと見る






コメント
もっと見る