▼はじめにご挨拶
皆さんこんにちは!西(ニシ)と申します。
現在福岡でAIRBNBを活用して、自分の好きな事で生活をする自己実現/今の悪い環境から抜け出す事を目的に、みんなで、モノ、スキル、情報、なんでもシェアしまくって助け合おうっていう活動をやっております。
▼このプロジェクトで実現したいこと
ボロ屋を改装してゲストハウスを作りたい
生活環境を変えたい人のきっかけを作る
どんなバカでもやればできる
▼プロジェクトをやろうと思った理由
おバカな自分はairbnbで失敗ばかりしてきました。
自分なりに一生懸命計画してもいつもダメダメ。
airbnbで稼いだお金も全部吹き飛ぶどころか、借金まみれになっちゃいました。
寝る間も惜しんで頑張ったのに
妻も妊婦なのに一生懸命手伝ってくれたのに。
自分のアホさにおもっいきり落ち込みました。
でも、諦めきれない。
どんなに失敗しても、負けても、借金まみれになっても。
僕はエアビーやウーバーのようなシェアリングエコノミーが、世の中を、人々の生活をよりよくできるとなぜか信じてやまないんです。
そんな自分は計画する時間も生活資金もないので、只今無計画で絶賛もがいてます!
無計画で突き進んだ結果、福岡市の端にある宮浦という漁師町で空き家を借りる事が出来ました!!
糸島地区ですー!海がめっちゃキレイで人もめっちゃ温かいすんごい素敵な場所!
ちなみにこの海はゲストハウスから徒歩10秒!
内海なので波が穏やか。小さな子供でも安心。
▼もがき続けた結果
めちゃくちゃ頼りになる幼馴染が相棒になってくれたり。
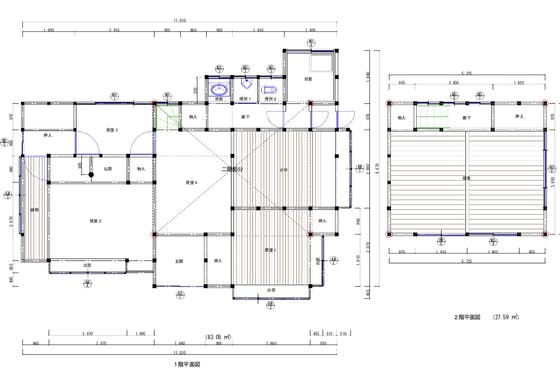
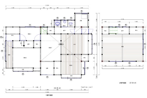
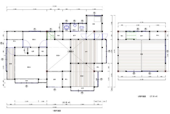
建築士さん達が図面を描いてくれたり。
行政書士さん、民泊の先駆者さんがアドバイスをくれたり。
本当に色々な方が協力してくれてます。



よっしゃどうにかなるだろうとここまで突っ込んで来ましたが、ついにどうにもならなくなってきましたー!

やっぱりアホだたオレー!
▼アホなりに
ちまたでは、シェアリングエコノミーは
白タクや民泊と呼ばれ、あまりいいイメージがありません。
法的な問題だったり、モラルを問われたり。。。
確かにそういった問題はこれからも出てくると思います。
が、絶対に恩恵を授かれる人の方が多いです。
民泊に関しては
シングルマザーがプライベートな時間を増やす事が出来たり。
年金暮らしの方がコミュニケーションをとったり。
子供に色んな価値観を見せれたり。
地元、ローカルを盛り上げたり。
言ったらきりがないほどいい事がいっぱいあるんです!
まずは自分がこのボロ屋を再生して、そこから生活の変化を発信、興味のある方に体験してもらいたい。
そして、少しでも多くの方にシェアリングエコノミーの良さを知ってもらいたい。
僕はシェアリングエコノミー、airbnbで人生が「いい風に変わる」ことを証明したいんです。
▼最後に
僕は自分の無計画で、人まで巻き込む正真正銘アホです。
こんな僕に付き合ってくれるみんなは最高にクレイジーな人達です。
もうここまできたら何がなんでもやるっきゃねー!
絶対完成させますー!
そんな僕の考えに賛同してくれるクレイジーな方、どうか協力してくれないでしょうか。
よろしくお願い致します!!
最新の活動報告
もっと見る
破壊活動と図面
2017/05/15 18:18こんにちは!支援ありがとうございます! 見ず知らずの僕の計画に出資してくれて本当にありがとうございます! 絶対にヤバーイゲストハウスを作ってみせます。 今はまだ破壊活動に精を出しております。 釘踏んだり、ほこりかぶったりしながら奮闘しております! そんで、図面はこんな感じございますです! 古民家ですが、前面に和を押し出すのではなく、素材を活かしつつも今風なイケてるゲストハウスになる予定です!予定です!!(笑) そんな破壊活動も来週は山場を迎えますよ! なんと屋根を取っ払っちゃいますー! 10数年前の震災で瓦が斜めに傾いちゃってしまって雨漏り半端ないんですっ! それと資金の使い道! 何にいくら使うんだと突っ込まれまして、、、 その通りでございますね! 今の所資金の使い道としましては、 材料費に当てさせてもらう予定です! 雨漏を直したり 木が至る所腐っているのでやり替えたり 基礎や柱の補強をしたり 壁をやり替えたり キッチン、トイレ、お風呂などもやり替えたり 全部やないかい(笑) はい、そうです、全部です! 普通に見積もって総額1000万以上するんだろな! 建築士さんを始め、手伝ってくれるみんなにはかなり無茶を言ってます。 優先順位としては屋根の材料費です! 雨漏してちゃ何も始まらなーい! それではまた、報告させていただきます! もっと見る






コメント
もっと見る