2017/08/29 07:37

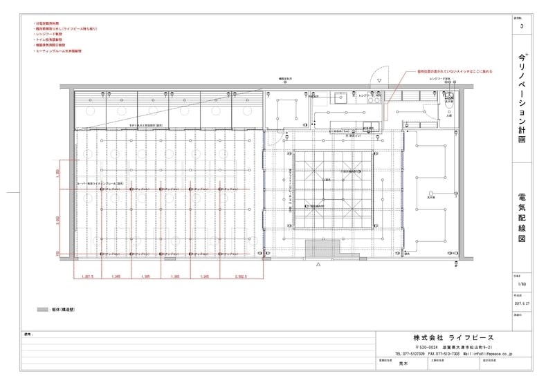
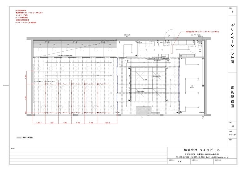
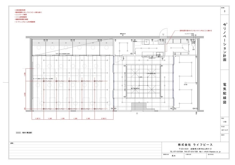
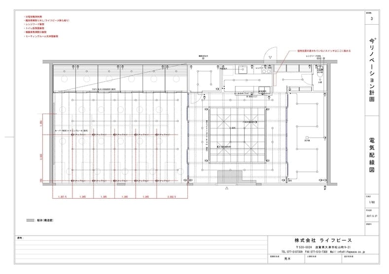
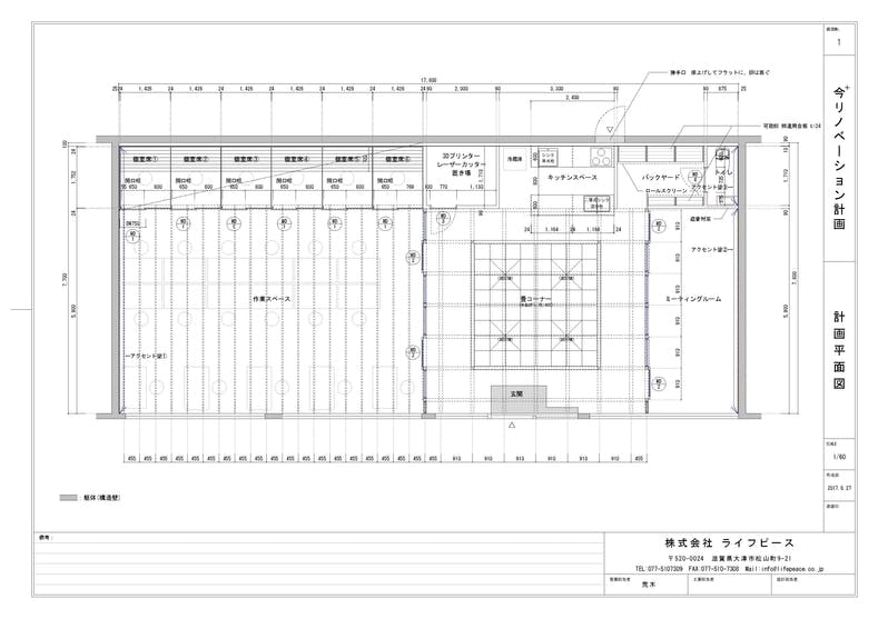
工事も真っ最中ということで、図面がいっぱいあがってきました。

電気の位置だったり。。。

基本的なサイズだったり。

また仕切りの断面図であったり。

天井部分もただクロス張り替えるだけだと面白くないということで梁がされるようなデザインとなります。
こうやって寸法としての数字があがってくるとまたより具体的にイメージできるようになるなーなんて思いつつ。
最近はこの図面見ながらニヤニヤしていることが多いのかも。
うむ、待ち遠しい。
ではでは。

現在の支援総額
365,500円
目標金額は300,000円
支援者数
81人
募集終了まで残り
終了
このプロジェクトは、2017/07/31に募集を開始し、 81人の支援により 365,500円の資金を集め、 2017/09/30に募集を終了しました

工事も真っ最中ということで、図面がいっぱいあがってきました。

電気の位置だったり。。。

基本的なサイズだったり。

また仕切りの断面図であったり。

天井部分もただクロス張り替えるだけだと面白くないということで梁がされるようなデザインとなります。
こうやって寸法としての数字があがってくるとまたより具体的にイメージできるようになるなーなんて思いつつ。
最近はこの図面見ながらニヤニヤしていることが多いのかも。
うむ、待ち遠しい。
ではでは。