おかやま県の北部に位置する勝央町の迎賓館のお話
むかしむかし、おかやま県の北部の勝央町にとある男性が住んでおりました。
その男性は勝央町の町長をやっており大変おもてなしが好きな人でした。
町長は「町に来賓をもてなしたい」という想いがありました。
そんな想いを持っていた、ちょうどそのころ、奥津町という車で1時間ほどの場所に、
おもてなしできそうな立派な日本家屋の民家がありました。
しかしその建物はダムの建設の為、沈んでしまうというのではありませんか。
町長はその話を聞き、居ても立っても居られなくなりました。
そこで町長は考えに考えた末、建物ごと勝央町にもってくればよい!
という常人ばなれしたナイスなアイデアを思いつきました。
そしてそのアイデアは実現します。
民家に使われていた木材を丁寧に解体し、奥津町から勝央町へと運び、元通りに復元したのです。

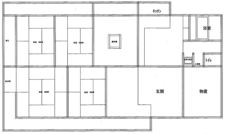
重厚な日本家屋が勝央町に完成し、庭先で桜、紅葉など、四季の移り変わりを感じられる建物になりました。
▲岡山県の県北に位置する勝央町
そして時にはモンゴル大統領夫人や県の偉い方々をおもてなしすることもあり大変賑わいましたとさ。
めでたしめでたし!
しかし大変です。
時代が変わり、迎賓館としての活用の機会が減ってしまい、建物が徐々に老朽化してしまいました。
そこで!当時の想いを受け継ぎ、時代のニーズにあった迎賓館へ
REプロデュースしよう!ということで今回のプロジェクトに至ります。
私自身、建物に初めて入った時、「やばい、すごい!めっちゃかっこいい!」と連呼していたのを覚えています。普段は建築業界で仕事をしているのですが、ここまでの建物に出会う事は めったにないのでとても感動しました。
一瞬にして味わいのある立派な日本家屋に魅了されていました。

この建物を調べると、ダムで水没する土地から移築され、この場所で生き続けているという歴史ある物と知りました。しかし今のままだと、人目につかないまま老朽化していくため、この建物をリノベーションして活用したいと考えました。

時間の経過が醸し出す味わいのある部分はそのままに、老朽化の目立つ水廻りを工事することで、宿泊もできる、人が集まる場として、この地域の一つの宝にできるのではと考えました。

工事するだけでは人目につかないので、「人と人」のつながりを育み、来た人同士も楽しめる空間として、しっかりと管理・運営していきます。

是非みなさまにも遊びに来ていただきたいです。
REプロデュース『迎賓館』の使用方法
● 使い方(例)
①イベントスペースとして貸し出し(展示即売の会場、友達とワイワイ集まる)

・仲間と囲炉裏で団らん(鍋、チーズフォンデュなど)
・ワークショップ(料理教室、陶芸教室、書道教室など)
・展示や発表のスペース
・マルシェ会場
・スポーツ観戦(パブリックビューイング)
・デイキャンプ
②宿泊施設としての利用

・研修や合宿(農業研修生、インターン者の宿泊施設、企業研修会場など)
・日本の四季が感じられる日本家屋で、ゆったりと過ごしたいお客様
・気軽に別荘として!?
③大切な人をおもてなしできる空間

・お見合い会場として使用
・県外や海外からの大切な人(取引先、家族、友人)を囲炉裏などでおもてなし。
----- ★ ----- ★ ----- ★ ----- ★ ----- ★ ----- ★ ----- ★ -----
支援金の使いみち
工事費¥3,000,000のうちの一部の工事費として ¥250,000
FAVVO手数料+返礼品送料 ¥50,000
合計 ¥300,000
----- ★ ----- ★ ----- ★ ----- ★ ----- ★ ----- ★ ----- ★ -----
実行スケジュール
2019年7月~クラウドファンディングを開始し、工事資金を集める。
9月~ 集まった金額で行える修繕工事を開始
10月 工事完成後に、宿泊施設として事業を開始する
----- ★ ----- ★ ----- ★ ----- ★ ----- ★ ----- ★ ----- ★ -----
●利用料金(いずれも税別)
宿泊の場合
1泊(1棟レンタル)¥30,000
AM10:00~翌日AM10:00
最大12名まで宿泊可能 ※会員様の場合20%OFF
1時間 ¥1,500 ※会員様の場合20%OFF
*食材などのオプションメニュー、宿泊の際のシーツ代(¥350/人)は別途頂戴します。
----- ★ ----- ★ ----- ★ ----- ★ ----- ★ ----- ★ ----- ★ -----
住所 岡山県勝田郡勝央町植月中868-4
アクセス JR勝間田駅より3km
中国自動車道 JR高速バス「中国勝間田」停留所より2km
----- ★ ----- ★ ---- ★ ----- ★ ----- ★ ----- ★ ----- ★ -----
● お問い合わせ先
一般社団法人しょうおう志援協会
担当者:井口
shooshien1811@gmail.com
最新の活動報告
もっと見るご支援ありがとうございました
2019/08/31 20:00皆様のご支援のおかげで目標金額達成いたしました。 本当にありがとうございます。 ご支援の際に頂いた応援メッセージに応えられるよう、運営していきたいと考えています。運営に関して未熟な部分も多々あると思いますが、ご指導ご鞭撻よろしくおねがいします。 しょうおう志援協会 プロジェクトチーム一同 もっと見るクラウドファンディング 残り26時間
2019/08/29 21:56クラウドファンディング終了まで残すところ後26時間になりました。 現在、ご支援頂いた皆様のご協力のおかげで、達成率98%まで到達しています。 本当にありがとうございます。 あと少しの時間ですが、よろしくおねがい致します。 もっと見る締め切りまで残り4日。ご支援のおねがい。
2019/08/26 19:33今日までご支援を頂いた方ありがとうございます。 クラウドファンディングですが残すところ、あと4日になりました。100%達成まであと23%です。何卒、ご支援よろしくおねがいします。 (写真は9/28の宿泊施設としてのオープニングパーティーに向けて、大工さんが洗面台の加工を行なっている写真です。) もっと見る





