◼️小さなゲストハウス&カフェ ここ和
~ここで繋がる人の和~
<発案者 太田夫妻>

■ゲストハウスで街づくりがしたい
ゲストハウスは単に宿泊する施設ではありません。
共有のラウンジでは出会った人たちが互いの故郷の話をしたり、地元の人とディープな交流を持ったり、そこを拠点に各地へ観光巡りをしたり…
ホテルや旅館では味わえない体験ができる観光案内所のような宿泊施設です。
小江戸と呼ばれる城下町の川越で、風情ある夜の街や、地元の人たちとの交流を楽しんでもらえる居心地のいい空間を作りたい!というのが提案の趣旨です。
■なぜ川越にゲストハウスなのか
川越.TVの取材による紹介動画です。
川越は明治時代の蔵造りの街並みや名物の「さつまいも」を中心とした「食べ歩き観光」の文化、縁結び神社として知られる「氷川神社」が観光産業として浸透しています。
中でも氷川神社では「縁結び玉」と呼ばれる縁起物を毎日配布しており、1 日 20 個限定のそれを求めて週末には早朝 5 時から列をなす光景が話題になっています。
また近年ではSNSを使って観光を楽しむ若年層の女性が急増し、埼玉県の中でも有数の観光名所として数えられるようにもなりました。
しかし川越は日帰りの観光地として知られており、日中は溢れんばかりの人がいた中心地も、17時ごろを境に引き潮のごとく観光客の姿は見当たらなくなります。
そのため、ゲストハウスのように地元密着型の体験宿泊施設は極端に少ないのが現状です。
駅の周辺には大手企業によるホテルがいくつかありますが、利用者の多くは観光目的ではなくあくまでビジネス利用が多く、金額面や施設的にも観光で宿泊施設を利用するにはハードルが高く、需要に対して供給が追い付いていないのは明白です。
■女性グループの利用しやすいゲストハウスの提案
川越市の観光客数は平成30年度には年間 730 万人を超え、近年ではSNSなどの影響により20〜30代の若年層の女性が急増しました。
着物や浴衣を身にまとって蔵の街並みを背景に写真を撮ることは、もはや街の景色と化しました。
そこで私たちの目指したいのは「女性グループが利用しやすいゲストハウス」です。

当物件の所在地は築 38 年の木造一戸建て住宅で、観光地として人気の一番街 と 多くの観光客が利用する川越市駅や本川越駅との間に位置します。
一見普通の一軒家ですが、1階にはテラスとして利用できる屋外駐車場があり、2階はスタッフルームも含め計4部屋が利用できる間取りの物件です。
中でも玄関の吹き抜けや上部に使われているステンドグラスはとても趣きがあり、中2階の部屋からはそれらを間近に見られる作りとなっているのが特徴です。
宿泊は部屋貸しスタイルを基本とし、複数のグループが女子会を楽しめる場所として運営する予定です。近隣のホテルと比較しても圧倒的に安く、グループの利用であれば一人¥3,000代から宿泊できるのが特徴です。
また1階はカフェ兼ラウンジとして利用できる広めのおしゃれな空間とし、大きなスクリーンはプロジェクターを通して、スポーツ観戦も楽しめる場所になります!
■地元の人も集まりやすい憩いの場をつくる
当物件の場所は観光地と住宅街の間に位置します。

普段は地元の方が多く利用する広い道に面していることもあり、今回のプロジェクトは川越でエリアリノベーションに取り組む(株)80%さんにも協力頂き、地域密着型のワークショップ(DIY)にも取り組んでいきます。
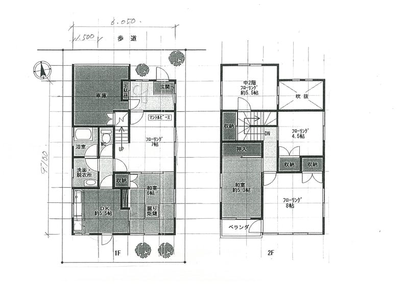
物件のビフォーアフターは以下のようになります。
<Before>
現状の間取りと写真です。




一部照明や暖炉などもともと使われていたものは新しい内装でも再利用します。
<After>
1階は多くの人が入れるよう広く使い、2階は現況を出来るだけそのまま活用します。
★完成イメージ★

(1階カフェ部分はカウンター形式に変更となりました)
★完成図面★

内装のイメージは北欧を意識したナチュラル系のインテリアです。
和室とリビングを一体的に使える空間とし、天井を取り払うことで開放的な人の集まる場所となる予定です。
玄関の間仕切りは構造上残りますが、外からも店内が見えるよう窓を計画し、イベント時にはその壁を利用して大型スクリーンを登場させます。
また2階にも水回りや給湯コーナーを設け、宿泊者の利用に配慮します。
屋外車庫となる部分にはデッキを設置し、イートインの空間を作ります。
店舗の単なる外部スぺースではなく、近所の方が散歩の休憩を取り……
そしてしばらくするとそこで井戸端会議が始まる……
気軽に使ってもらえる屋根付きのスペースとして地域に解放することで街に浸透する空間とします。
また現況の植栽は以前のものを活かしながら手を加えていきます。
建物自体の清潔感が出るだけでなく、夜には暗がりになってしまう街並みに優しい明かりを灯していきます。
㈱80%さんが取り組んだ長屋リノベーションの居酒屋さん

―㈱80%―
川越を中心とした民間自立型まちづくり会社。
街の中に見向きもされなくなった遊休不動産、インフラ等を活用し、関わる人・集まる人が等身大で幸せに、楽し く過ごせる場にリノベーションすることにより、まちづくりに貢献することを目的に活動。
https://www.facebook.com/80per/
■美味しくキレイになれる「ココア専門」のカフェ
カフェ事業では、アンチエイジングや食物繊維など体にいいとされているココアを使って、多様なメニュー展開を想定しています。

メニュー例
・ティラミスココア
・ココアティー
・マーマレードココア
・大人のココア など、、、
食べ歩きの街川越でも楽しんで頂けるよう、テイクアウトを中心にメニュー考案をしていきます。
こちらのメニューも有志を募り、サークル形式で商品開発を行っていきます。
詳しくはFacebookでも定期的に発信しています!
■地域のイベントや内覧会なども積極的に実施中!
・川越市霞が関商店街の100円商店街での様子

・工事中内覧会の様子

・中間報告会の様子
・ココア開発メンバーの集まり

川越だけでなく、建築関連の方やゲストハウスやカフェを作りたい方などに多くご支持頂いてます。
お店の立ち上げから実際の運営まで、中々できない体験を皆さまと共有させて頂いています!
ご一緒に関わってみませんか?
イベント等のご案内はFacebookページより行っております。

URL:https://www.facebook.com/cocowa.guest/
■ゲストハウスを通した街づくり
当計画は年々増えつづける観光客のためだけでなく、川越の地元の方が楽しんでもらえる空間を作りたいという想いから取り組んでいます。
そのため店舗の改装を参加型のワークショップ形式にしたり、ココアの商品開発も有志で募るサークル形式にしたり、と通常のお店作りとは違った形式を取り、完成までの過程を楽しんで頂ける企画を盛り込んでおります。
【観光客だけでなく、川越の地元の人が憩える場所を作ります!
少しでも共感頂けると嬉しいです!
ご支援宜しくお願いします!!】
<実行のスケジュール>
2019年
7/10 工事開始
7/21 工事中内覧会パート①
8/25 ここ和のココア試飲会
8/25 工事中内覧会パート②
9/7,8 壁塗りDIYワークショップ
9/15 ここ和のココア試飲会②
9/22,23 プレオープン(オープニングイベント)
9/28 グランドオープン
各イベントに参加頂けます!
特に壁塗りDIYワークショップは様々の方とつながりができます。
またワークショップ後には小さな宴会も計画しておりますので、おすすめです☆
<支援金の使途>
・1階カフェ部分
プロジェクター等設備費の一部 10万円
・2階宿泊部屋
トイレ&洗面等宿泊設備 15万円
・外部テラス席
テラス用ベンチ&デッキ設置費 5万円
計30万円
目標金額を達成した場合は、室内のタイルなどおしゃれな装飾品に活用させて頂きます!
<発案者プロフィール>
太田夫妻

太田浩樹(おおた ひろき)
■企画・営業・建築担当
芝浦工業大学工学部建築工学科卒業。
建築意匠設計や都市計画を研究し、建築が街や社会に対して与える影響について学ぶ。
大学卒業後ハウスメーカーへ入社し、約5年間新築戸建て住宅を数多く手がけるも、人と密接した街づくりがしたい という想いから退職。
川越のゲストハウス「ちゃぶだい」にて修行を積み、自ら建築のノウハウを活用して夫婦
でゲストハウスづくりに挑戦。
太田咲希(おおた さき)
■運営・経理担当
佐世保工業高等専門学校 物質工学科卒業。
高専生活5年間 女子寮生活だったこともあり、女子会やボードゲームなどみんなで集まることが好き。
年に5回ほど女子旅で国内旅行をしていますが、「おしゃれ+安い+みんなで楽しく騒げる」そんな理想の宿を考案中。現在は川越のcoffee postに通いカフェについて勉強し、ココア部 部長として、ココアメニューを開発中!
最新の活動報告
もっと見る
壁塗りDIYワークショップ!
2019/09/18 20:08こんにちは。 ここ和企画者の太田るーにーです。 いつも応援ありがとうございます! 最近ではカワゴエマスメディア様や川越style様といったウェブサイトにも掲載頂いたり、川越経済新聞や産業フェスタのお話を頂いたりで、おかげさまで人の繋がりが大きくなってきた実感をしております。 またタイトルにもあるように、先日は壁塗りのワークショップを行いました! 工事も終盤にかかり、あとは内装の仕上げ!というところまで来ております。 8月の真夏日は避けられたものの、気温が30℃を超える中クーラーもない室内で、2日間に渡って総勢30名の方にお力添えを頂きました! 本当にありがとうございます 当日は遠くの方で神奈川県から! そして隣人のお子さんまで参加してくれまして、みんなでランチのキーマカレーを食べたり、DIY後の飲み会をしたり…… 楽しい時間を過ごさせて頂きました(^^) 壁塗りは膨大な量のため私たちは引き続き壁を塗り続けます! オープンも間近となりましたが、皆さんの拠り所になるようなステキなお店にしたいと思います ※完成予想スケッチ もっと見る





