◇丸亀護国神社とは◇
初めまして。丸亀護国神社奉賛会の会長を務めています、吉川 徹といいます。

丸亀護国神社奉賛会は平成30年4月に発足しました。それまでは丸亀護国神社を統括するような組織はなく、遺族会、自衛隊隊友会を初めとする篤志の皆様方により長らく支えられてきました。


丸亀護国神社
丸亀護国神社は明治10年以来、西南戦争から太平洋戦争(大東亜戦争)に至り、日本を守るために尊いご身命を捧げられた丸亀歩兵第十二連隊出身の御英霊3,963柱をお祀りしています。
過去においては、(太平洋戦争)大東亜戦争の終戦に伴い、占領軍によって護国神社は「1つの県に1社」という方針が定められ、丸亀護国神社は廃絶する危機に見舞われたことがありました。
しかし、当時の讃岐宮(現在の香川県護国神社)の宮司、遺族、戦友、多くの市民による命がけの護国神社存続の嘆願・説得により、讃岐宮の別宮という形で、丸亀護国神社の存続が認められ、現在に至っています。


丸亀護国神社の周辺地図(イメージ・令和2年8月時点)
◇丸亀市中心部の再開発をきっかけに、神社の移設問題が浮上◇
時を経て平成30年。丸亀護国神社の今後を左右するような話が出てきました。わがまち・丸亀市の新しい市庁舎の建設です。
丸亀護国神社の敷地の西隣りには「丸亀市民会館」がありましたが、その場所は平成29年3月末をもって閉館されました。そして、新しい市庁舎が旧市民会館の跡地に建設されることが決まり、神社の南側にも税務署が新しく建設されるといった、新市庁舎周辺の整備計画が進められることになりました。それに伴って、丸亀護国神社の移設の問題が浮上したのです。
神社の南(神社から徒歩で3分程)には日本一高い石垣を誇る丸亀城
しかし、これまで長年、御英霊をお祀りするべく祭事を執り行い続けて来られた方々の思いを考えれば、新庁舎の計画によって簡単に移設していいのか・・。神社にご縁のある方、ご遺族の方を集めて熱く議論しました。

丸亀護国神社の今後のあり方について熱く議論をしてきました。
◇そして、丸亀護国神社奉賛会の発足へ◇
「長年、ご遺族や神社でお祀りされている御英霊とご縁のある方々が大切に管理し守ってきた“歴史”の重さ、戦争がいかに悲惨で二度と繰り返してはならないことかを発信し、象徴するこの神社を簡単に失わせてはいけない」。議論を重ね、私たちの思いが1つになりました。
これからは遺族や自衛隊OBの方々だけでなく、神社をお守りするような組織を作ろうと、平成30年4月、有志の方々を募り「丸亀護国神社奉賛会」を発足しました。

丸亀護国神社奉賛会が結成されました。
◇無事、現在の場所のまま丸亀護国神社が存続◇
奉賛会は、これまで通り御英霊をお祀りする祭事の継続、丸亀護国神社にまつわる歴史などを広め、戦争がいかに悲惨なことかを伝える活動などを目的に取り組むこととなり、市との協議を経て、無事、丸亀護国神社を移設しない形で、新市庁舎の整備が進められることになりました。
また奉賛会では、戦前から絶えることなく続けている「月次祭(つきなみさい)」という毎月15日に執り行われる祭事を引き継ぎ、定期的に行っている清掃活動も自衛隊隊友会の皆様、神社の周辺の方々と一緒に楽しみながら取り組んでいます。
注連縄(しめなわ)の準備の様子(その1)
注連縄(しめなわ)の準備の様子(その2)
丸亀護国神社の整備活動の様子
月次祭(つきなみさい)の様子(その1)
月次祭(つきなみさい)の様子(その2)
◇令和の新時代。歴史遺産「丸亀護国神社」を生まれ変わらせたい◇
丸亀護国神社は、約30年間神社の整備が行われていません。そのため、仮に一般の方が立ち寄られたとしても、あまりきれいではない神社をご覧になって気を落とされるのではないか…と心配する日々を過ごしています。
そこで、2020年は太平洋戦争の終戦から75年という節目の年であり、2021年1月には、新しい市庁舎が完成されるという機会を踏まえて、奉賛会は、神社を整備してきれいにし、より一層みんなに親しんでもらえるような歴史・文化遺産として再出発させようと決意しました。
◇クラウドファンディングの事業を経た後の未来(ビジョン)・・・◇
神社と聞くと、一般的になかなか立ち寄りにくいイメージがあるためか、丸亀護国神社の周辺は名城・丸亀城があり、来春には新しい市庁舎ができるといった人通りが多いエリアに恵まれているものの、神社をあまり意識されずに素通りされてしまうこともよくあります。
そういった素通りされる神社から、多くの方が足を運び、より親しまれる神社へと、この事業を通して生まれ変わらせたいです。
例えば、丸亀護国神社の近くには保育所、中学校、高校がありますが、平和教育の一環で活用されたりしていません。整備事業で神社をきれいにした後、清掃奉仕日を周知し、子どもたちにも1人でも多く参加してもらいたい。
その時に短い時間でも、貴重な戦争体験や歴史に関する講話をし、亡くなった御英霊の思いと歴史を後世につないでいきたいです。特に8月には平和をテーマにした子どもたちによる発表会みたいな企画を境内で行い、神社を大いに活用してもらえるようにしていきたいです。
他にも、境内のベンチに座って一息ついてもらったり、談笑したり、散歩で立ち寄りたくなるように取り組んでいきたいです。特に観光客が丸亀城を訪れたあとに立ち寄るスポットの1つとして賑やかになってもらいたいです。

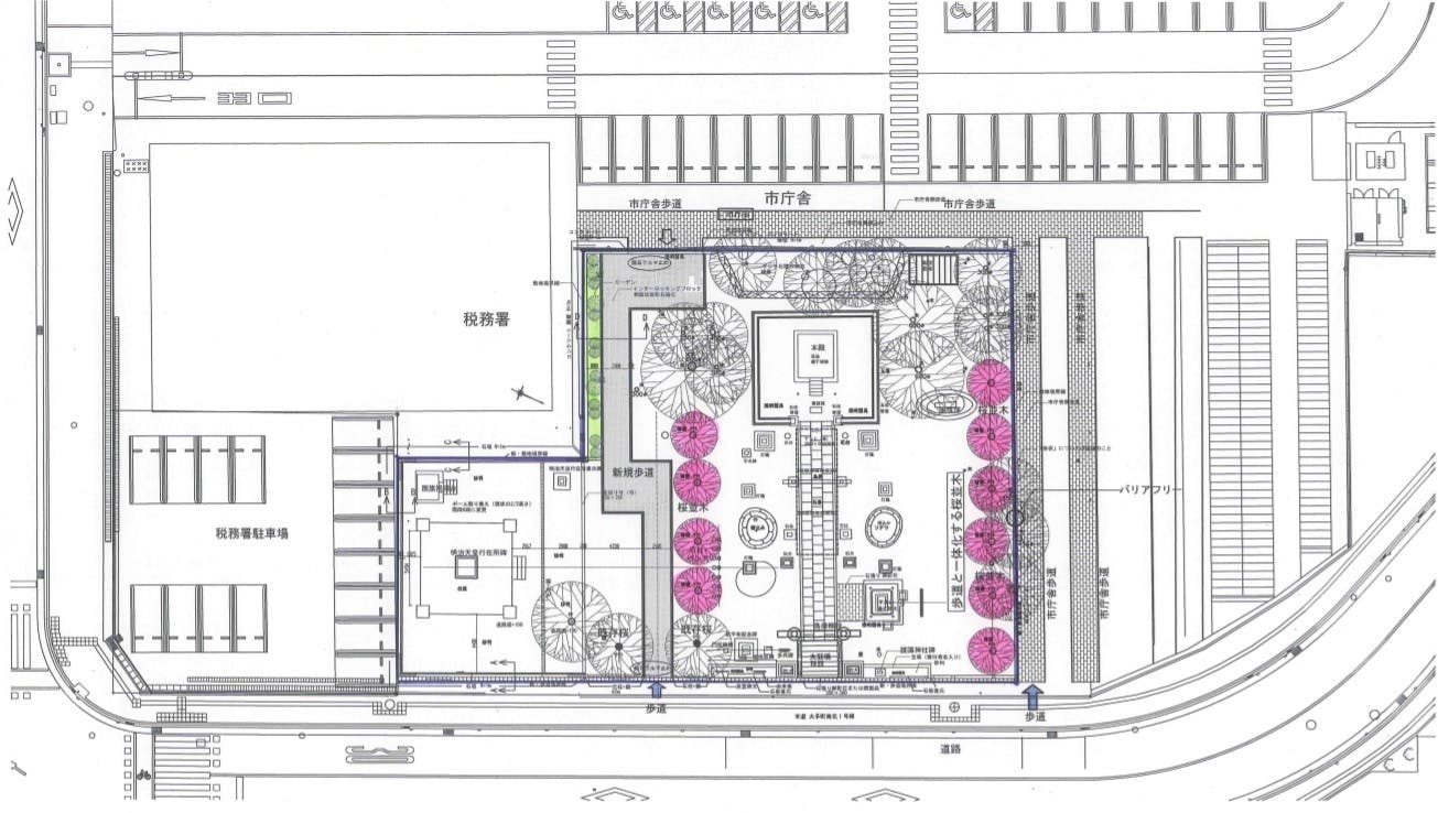
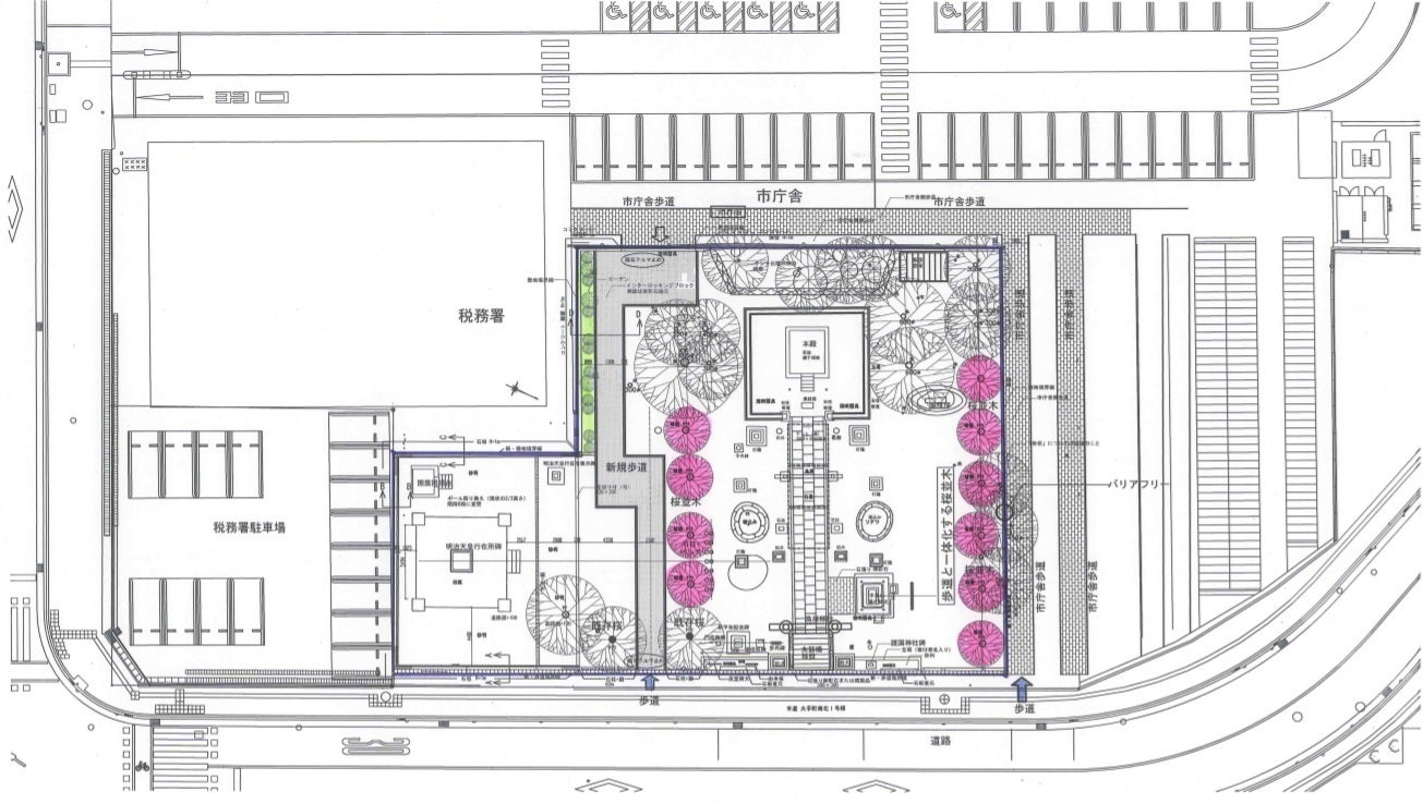
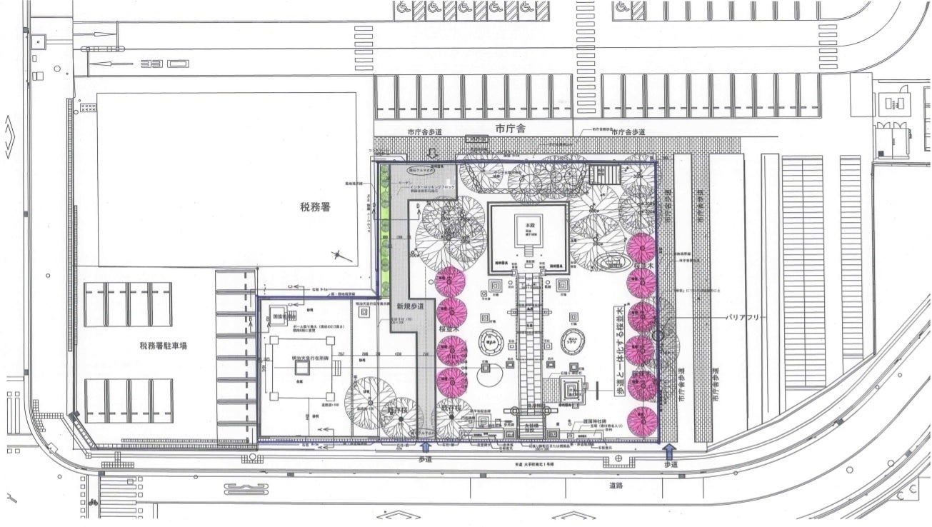
丸亀護国神社(丸亀市平和祈念公園内)の整備図面の1つ
【大勢の方に足を運んでもらえるよう、取り組んでいます。】
◇もう一つのビジョン「ソメイヨシノ植樹計画」~桜並木で丸亀護国神社の再生を~◇
- クラウドファンディング事業後の未来の丸亀護国神社を色々と思い描いておりますが、そのビジョンの中で力を入れたいことがあります。それは「ソメイヨシノ植樹計画」です。
- この度の市庁舎及び税務署の建設に伴って、丸亀護国神社の敷地はやむなく縮小し、市民に親しまれて来た境内の貴重な樹木は、残念ながら激減してしまったのです。
- より多くの方が立ち寄ってもらうべく、丸亀護国神社の再生への取り組みの1つとして、「桜並木」を新たに作り、桜で季節の移ろいを表し、市民に親しんでもらうための植樹計画を考えています。
- 人通りの多いエリアに置かれている丸亀護国神社。それをチャンスとして、この場所を知ってもらうきっかけ作りとして、 わくわくしながら検討しています。
- 〇植樹計画内容(平面図参照)
- 市庁舎敷地内歩道に沿った桜並木
6本予定 高さ2~3m
〇境内の中に新しくできる通り抜け歩道に沿った桜並木
4本予定 高さ2~3m
丸亀護国神社を緑豊かな「杜(もり)」として再生することで、ここを訪れる人々の癒しと安らぎの空間にしたいと願っております。

〇春期における整備事業の一環で取り組む桜並木のイメージ(その1)

〇春期における整備事業の一環で取り組む桜並木のイメージ (その2)
将来、こんなスポットになれたらと思い描いています。※図面イメージのピンク色を示した箇所に桜を植えて、神社と新しい市庁舎とつながる予定の舗道沿いに桜が咲いていたら素敵だなと想像しています。
◇資金の使い道リスト◇
1.緑地の整備
①植樹 桜並木
②既存樹木の剪定
2.境内入口回りの整備
①支援者名入り玉垣の設置
②神社由来案内板の設置
3.手水舎の建て替え
4.参道回りの整備
①「二の鳥居」の補修
②劣化した砂岩の石灯籠の復元(一対)
5.本殿回りの整備
①劣化した入口招魂石碑の復元(一対)
②本殿玉垣の補修
③本殿本体の補修
④本殿内砂利敷詰め
⑤本殿裏石積みの補修
6.花壇の整備
7.倉庫の建て替え
8.テント等備品の購入
9.敷地内電灯の整備 など
以上の整備(たくさんありますが・・)を市との協力を含め、皆様方のご支援により実現したいと願っています。
叶えたいことはたくさんありますが、それらを1つでも多く叶えるため、このクラウドファンディングを通して、皆様のお力を頂きたいです!
何とぞ、ご支援のほど宜しくお願いいたします。
丸亀護国神社奉賛会 メンバーからのメッセージ
【会長 吉川 徹】

〇美しい鎮守の杜を再生して後世に伝えたい!〇
丸亀城はその石垣の姿の優美さと「現存12天守」の一つであることなどから、全国的に広く知れ渡るところとなっております。
その丸亀城の天守から眺めると、遠くには美しい瀬戸内海、そして眼下には緑に囲まれた小さな神社が見えます。この神社こそ、「丸亀護国神社」なのです。
国内の一般的な「護国神社」は昭和14年に1県にひとつ作られました。香川県においては善通寺の護国神社がそれに相当します。
「丸亀護国神社」の由来はもっと古く、明治時代にまで遡ります。始まりは西南の役で亡くなった人の御霊をお祀りすることでした。それ以来、太平洋戦争に至るまで、折々の戦争で亡くなった方々の御霊を鎮めて参りました。
この「丸亀護国神社」は明治以降の近代日本の歴史の証人としての存在でもあるとも言えるでしょう。
境内の一角には「明治天皇行在所碑」と言う立派な石碑が立っています。明治の初め、明治天皇がこの地に視察に訪れたことを顕彰するために、大正10年に市民が協力して建てたものです。
この「丸亀護国神社」には忘れてはならない歴史の事実が埋蔵されていると言えるでしょう。

明治天皇行在所址碑
「丸亀護国神社」のすぐ西隣には現在新しい市庁舎が建設中です。ここは元は市民会館があった場所です。そしてなくなった市民会館は新しい市庁舎の南側に計画されています。
このような計画は「大手町4街区構想」として、丸亀市の官庁街の新しい顔として生まれ変わるものです。
そのような構想の中に「丸亀護国神社」は「公園緑地」としても位置付けられています。今回の市庁舎建設に伴い、「丸亀護国神社」は敷地境界線の変更初め、様々な形で市の計画に協力して参りました。
神社周辺整備、及び境内の整備等市の協力を得て整備工事が進められておりますが、市の協力には限度があります。今回の整備事業を将来につなげるためには様々な整備を一貫したものとして「今」やっておかないといけません。
老朽化して崩壊寸前の鳥居もあります。すでにくずれ始めた灯籠もあります。今やっておかなければならない整備はたくさんあります。
丸亀護国神社は「鎮守の杜」であり、ここを訪れる人たちのための安らぎの空間でもあります。
それを何とか今以上に美しい姿で後世に残しておきたい。
これが私たちの望みです。
そのためにクラウドファンディングで広く皆様のご理解を得て、ご協力、ご支援を深くお願い申し上げる次第です。
【副会長 大西 邦彦】

〇丸亀の歴史遺産を大事に、地域の発展を願う〇
JR予讃線下り、宇多津駅を過ぎたら車窓左手に規模は小さいながらも立派な石垣に三層の天守をいただく丸亀城が見えてくる。人口11万に満たない小さな地方都市、日頃は丸亀市の良さに気づかず生活しているが、大変立派な歴史的遺跡であることにあらためて感謝 !!
私は、自衛官OB、退職後郷里丸亀にUターン、何時からとはなくごく自然と丸亀護国神社ご奉仕に関わることとなりました。月々の招魂祭、年一度の大注連縄の奉納と多くの人たちの協力を得て活動を行っています。
折から丸亀市庁舎の建設に伴い隣接する神社地域も整備されることからこの機会を逃しては老朽損傷した施設の整備はできないと思いました。

劣化が見受けられる狛犬
加えて仲間たちも高齢化を迎え今後、活動を継続していくためには広く多くの市民にも理解協力を得ることが重要だと考え、護国神社奉賛会HPを立ち上げ、クラウドファンディングにより皆様のご協力を得て財政的な条件も整備できればと願っています。
丸亀護国神社周辺地域は、新庁舎の東に隣接する地域、明治天皇・西郷隆盛に関わる明治天皇行在所跡碑・丸亀歩兵第十二聯隊の編成地、三千九百六十三柱の御英霊への崇敬等々明治から昭和に掛けての歴史物語の宝庫です。多くの市民の協力参加をえて形を整えることは勿論、樹木・花壇の整備、清掃の奉仕活動をつうじ先輩たちが築いてきた業績を引き継ぎ歴史文化を大切に心豊かな丸亀市の発展に寄与したいと思います。
(「父が丸亀の連隊出身だけど、その父からこういう活動(丸亀護国神社の清掃や維持保全のための活動)をしろと言われたわけじゃない。でも、自分の気持ちとしては、せざるを得なかった。行政や大企業が支えることもできるのだろうけど、地域の小さな力を集めて支えていくことが大事なんだと思ってる。」と語ってくれた姿が印象的でした)
最後にまとめとしてメッセージを伝えます。
「物言わぬ御英霊!語り継ごう日本の心!」
丸亀護国神社に祀られる3963柱の御英霊。明治維新以来、77年の永きにわたりご身命を賭して我が国の平和の発展を願って参りました。
今もなお平和が続き、令和の時代に入ったこの時こそ、今一度『御英霊崇敬』の思いを後世に伝えて国の平和は守られ、地域の繁栄がさらに確かなものへと変わると信じています。
何とぞ、丸亀護国神社の整備事業にご支援を頂きますよう、お願い申し上げます。
【事務局員 水本 伸雄】

〇歴史と憩いの注目スポットに生まれ変わらせたい〇
丸亀といえば・・3つの日本一(高い石垣、小さな天守、深い井戸)の称号を持ち、最近ではニッカリ青江で人気となっている丸亀城を思い浮かぶ方もいると思います。そんなお城の北側に位置し、2021年春から新しい丸亀の市庁舎と隣り合わせとなり、何とも恵まれた場所に丸亀護国神社が置かれています。

私は中学生の頃、丸亀護国神社の東隣にある中学校に通っていました。
帰り道にその神社の前を通るのですが、何か神社特有のオーラ?みたいを感じており、中に入ったことはあまりなく、時々友人との待ち合わせ場所として神社の鳥居の前を利用するくらいでした。
その後、自分は歴史(特に日本史)を学ぶことが好きになり、地元の大学に在学していた時に、丸亀の歴史を調べる機会があり、資料を読みあさっていた時に、丸亀護国神社は、西南戦争から太平洋戦争までの間お亡くなりになった方をお祀りしていること。そして明治5年には、明治天皇が西郷隆盛をお供にして、現在の丸亀護国神社の敷地にあった旧庁舎にお泊りになったことを知り、それを示す記念碑(明治天皇行在所址碑)も境内に設置されていることが分かり、丸亀護国神社の存在に強い関心を持ったのを覚えています。

昔の明治天皇行在所址碑
それから、平成30年。丸亀市の新しい市庁舎が旧市民会館跡地(丸亀護国神社の西隣り)に建設されることになり、それに伴って丸亀護国神社が別の場所へ移設される話を丸亀護国神社の祭事に関わっているお知り合いの方から聞きました。その方から「これまできちんとした神社を管理するような会を作っていなかったが、これを機会に奉賛会を結成しようという動きが出ている。長年お護りしてきたこの神社をぜひとも移設されないよう、力を貸してもらえないか」とお話を頂きました。
この丸亀の歴史遺産の1つといえる丸亀護国神社が時代の流れにより、今の場所から消え、これまでこの場所をお護りされてきた人々の思い・経緯・歴史をあっさりと失ってしまうことを考えると、どこか悲しさやくやしい感情が沸き上がってきました。
そこで、奉賛会の事務員として関わり、今までのような少しさびしい・近寄りにくい雰囲気を一新し、より多くの方に、この地を知って足を運んでもらえるような整備に協力することにしました。
その後、平成30年4月に丸亀護国神社奉賛会が結成され、それから市と奉賛会でいろいろと協議していった結果、無事、神社をそのまま移設されずに置くこととなりました。
しかし、丸亀護国神社は長年整備されずに、境内の狛犬、手水舎、通路など、劣化が激しいものが非常に多いのが現状です。
より多くの方にこの地を知って足を運んでもらうには、かなり寂れて、客観的に見てどこか暗いイメージのある状態です。
そこで、この地を整備し、きれいな状態に生まれ変わらせ、多くの方に親しんでもらえるようにと、奉賛会で整備事業に着手することを決めました。
それから、丸亀市の事業で、クラウドファンディングという全国の大勢の方から貴重なご支援を頂き、プロジェクト(課題)を達成するという取り組みを知り、奉賛会でその話を出した時に「この神社のことをより多くの方に知ってもらい、力を貸してもらおう」と全会一致でクラウドファンディングに取り組むこととなり、今に至っています。
この事業を通して、個人的に・・・。
①きれいに境内を整備して、戦争体験者が子どもたちに戦争体験を講演し、平和の大切さを学び、感想を発表するような機会が作れるような空間を設けたい。
※近くに学校があるので、整備が終わってのちに、清掃奉仕や歴史の授業などに積極的に関わってもらおうと考えてます。
②普段において、子どもたちがかくれんぼや鬼ごっこなどをしたり、極端にいえばピクニックで訪れてもありだなと思えるくらい、境内に入ることに抵抗感が少ない空間整備ができたらと思ってます。
③訪れるきっかけ作りとして、例えばインスタ映えするようなスポットになれるのか考案中。
を思い描いています。
ぜひとも、そんな未来を1つでも多く叶えるためにも、クラウドファンディングでのご支援を強く祈っています。
1人でも多くの方に丸亀護国神社のこと、整備事業に対する思いが届きますように。
【奉賛会会員(女性)M・Mさんの声】
平和を思う教育を後世に伝えたい
丸亀護国神社奉賛会の会員です。
月に一度のお参りである「月次祭(つきなみさい)」は宮司さんをお迎えして厳かに催されております。
私は毎回これに参加させていただいておりますが、宮司さんのお祓いを受け、神社に祀られている英霊の御霊に頭を下げる度に常に清らかな気持ちになっていることに気づかされます。若い頃からどんな神社でもその前を通る際には手を合わせて拝むのが習慣でした。
そうすることで、何か大切なものを敬う精神が自然に養われた来たような気がいたします。そしてまた自然に礼儀をいうものを覚えたのではないでしょうか。
そんなことを考えると、神社というのは子供の素直な心を育てることに役にたっているにではないかと思います。丸亀護国神社は明治からずっと地域に人たちに大事に護られて来た、心の拠り所とも言うべき神社です。
私たちはこの丸亀護国神社を美しく再生させて「心の鏡」として後世に伝えて行きたいと願っております。どうか、皆様のご協力・ご支援をよろしくお願い申し上げます。
*本プロジェクトはAll-in方式で実施します。目標金額に満たない場合も、計画を実行し、リターンをお届けします。
最新の活動報告
もっと見るクラウドファンディング募集、終了。
2020/12/27 21:44丸亀護国神社奉賛会です。おかげ様で12月13日(日)をもちまして、丸亀護国神社の整備におけるクラウドファンディング募集が終了しました。貴重なご支援金を頂きました方、心より厚く御礼申し上げます。今後の整備事業に大切に使わせて頂きます。今後の活動もしっかりとお伝えできればと思っていますので、どうか引き続き応援を頂きますよう、お願い申し上げます。2020年はコロナ禍により大変な思いをされている方が大勢いらっしゃると思います。1日でも早くご回復されますよう、お祈り申し上げます。2021年はこれまで以上に笑顔の絶えない素敵な1年になること、そして皆様のご健勝とご多幸を心よりお祈り申し上げます。本当にありがとうございました。 もっと見る本日、募集期間最終日です。
2020/12/13 10:38本日、クラウドファンディングでの募集、最終日です。精一杯、募集の呼びかけをして参ります。何とぞ、よろしくお願い申し上げます。 もっと見る
大注連縄作り
2020/11/24 12:14令和2年11月21日(土)。毎年恒例の注連縄(しめなわ)作り。今年のできは「すごくよかった」らしいです。手際もよくてメインの作業は午前中に終了しました。今年は注連縄作りの技術を記録に残しました。ご協力頂いた皆様のおかげです。お疲れ様でした。 もっと見る






コメント
もっと見る