料理好きが使いたくなる、料理がはかどるステンレスレンジフードを届けたい!
キッチンに立つのがもっと楽しくなるように!!
プロダクトのご紹介
今回先行販売価格で提供させて頂くのは、こちらのサイドステンレスレンジフード!
アンティークとも調和するようコーナーカーブを採用しております!
ヘアライン仕上げによる清潔感と、日本最高峰の機能とデザインをお届け致します!!
こだわりは3点!
①スライドタッチスイッチ
感覚的にスマートな操作を可能にし、より使いやすく、よりスタイリッシュな設計にしました!
操作できる機能は以下の通りです!
・弱~強(5ノッチ)
・動作OFF
・24時間換気
・3分自動OFFタイマー
・3分ターボモード
・照明
また、スイッチがキッチン側だけでなく、リビング側にもついているタンデム設計で、LDKの一体感を高めます!!
※左右のどちらの壁にも設置できます
②均一照明LED
合計14個のLEDを使い調理面を均一に照らすことで、日々のお料理をより楽しい時間にして頂きたいです!
※均一照明イメージ
③ゆるやかなコーナーカーブ
ご夫婦でキッチンに立つ機会も増えているかと思います!
背の高い男性のケガにつながらないように、コーナーをカーブ仕様にし、より安全かつ、様々なデザインに合う設計にしております!
その他、お手入れ性にもこだわり、スイッチ・LED照明部はレンジフード本体とフラットにしており、拭き取りやすい仕様にしております。また、お手入れヶ所はワンタッチで取り外せる設計です!
お手入れ部分の外し方(動画)
「全体」
「キャッチトレー取付」
※キャッチトレーは食洗器の利用が可能です。
「ベルマウス・ファン取り外し」
プロダクト誕生までのお話
日本では、ステンレスでなおかつ薄型のレンジフードのラインナップはとても少なく、キッチンメーカーやエンドユーザーのライフスタイルの多様性に対応できていないと考えております!
どうにか、お客様のこだわりの住まい方の選択肢を増やしたいという想いから、スリムタイプのステンレスレンジフードの開発に取り組みました!
リターンのご紹介
リターンさせて頂く商品は、ステンレスレンジフードそのものです!
数量限定でステンレスレンジフード「SSM」を一台リターンさせて頂きます!
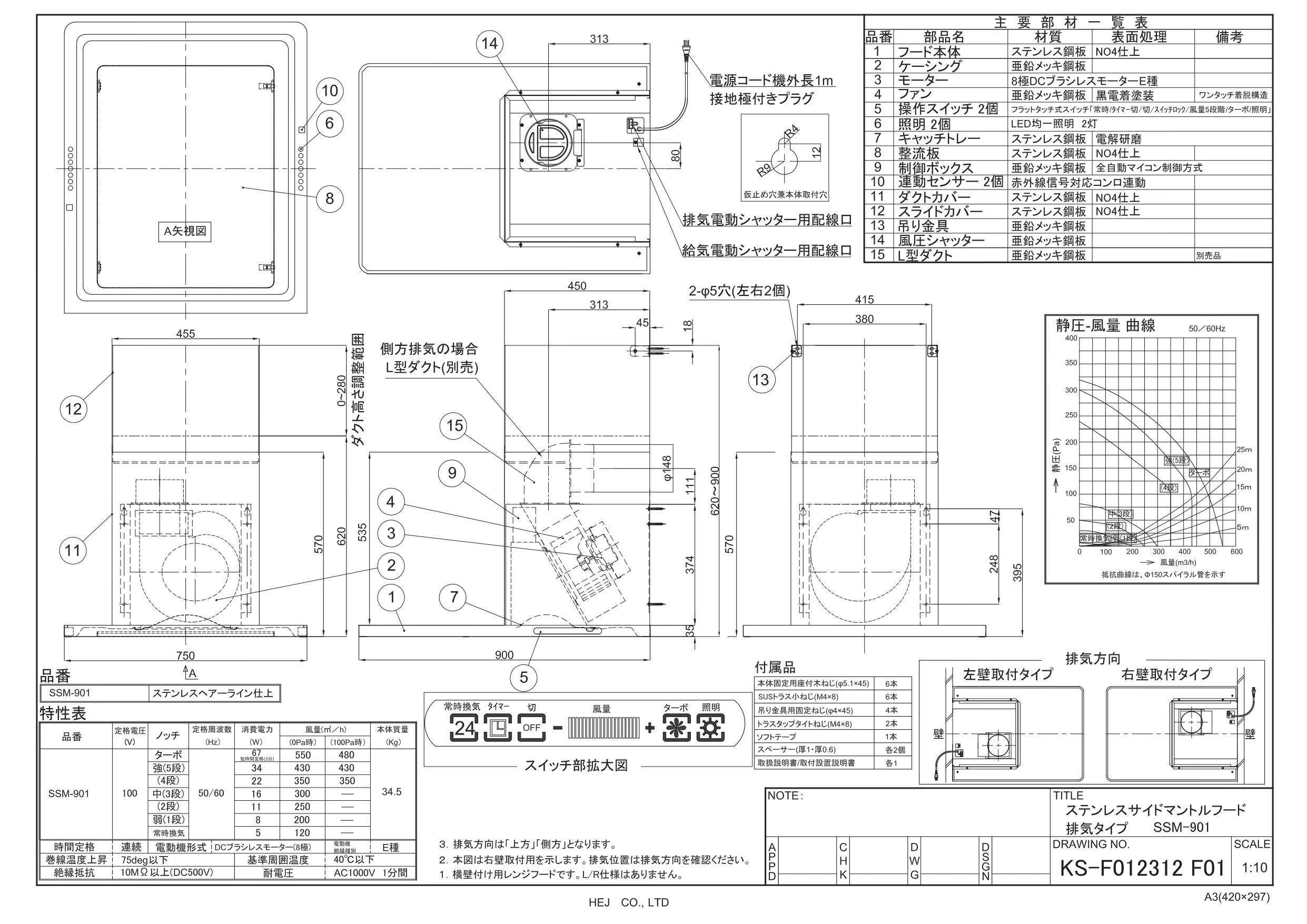
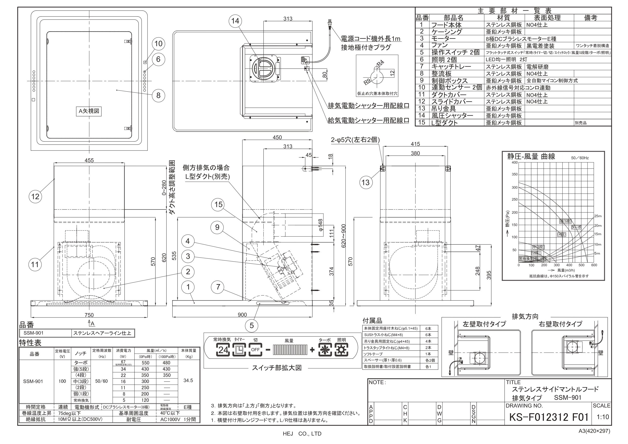
製品情報・仕様
製品の使用は以下の図面にてご確認ください!
仕様表を拡大します!
風量については以下の通りです!
※現在最終評価中ですので、発売時に多少の誤差があるかもしれませんことはご了承下さい。
お手入れ
・レンジフード本体のお手入れ〔汚れ次第都度〕
・キャッチトレーのお手入れ〔月1回程度〕
・整流板のお手入れ〔月1回程度〕
・ファン・ケーシングのお手入れ〔年2回程度〕
メーカー保証期間:1年
万一不具合がございました際には、無料修理規定に従ってご購入日より1年の期間、無料修理させていただきます。
All-in方式の場合
本プロジェクトはAll-in方式で実施します。目標金額に満たない場合も、計画を実行し、リターンをお届けします。
資金の使い道について
機器価格:約376,500円(送料込)
広報費:約30,000円
CAMPFIRE掲載手数料・決済手数料:約93,500円
ご挨拶
レンジフードの製造・販売を手がけるHEJでございます!
販売累計約60万台のレンジフードを製造・販売しております!
この度、ステンレスレンジフードを新発売するにあたり、先行販売限定価格でお届けさせて頂きます!
HEJでは「こだわりのライフスタイルをお客様と創り出す」ことをミッションとして捉え、お客様の自己実現を叶えるために開発を進めております!
ご支援、よろしくお願いいたします!!
会社情報
弊社は、1954年より家電部品の製造を開始し、大手メーカー様とともに邁進して参りました。
2004年にレンジフード業界に本格参入し、「こだわりのあるライフスタイルをお客様とともに創り出す」ことをモットーに製品開発を推し進めています。
OEMにて累計約60万台のレンジフードの供給を行って参りましたが、多くのお客様からお声を頂き、OEMだけでなくHEJオリジナルレンジフードの販売を開始し、オーダーキッチンメーカー様をはじめ、様々なお客様にレンジフードをお届けしております。
ライフスタイルの多様化により、エンドユーザーの求めるキッチンの在り方も変わってきていると感じております。
今後も65年の製造力とOEMで培ったノウハウを生かし、多くのお客様のライフスタイルに合った製品開発を行い、
よりよい生活環境の創造を目指していきたいと考えております。
-
会社概要-
社名
株式会社HEJ -
住所
〒520-0844 滋賀県大津市国分2丁目28-37 -
連絡先
tel.077-534-5788 / fax.077-533-1807 / mail:info@rangehood-hej.jp
-

グループ 沿革
最新の活動報告
もっと見る
ご要望にお応えして、煙捕集の様子を撮影致しました!!今度は後ろからと横からの整流板の働きもご覧頂けます!!
2020/11/19 12:16前回の煙の吸い込みは前からの撮影でしたが、今回は後ろ側と横側に近づいて撮影してみました!!まずは、後ろ側の整流板の働きを横からのアングルで!レンジフード外に出かけた煙もグンッと吸い寄せてるのがわかりますね!!続いて、下からのアングル!整流板がよく機能しているのが分かりますね!!新型コロナウイルス感染症対策には、部屋の換気は必須!!窓を開けることによる「自然換気」とレンジフードを使った「機械換気」を併用することで、「自然換気」だけに比べ安定的、効果的に室内を換気できます!!吸い込み性能抜群でスタイリッシュなステンレスレンジフードSSMをお試し下さい!! もっと見る
リターン品「ステンレスクロス」の製品紹介!!
2020/11/14 08:00リターン品に設定しております、ステンレスクロスについてご紹介させて頂きます!!ステンレス製品についた指紋を溶剤なし、水拭きだけで取れるので、環境・健康にも良く、時短が出来る優れものです^^ご用意しているのは、水拭き・乾拭き用2枚セット!研磨剤フリーなのに、指紋がよく落ちます!一般的なマイクロファイバーとの比較をしてみました!!HEJオリジナルステンレスクロスはセーム皮のような手触りで、この特殊繊維がマイクロクロスでは取りきれなかったヘアラインの中の指紋・皮脂を除去できます!洗剤も使わないので虹色が広がる心配もなしく、もう何度も乾拭きをして拭きあげる必要はありません^^レンジフードはもちろん、様々なステンレス機器にお使い頂けます!一般的なナイロン製マイクロファイバーより清掃面との密着性が高く、水拭き・カラ拭きで指紋・皮脂等の除去に優れた除去性能を発揮します!「糸くず残りのない特殊加工仕上げ」拭き残し、拭きムラがなくガラス・ステンレス面をキレイに仕上げます!また、用途に合わせて切ってお使い頂けます!「耐用洗濯サイクル数は約500回」大変経済的で、ランニングコストを軽減できます!「使うのは水だけ」洗剤を使わず指紋を拭き取るので、赤ちゃんがいる家庭でも安心してお使い頂けます!お客様へのプレゼントにもいかがでしょうか!!サイズ:33cm×38cmカラー:ホワイト※製品リニューアルの時期につき、パッケージ・サイズ・カラーともに変更の可能性がございます。 もっと見る
ご要望にお応えして、煙捕集の様子を撮影致しました!!
2020/11/13 09:08煙の吸い込みの様子を動画で見たい!というご要望にお応えし、早速撮影してみました!!まずは、正面からのアングル!スイッチを入れた瞬間から、煙が引き込まれる様子がわかります!!続いて、下からのアングル!一旦レンジフードより外に出た煙も吸い込まれていますね!!最後に整流板の近くから煙が流れる様子をお届けします!新型コロナウイルス感染症対策には、部屋の換気は必須!!窓を開けることによる「自然換気」とレンジフードを使った「機械換気」を併用することで、「自然換気」だけに比べ安定的、効果的に室内を換気できます!!吸い込み性能抜群でスタイリッシュなステンレスレンジフードSSMをお試し下さい!! もっと見る







コメント
もっと見る