●はじめに●
はじめまして。那須礼二と申します!
まず、プロジェクトページをご覧下さり、ありがとうございます。
僕は2019年から奈良県宇陀市に地域おこし協力隊員として移住してきました。
現在はBEER HOLIC BREWINGというファントムブルワリー(醸造所を持たず、設備を借りて醸造するブルワリー)の代表として、クラフトビールを通じた町おこしを行っています!
今回はこの町を盛り上げる拠点『ながぼ荘』を作るため、物件の改築等に関わる費用を集めるべくプロジェクトを始めることを決心しました。
最後までどうぞ、お付き合い下さい!
●このプロジェクトで実現したいこと●
僕は宇陀市を『ワクワクしてくる町』にしたいと思っています。
例えば、
・好きなお店がたくさんある
・新しい発見や出会いがある
・商店街でいつもイベントをやっている
・クリエイティブな取り組みが行われている
・新たなチャレンジが常に生まれている
その他諸々、全部ひっくるめて『ワクワクしてくる町』です。
そんな、僕の夢を実現する第一歩となる拠点を紹介します。
宇陀市の商店街にある3階建ての建物で、僕は『ながぼ荘』と名付けました。
長細いので『な・が・ぼ・そ・う』です。
その佇まいを見て、思わずフッと笑えてくるような、そんな名前が僕は気に入っています。
そして、『荘』という字は昭和の名漫画家達が住んだ『トキワ荘』から取りました。
夢を持った人達が集まり、いろんなチャレンジがここから始まってほしいという願いを込めています。
ながぼ荘を発端として、ワクワクしてくる町にする事がプロジェクトを通じての目標です。
●プロジェクトをやろうと思った理由●
約2年、この町で暮らしてきた僕が感じたことは、
『カルチャーが集まる場所がない』
ということです。
様々な価値観を持った人が気軽に足を運び、そこに行けば何か新しい発見がある。
そんな場所がこの町にはないと感じたのです。
沢山のメディアで『地方移住』が題材になり、各地の田舎で自分の思うライフスタイルを過ごしている、そんな人が特集されています。
そこに決まってあるのは、シェアオフィスやコワーキングスペースといった、『人が集まってくる場所』です。
移住者と居住者が交われる、都会と田舎のいいところを上手く合わせた空間があるんだと思います。
コロナ禍で『地方移住』という機運が高まっている中、宇陀にはそういった場所がありません。
町を盛り上げようと頑張っている人は沢山いるのに、その人達に出会えるハブとなる場所がない。
そんな場所があれば、これから来る人も今住んでいる人も交流ができ、町が少しずつワクワクする空間になっていくんだと思っています。
ながぼ荘をハブに、いろんな人達が出会い、新たなカルチャーが生まれる、そんな場所を作っていきたいと思ったのがこのプロジェクトのきっかけでした。
●僕の住むまち『宇陀』●
宇陀市は奈良県の北東部に位置する町です。
宇陀市を一望できる鳥見山公園から見た風景
山間の中にある町ですが、大阪市内まで電車で1時間程度で行けるアクセスの良さがあります。
歴史も古く、「古事記」「日本書紀」等にも記載があるほか、大和と伊賀・伊勢を結ぶ東西の交通の要所としてお伊勢参りの宿場町として栄えました。
『又兵衛桜』や『室生寺』といった観光名所もあり、一年を通じ楽しむことができる場所でもあります。
そして、ながぼ荘は宇陀市の中心地、榛原(ハイバラ)駅前の商店街の中にあります。

ゆっくりとした時間が流れる商店街ですが、平日はもちろん休日の人通りも少ないのが現状です。
このプロジェクトがきっかけとなり、いろんな人達が行き交う楽しい場所にしていきたいです。
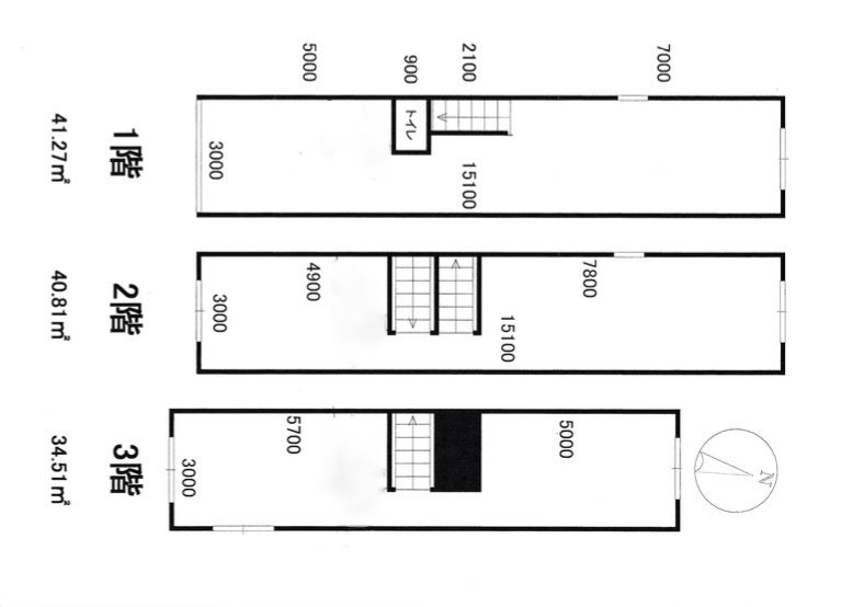
●ながぼ荘で行うこと●
ながぼ荘平面図
・1F
昼間はカフェ・夜はクラフトビールを楽しめるビアバーにします。
ランチを楽しんだり、コーヒーを飲んで休憩したり。夜は美味しいビールを飲んで会話が弾むそんなお店にします。
サードウェーブコーヒー店のように都会的でミニマルな雰囲気の店内にする予定です。
・2F
北スペースは畳を敷いた和風なコワーキングスペースに。週末はワークショップの会場等にも活用します。南スペースは全国の良いものを取り寄せたセレクトショップになります。
1階とは異なり、和風なテイストの中、仕事や勉強ができるスペースを目指しています。
・3F
デザイナーやクリエイターの方に向けたシェアオフィスを準備します。
ここから新しい宇陀の名産品や様々なプロダクトが生まれる、そんなカルチャー溢れる人達が集まる空間にしたいです。
●資金の使い道●
集まった資金は、ながぼ荘の改築費用にさせて頂きます。
2・3階は、ほぼDIYで自分たちで改装を行います。什器の材料や店内装飾に関わる費用となります。
店内は写真のように何もない空間ですので、一からのスタートとなります。
●さいごに●
移住してきたときは、地縁も血縁もない中、この町で暮らしていけるのか不安でした。
しかし、これまでたくさんの人に出会い、仲間も増え、今では宇陀がとても好きな町になりました。
そんな町にどんな形であれ恩返しをしたいと思い、今回『ながぼ荘』を始めることを決心しました。
『不安定な世の中での開業はどうなんだろうか。本当にお客さんは来てくれるのだろうか。』と思っていた時期もありました。
しかし、こんな状況だからこそ、誰かが始めないと何も変わらない。今はそう思っています。
ながぼ荘を初めて見た時に、『ここなら絶対にできる。町を変えられる。』と感じました。
そんな想いがずっと胸の中で燃え続けています。
最後までお付き合い頂き、本当にありがとうございました。
活動報告やリターンを通じて日々の進捗を報告させて頂きます。応援のほどよろしくお願いいたします。
那須礼二
最新の活動報告
もっと見る遂にながぼ荘オープンしました!
2021/05/01 15:58こちらの活動報告は支援者限定の公開です。プロジェクト達成することが出来ました!ありがとうございました!
2021/03/16 08:23ながぼ荘の那須です。先日無事にプロジェクトが終了しました!本当に沢山の方にご支援を頂き、目標を達成することが出来ました!ありがとうございました!!ながぼ荘は4月のオープンに向け、日々工事を進めております。この場やsnsを通じて皆さんに活動を報告していきたいと思っております。今後ともながぼ荘をよろしくお願いします! もっと見る
プロジェクト最終日です!
2021/03/14 08:30ながぼ荘の那須です!さぁ、遂にプロジェクト最終日となりました。「ながぼ荘」を作ろうと思ってから半年が経ちました。最初は自分一人で本当に出来るのだろうかと不安な気持ちがありました。しかし、このプロジェクトを通じて本当に沢山の方から応援して頂き、決して一人ではない、応援してくれる皆さんがいるんだと凄く心強く感じています。本当にありがとうございます。そして、一人でも多くの方にながぼ荘を知って頂く機会にもなったかなと思っています。あと少し!最後まで頑張ります! もっと見る






コメント
もっと見る