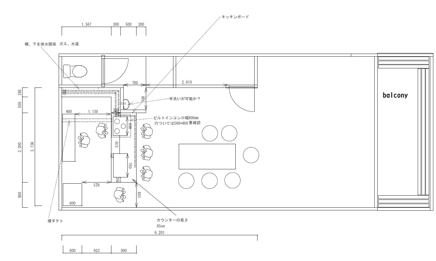
ご使用を前提とする方に図面を公開いたします。素人の図面なのでご参考までにお願いいたします。今後、什器等も増やす予定です。





現在の支援総額
851,000円
目標金額は1,000,000円
支援者数
55人
募集終了まで残り
終了
このプロジェクトは、2021/02/22に募集を開始し、 55人の支援により 851,000円の資金を集め、 2021/03/31に募集を終了しました





現在の支援総額
851,000円
85%達成
目標金額1,000,000円
支援者数55人
このプロジェクトは、2021/02/22に募集を開始し、 55人の支援により 851,000円の資金を集め、 2021/03/31に募集を終了しました
ご使用を前提とする方に図面を公開いたします。素人の図面なのでご参考までにお願いいたします。今後、什器等も増やす予定です。
昨日はレセプションにお越し頂きありがとうございました♪♪予想以上の方のご来場に、大変嬉しく思います。そして、点と点が繋がり線になる様に、沢山の方が繋がっていて、改めてここ本宮市にクリエイターズの拠点となるグラウンドが出来る事に、胸が膨らむばかりです。そして昨日いよいよ、クラウドファウンディングがスタートしました!既にご支援頂いてる皆様、ありがとうございます。今回は「中條キッチン編」と言う事で、これから冷蔵庫やオーブンの電化製品、いろんな方に幅広く使って頂ける為の設備等に、ご協力頂きたいと思っております。その一つ一つの気持ちが、色んなクリエイターの支援にも繋がると思っております。プロジェクトに関わるメンバーさんのご好意もあり、リターンの内容も幅広くご用意してますので、是非ご覧下さい。https://camp-fire.jp/projects/377812/preview?token=39mq3e1r