こんにちわ。chignitta谷口です。
私は、現在、キャンプファイヤー上で、自己実現したいクリエイターを応援するオンラインコミュニティ「chignitta」を、パートナーである笹貫淳子と運営しています。
「自分には何かある」。そんな才能を信じて、インディペンデントで頑張るクリエイターたちが集まり、それぞれの考えていること、夢やアイデアをみんなで実現すべく、活動を続けています。現在参加メンバーは90人を超え、アーティスト、イラストレーター 、グラフィックデザイナー、webクリエイター、写真家はもちろん、建築家、サラリーマン、農場を運営する人、地方でホステルを営む人、音楽ディレクター、街づくりのプロなど地域や職業も様々。「なにかをはじめたい」人たちがオンライン上で日々コミュニケーションしています。
chignittaコミュニティメンバー募集中です。
https://community.camp-fire.jp/projects/view/416920
今回、私たちがこの夏、大阪、京町堀にオープンさせようと計画中のchignittaスペースをご支援していただきたく、このクラウドファウンディングを立ち上げました。
メンバーを紹介します。

中央左)
谷口純弘(chignittaファウンダー)1963年生まれ。FM802若手アーティスト発掘プロジェクト「digmeout」プロデューサーとして、企業プロモーション、アートブックの発行、国内・海外での展覧会などを手がけてきました。2015年よりアートフェア「UNKNOWN ASIA」を企画・主催。2021年、笹貫淳子とアートプロジェクト「chignitta(チグニッタ)」をスタート。
中央右)
笹貫淳子(chignittaファウンダー)商社にて海外ブランドの日本展開でファッション•ライフスタイル領域のマーケティン・ブランディングに長らく従事後、日本と海外のクリエイティブ制作などフリーランスコーディネーター、アート関連のPRとして2016年独立。大阪で海外クリエイターとのコネクション多い一人。2017年〜2020年「UNKNOWN ASIA」実行委員、2020年アートプロジェクト「ARTGOESON」主宰、2021年盟友・谷口純弘とchignittaを開始。
左)
中矢丸(VADE MECVM. 代表)1994 年、アーティストブランド「VADE MECVM.」設立以降、アートとファッションを融合したコレクションを国内外で制作発表。2017 年には、再創生コンサルティングブランド「Re-creations recreate JAPAN.」、植物環境ブランド「Ladies & Gentlemenʼ s Chainsaws」、クリエイター専用シェアスタジオ「Ver. Creative Studio」を開設し、国内外クリエイターと様々なプロジェクトを進行中。今回、京町堀、靱公園の VADE MECVM. Showroom #2 で chignitta とのコラボレーションを提案してくれました。
右)
天野慎太郎 (A3/デザイナー) インテリアデザイン事務所→建築設計事務所→リノベーション会社(現職)の経歴を基盤に、空間から家具までをデザインする個人ワーク「A3」 としても活動しているデザイナー。今回、chignitta+VADE MECVM.をつなぐコンセプトをもとに、スペースデザインを担当。
この4人とchignittaコミュニティメンバーが一緒になって、スペースのオープンに向けて準備を進めています。


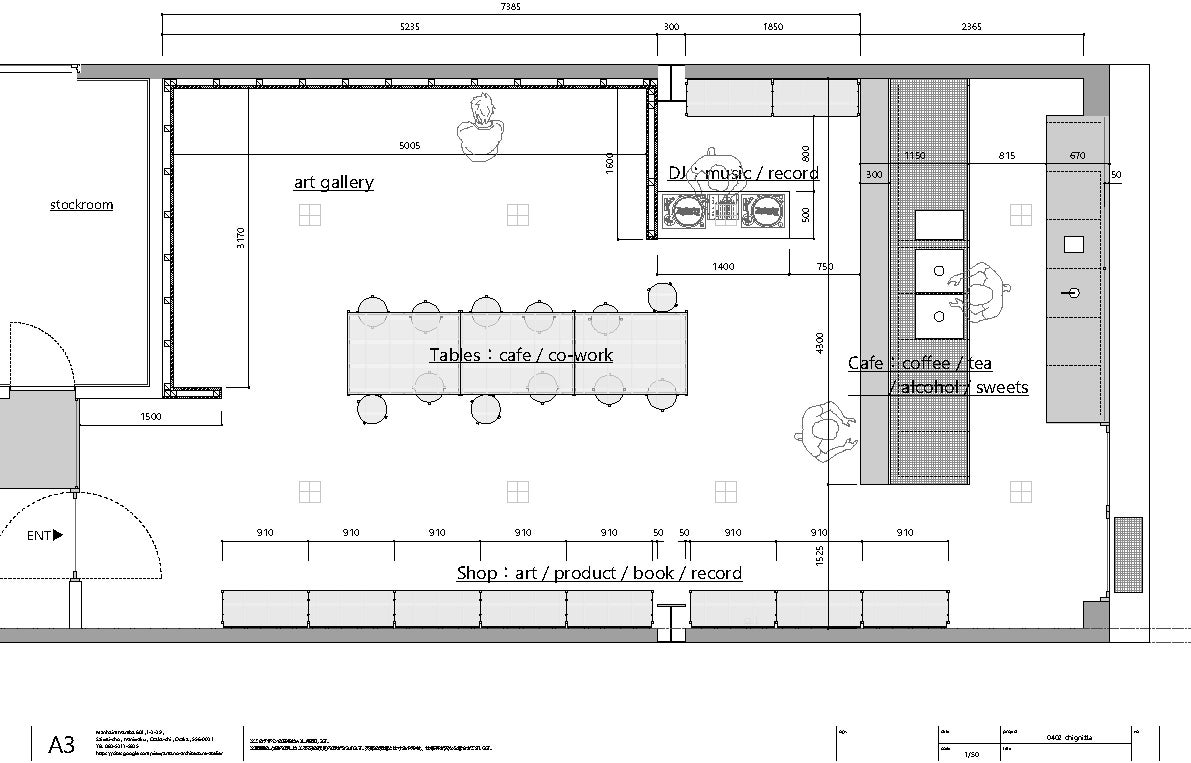
写真をご覧ください。この30坪のスペースに、国内外から様々なアーティストの展覧会を開催するアートギャラリー 、アートブックやZINEなどが揃うブックストア、コーヒーやビールが楽しめるカフェカウンター、レコードショップ、DJがアナログでレコードをプレイできるDJブースなどを設置予定です。
展覧会の企画をしてみたい、カフェや音楽バーのトライアルをしてみたい、DJパーティやりたい、マルシェやブックフェアを企画したい、など、一人では場所を持てないけれど、ここにアイデアを持ち寄って、面白いことを実施するコミュニティスペースにできればと考えています。
現在プラン中の図面をご覧ください。


<設計図>

<スペース検討中>
chignittaスペースは「大阪のセントラルパーク」靱公園に面したオープンマインドな場所にあります。アーティストやクリエイターだけの場所ではなく、大人も子供も、近所の人たちも集まる場所としても機能させたい。定期的に開催するマルシェ 、子どもと一緒のワークショップ、リサイクルをテーマにしたフリーマーケットや各種教室も企画しています。

<窓から靱公園の緑が目の前に広がります>
私たちが運営するchignittaコミュニティでは、『やりたいアイデアを実行するために、リスクを全部自分で負う必要はない』と考えます。誰かが声をあげたそのアイデアが、みんなにとって「面白そう」で「役に立ちそう」で「応援したく」なるのであれば、どんどん提案してクラウドファウンディングを立ち上げるべきだと思っています。
Chignittaスペースは、コミュニティメンバーだけのクローズドな場所ではありません。これを読んでくださっているあなたの場にもなり得る開かれた場所です。
ここにくれば、誰かと会える、アートがある、デザインがある、音楽がある。本が読める、コーヒーで安らぐ。新しいアイデアがみつかる、元気がもらえる、心が豊かになる。そんな開かれた場所、例えていうなら「町内会の集会所」的な温もりのある場所、発展的な場所を目指しています。
オープンに皆様ご支援とチカラをお貸しください。よろしくお願いします! いただいたご支援金はスペース工事費用、運営費用に使わせていただきます。関わっているクリエイターがアイデアをよりよく実現できるよう、今回のご支援を大切に使わせていただきます。
chignittaスペース、5月末には内装が完成、6月18日オープンに向けて準備を進めています。 オープンの暁には是非お越しください。僕たちはいつでもここにいます。
chignitta space 6月18日オープン予定
住所:〒550-0003 大阪府大阪市西区京町堀 1-13-21 1 階奥






コメント
もっと見る