◆リターンの追加◆
プロジェクト終了まで残りわずかというタイミングになってしまいましたが、リターンを追加させていただきます。
詳しくはリターンの説明欄からご覧ください。
①肉球マスク
②オリジナルプリントマスク
③奥田俊輝イラストマスク
マスクの材質、サイズ、色などは全て共通となります。
洗える素材のため、繰り返しご使用が可能です。
サイズの目安
子供用:小学生以下向け(かなり小さめ)
Sサイズ:女性や小顔の方向け
Mサイズ:男女兼用サイズ
Lサイズ:成人男性向け(かなり大きめ)
材質:ポリエステル91.8%、スパンデックス8.2%
(ウレタンマスクではないため、つるつるとした肌触りが特徴です)
色:ホワイト、ブラック、グレー
生産国:中国
※ハンドメイドのため、デザインに多少の誤差がありますが、ご了承ください。
※作成時は手袋を着用しますが、一度洗ってからお使いください。
※洗濯方法は手洗いをおすすめします。
※あくまでファッションアイテムであり、衛生商品ではありません。
ーーーーーーーーーーーーーーーーーーーー
はじめに・ご挨拶
皆さんはじめまして!このプロジェクトをご覧いただきありがとうございます!
温泉の街、岐阜県下呂市で田舎暮らしをしている奥田俊輝と申します。初めてのクラウドファンディングで不慣れなところがあるかもしれませんが、最後までご覧いただけたら嬉しいです!
自己紹介
・奥田俊輝
・2000年7月27日生まれ
・岐阜県下呂市出身
・高校を卒業後、名古屋の専門学校に入学
・専門学校を卒業後、下呂市に戻り健康づくりのための運動指導を始める
・古民家リノベーションに挑戦中!
プロジェクトを立ち上げた背景
専門学校を卒業し地元に帰り、久しぶりに地元の友人と話をしていた時に、友人の飼っているワンちゃんの話になりました。そのワンちゃんというのも15歳の高齢犬で、最近すごく元気がなくなってきたということでした。また、年々暑くなる夏の気候も重なり、楽しく遊ぶことが出来なくなってしまったという悩みがありました。

(スティッチ君 15歳)
そこで、ワンちゃんがのびのびと遊べる場所を作ろう!という話になりました。しかし、自分たちだけで使うのはもったいないので、たくさんのワンちゃんに使ってもらいたい!と思い、このプロジェクトを立ち上げました。運良く、現在リノベーション中の古民家の横に、家族が所有する空き地があるため、そこを利用する予定です。


▼位置情報▼
https://goo.gl/maps/H1mZTFhRVY9EmhbF8
ナイトドッグランの説明
まず最初に、ナイトドッグランとは何か説明していきます!
ナイトドッグランはその名の通り、夜でも利用できるドッグランです。ストリングライトを使ってライトアップし、飼い主さんも楽しめる空間を作りたいと思います。
(ストリングライト)

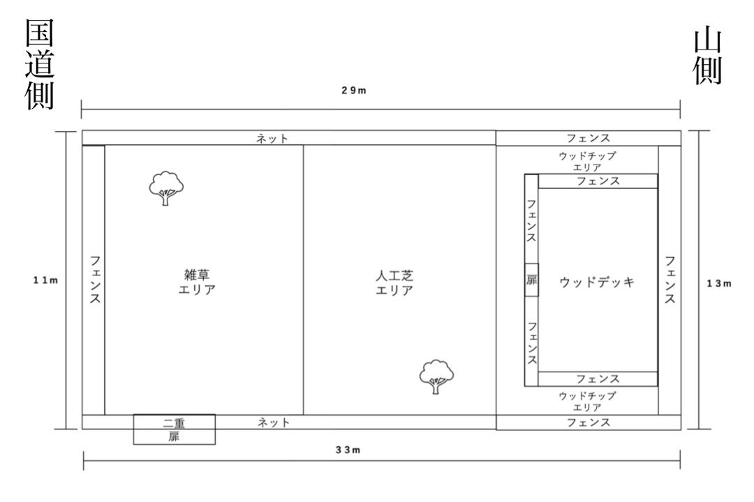
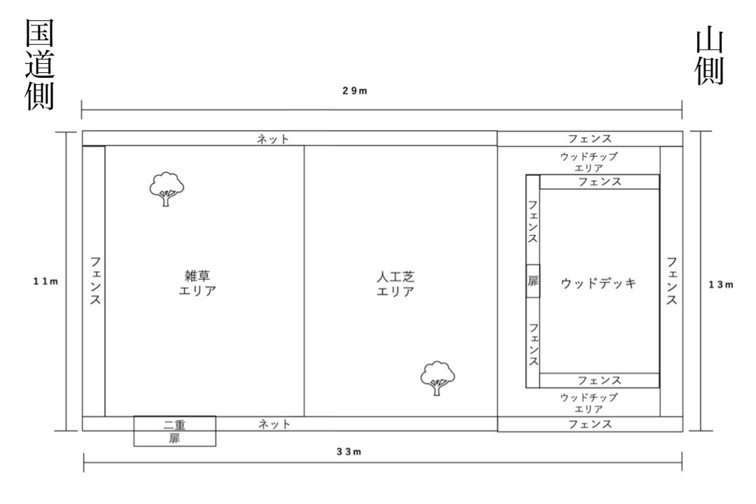
ドッグランは人工芝エリアと雑草エリアの2エリアを作り、ワンちゃんがどちらを好むのか検証も行います。
雑草エリアにはシロツメクサ(クローバー)を植えます。
ウッドデッキの周りにはフェンスを取り付け、ワンちゃんとの距離をあけて、飼い主さんが簡単な飲食をできるようにします。
なぜナイトドッグランなのか
次に、なぜワンちゃんと楽しく遊ぶためにナイトドッグランが必要なのか説明します!
ワンちゃんは体温調節が苦手なため、夏の散歩は日が沈んでからになります。しかし、田舎の夜は真っ暗になるため、散歩ができる時間も限られています。そのため、飼い主さんの帰りが遅くなる時は、散歩をやめてしまうこともあります。
(田舎の夜)
このような理由から、夏は運動不足になりストレスが溜まってしまうワンちゃんがいます。そこで、夜でも時間に縛られず運動ができる場所が必要となってきます。

また、田舎ならではの問題として、ワンちゃんのリードを離すと山へ走って行ってしまうこともあるため(体験済み)、田舎だからといって、道を自由に走り回ることも簡単ではありません。そのため、リードを離して思いっきり走り回ることができる場所として、ドッグランが最適です。
しかし、そんな好条件の場所が人口3万人の街にあるはずもなく、ワンちゃんのお散歩は朝方と夕方のわずかな時間に限られています。
以上の理由から、今回ナイトドッグランに着目しました。ナイトドッグランなら暗くなった夜でも自由に走り回ることが可能になります。
このプロジェクトで実現したいこと
コンセプトは、「飼い主さんも快適なナイトドッグラン」です。ワンちゃんだけでなく、飼い主さんも一緒にくつろげるドッグランを目指します。
ワンちゃんは楽しく走り回り、飼い主さんはウッドデッキでゆっくりくつろぐ、そんな憩いの場を作っていきたいです。このプロジェクトを通してワンちゃんと飼い主さんに新たな楽しみを提供していきたいです!
資金の使い道
ドッグラン開設のために、自己資金+支援金を以下のように活用致します。(あくまで目安になります)
・芝代 50%
・木材代 10%
・ネット代 8%
・ストリングライト代 7%
・ウッドチップ代 2%
・その他雑費+管理費 6%
・CAMPFIRE手数料 17%
環境に優しいドッグランを目指し、できるだけ古民家の廃材や間伐材をフェンスやウッドデッキに再利用します。そのため、木材代は低く設定しています。


実施スケジュール
7月下旬〜 整地
8月上旬〜 フェンス作り
8月下旬〜 ウッドデッキ作り
9月下旬〜 人工芝施工
10月上旬〜 完成

(整地開始)
残念ながら、今年の夏には間に合いませんが、少しでも早く完成できるよう頑張ります!来年の夏には本格的に使用していきます。
利益目的ではなく、たくさんのワンちゃんに使ってもらうことが目的のため、利用者さんから最低限の管理費のみいただきます。
ナイトドッグラン利用料金は、ワンちゃん1匹あたり、30分で300円、貸切が30分で500円を予定しています。
また、電気代のいらない昼間は無料開放し、ワンちゃんの遊び場として使ってもらえればいいなと考えています。
リターンのご紹介
わずかではありますが、ご支援いただいた方へのリターンを用意いたしました。
詳しくはリターンの詳細文をご覧ください。
このプロジェクトでは、支援者様のお名前をSNS等で紹介させていただきます。匿名をご希望の方は、備考欄に「匿名希望」とご記入ください。
配送が必要なリターンは全て配送料込みの金額となります。
リターンの有効期限は、以下のようにさせていただきます。
・ドッグラン完成から始まり、ドッグランが存続する限り
リターンに欠陥があった場合は交換いたします。その場合の送料はこちらが負担いたします。返品可能期間は商品が到着してから3ヶ月以内とさせていただきます。
リターン一覧
◆お礼のメッセージ
◆プレオープンご招待券
◆ワンちゃんにおやつを送れる権
◆フェンスに名前残せる権
◆エサ台DIYキット
◆奥田俊輝レンタル権
◆シルバー会員権
◆ゴールド会員権
◆肉球マスク
◆オリジナルプリントマスク
◆奥田俊輝イラストマスク
最後に
最初は数人の友人とこんなのがあったらいいなという思いつきで始まったプロジェクトですが、構想を練るうちに自分たちだけのためではなく、より多くのワンちゃんの役に立てたらいいなという思いが強くなりました。
このプロジェクトを通して、地元だけでなく日本全国のワンちゃんと飼い主さんに明るい話題を届けていきたいです。
応援よろしくお願いします!
特定商取引法に関する記載
・送料:送料込み
・対価以外に必要な費用:プロジェクトページ、リターンに記載のとおり。
・ソフトウェアに係る取引である場合のソフトウェアの動作環境:該当なし
・その他記載事項:プロジェクトページ、リターン記載欄、共通記載欄(https://camp-fire.jp/legal)をご確認ください。
※上記以外の事項に関して必要な場合、請求があり次第提供致しますのでメッセージ機能にてご連絡ください。
本プロジェクトはAll-in方式で実施します。目標金額に満たない場合も、計画を実行し、リターンをお届けします。
最新の活動報告
もっと見る両エリア開放しています!
2023/08/29 10:06こちらの活動報告は支援者限定の公開です。
名前入りフェンスが完成しました!
2022/08/19 14:50天然芝エリアの名前入りフェンスが完成しました!天然芝エリアはまだ開放出来ていませんが、完成した際にはぜひチェックしてみてください! もっと見る
ナイトドッグランオープンします!
2022/08/08 22:00ドッグランにストリングライトが付き、ナイトドッグランが完成しました!2022年8月13日から人工芝エリアをナイトドッグランとして開放します!ーーーーーーーーーーーーーーーーーーー営業時間18:00〜21:00土日限定完全予約制料金1頭:500円2頭目以降:300円貸切:1時間1000円時間無制限予約方法公式LINEorインスタグラム最終予約前日23:59まで当日予約不可ーーーーーーーーーーーーーーーーーーー公式LINE、インスタグラムは、プロフィールのURLからご確認ください。ご不明な点はいつでもご連絡ください。 もっと見る





コメント
もっと見る