はじめに・ご挨拶
最近、運動不足になってはいませんか?
・コロナ禍で安心してジムに通えない
・そろそろ自宅以外でトレーニングをしたい
・24時間ジムでトレーニングしているが、人との接触をなるべく避けたい
ジムで始めてトレーニングをする方のジムデビューのハードルを下げたい、長期化したリモートワークによる運動不足解消して、安心できるジムで利用していただきたいと考えています。
私たちLi-Tはそれぞれ違ったスポーツ歴を持つ高校の同級生3人で立ち上げたグループです。

いろいろなアプローチからフィットネスを幅広い層に楽しんでもらいたいという思いで発足しました。
Li-Tはフィットネスに取り組むすべての人を応援する団体です。
夢は、何ですか?
綺麗な姿勢で、清々しく歩き立ち居ふるまいをするのも、夢だと思います。
分かりやすく運動が上達するのも夢ですが、運動を通した小さい日常を感じたり、まずは小さく目標をつくり、暮らしに、はたまた人生自体に影響がある目的に気づいたり、楽しいですよね。
より良いと思う前向きなわくわくを共に、実感し、共に生活に、夢にインパクトを照らし励みあいましょう。
Life Impact、、、Li-T
この施設を作ることで下記のようなメリットがあります
・人になるべく接触せずにトレーニングできる
・24時間ジムと変わらない金額で好きな時間に1人でトレーニングできる
・他社より安くパーソナルトレーニングを受けられる
・運動不足解消ができる
運動習慣をつけることで生活にメリハリがつき、より効率的に仕事や勉強を行うことができるとハーバード大学や米国ジョージア工科大学の研究で証明されています。
例えば、ハーバード大学医学部のジョン・J・レイティ博士によると、運動をすることによって脳の神経細胞が育ち、結果的に頭がよくなるとのこと。また、筋トレを行うと記憶の定着を促す神経伝達物質が分泌されることも判明しています。
米国ジョージア工科大学の研究では、20分間の筋トレで記憶力が10%ほど向上することも分かっていることから、暗記科目を学習した直後に筋トレをするのが最も効果的だと言われています。
私たちは個人利用できるジムとしてより良いトレーニングが行える環境を整えると同時に、24時間ジムと比較しても通いやすい価格帯を実現したいと思っています。

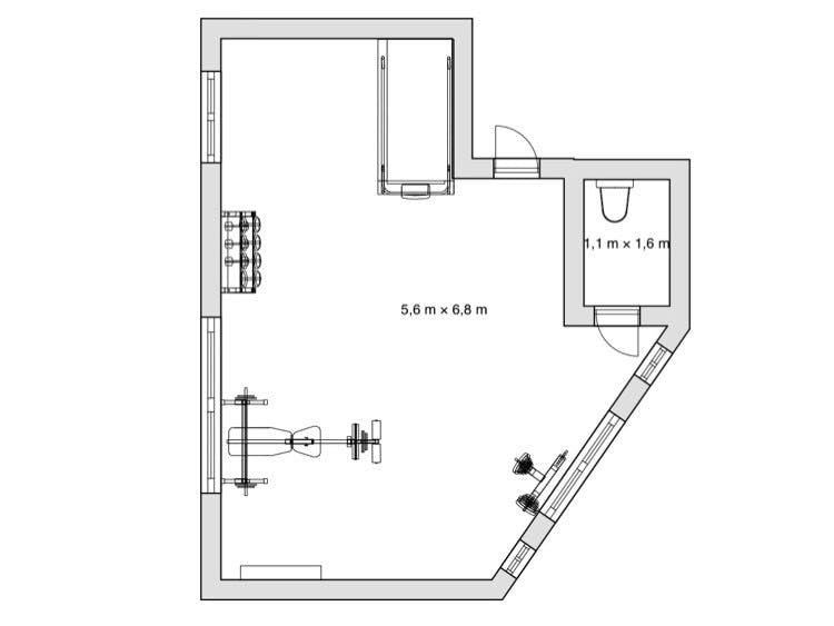
当社は、東府中駅から徒歩1分のところにあるビルの一室を改装し個人利用できるジムを作りたいと思っています。



また、非常勤ではありますが、実績のあるコーチを招集してのパーソナルトレーニングやオンラインでのトレーニング(目的に合わせたトレーニング指導)を選択できるように予定しております。
資金の使い道・実施スケジュール
ジムスペースの新規オープンは、着金があり次第、工事着工に入り、機具の搬入設置後となります。年末年始時期を挟みますから、工事がなかなか進捗されにくいそうです。オンラインは、先に開始の運びとなるようご連絡致します。予めご理解ご了承ください。
2022年春頃
(一部CAMPFIRE手数料に使用されます。)
また、既にYouTubeや他のSNSへの投稿も始めていますので、是非ご覧ください。
このプロジェクトで実現したいこと・未来構想図
将来展望
私たちは今後、環境準備を整えながら、カフェスペースなどの展開を順次拡大していき、ケガの予防から身体能力の向上まですべてのアスリートのステップアップを手助けする
アスリート特化型したジムを展開したいと考えています。
自分の身体を変えたい、何歳になっても動ける健康的な身体を維持したい、作っていきたい
どんな方にも利用したいと思ってもらえるものを、皆さんと一緒に作っていきたいです。
カフェスペースでは
飲み物はプロテインやコーヒーをメインに軽食では内側から身体を育てていこうということで、トレーニング前、後でみなさんに取ってもらいたいメニューを展開していく予定です。
もちろんジムの利用をしなくてもカフェ利用だけを楽しんでもらうことも可能です。
是非みなさんに楽しんでもらえるようなものを考えいます。
プロジェクトをやろうと思った理由
まずは、このプロジェクトを通してLi-Tを皆さんに認知してもらうのと同時に、ジムで始めてトレーニングをする方のジムデビューのハードルを下げたい、長期化したリモートワークによる運動不足解消を安心できるジムで利用していただきたい、正しい方向からのトレーニングに対するアプローチを学んでいただきたいと考えています。
そして、メンバーの居住地であるオーストラリアやブラジルでは公園にトレーニング用の器具があったり、日本に比べ安価にジムを利用でき、サプリメントやプロテインなどが街で気軽に手に入れられるなど大きな括りで日本よりフィットネスに対するハードルが低いと感じます。
私たちは少しでもこのハードルを下げたいと思い気軽に安心して通えるジムを開業することを決心しました。
リターンについて
1000円- 『お礼メッセージ』
1000円-『Li-TのSNSで投稿+お礼メッセージ』
SNSで支援してくださった企業名、個人名を投稿いたします。
1500円-『親子で一緒にトレーニング!!』
目的や成長段階によりメニューは異なりますが、家族のコミュニケーションを一緒に汗をかきながらとってみるのはいかがですか?
※Slackを利用し、この商品をご購入下さったお客様限定のコミュニティを開設します。
毎週、親子で一緒にできるトレーニングをメンバー限定で更新、公開していきます。
2,500円
『お礼メッセージ+ジム利用回数券2枚』
※入会費は別途
5000円-『お礼メッセージ+ジム利用回数券5枚』
※入会費は別途
10000円-とにかく応援コース』
とにかくLi-Tを応援して頂ける方に是非!!
10000円-『月会費+ジム利用回数券1枚』
※計5回ジムの利用可能
※入会費は別途
10000円-『海外プロサッカー選手によるオンラインでのコンディショニングトレーニング』
※6回
※日時は要相談
※1コマ60分
40000円-『パーソナルトレーニング 5回』
ベストボディ・ジャパン2021水戸大会にて、見事にグランプリを勝ち取った谷拓磨さんによるパーソナルトレーニング
50000円-!!大セール!!『入会費+月会費(1月分)+ジム利用回数券(30回分)』
通常89000円のところ今回限り、この価格!!
100000円-!今回限りの限定募集!『目標体重まで一緒に頑張りましょう』
目標体重まで何回でもマンツーマントレーニングをして落とします。
※Openより1年間有効
※当ジム入会金フリー
100000円-『個人パートナー』
Li-TのInstagramアカウントでお名前をメンションでご紹介
Li-T立ち上げ者との定期的なミーティング
※ご自身の自己紹介。なぜ応援しようと思ったのかを備考欄にて教えてください。
※ZOOM利用しての開催となります。
500000円-『Li-Tパートナー』
Li-Tは、Li-Tのコンセプトと、皆さんそれぞれがイメージするものを合わせ、みんなの未来を前向きにつくりあげていくF1を目指します。
あなたも、F1スポンサー、サポーターのようにわくわくを共有するLi-Tの共同者や、提携パートナーになり、二人三脚で面白いと思えるようなものを作って行きませんか?
Li-TのSNSアカウントでお名前をメンションでご紹介させて頂きます。
ジム利用回数券30回分+パーソナルトレーニング3回分
ジムの壁にお名前を入れさせて頂きます。
月1でのミーティングにて事業報告や今後の方針、意見交換などを話していければなと思っています。
※備考欄に氏名を記載
Instagram又はTwitterをお持ちの方はアカウント名の記載もお願いします。
※ジム利用回数券30回分+パーソナルトレーニング3回分はジムが営業する限り有効。
※ジムの回数券の利用はジム開業以降となります。
※ミーティングは21年12月から定期的に行います。
※ミーティングはZoomを利用しての開催となります。
リターンの提供方法は、登録していただいたメールにて回数券やリンク、URLをお配りし、こちらの名簿にて管理させていただきます。
※ジム利用回数券はジムが営業する限り有効
※備考欄に氏名を記載
通常料金のご案内
こちらの料金表はジムをOpenした時の料金となっております。
*24時間完全事前予約制となっています。
*Li-T公式LINEにてジム利用の受付
もっと詳しく詳細を知りたい方・Li-Tが気になる方は是非、お気軽に下記の公式LINE URL又は、メールアドレスまで、ご連絡下さい。
最後に
私達Li-Tは夢に挑戦し、叶え、人の人生に影響できるような事に携わっていきたいという思いで発足しました。
最後までお付き合い頂きありがとうございます。
是非皆さんと一緒にワクワクするより良いものを作って行きたいです。
LINE QR:

メールアドレス:li.t.official.info@gmail.com
<プロジェクトオーナーについて(特商法上の表記)>
■特定商取引法に関する記載
●販売事業者名:株式会社まんま興業 Li-Tプロジェクト
●通信販売に関する業務の責任者の氏名:粕谷海土
●事業者の住所/所在地:〒183-0015 東京都府中市清水が丘1-1-14まんまスペース内
●事業者の電話番号:Tel: 042 -335 -6233
●送料:送料込み
●対価以外に必要な費用:プロジェクトページ、リターンに記載のとおり。
●その他記載事項:プロジェクトページ、リターン記載欄、共通記載欄(https://camp-fire.jp/legal)をご確認ください。
<募集方式について>
本プロジェクトはAll-in方式で実施します。目標金額に満たない場合も、計画を実行し、リターンをお届けします。






コメント
もっと見る