【リターン追加しました!】
5日で完売した「木版画オーダー」、秩父の伝統工芸品「秩父銘仙」、秩父の木でつくられた美しく珍しい「藍染の木の皿」、長瀞観光を楽しめるリターンなどを追加いたしました!
・UPDRAFTに3ヶ月チラシを置ける権 ¥9,000
・【ご好評につき追加しました!!】柏田に木版画をオーダーできる権 ¥33,000
・平川セレクト/秩父銘仙 小物3点セットA〜C 各¥8,000
・柏田・平川がご案内!ハイキング&小昼飯で長瀞を満喫できる権 ¥12,000
・柏田セレクト/藍染・木の皿A, B 各¥8,000
・平川セレクト/藍染・木の皿C ¥8,000

当プロジェクトをご覧いただきありがとうございます。
フリーランスのグラフィックデザイナー兼イラストレーター(たまに旅人)の、柏田洋志(かしわだようじ)と申します。
1人カヌーに乗って川を下り続ける「川旅」は、制作の糧となるライフワーク
デザイナーとしてパンフレット、チラシ、ロゴ、などの広告デザイン、
イラストレーターとしてアウトドア雑誌の挿絵や本の表紙のイラストなど、
20年以上フリーランスとして多くの仕事に携わってきました。
しかし新型コロナウイルスの影響で仕事が減り、改めて「フリーランス」という立場の不安定さを痛感しています…なんて嘆いていても何も始まりません!
コロナ禍で急速に普及したリモートワークですが、20年以上リモートワークを行っている私は、そのメリットもデメリットも体感しています。その経験とノウハウをもとに「こんなワークスペースがあったらいいな」を自ら作ってしまおう!と思い立ちました。
それが当プロジェクト=人と人との交流が化学反応を起こすコミュニティスペース【UPDRAFT】です。
ここで私の相棒を紹介させていただきます。
当プロジェクトは平川貴子(ひらかわたかこ)と協力して進めています。
私と平川は小学校の同級生で、10年ほど前に同窓会で再会し、私の趣味であるフリークライミングをキッカケに意気投合しました。
平川はファッションジャーナリストやショップ店長、プロスポーツの仕事を経て20年前に独立。その3年後に法人化し、Webやセールスプロモーションの会社を経営しています。Webサイト企画・制作やその後のPRサポートが主業務ですが、実店舗の店長やコンサル経験があることから、ネットとリアル両面の実務やサポートに長けています。
クリエイティブワークにも携わる平川とは、仕事で共通する部分があり、しばしば一緒に仕事をしてきました。趣味のアウトドアでも仕事でも、まさに「相棒」です。
趣味でも仕事でも相棒の平川。彼女は「みちのく潮風トレイル」(青森県八戸市から福島県相馬市までの太平洋沿岸を結ぶ約1,000㎞のトレイルコース)をひとりで歩く旅に挑戦中です!(現在はコロナの影響で中断中)
慎重で地道なタイプの私と、大胆でパワフルな彼女のプロジェクトがどんな化学反応を起こすのか?上昇気流は巻き起こせるのか?
最後までお付き合いいただければ幸いです!
「真逆の性格」✕「似ている価値観」の名コンビ!(迷コンビ?)
山、川、空…自然豊かな秩父・長瀞町に
「クリエイター」「地域の方々」「秩父ファン」のためのワークスペース・コミュニティスペースを作りたい!
クリエイティブに携わる人たちの仕事場を作ると同時に、
ただの作業スペースではなく、
「多ジャンルのクリエイター」「地域」「秩父ファン」が集い、交流し、新しい人脈や仲間を作る。
そんな発展の場、コミュニケーションの場を、オンライン&オフラインに作ります。
・もちろんクリエイターに限らずビジネスマンのワークスペース利用の場として、
・地域住民・観光客・移住希望者などあらゆる人々が集う場として、
多くのみなさまとともに上昇気流=UPDRAFTを巻き起こしたいと思います!
外観イメージイラスト(図面を元に描き起こしたイメージ図です)
私が長年フリーランスのデザイナーとして生活してきたのは、自由な働き方と生き方を求めたからでした。
その選択と結果に悔いはありませんが、フリーランスの弱点は、時として孤立無援になることと、複数の仕事を同時に抱えたときの圧倒的なマンパワー不足です(体力の衰えも否めません)。
フッと不安がよぎることがあります。
「何らかの事情で急に仕事が途切れたら…
すぐに他の仕事を受注できる能力が今の自分にあるのだろうか?」
そしてまんまとその「何らかの事情」が降り掛かってきました。
新型コロナウイルスです。
コロナの影響で仕事が減り、かろうじてもらえる仕事もその報酬は大幅に下がりました。
数百万円あった貯金はグングンと減っていき、預金残高は今夏ついに5桁になってしまいました。
早い話が10万以下です。イイ年した大人の預金残高として悲しすぎます…
「預金残高5桁」のピンチを救ってくれたのは、相棒と、いつもお世話になっているクライアントでした。
人と人との繋がりがあって人は生きているのだと改めて実感しました。
私の仕事や報酬が減ったのは誰のせいでもありません。
現状に満足して、自分を成長させる努力をしていなかった私が悪いのです。
・もっと自分から仕事を生み出す意識、発展させる意識が必要ではないか?
・では、どうすれば仕事を生み出し発展させられるのか?
・人と人との繋がりを見直して、同じ境遇のクリエイターや地域と力を合わせることはできないか?
そう自問自答するなかで、また相棒にも相談するなかで、UPDRAFTの骨子ができていきました。
これまでに手掛けたデザインとイラストの仕事の一部
この中には平川と一緒に進めた仕事もあります
コワーキングスペースとは、主にフリーランス(個人事業者)およびスモールカンパニー(小規模法人)が、オープンなワークスペースを共用し、各自が自分の仕事をしながらも、自由にコミュニケーションを図ることで情報や知見を共有し、協業パートナーを見つけ、互いに貢献しあう「ワーキング・コミュニティ」の概念およびそのスペースを指します。
こうした共有のワークスペースのメリットは単にコストや利便性だけではなく、才能ある他の分野の人たちと刺激し合い、仕事上での相乗効果が期待できるという面を併せ持つ点が、従来のオフィス・シェアリングなどと違います。
コワーキングが通常のシェアオフィスと決定的に違うのは、利用者が享受するサービスが単に『場所』だけではなくて、そこに集まる『人』によってもたらされる情報や知見やノウハウであり、相互につながることで実現する人的ネットワークであるということです。
(コワーキング協同組合HPより)
コワーキング協同組合による、コワーキングの利用者と運営者のそれぞれを対象に実施された「コワーキングスペースアンケート調査」の「コワーキングを使い始めた目的・動機はなにか?」という質問では、「情報共有できる仲間がほしかった(増やしたかった)」が31.8%、「仕事に役立つ勉強会に参加または主催したかった」が28%、「仕事以外のイベントに参加または主催したかった」が26.5%と、いずれも人との接点、交流を求めていることを示しています。
この傾向は、リモートワークがこれからの働き方として常態化するに伴い、自身のネットワークは自分で作らねばならない時代になることを考えた時、コワーキングがそのサポートをするひとつの選択肢になり、利用者からもそう期待されていることを示唆しています。
コワーキングが「作業」するだけの環境ではなく、起業仲間を見つけてビジネスを興す、いわばインキュベーションの場としても機能することが、ユーザーからは期待されていると考えていいでしょう。
(コワーキングメディア「コワーキングプレス」より)
コワーキング協同組合によるアンケート結果
先に【UPDRAFTで実現したいこと】で書いたとおり、
「ただの作業スペースではなく、交流し、新しい人脈、仲間を作る、コミュニケーションの場を作りたい」という構想がかたまったときにこの調査結果を知り、私たちが実現したいことはニーズにマッチしているのかもしれない!と、このプロジェクトの実現に手応えを感じました。
私はもともとアウトドアが好きで、特にカヌーは20年以上にわたって夢中になっています。
毎年長い休みを確保し、一人で旅に出かけます。毎日朝から日が暮れるまで川を下り、夜は川原でキャンプしながら、ただひたすら海を目指す旅を続けてきました。
これまでに下った川はのべ約80本になります。
秩父を流れる長瀞(荒川)は、そんな私が初めてカヌーに乗った川であり、その後何度もカヌーを楽しんでいる、とても思い入れのある川です。
2020年、長瀞を下る(栗谷瀬橋からスタート)
実はフリーランスという立場に行き着いたのは、このライフスタイルを維持するためでもありました。
そして「いずれは自然の豊かなところでのんびりと暮らしたい」と考えていました。
今回のプロジェクトを立ち上げるにあたり、田舎暮らしの候補地として考えていた秩父とあと数ヶ所に改めて注目し、まずはその土地を知ることから!と観光名所巡りを、併行して物件探しもスタートしました。
秩父では、札所を巡ったり、願い石を集めたり、滝を見たり、秩父銘仙の型染めや、東秩父の和紙漉き体験をしたり、天空のポピーを見たり、ふれあい牧場に行ったり、蕎麦食べたり、温泉入ったり…知れば知るほど、私たちは秩父をどんどん好きになりました。
秩父の観光
1.羊山公園 2.秩父鉄道SLパレオエクスプレス 3.秩父華厳の滝 4.長瀞岩畳 5.宝登山神社 (2、4,5はUPDRAFTから徒歩圏内。車を使えば気軽に行ける秩父エリアの観光名所はまだまだあります!)
そして何より、秩父で出会った方々は、いわゆるよそ者の私たちにも優しく親切でした。
「長瀞町に外からの人が来てほしい」というお話も伺いました。
この土地で、クリエイターのための、地域のための、そして秩父が好きな人たちのためになる事業を始めたい!
そう思うようになり、いつしか私たちは秩父以外の場所では物件を探さなくなっていました。
秩父のグルメ
1.わらじかつ丼 2.豚みそ丼 3.天然氷のかき氷 4.蕎麦 5.みそポテト (このほかにも、鮎飯、みそおでん、秩父産メープルシロップやくるみを使ったスイーツなど、秩父グルメは多数あります!いちごやぶどうなどの果樹園も多いので四季折々のフルーツも楽しめます!)
物件を探し始めて数ヶ月、ついにコレだ!という物件にめぐりあいました。
相棒も私もひと目で気に入り、ほぼ即決でした。
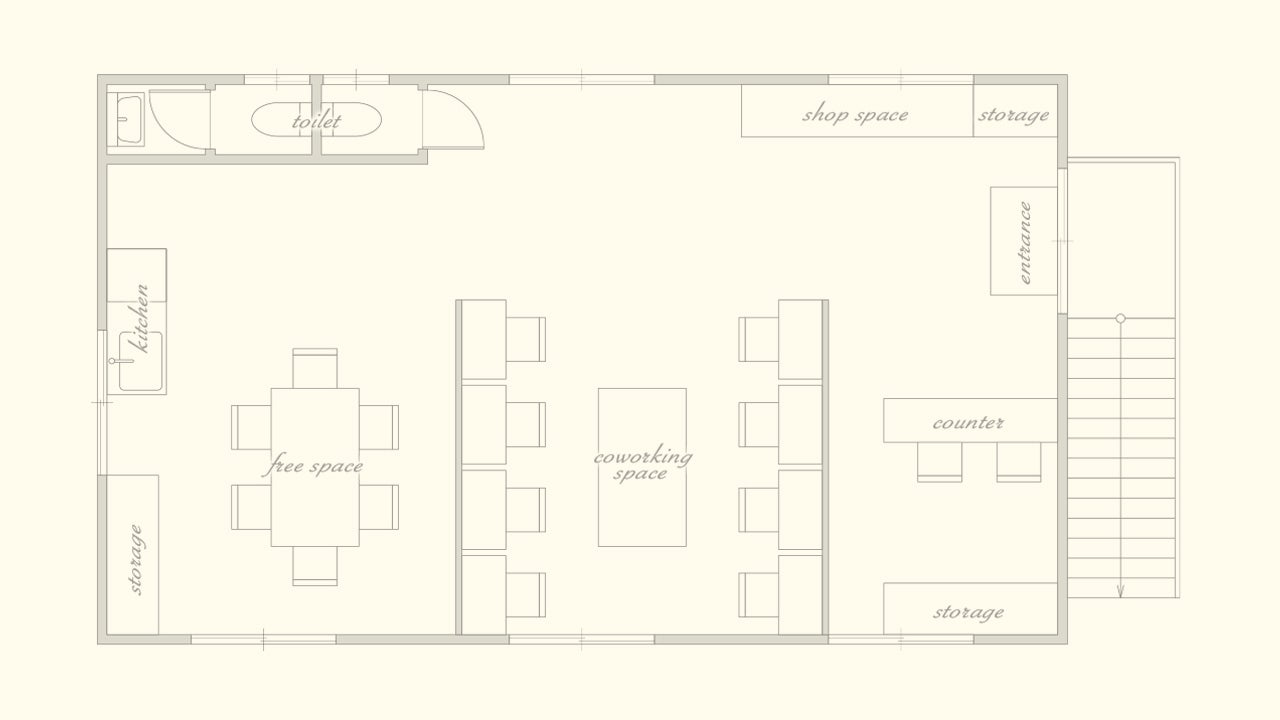
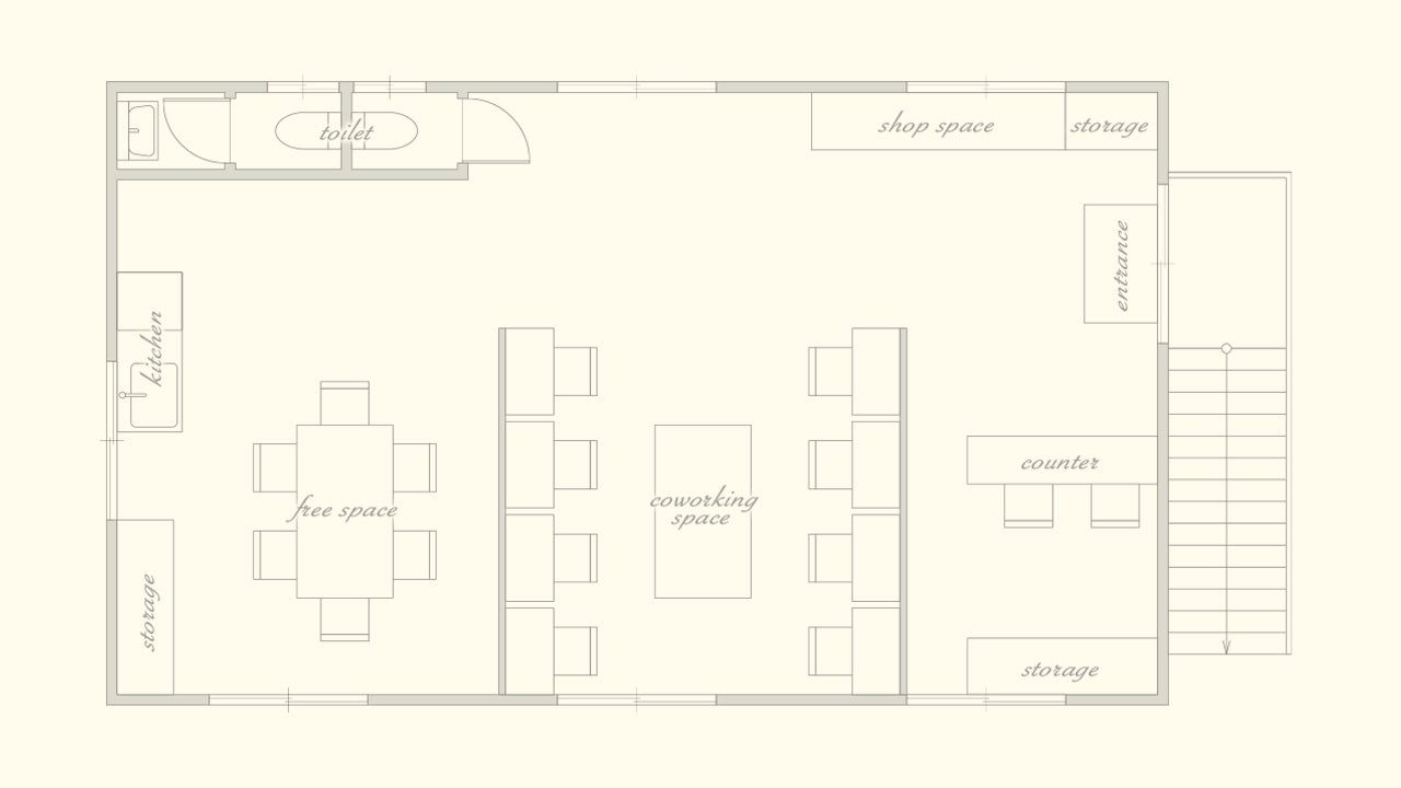
[SPEC]
床面積約70㎡。国道に面した2階建て建物の2階です。
(住所:埼玉県秩父郡長瀞町長瀞334-4 2F)
観光名所として有名な長瀞岩畳や宝登山が近く、東側の窓からは秩父鉄道のSLも見えます。
長瀞駅から徒歩5分圏内、無料駐車場15台。
UPDRAFT平面図(図面を元に描き起こしたイメージ図です)
秩父鉄道「長瀞」駅。写真左端あたりから線路沿いの道をまっすぐ歩いて4分でUPDRAFTです!
[SERVICE]
■コワーキングスペース
・自宅以外の仕事場が欲しい方
・自然の豊かな地域で仕事をしたい方
・いつか秩父地域に移住したい方
・観光と仕事を両立したい方、などなど
お試しでのビジター利用、お得な回数券、通い放題で利用できる月会費制などのプランをご用意します。
(ワーケーションニーズに対応すべく、地元の宿泊施設との提携も計画中です)
コワーキングスペース イメージPhoto
■コミュニケーション
施設内での交流はもちろんのこと、インターネット上での交流もできるよう専用サイトも構築します。
・実際に秩父に行く機会が少ない
・個人のスペースで集中して仕事をしたいけど、交流もしたい、仲間もほしい
という方は、インターネット上のコミュニティスペース(専用サイト)のみのご利用も可能です。
サイト上ではUPDRAFTに集うクリエイターや地元産業・店舗・施設などの紹介コンテンツも計画しています。
情報のシェア、仕事のコラボなど、ネットとリアルでのコミュニケーションの力を最大限に活用し、
クリエイター↔地元↔秩父ファンがお互いに新しい人脈や仲間を作り、
仕事の発展や地域の活性化に役立てていただけるような場を目指します。
クリエイター↔地元↔秩父によるコミュニケーションのイメージ
■作品展示スペース
個展やグループ展の会場として、作品の発表の場として、クリエイターのみなさまにご利用いただけるスペースを設置します。
作品展示スペース イメージPhoto
■物販スペース
秩父の生産品やハンドメイドアーティストの作品を中心に、物販スペースを設置します。
UPDRAFTのオンラインストアも開設予定です。
・クリエイターや秩父のみなさまには、商品や作品の新たな販路として
・秩父ファンやハンドメイド作品ファン、観光で訪れた方には、他ではちょっと見かけない作品をまとめてチェック&購入できる場として
ご利用いただけます。
物販スペース イメージPhoto
■ワークショップ、イベント開催
「学びたい」「伝えたい」をマッチングしてワークショップやイベントを開催していきます。
例) 秩父の文化、絵画、クラフト、デザイン、パソコン、SNSの活用術、セールスプロモーション、ヨガ、ストレッチ、トレーニング…など各種スクール
アーティストの作品制作の様子を見学できる機会を設けるなど、
利用者の方々、地域の方々のご要望に応えていく予定です。
1,2「紙漉き体験」 3,4「秩父銘仙型染め体験」
このような秩父ならではの体験やみなさまからのアイデアをUPDRAFTのイベントとして開催していきます
[COMMUNITY MANAGER]
私はフリーランス(個人事業主)として、平川はフリーランス→会社経営者として、それぞれ20年以上の経験があります。
・クリエイティブに携わる人
・経営者
・モノを売る人
・モノを買う人
・秩父に観光に来る人
・秩父が好きな人
これらすべての方にとってより良い交流が生まれるよう、全力でサポートいたします!
このプロジェクトを立ち上げるにあたり、いくつかのコワーキングスペースを見学に行きましたが、盛んに交流が行われている所は少ない印象を受けました。
人との交流を持とうと唐突にグイグイと前に出ることがためらわれる気持ちはよくわかります。
そこで私たちが仲介人、時には発起人となって、人と人の交流が生まれやすい環境を作っていきたい、と考えています。
また、個人事業主でも法人でも、独立・起業されたい方には、いつでもアドバイスさせていただきます。アドバイス料などは一切いただきませんので、店舗でもネットでも、お気軽にお声がけください!
ヒト・モノ・コトがコネクトし、進化し、上昇気流を巻き起こす場「UPDRAFT」でお会いしましょう!
「UPDRAFT(アップドラフト)」=「上昇気流」
温まった地表の空気が上昇気流を起こすように、
人々が交流し、化学反応を起こし、発生した新しい熱が、
気流となって空高く上昇していく(地域・利用者をはじめとするすべての方々が発展していく)
ことを願って命名しました。
ロゴデザイン
3つの円は、交流によって生まれたチームを表しています。
その円が大きくなりながら上昇していくイメージのロゴデザインにしました。
色は、美しい空と川=長瀞をイメージしてブルーにしました。
物件はすでに契約済み(支払い済み)なので、その他の初期資金として
・設備 80万
・備品 40万
・サイト制作 80万
・販促物制作 40万
・その他雑費 10万
合計250万円。このうち100万円は平川の自己資金でまかないます。
不足分の150万円を目標金額とさせていただきます。
・UPDRAFTを応援 ¥1,000
・ビジター利用×3回/先行割引33%OFF ¥3,000
・先行会員A(ネットのみ利用)×3ヶ月/先行割引33%OFF ¥3,000 ※インターネット上のコミュニティスペース(専用サイト)のみを利用されたい方
・先行会員B(店舗のみ利用)×3ヶ月/先行割引33%OFF ¥18,000 ※実店舗のみを利用されたい方
・先行会員C(ネットと店舗利用)×3ヶ月/先行割引33%OFF ¥20,000 インターネット上のコミュニティスペース(専用サイト)と実店舗の両方を利用されたい方
・UPDRAFTで個展・グループ展を開催できる権/先行割引30%OFF ¥7,000
・UPDRAFT オンラインストア 10%OFF券(お買い物が1年間10%OFF) ¥5,000
・UPDRAFT お買い物券(12,000円分の商品券) ¥10,000
・UPDRAFTでワークショップの先生やれる権/先行割引25%OFF ¥15,000
・柏田に木版画をオーダーできる権 ¥30,000
・スポンサー/ブロンズ(サイトにロゴとURL掲載) ¥50,000
・スポンサー/シルバー(ブロンズ+店内スポンサー様ボードにロゴ常時掲示) ¥100,000
・スポンサー/ゴールド(シルバー+冠イベント開催) ¥300,000
「個展・グループ展を開催できる権」「柏田に木版画をオーダーできる権」など、趣向を凝らしたリターンを多数ラインナップ!
【追加リターン】
・UPDRAFTに3ヶ月チラシを置ける権 ¥9,000
・【ご好評につき追加しました!!】柏田に木版画をオーダーできる権 ¥33,000
・平川セレクト/秩父銘仙 小物3点セットA〜C 各¥8,000
・柏田・平川がご案内!ハイキング&小昼飯で長瀞を満喫できる権 ¥12,000
・柏田セレクト/藍染・木の皿A, B 各¥8,000
・平川セレクト/藍染・木の皿C ¥8,000
2021年9〜11月 設備・備品・Webサイト準備
2021年11月中旬 プレオープン
2022年1月 グランドオープン
「人と人との繋がりを作ることで、集う人たちの仕事とその場となる地域がともに発展する」というコンセプトで今回のプロジェクトを立ち上げました。
「場を作るから、みなさん上手く利用してください」という一方通行ではなく、私自身もクリエイターとして繋がりの一部となり、みなさんとともに自分を成長させたいと考えています。
地元の方、観光で訪れる方、クリエイターの方、秩父ファンの方、これからクリエイターや秩父に興味を持ってくださる方…
ひとりでも多くの方とともに、秩父で、そして秩父から全国へ、熱い上昇気流を巻き起こせたら、と願っています。
「リトリートフィールドMahora稲穂山」からの眺め
最後までお付き合いいただき本当にありがとうございました!
<募集方式について>
本プロジェクトはAll-in方式で実施します。目標金額に満たない場合も、計画を実行し、リターンをお届けします。
最新の活動報告
もっと見る
【クラウドファンディング終了のご報告とお礼】たくさんのご支援・応援ありがとうございました!
2021/11/22 19:30UPDRAFTのヨウジです。11月21日をもちまして、クラウドファウンディング・プロジェクトが終了しました。 最終的に、 48名の方々から、 合計500,000円のご支援をいただきました! ご支援いただきましたみなさまへ心より御礼申し上げます。 ▼クラウドファウンディングに初挑戦してみて思ったこと フリーランスのデザイナー、イラストレーターとして、いただいた仕事に責任を持って取り組むことは、とても大切な事だと心掛けてきました。そして同時に、自分から仕事を作り出す必要性も強く感じていました。今の自分に何が出来るのか?自分のため、自分と似た立場の人のため、地域のためにできる事は何か?それが「UPDRAFT」を立ち上げる動機でした。しかし資金面で大きなハードルがあり、クラウドファンディングに挑戦しました。 残念ながら目標金額に到達する事はできませんでしたが、結果として、挑戦してよかった! と心から思っています。 サクセスできなかったのは、自分の責任であり、今後の良い戒めとなりました。何事も勉強だと思っています。そして何よりも、多くの方々からのあたたかい応援により、たくさんの元気をいただきました。友人知人、お会いしたことのない方々まで、 多くのみなさまに支えられ、励まされ、感謝の思いでいっぱいになった3週間でした。 本当にありがとうございました。 クラウドファンディングは終了しましたが、私達にとってはこれからが本当のスタートです! 「UPDRAFT」が意義の有るスペースとなるよう、努力していきます。秩父方面にお出かけの際は、ぜひ「UPDRAFT」に遊びにきてください!長文になりましたが、最後までお読みいただきありがとうございました。 みなさまのご健康とご多幸を心よりお祈り申し上げ、御礼のご挨拶とさせていただきます。 ありがとうございました。 柏田洋志▼SNSも開始しております。こちらもぜひよろしくお願いいたします!Twitterhttps://twitter.com/UpdraftNagatoroFacebookhttps://www.facebook.com/updraft.nagatoroInstagramhttps://www.instagram.com/updraft.nagatoro もっと見る
【リターン追加】木の町であり繊維の街でもある秩父ならでは!「藍染の木のうつわ」3種追加しました!
2021/11/16 17:00UPDRAFTのランディです。クラウドファンディング、残り6日となりました!これまでにご支援いただきました方、応援してくださった方、すべての方へ、心よりお礼申し上げます。本当にありがとうございます!!!リターンを3点追加しましたのでご紹介します!【柏田セレクト/藍染・木の皿A, B】【平川セレクト/藍染・木の皿C】木の町であり繊維の街でもある秩父。その二つの特色を持っているのが、関野木材さんが作り出す「藍染の木のうつわ」です。*Special Thanks:関野木材さん「木を藍で染める──秩父の木工職人が生み出した、他では見られない独自の技法」関野木材さんは創業より約80年、現在は三代目の関野和茂さんが代表を務め、平成 28 年より藍染木工製品の製作を開始。おもな工程は、荒づき、中づき、仕上づき、藍染、樹脂入れ、セラミックス塗装。非常に多くの時間と工程をかけて唯一無二の製品が作り出されます。▲柏田がセレクトしたA,Bは、日本の特産樹であるトチノキで作られた藍染の大皿、中皿。▼平川がセレクトしたCは、硬質ながら弾力性に優れるカエデで作られた藍染の角皿2枚セット。軽くて丈夫、手にもよく馴染む木の食器の特長そのままに、藍で染め上げた一点物の逸品をお届けします。Bのアップです。木目の優しさと藍染の美しさが見事に調和しています♪クラウドファンディングは残り6日間、11月21日(日)まで公開しております。最後まで走りきりますので、引き続きご支援・ご周知のほどよろしくお願い申し上げます。▼プロジェクトページhttps://camp-fire.jp/projects/view/508613▼SNSも開始しております。こちらもぜひよろしくお願いいたします!Twitterhttps://twitter.com/UpdraftNagatoroFacebookhttps://www.facebook.com/updraft.nagatoroInstagramhttps://www.instagram.com/updraft.nagatoro もっと見る
【リターン追加】伝統的工芸品「秩父銘仙」や長瀞観光を楽しめるリターンを追加しました!
2021/11/12 18:00UPDRAFTのランディです。プロジェクト公開から2週間、スタート早々ご支援いただきましたすべての方へ、心よりお礼申し上げます。本当にありがとうございます。本日、リターンを2種追加いたしました!1.【平川セレクト/秩父銘仙 小物3点セット】国指定の伝統的工芸品である「秩父銘仙」を手軽に取り入れられる小物3点セット×3種。*Special Thanks:秩父織塾工房横山さん大正9年創業、秩父銘仙から藍染や草木染めまで、自家工房で全行程を行い、完全手作りのオリジナル製品を生み出していらっしゃいます。今回は、秩父織塾工房横山さんの素敵な商品の中から厳選!私も愛用中の巾着袋・マスク・マグネットの3点をセットにしました。レトロモダン好きな女性にピッタリの「A:暖色系」のほか、「B:寒色系」「C:ダーク系」の3種からお選びいただけます♪2.【柏田・平川がご案内!ハイキング&小昼飯で長瀞を満喫できる権】長瀞駅の隣・野上駅から約2時間のハイキングコースを一緒に歩いて宝登山山頂を目指しましょう!豊かな自然を満喫しながらのんびりハイキング、観光名所である宝登山神社、Wガイドおすすめの飲食店やお土産屋さん巡り、UPDRAFTでのプチ懇親会という盛りだくさんコースです!1組4名様までOK!!ご友人同士、ご夫婦+お子様2名など、みなさまお誘い合わせのうえご参加ください(^^)クライミング・カヌー・トレイルランニングなどアウトドアアクティビティや秩父・長瀞が大好きな私たちと、ハイキングや観光、食事を一緒に楽しみましょう!クラウドファンディングは残り10日間、11月21日(日)まで公開しております。最後まで走りきりますので、引き続きご支援・ご周知のほどよろしくお願い申し上げます。▼プロジェクトページhttps://camp-fire.jp/projects/view/508613▼SNSも開始しております。こちらもぜひよろしくお願いいたします!Twitterhttps://twitter.com/UpdraftNagatoroFacebookhttps://www.facebook.com/updraft.nagatoroInstagramhttps://www.instagram.com/updraft.nagatoro もっと見る

















コメント
もっと見る