
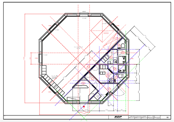
とうとう、ブレイブジムバイバルクオムの図面が完成いたしました!
本日より着工しております。
早ければ1月中旬には完成する予定です。
わくわくしますね!
内装工事の様子など
SNSで順次活動報告させていただきますので
今後ともどうぞよろしくお願いいたします。
❤️twitter❤️
https://twitter.com/bravebulkhomme
❤️facebook❤️
❤️instagram❤️
https://www.instagram.com/bravegymbybulkhomme/

現在の支援総額
11,274,300円
目標金額は7,000,000円
支援者数
66人
募集終了まで残り
終了
このプロジェクトは、2017/11/13に募集を開始し、 66人の支援により 11,274,300円の資金を集め、 2017/12/21に募集を終了しました

現在の支援総額
11,274,300円
161%達成
目標金額7,000,000円
支援者数66人
このプロジェクトは、2017/11/13に募集を開始し、 66人の支援により 11,274,300円の資金を集め、 2017/12/21に募集を終了しました

とうとう、ブレイブジムバイバルクオムの図面が完成いたしました!
本日より着工しております。
早ければ1月中旬には完成する予定です。
わくわくしますね!
内装工事の様子など
SNSで順次活動報告させていただきますので
今後ともどうぞよろしくお願いいたします。
❤️twitter❤️
https://twitter.com/bravebulkhomme
❤️facebook❤️
❤️instagram❤️
https://www.instagram.com/bravegymbybulkhomme/