ご挨拶

初めまして!埼玉県鴻巣市在住の大学生・サエと申します。
大学にて空き家についての研究を進める中、
のびのびコンサルティングという会社にてインターンをしています。
今回、自分の研究分野にて地域貢献事業を立ち上げたい、ということで
空き家をリノベーションして地域のコミュニティサロンとして活用する当プロジェクトを
インターン先会社のバックアップをもとに開始しました。
プロジェクトご紹介
弊社の新規事業として、私の地元である鴻巣市に
古民家コミュニティサロン「和カフェ」(なごみカフェ)
を2022年4月にオープンすることを計画しています。
しかし、他にも新規事業を始めようとしているスタートアップ会社のため、
初期費用の、改修にかかる112万円(見積もり済み)と備品の購入費用を、
このクラウドファンディングにてご支援頂ければ大変ありがたいです。
(既に改修を始めています。支援額に関わらずオープンする予定です。)
地域の人々を応援できるような、また、憩いの場となるようなコミュニティサロンを作って、生まれ育った鴻巣に貢献したい!
このプロジェクトを実現するために、少しでもご支援いただけると幸いです。
宜しくお願い致します!!
インスタグラムにて情報を発信していきますので、こちらも是非ご覧ください。
https://www.instagram.com/kounosu_cafe/ (当カフェのアカウント)
https://www.instagram.com/houses.reborn/ (改修工事のアカウント)
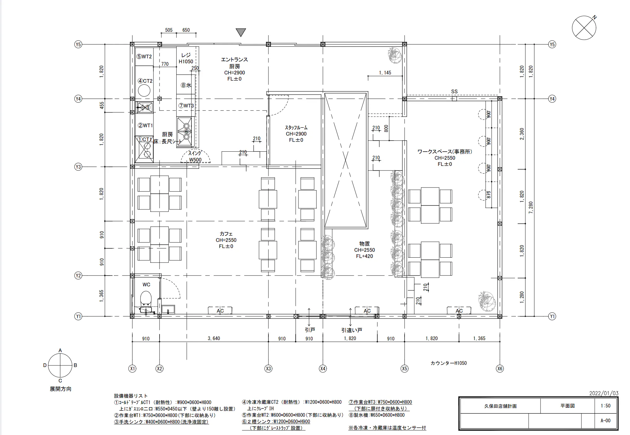
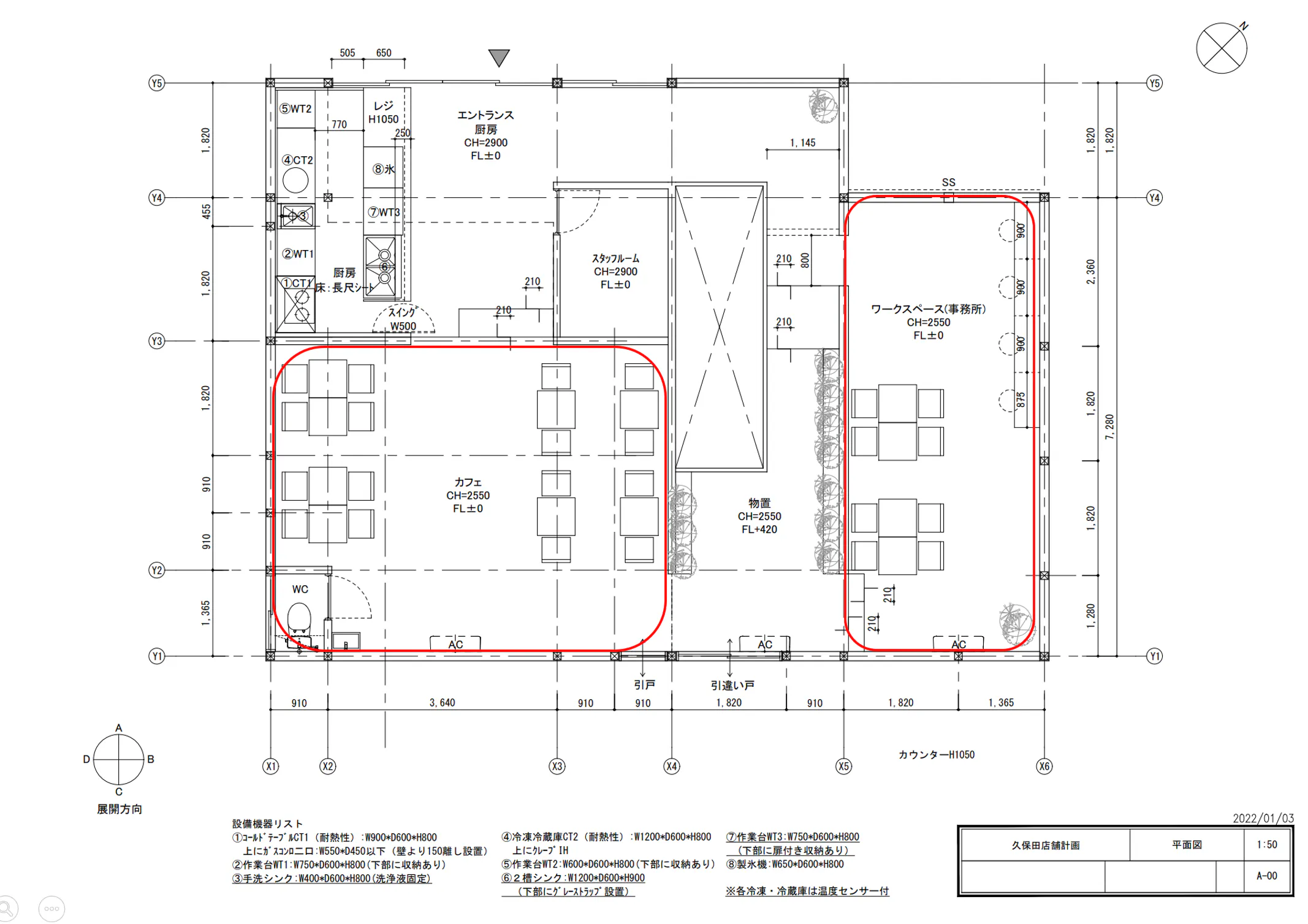
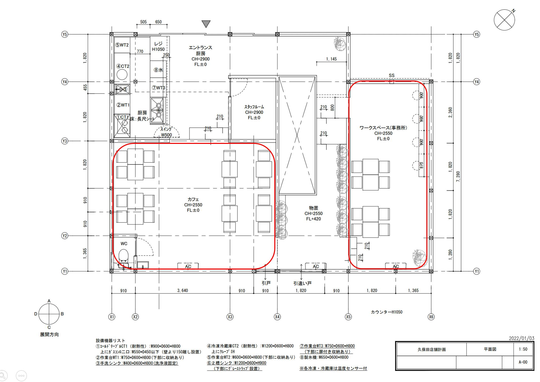
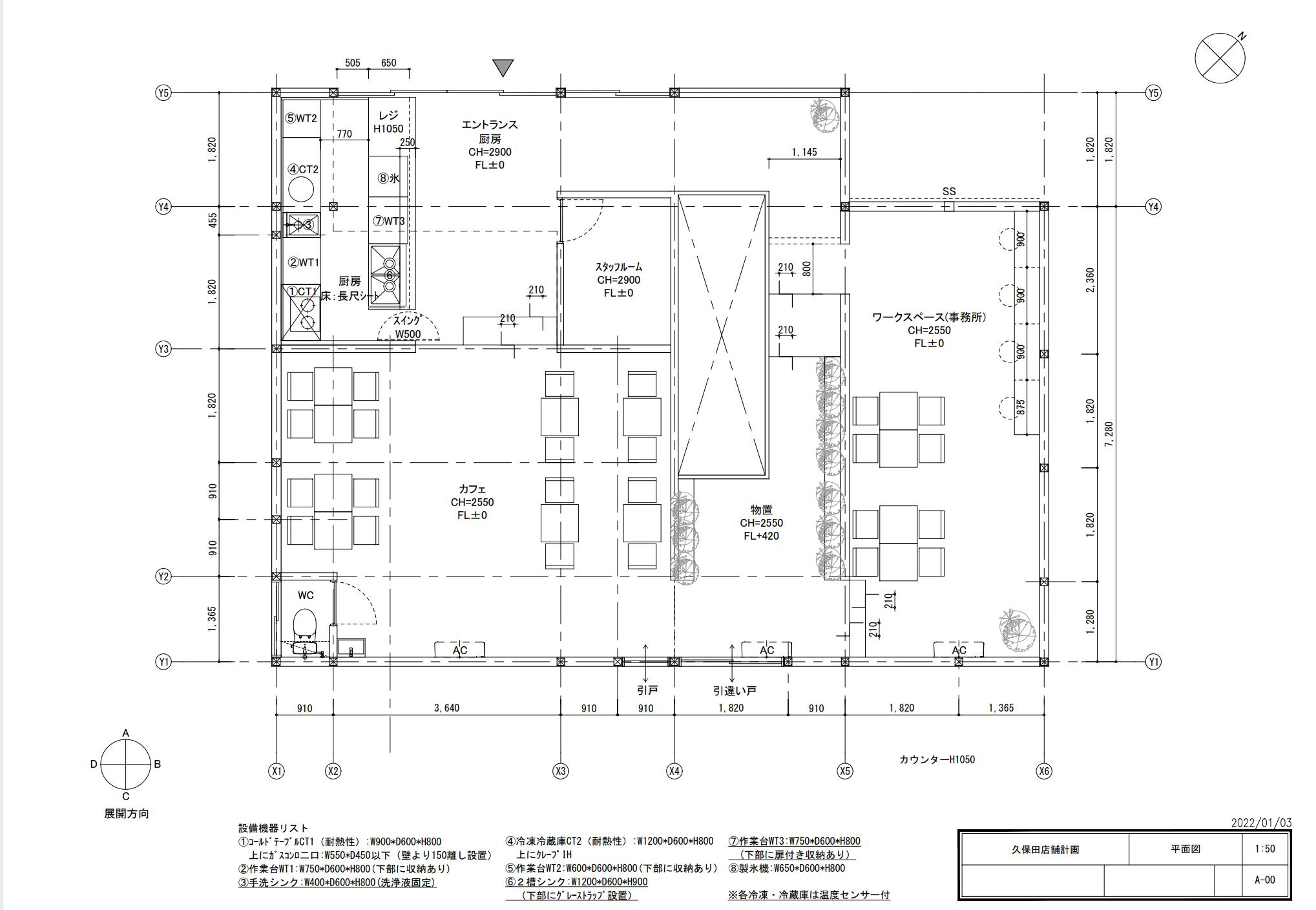
店舗情報
〒365-0077 埼玉県鴻巣市雷電1丁目3(鴻巣駅より徒歩5分)
店舗はすでに賃貸契約済みで30坪の物件になります。
以下が完成予定の図面になります。

図面での設備は、保健所から許可を頂いております。
(なお、オープン約1ヶ月前に保健所を改めて訪問し、調査日(概ねオープンの2.3週間前)の決定と、検便の容器の購入をします。
調査日に問題なければその場で飲食店営業許可をいただけます。食品管理衛生責任者はいます。)
▼以下、改修前の物件写真です。
床・天井・壁からいったん解体しないと店舗として使えないような状況です...。
外観

内観



これが、現在ここまで進みました。
内観
△荒床を剥がしました!

△天井を解体しました!
改修の様子はインスタグラムにてご覧いただけます。
https://www.instagram.com/houses.reborn/
完成後のイメージは以下の通りです。
私が描いたイラストにはなりますが、雰囲気などが伝わりますと幸いです。

このプロジェクトが実現したら...
古民家コミュニティサロン「和カフェ」の改修、オープンを目標としております。
和カフェの半分は、コーヒーやクレープなどを販売するカフェとして
もう半分は、様々なセミナーや講座などを開催できるようなワークスペース/コミュニティサロンとして
オープンする予定です。

また、地元のアーティストの方々などが作品を販売できる棚を設置する予定です。
(イラストの左下にあるような感じをイメージしております。)

セミナー・講座として計画しているものは、以下の通りです。
・学習塾に行けないような子供たちに向けての無償での学習支援
鴻巣市では、中学校などで不登校になってしまって、学習機会が得られない子どもたちが多くいます。
そのような地元の学生(小学生~高校生)の学習支援を、ボランティアの方を募集して、 無料で行います。
各自で学習を進めてもらう中で、各々の分からない問題などをボランティアがサポートいきます。
週に2回程度の開催を予定しております。
・パパママに向けての子育て相談
パパママの先輩としての講師の方をお呼びして、子育てする上でのお悩みなどを解決します。
・ママたちに向けての胎教やベビーマッサージ
胎教やベビーマッサージを現在教えている講師の方をお呼びして、妊娠中・育児中のママたちへのセミナーを開催します。
・起業したい方に向けての創業支援
私のインターン先の代表自身、右も左も分からない状態で起業をしました。
このような起業を考えている方に対しての創業支援を、士業の方々などをお呼びしてご提供致します。
・シニアの方々に向けての趣味講座
園芸や読書会など、シニアの方々が楽しく日々を過ごせるような趣味を、講師の方々をお呼びして、ご提供します。
・その他、講師の方々を募っての様々な講座
※開催が決定しましたら、随時SNSにてご報告いたします。
基本的にオフライン・和カフェでの開催となります。
お越しいただく際の交通費は自己負担となりますので、ご了承ください。
このコミュニティサロンを通じて、地域の方々が明るく毎日過ごせるお手伝いや自己実現の場のご提供ができればと考えています。
プロジェクトを立ち上げた背景
21年間お世話になった地元鴻巣に貢献したいという想いからプロジェクトと立ち上げました。
私がインターンとして働いているのびのびコンサルティングという会社が、
福祉業界へのコンサルティングをしているということもあり、
福祉面でのお手伝いを何かできないかと考えました。
そこで、子ども達から若者、パパママ世代、シニアの方々まで、
様々な世代の方々の生活を支援・応援できるようなことをしたいと考え、
この古民家コミュニティサロン「和カフェ」のプロジェクトをスタートさせました。
実施スケジュール
2022年3月31日 プロジェクト終了
(オープン約1ヶ月前に保健所を改めて訪問し、調査日(概ねオープンの2.3週間前)の決定と、検便の容器の購入をします。調査日に問題なければその場で飲食店営業許可をいただけます。)
2022年4月中 和カフェオープン予定
2022年4月にリターンをお送り致します!
資金の使い道
150万円
└古民家改修費用 133万5千円
└手数料 150万円×17%=25.5万円
└消費税 25.5万円×10%=2万円5千5百円
最後に
鴻巣に縁がある・ない関わらず、
地元を盛り上げたい、地域の人々を応援したい、安らぎの場を提供したい
という想いに少しでも共感して頂けたら、ご支援を是非よろしくお願い致します。
※使用中の画像や動画は、全て掲載権利を取得しております。
<募集方式について>
本プロジェクトはAll-in方式で実施します。目標金額に満たない場合も、計画を実行し、リターンをお届けします。
最新の活動報告
もっと見る
リノベーション状況2
2022/03/28 13:22こんにちは!ページをご覧いただいた皆様、ご支援頂いた皆様、いつもありがとうございます。今回は、リノベーション工事の進捗をお伝え致します。カフェ兼コミュニティサロンとしてOPENする和カフェですが、コミュニティサロンの開催などに使用するワークスペースの改修がかなり進みました!▽この部分ですオープンはゴールデンウィーク辺りを予定しております。お待ちください!断熱材を敷き詰めました↓天井完成!↓形になってきました!↓ ニッチがかわいい、ワークスペースに!完成間近! もっと見る
リノベーション状況
2022/03/14 14:53ページをご覧いただき、ありがとうございます。古民家のリノベーションの状況についてお伝え致します!現在、ワークスペースとなる場所を優先的に改修しております!①床もともとの床これが大工さんの手によって、、、↓断熱もされて、綺麗な床になりそう!続きまして、②天井もともとの天井これが、、、↓こう!枠組みが出来てきてる!最後に!③壁もともとの壁↓シャッターだけだった壁が、こうなりました!ニッチ(壁のくぼみ)を作っていただいています!ここにチラシを設置したり、置物を飾ったり…用途は色々あり、かつおしゃれな空間に見せてくれるので、完成が楽しみです^_^進捗の様子は、インスタグラムの方で随時更新しております。是非フォローしてくださいね!大工さんのほうのインスタグラムも要チェック!引き続き宜しくお願い致します! もっと見る
オープン遅延について
2022/03/07 15:39ページをご覧いただきありがとうございます。お世話になっております。和カフェの時期ですが、4月を予定しておりましたが、コロナの影響で半導体関係の部品が不足しており、電気関係の工事が遅れてしまうため、5月中旬になってしまいそうです。それに伴い、・コーヒーやクレープのチケットの使用開始日・店内のお名前、広告掲示も、5月からになってしまいます。大変申し訳ございません。また、オープン日が確定しましたら、お知らせさせて頂きます。今後とも和カフェを宜しくお願い致します。 もっと見る






コメント
もっと見る