
プロジェクト開始から5日!
3/5に目標の100万円を達成することができました!
応援の言葉をかけて下さったり、協力を申し出て下さる方がたくさんいて本当に嬉しいです!
目標金額は、外構費用の100万円とさせていただいてましたが、グランピングリゾートオープンにはさらに沢山の費用が必要です。高すぎる目標で恐縮ですがNEXT ゴール目標金額を以下のとおり設定させていただきます。

《メンバー挨拶動画》
《追記ここまで↑ 以下本文↓》
ちょうど3年前の話。
通信制の高校に入学し、アルバイトで貯めたお金で初めての1人旅。訪れた場所は『オーストラリア』
同じ地球でも見る場所によってこんなにも見える景色が違うんだ。
高揚感と好奇心がくすぐられ、この3年間僕の頭の中は旅一色でした。
そこから現在。17歳。
3年間で高まった「旅への思い」 そして「自分の夢」と「社会への貢献」
全てを欲張りに実現するための、大人をも巻き込んだ一世一代のプロジェクトに挑戦します!

はじめまして。神奈川県横浜市に住んでいる西野天翔(にしのつばさ)17歳です。
通信制の高校に進学後、自分の時間がかなり増えたので小さい頃から旅がずっと憧れで、14歳の時に初めて一人旅に挑戦。
そこで得た数々の経験と夢への希望と想いを掲げ、今回のプロジェクトを立ち上げました。
そしてそれに伴い、クラウドファンディングにも挑戦しようと思いました。


(想いが溢れて文章が長くなってしまいました…!)
『旅』を始めたのはちょうど3年前。
将来について甘く考えていた当時『高卒も大卒も変わらない。勉強が全てじゃない。』って思い、ネット型の通信制高校に入学。
自由に使える時間が増えたので小さい頃からの夢である一人旅に出ることにしました。
海外の雰囲気を楽しめれば良いな、その程度しか思っていなかったのに

地元の人々が集まる市場に行けば、その地域でしか取れない食材や味覚との出会い
バスや電車から見える街並みや風景、トラブルやアクシデントにすぐ助けてくれる優しい人との出会いに
『旅』ってなぜこんなにも惹きつけられるんだろう?と感じました。
その日以来『旅』の魅力に取り憑かれ約1年間で13の国と地域を訪れました。
いろんな国や地域に訪れては
「この場所にはこんなホテルを作りたい」
「あの場所にはこんなホテルを作りたい」
そんな妄想をしながら旅をしていました。
でもホテルを作るには膨大な資金が必要だし、15歳じゃホテルなんて作れない。大人になってから自分のホテルを作ろう。そう思いながら旅を続けていく中で
色々な情報や現実を目の当たりにして『旅』の在り方について考えるようになりました。
近年ビザの緩和や格安航空会社の参入により今まで以上に気軽に旅行に行けるようになり
世界全体の旅客者数がここ10年間で急激に増えました。
国際民間航空機関(ICAO)主要都市や観光地は宿泊施設が不足し、対策として政府などが多額の補助金を出して
森やジャングルを切り開き、海や川を埋め立てて大規模な施設を開発してきました。
リゾート開発によって経済が潤っていたのも事実ですが、急激に増えた観光客の影響で自然が破壊され
透き通った海や川も、澄んだ空に浮かび上がる星空も汚されてしまいました。
観光客が殺到し、環境破壊されたタイのとあるビーチ
そんな中2020年の初め『新型コロナウイルス』が世界中で猛威を振るい観光業は猛烈なダメージを負い
宿泊施設や観光施設は放置され、廃墟化している建物もたくさんあります。
この世界各地の現実を知った時これは、『自然からの忠告』だと感じました。
『旅』の魅力に取り憑かれから2年 国内も海外も色々な地域に訪れさまざまなホテルに宿泊しました。
その中でも宮古島の東海岸に位置するリゾートホテルのある取り組みに感動しました。
ホテルのプライベートビーチは潮の流れの影響で漂流物が流れ着いてしまうそうです。
このネガティブな問題をホテルは取り組みのひとつとして
『素敵なビーチを守るためにまずは目の前のビーチからキレイにしていきましょう。片手が空いていれば、その贈り物を拾ってフロントまでお届けください』 と

ビーチに行ってみると、ほとんどのお客さんが贈り物を拾って家族や友人などと『この贈り物はどこの国から流れてきたんだろう?』『どれぐらいの年月を海で過ごしたのかな?』など楽しそうに話しながらビーチ綺麗にしている姿に感動したのと、旅をしながら環境問題や環境保護の必要性を肌で感じながら学んでいる姿を見て
『自分もいつかは自然と人間が共存するホテルを作って、自然の美しさを未来に残していきたい』そう思いました。
その時から『自分には何が出来るんだろう?』 『この夢を、夢で終わらせたくない』そんな想いが強くなり、現実味を帯び初めてからこの1年間、気候や立地、交通アクセスや周辺施設などの情報を調べ集め
ターゲットを千葉県房総半島に決めてから理想の土地を探し回りました。
想像しては、ここじゃない。ここじゃない。と毎日毎日不動産屋をチェックして現地に行き
空き地があれば近隣住民の方に情報を聞いて周り、この1年間ほぼ毎週のように足を運んました。
数百件の物件を見てきて諦めかけていた、そんなときに土地の条件である
周辺民家の有無、道路の広さ、インフラ設備、温暖な気候の地、広大な自然、そして一番大事な直感。
すべてが揃い秘境のような神秘的な土地を見つけました。

2年間売れていなかったのは奇跡の物件。もうここでやりなさい。って神様に言われたきがします。
なので決心しました。ここで『自然と人間が共存するグランピング施設』を作ります。

実現したいことは
『自然と人間が共存するグランピング施設を作る』 です。
SAUNA HOUSE 予定地
1.『自然と人間が共存する』って?
まず第一に自然を破壊しないのは当たり前。
敷地内の木を一本も切らないでヴィラを建設、環境に優しい廃材を使用
施設周辺の荒れた山林を管理、増えすぎた害獣対策、規格外食材の提供
プラスチックフリーの製品

オーガニック製品以外の施設への持ち込み制限、使い捨てアメニティー削減への協力
連泊中の簡易清掃など宿泊者の協力が必要だと思っております。
『泊まる』場を提供する側も、『泊まる』側の人も
責任を持って『旅』をする事で、はじめて自然と人間が共存する事が出来るのではないかと思います。
2.なぜグランピング?
『自然と人間が共存する』ホテルを世界各地に展開していくのが夢です。
自然環境への理解を得てもらうには、自然に直接触れて頂くことが1番だと思っています。
豊かな環境と自然により近く過ごせるのはグランピングしか無いと思いました

今回、都心から90分ほどの距離に位置する千葉県の大多喜町という地域にグランピングリゾートを作ります。
この地域について紹介します。
大多喜町は千葉県房総半島のほぼ中心に位置し、森林が総面積の約70%を占め人間より野生動物の方が
多く暮らしています。そんな大多喜町の中でも秘境と言われている平沢という地域に位置します。
平沢といえば『竹の子』。春になると竹の子泥棒が現れるほど美味しい竹の子が育つ地域です。
(地元のおじちゃん曰く、平沢はサファリパークと言われてるそうです。)


THE LAKOTANのコンセプト、名前に込めた思いについて記しておきます。

グランピングリゾートの名称は
『 THE LAKOTAN 』
LAKOTAN とは アメリカンインディアン部族の言葉で『友人 同盟』を表す言葉です。
『自然と人間が共存する』リゾートを運営していく中で
お客様にも環境保護への取り組みに同盟し責任を持って『旅』をして頂きたい と想いを込めました。
目指したのは本物の『 minimamu 』
近年アウトドアブームや新型コロナウイルスの影響もありディスタンスが取れるキャンプやグランピングが大人気です。
人気のキャンプ場やグランピング施設は常に混雑していてゆったりと過ごすことが難しくなってきています。
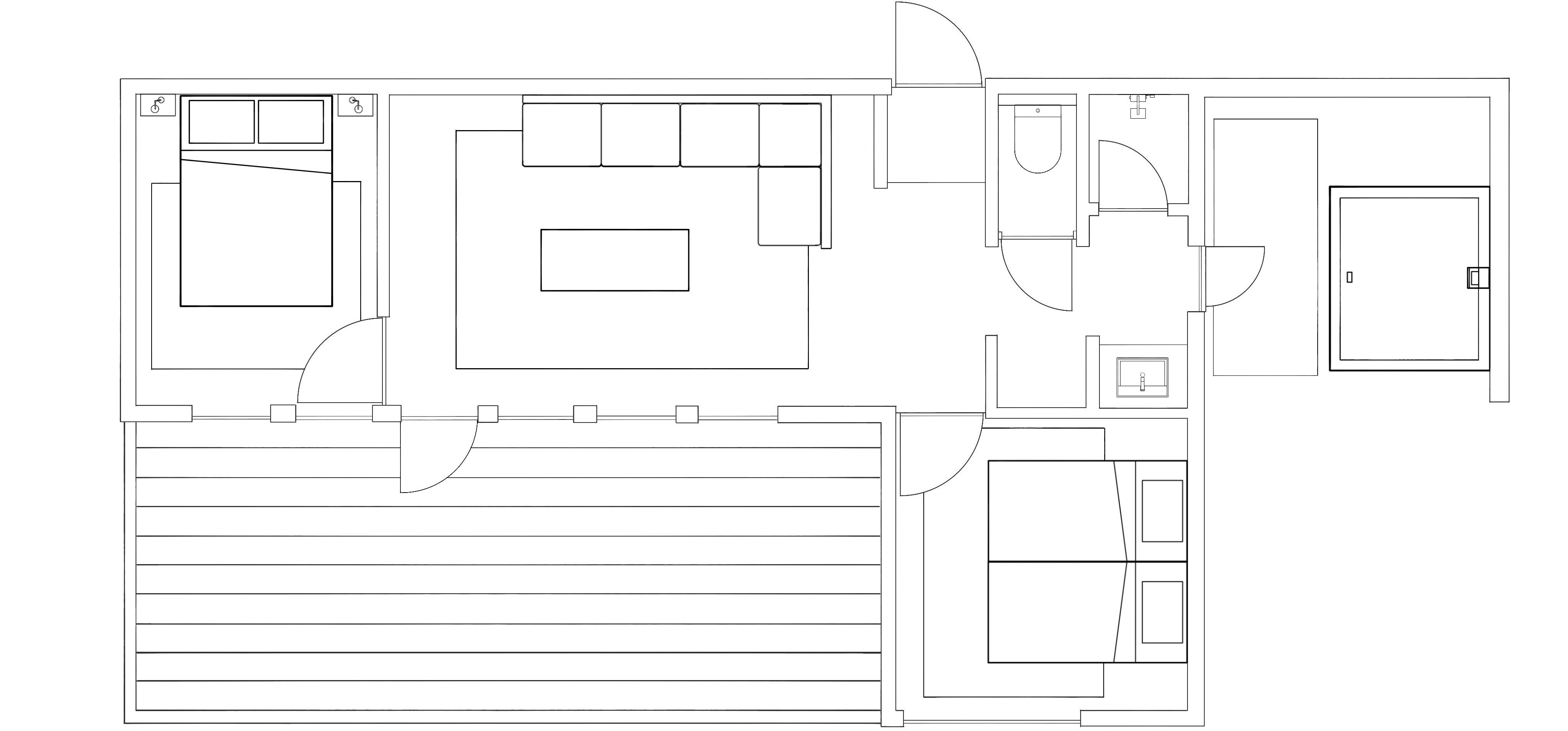
そこで『THE LAKOTAN』では約4,000㎡の広大な土地に2棟のヴィラとレセプション棟だけの
プライベート空間を設えています。
またご滞在中は、専属のバトラーがきめ細やかなサービスを提供いたします。

ヴィラは必要最低限で設計し、自然と外に出たくなるようなデザインをお願いしました。
必要以上の装飾や電化製品などは省き 本物の自然を贅沢に体験いただける施設になっています。

1,000㎡のプライベートスペースに併設する竹林を眺めながら入れる露天風呂やアウトドアダイニング。

ファイヤーピットやデイベットなどをご用意してますので
澄んだ空に浮かぶ星空をゆっくりと眺め 生き物や自然の音に癒されていただけるかと思います。

緑豊かな庭を眺めるヴィラは、ダイニングも楽しめる広々としたベランダを通して室内も屋外も楽しめるよう設計されており、客室内からもその自然をご満喫いただけます。
また、広々としたプライベートガーデンを備えていますので、大切な家族である、わんちゃんも一緒に滞在頂けます。
2棟のヴィラの内、1棟のみのご案内となりますので日程によってはご案内できない場合もございます。ご了承ください。
間取り図
季節ごとに彩りを変える森を見渡すことができるアウトドアダイニングでは、最高級のかずさわ牛や水揚げされたばかりの新鮮な魚介類、みずみずしい野菜や果物など四季折々の旬の食材をふんだんに用いたBBQをお楽しみいただけます。

専属バトラーが手間が必要な準備や、後片付け 炭起こしや、ドリンクの提供なども致しますので、ゆったりとお食事をお楽しみいただけます。

土地に併設する竹林は管理されておらず密集して竹が生え、半数ほどの竹が倒れている状況でした。

平沢にお住まいの地主の方に管理の許可を得て、実際に竹林管理している方に
作業方法や有効活用方法、処分方式など詳しく教えていただきながら作業を進めてきました。
現在、切り出した綺麗な竹は竹垣にし、腐って倒れている竹は土に還るように作業しています。
その他にも枯葉や枝などで詰まった小川を整備し、荒れた土手の草刈りや道路に倒れてきた竹の伐採
土地の草刈りや造形の作業を進めてきました。
荒れている竹林を整備していき綺麗になっていく過程が本当に気持ちが良いです。
都会で生活している時には感じることの無かった感情に、整備に行くたび心が癒されています!
〈資金の使い道〉
現在ヴィラの建設費用は用意できているのですが、ウッドショックの影響で建材が通常の2倍に高騰している影響で当初の予算から大幅に膨れてしまい、植栽や外構の費用が不足しています。
今回のクラウドファンディングでご支援いただく資金は、主に外構などの整備費用に充てさせて頂きます。 目標金額が達成できた場合にはSecondゴール、Finalゴールを目指します。
目標額の内訳は以下のとおりです。

〈実施スケジュール〉
2022年2月15日 建築工事 着工済み
2022年2月22日 株式会社LAKOTAN設立
2022年3月25日 クラウドファンディング終了
2022年4月中旬 リターン順次配送
2022年4月下旬 予約開始
2022年5月下旬 建築工事完了
2022年6月中旬 THE LAKOTAN GLAMPING &RESORTS プレオープン
2022年7月1日 THE LAKOTAN GLAMPING &RESORTS オープン

大多喜周辺地域で収穫した新鮮野菜の詰め合わせなど様々なリターンを用意致しました。
DIY体験や1日オーナー体験などお子様と一緒に楽しめる体験や
プレオープン宿泊体験やクラウドファンディング限定特別価格での宿泊券などもありますので
リターン欄でじっくりご検討ください。よろしくお願いします!

ここまで盛大なプロジェクトを立ち上げられたのは、大人の方達の力も借りることができたからです。
そして何よりも、自分の夢に向かって素直に取り組んできたからだと思っています。
同じ高校生の方も、大人の方も見ていてください。
何歳からでも、自分の夢を実現できるんだ!
そう思ってもらえるよう、精一杯努力します。だから、僕の挑戦を最後まで見ていて欲しいです。
3年前からの夢と、一人旅をして感じた神秘的な光景や摩訶不思議な経験。
全てを掲げ、一世一代のプロジェクトを完成させてみせます。
応援、よろしくお願い致します。
〈宿泊金額について〉

〈所在地について〉
〒298-0254
千葉県夷隅郡大多喜町平沢1616-2
https://goo.gl/maps/aq9BKjP9EjagiWjU6
<募集方式について>
本プロジェクトはAll-in方式で実施します。目標金額に満たない場合も、計画を実行し、リターンをお届けします。
最新の活動報告
もっと見る宿泊予約受付のご案内。
2022/05/16 09:00こちらの活動報告は支援者限定の公開です。
リターン返礼!
2022/05/10 20:14リターン返礼!皆様、お待たせしました!クラウドファンディングによるリターンの返礼が着々と進んでおります。先日は、千葉県大多喜町の「高梨農園」さんにお邪魔してきました!ご家族で経営している農家さんのいちごは甘酸っぱく食感もありとても美味しいいちごです!!試食という名目で一箱分食べたのは内緒です笑お野菜詰め合わせTHE LAKOTAN宿泊券など僕達が1つ1つ丁寧に梱包してお送りしています。コロナなどで気分が落ち込む世の中ではありますが、このリターンが少しでも笑顔になる「1つ」となればとても嬉しいです!!THE LAKOTAN GRAMPING&RESORTS西野天翔 工藤圭八 もっと見る
皆さま、ありがとうございます!!
2022/03/27 16:303/25 24:00を持ちましてクラウドファンディングが終了しました!支援総額 170万500円支援者数 91人多くの方にご支援頂きました!心の底からお礼を申し上げます。本当にありがとうございます。周りの身内の方々をはじめ、Instagramや TwitterなどのSNSを通じて本当にたくさんの方にご支援して頂きました。まさか、こんなに多くの方に応援して頂けるとは...!!そこで、これまでの1ヶ月間を少し振り返ってみたいと思います。2/28からスタートして1ヶ月。目標金額100万円は簡単に集まりはしない大きな額です。始まりはとても不安でした。ただ、開始から5日でなんと目標金額を達成する事ができました!皆さんも驚かれたと思うのですが、1番僕達が驚いたと思います笑お陰様で、目標金を達成したのでNEXT GORLで350万円というとても大きな額を定めました。100万円と比べると相当大きな額です。5日で100万円を達成した時の勢いは凄まじかったです笑しかし、段々とその勢いは衰えていきました。ただ、僕達は諦めたくなかったんです!SNSに発信、個人に連絡、チラシ配り、ライブなど少しでも多くのかたに伝わるようにと僕達の出来ることを一生懸命やりました。そして、功を奏し、最終日には約30万円程のご支援を頂きました!NEXT GORL達成には至らず、正直悔しい気持ちもあります。ただ、こんなにもたくさんのご支援を頂けた事、応援して下さった事の感謝の気持ちの方が遥かに上回っています!さらに、このクラウドファンディングを通じて大多喜町の役場の方、地元の方、会社様などたくさんの方とお会いする事が出来ました!クラウドファンディングはただ、支援を募るだけではなく様々な人との繋がりたくさんできます!皆さんのおかげで、今回このクラウドファンディングは大成功です!!!これからの活動、リターンの詳細や、配送状況なども活動報告にアップしていきますので是非、ご覧下さい。これからも僕たち「THE LAKOTAN」をどうぞ宜しくお願い致します。この度は、本当にありがとうございました!西野天翔・工藤圭八 もっと見る










コメント
もっと見る