2023/04/13 12:00

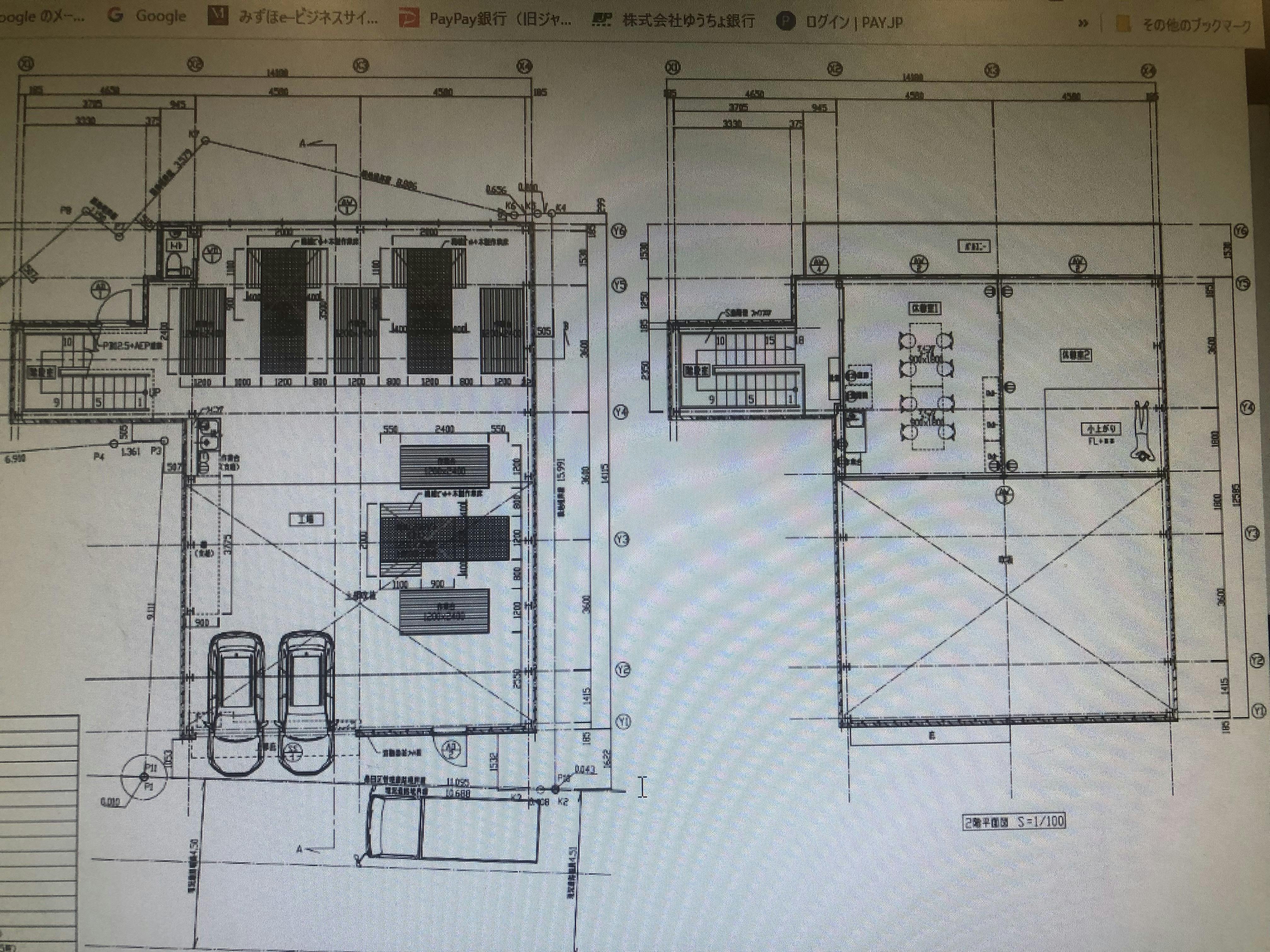
革漉工場再建に向け仮図案が完成しました。 細かい修正をお願いしながら、着工に向けて施工業者の選定や各所への申請を行っています。 場所柄地盤が緩く改良が必要な点や全面道路が狭く工事車両か入りずらいので、まだまだクリアすることが沢山ありますが、少しずつ再建に向けて進んでいます。



現在の支援総額
5,188,192円
目標金額は3,000,000円
支援者数
683人
募集終了まで残り
終了
このプロジェクトは、2023/03/01に募集を開始し、 683人の支援により 5,188,192円の資金を集め、 2023/04/20に募集を終了しました



現在の支援総額
5,188,192円
172%達成
目標金額3,000,000円
支援者数683人
このプロジェクトは、2023/03/01に募集を開始し、 683人の支援により 5,188,192円の資金を集め、 2023/04/20に募集を終了しました

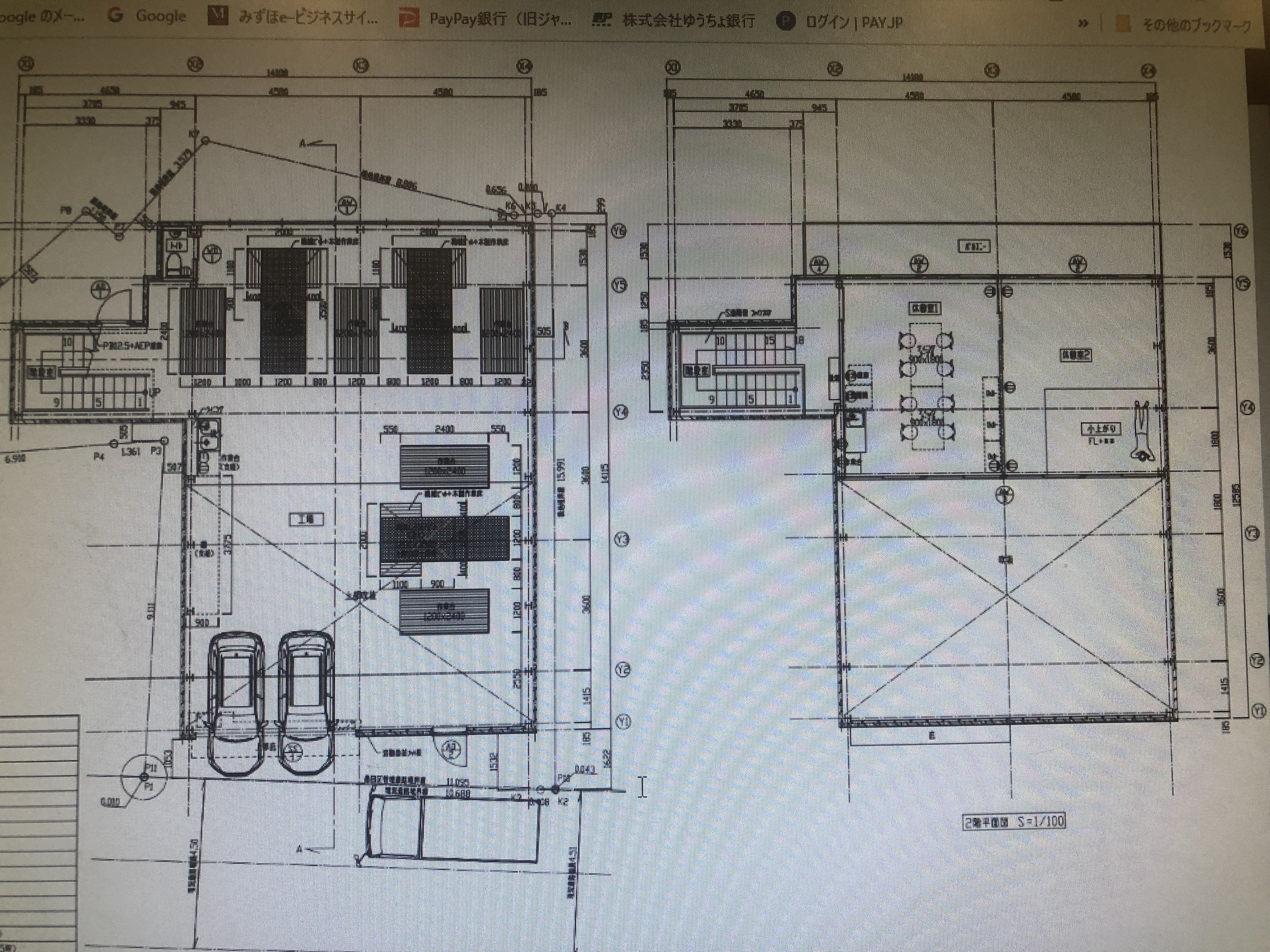
革漉工場再建に向け仮図案が完成しました。 細かい修正をお願いしながら、着工に向けて施工業者の選定や各所への申請を行っています。 場所柄地盤が緩く改良が必要な点や全面道路が狭く工事車両か入りずらいので、まだまだクリアすることが沢山ありますが、少しずつ再建に向けて進んでいます。