2022/07/14 22:19

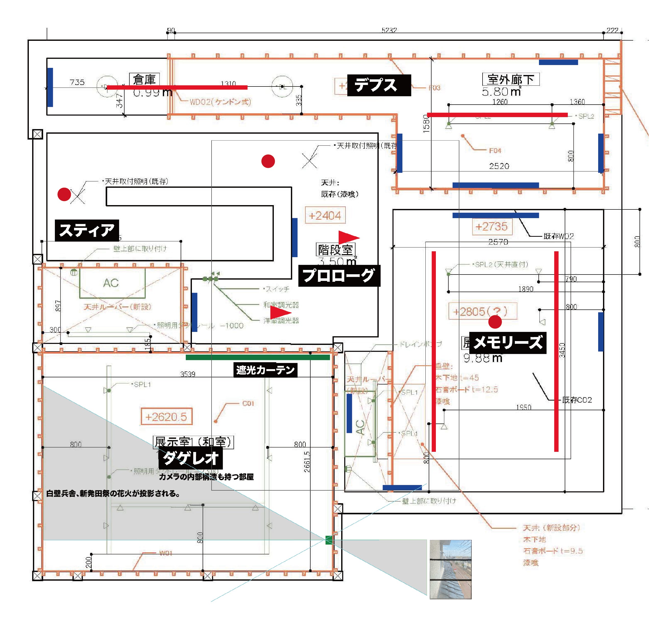
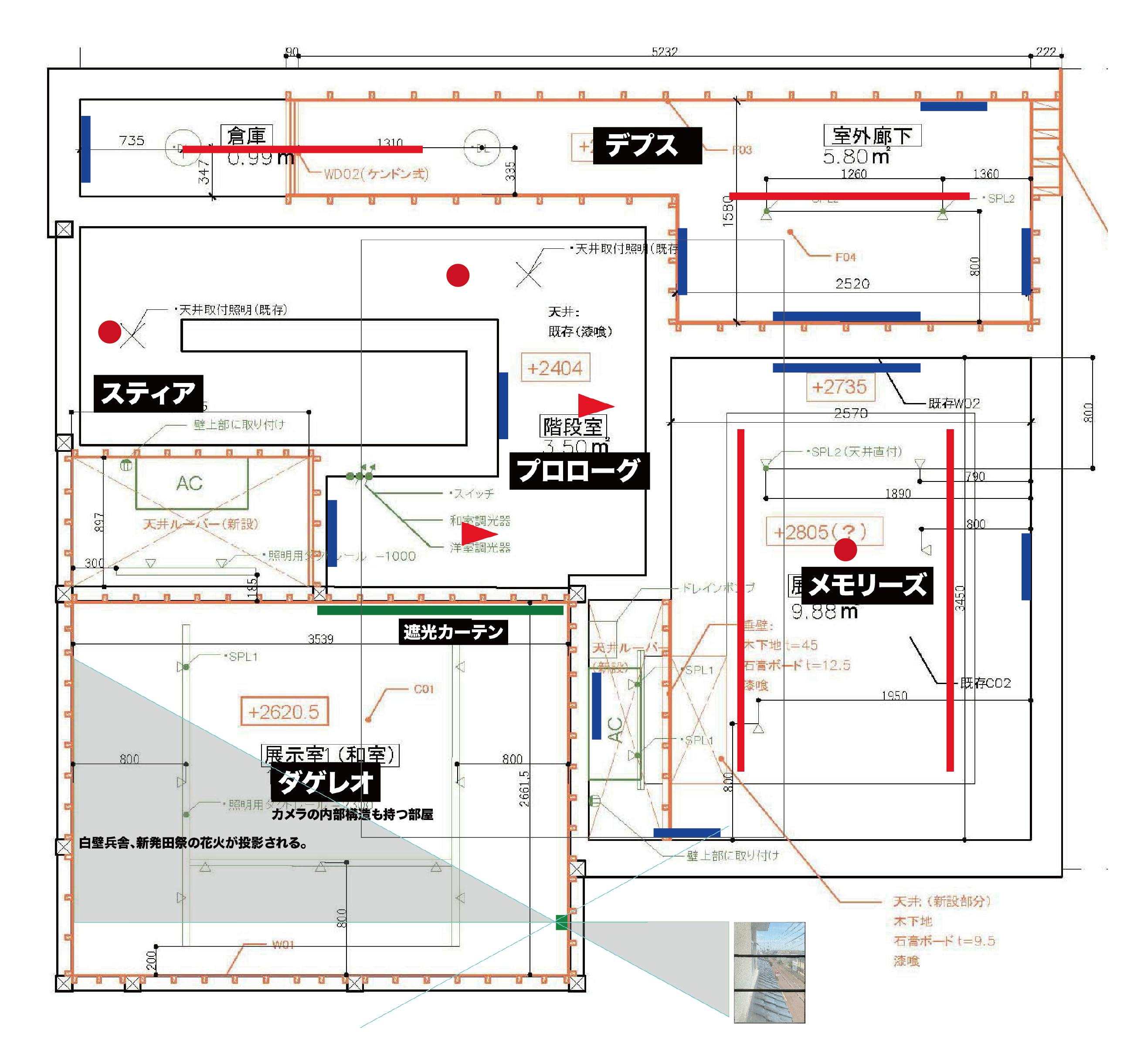
支援者の皆様、その後報告をおこたり、すみませんでした。工事の方、雨漏りがあったり、いくつかの難題にぶつかりながら進んでおりますが、順調です。本日は、展示コンセプトに合わせて、各スペースに名前をつけましたので、お知らせいたします。





現在の支援総額
6,020,500円
目標金額は4,800,000円
支援者数
319人
募集終了まで残り
終了
このプロジェクトは、2022/05/14に募集を開始し、 319人の支援により 6,020,500円の資金を集め、 2022/06/23に募集を終了しました





現在の支援総額
6,020,500円
125%達成
目標金額4,800,000円
支援者数319人
このプロジェクトは、2022/05/14に募集を開始し、 319人の支援により 6,020,500円の資金を集め、 2022/06/23に募集を終了しました

支援者の皆様、その後報告をおこたり、すみませんでした。工事の方、雨漏りがあったり、いくつかの難題にぶつかりながら進んでおりますが、順調です。本日は、展示コンセプトに合わせて、各スペースに名前をつけましたので、お知らせいたします。