はじめに・ご挨拶

昭和26年に祖父が開業し、私で四代目になります浅野裕美45歳です。
2019年12月に社長に就任し、翌年3月に新型コロナウィルス感染症で経営に大打撃を受けました。
ですが、入浴部門だけは売上が変わらず、何故だろう?と、お客様に古戦場のお風呂の良さを聞いたところ
「サウナが熱いのがいいんだよ」と言われた事がきっかけでサウナに目を向けるようになりました。
当初全くサウナに興味がなくむしろただの灼熱地獄と思っていたサウナに、サウナのドラマを一気見して勉強し、今はドはまりしています。
社長に就任して一番の応援者はお客様でした。
そんなお客様達に恩返しをしたいとの思いで今回のサウナ増設を決めました。
このプロジェクトで実現したいこと
私なりに全国のサウナ施設を巡って、サウナと健康を考えました。
ロウリュができる「漢方サウナ」を作ります。
私たちの地域のご紹介
一関市は岩手県の玄関口で、厳美渓・猊鼻渓・栗駒山があり、世界遺産平泉や気仙沼への観光にも便利な自然豊かな市です。

プロジェクトを立ち上げた背景
営業自粛などで何をするのにもお金がなく、社長になりたての私の突然のサウナ開拓に賛同するスタッフはいなく、一人で閉鎖されていた元露天風呂スペースの草を手でむしって整備したり、荒れ果てた庭が見えないように窓に張っていた目隠しフィルムを、百均のヘラとマジックリンで地道に剥がしていたら、私が剥がしていない場所も剥がされていることで、知らないお客様が手伝ってくれているという事を知りました。
どんどんお客様がサ活に来るようになりましたが今のサウナ室だけでは手狭になり、サウナ待ちが発生するようになりました。
お客様にもっと満足してもらえるよう、入浴料を上げずにサウナを増設するには業者を極力通さず経費をかけずに、自分で設計立案し知り合いと仕事の合間に作るしかありません。
もちろん、工事だからと営業を短縮したり休む事も経営上できません。
皆さんのお力をお借りして、応援してくれているお客様に還元したいと考えております。
これまでの活動
2019年12月 代表取締役社長に浅野裕美が就任
2020年3月 新型コロナウィルス感染症が世界的に猛威を振るう
2020年9月 サウナ開拓に着手(社長がサウナに目覚める)
2020年11月 サウナストーブをロウリュが出来るように社長自ら設計
社長が「古戦場サウナハット(特許取得)」を考案制作開始
2020年12月 ECサイト開設(古戦場サウナハットの累計販売数582個 2022年3月末)
2021年1月 男外気浴でテントサウナのイベント
2021年3月 社長の誕生日が「サウナの日」の3月7日のため四代目生誕祭を開催、入浴料¥370に
2021年4月 SNSサイト サウナイキタイ岩手県2位に
2021年5月 サウナ闇市に出店
2021年6月 SNSサイト サウナイキタイ岩手県1位に
2021年7月 サウナ物産展に出店
2021年8月~10月 若手スタッフ2人が自腹で古戦場サウナグッズを購入し全国に古戦場サウナを広める旅に
2021年10月 サウナ物産展2(大阪)に出店
2021年11月 若手スタッフが全国旅で教わった熱波を「熱波イベント」として開始(女性スタッフが「タイガー愛美」として熱波師となる)

全国旅でお世話になった施設のうち、仙台の「キュア国分町」様・「やまびこの湯」様に熱波イベントとしてお礼参り

2022年3月 四代目生誕祭でパートスタッフの古希熱波師「熱波熊谷」誕生

2022年4月 古戦場のお客様に熱波の受講を無料で開催する「熱波講習」を開始

現在に至る。
資金の使い道
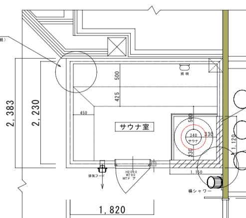
収容人数最大10名の「漢方サウナ」を一から作ります。

設備費:約340万円
水道工事 30万円
電気工事 30万円
外装工事(基礎含む) 150万円
内装工事 50万円
サウナストーブ 70万円
桶シャワー 3万円
支援者掲示板 3万円
その他看板 3万円
消耗品費:漢方薬草 10万円(1年分)
人件費:約20万円
リターン商品・送料:約76万円
手数料:約68万円
実施スケジール
2022年6月上旬 水道工事・基礎工事
2022年6月中旬 外装工事・内装工事
2022年6月下旬 電気工事
2022年6月30日 クラウドファンディング終了
2022年7月7日 新サウナオープン
2022年7月10日 リターン発送
2022年7月下旬 支援者掲示板を新設サウナ外壁に設置
リターンのご紹介
※全てのプランには、新サウナ室外壁に支援者名を掲示させていただきます。
(希望者のみ・ニックネームOK)

・¥3,000プラン ステッカー 1枚

・¥5,000プラン マスクストラップ 1本

・¥10,000プラン 手ぬぐい 1枚
・¥15,000プラン 古戦場商品券¥2,500分(有効期限2023年8月まで)

・¥20,000プラン各種 Tシャツ Lサイズ 1枚

・¥30,000プラン サコッシュ いずれか1個(色は選べません)

・¥50,000プラン 男湯貸し切り(閉店後の21時30分~23時30分の2時間)10名様まで利用可能

・¥100,000プラン 1年間入浴フリーパス券
最後に
新設サウナを通して、お客様の意見も取り入れながら永く愛される施設に成長し、地域の活性化に繋がればいいと思っております。
ここからが、古戦場にとって本当のスタートです!
<募集方式について>
本プロジェクトはAll-in方式で実施します。目標金額に満たない場合も、計画を実行し、リターンをお届けします。








コメント
もっと見る