はじめに・ご挨拶
プロジェクトページをご覧いただきありがとうございます。
東京理科大学工学部建築学科高橋研究室荒屋鉱泉耐震改修プロジェクトチームです。
私たちは2022年5月より富山県射水市にて7年前に閉業した旧荒屋鉱泉の空き家改修プロジェクトを行なっています。
富山県射水市にある旧荒屋鉱泉は明治42年創業以来、100年余り地域住民に愛された銭湯でした。建物の設備の老朽化などが原因で2015年に閉業してしまいました。
旧荒屋鉱泉を耐震改修し、再活用させることがこのプロジェクトの目的です。
普段、高橋研究室では建築構造の耐震性や免震・制振の研究を通して安全性の研究を行っています。地震に強い建物をつくるにはどうしたらいいかを考え、コンピュータによるシミュレーションや様々な実験を行っています。


プロジェクトを立ち上げた背景
近年の日本では、少子高齢化や都市部への人口集中などが要因となった地方の過疎化、並びに空き家の増加が社会問題となっています。国土交通省の調査によると、この20年間で、空き家の総数は576万戸から846万へと約1.47倍に増加しています。

空き家の増加は地域社会に様々な悪影響を及ぼしかなません。風景・景観の悪化の他に、倒壊・崩壊・屋根や外壁の落下などによる防災性の低下や、ゴミや悪臭の発生の問題などが懸念されます。

日々、大学の研究室で建築構造を学んできた私たちがこの社会問題に貢献出来ること。老朽化した空き家の耐震改修を行い、再び地域の人々が気軽に利用できる建物へと生まれ変わらせる。そして、町の地域活性化に繋げる。
このプロジェクトで実現したいこと
今回、クラウドファンディングで実現したいことは7年前に空き家となった富山県射水市の《旧荒屋鉱泉》の耐震改修、リノベーションです。設計や施工は高橋研究室のメンバーが主体となり、行なっていく予定です。
また、リノベーションでは外壁に富山県産の焼杉を、内装材として、杉や檜の突き板を利用し、木の香る建物へと生まれ変わらせます。
耐震改修後は空き家を再活用し、地域の人々が気軽に利用できる施設として利用していく予定です。また、定期的に地域の子供達と大学生が交流できる施設を目指します!

・地域住民の交流の「場」
地域の小中学生向けに高橋研究室の学生が定期的にオンラインも併用しながら数学や理科の楽しさを教えます。
・建築構造や建築材の素晴らしさを学べる「場」
マシュマロチャレンジなどを通して建築構造を体験的に学びます。
マシュマロチャレンジとは、乾燥パスタ、ひも、テープ、マシュマロなどを使って自立可能なタワーを建て、高さを競うゲームです。合理的な建築構造を体験的に学ぶことができます。
マシュマロチャレンジなどは、実際に大学の講義や企業の研修などでも行われています。建築の知識だけでなく、チームワークの強化、PDCAサイクルを回す重要性も身につけることができます。
また、建築防災教室を定期的に開催し、子供たちの防災意識向上に繋げます。
・その他にも、写真展や芸術作品の展示の「場」
写真展や芸術作品展の展示スペースとしても活用していく予定です。
射水市のご紹介
射水(いみず)市は、富山県のほぼ中央に位置する人口約9万超の典型的な日本の地方都市です。
2005年11月1日、新湊市及び射水郡小杉町、大門町、大島町、下村が市町村合併し発足しました。
「射水」とは古風な名で、万葉の時代、「伊美都」「伊弥頭」と記され、古くから書物や地図にその名が記されるなど、長い歴史を持つ由緒ある名前です。
水の湧出を表す言葉「イ」・「ミズ」に因み、この地を「イミズ」と呼んだと考えられます。

また、行政区域としての「射水郡」という地名は、大伴家持がまとめたとされる『万葉集』の中で初めて登場します。万葉集 大伴家持 秀歌として、下記2首が挙げられます。
朝床に 聞けば遥けし 射水川 朝漕ぎしつつ 唱ふ舟人
東(あゆ)の風 いたく吹くらし 奈呉の海人の 釣する小舟 漕ぎ隠る見ゆ
尚、奈良時代の射水郡の範囲は現在の射水市域以外に、高岡市と氷見市の大部分と、富山市の一部を含んでいました。東大寺荘園は大仏建立(752年)に寄与、越中国や越前国に新たな荘園を開拓、その任務も有り、大伴家持が越中国司として赴任(746-751)しました。赴任中に多くの歌を残しました。国宝 「東大寺開田地図」には、越中国射水郡鳴戸村墾田図(下図)が有ります。


江戸中期から明治中頃迄、日本海廻りで大阪と北海道を結んだ経済動脈の北前船の寄港地の一つで、大いに栄えた地域でした。江戸時代の和算の大家、関孝和の流れをくむ射水郡高木村の石黒信由は、1803年、伊能忠敬が越中に測量の為に遣って来た時には、射水で会い、測量の方法や器械について意見交換を致しました。その後、石黒は本格的な地図作成の仕事に携わり、加賀、越中、能登の正確な地図を作成しました(加越能三州分略絵図)。
放生津八幡宮に奉納されている石黒信由の算額は、一見の価値が有ります。販売されている絵馬も秀逸です。(放生津八幡宮は旧荒屋鉱泉のすぐ近くにある神社です。)


また、漁師町、新湊を含む射水市は、富山湾の豊富な魚種に恵まれ、白エビ、鰤、紅ズワイガニ、甘エビは特に有名です。
我々も5月の大掃除や測量で射水市を訪れた時に海鮮丼を美味しく頂きました。

漁師町の気風は、お祭り好き!獅子舞の伝承数が日本でもトップクラスの富山県でも、屈指の射水市新湊地区では、毎年5月中旬に行われる春季祭礼では、30以上の獅子舞団体が各町内で演舞を行います。

10月1日の曳山祭りは、花山と提灯山で夫々13基が街に繰り出し、その威勢は映画『人生の約束』で堪能出来ます。
現在は、国の重要無形文化財に指定されております。


新湊地区の内川(旧放生津潟から海に抜ける運河)は、何時からか「日本のベニス」と云われる様になり、日本の湊町原風景的な風情満載です。
内川
ベニス
引用元
射水市地図:射水市観光協会
越中国射水郡鳴戸村墾田図:文化庁(https://bunka.nii.ac.jp/heritages/detail/182715)
獅子舞:オマツリジャパン(https://omatsurijapan.com/blog/shinminato-shishimai/)
曳山祭り写真:北陸信越観光ナビ(https://www.hokurikushinkansen-navi.jp/pc/news/article.php?id=NEWS0000028786)
富山の遊び場!(https://toyama-asbb.com/archives/36309)
ベニス写真:TAVITT AIR(https://tavitt.jp/spot/canal-grande/)
これまでの活動
◯大掃除
7年前に廃業して以来、空き家となった《荒屋鉱泉》
当時使われていた荷物が多く残ったままでした。そのため、メンバーで大掃除を行いました。
まだまだ使用できるものは、地域の方々に引き取っていただき再利用します。

◯実測及び図面復元
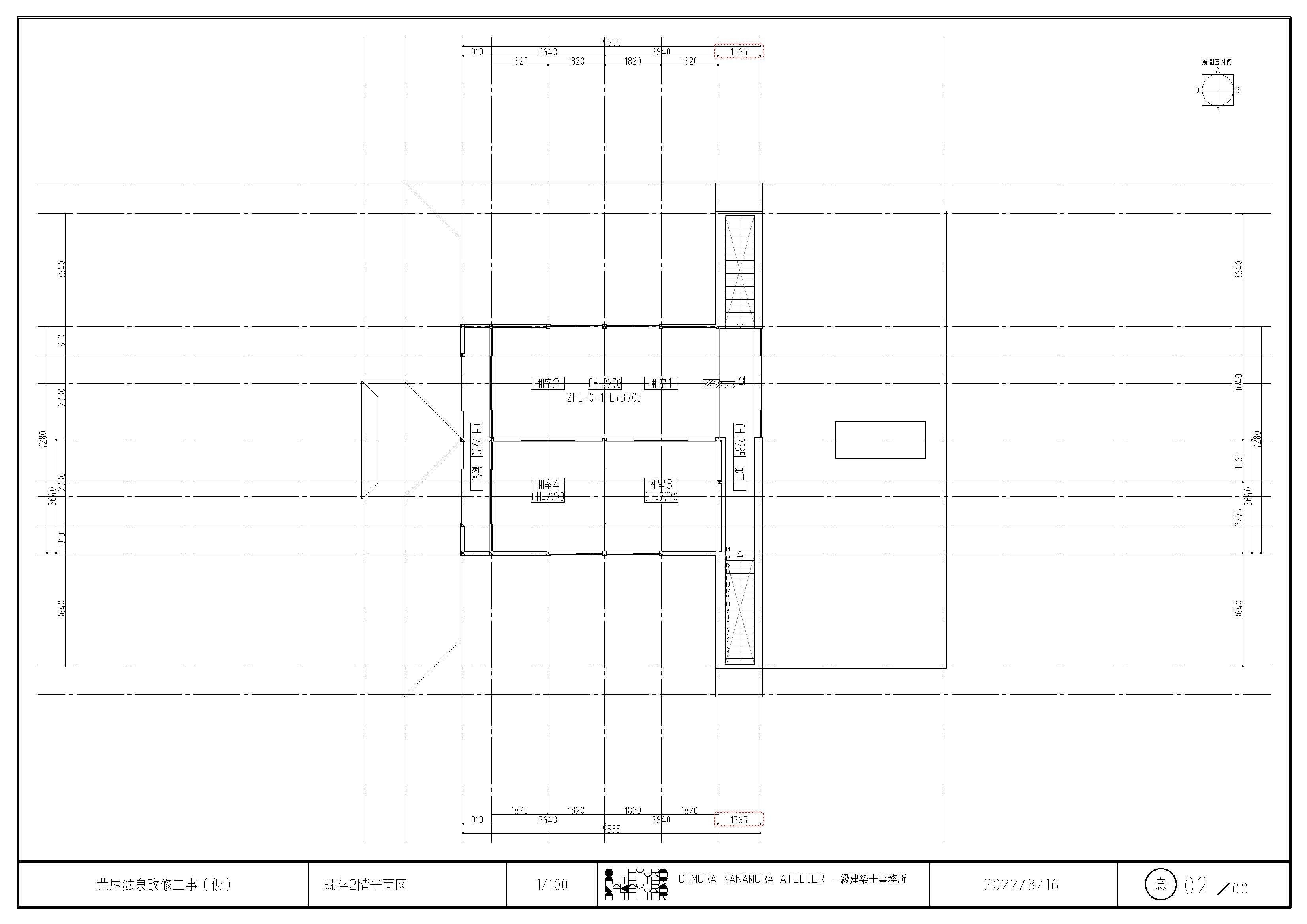
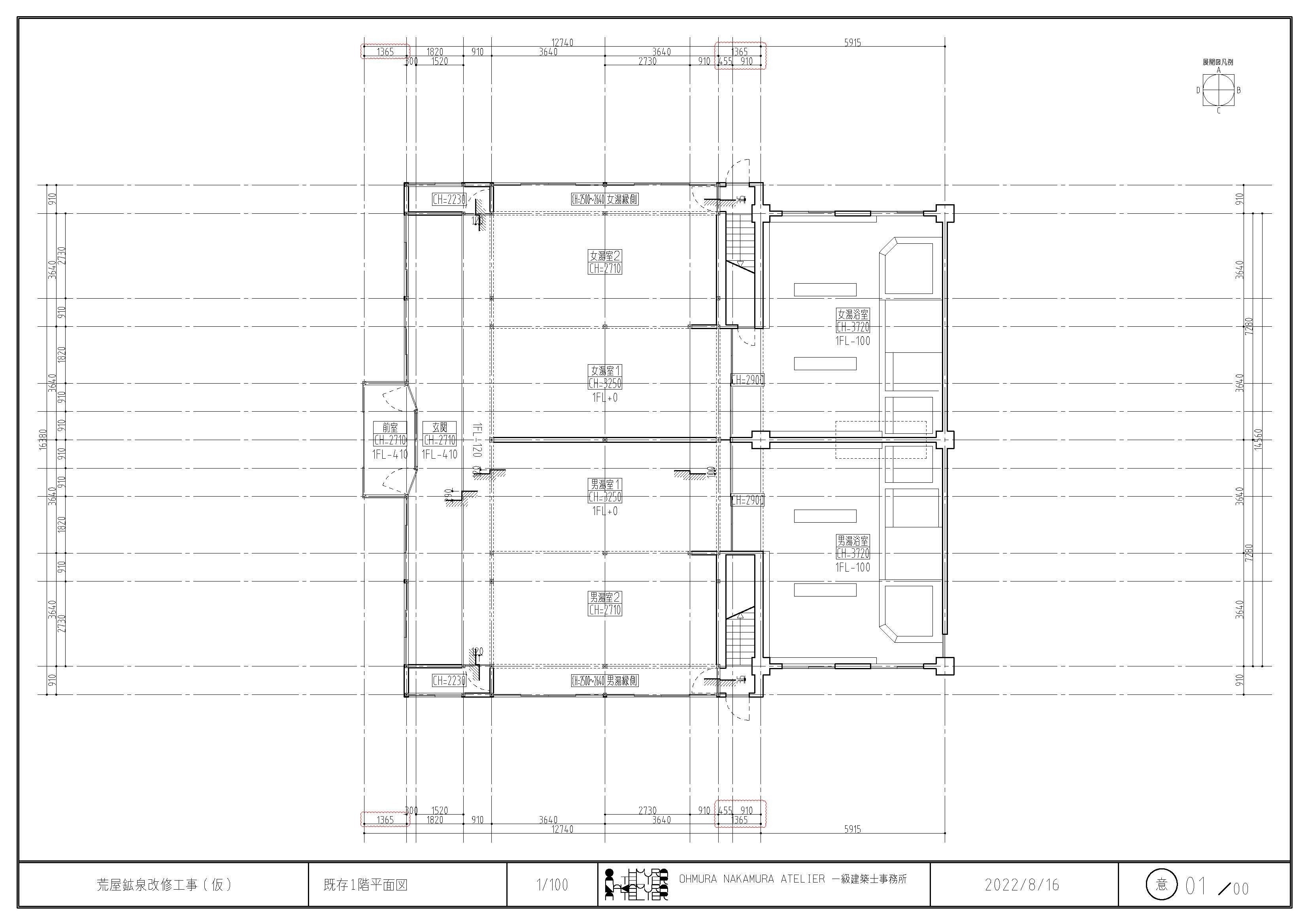
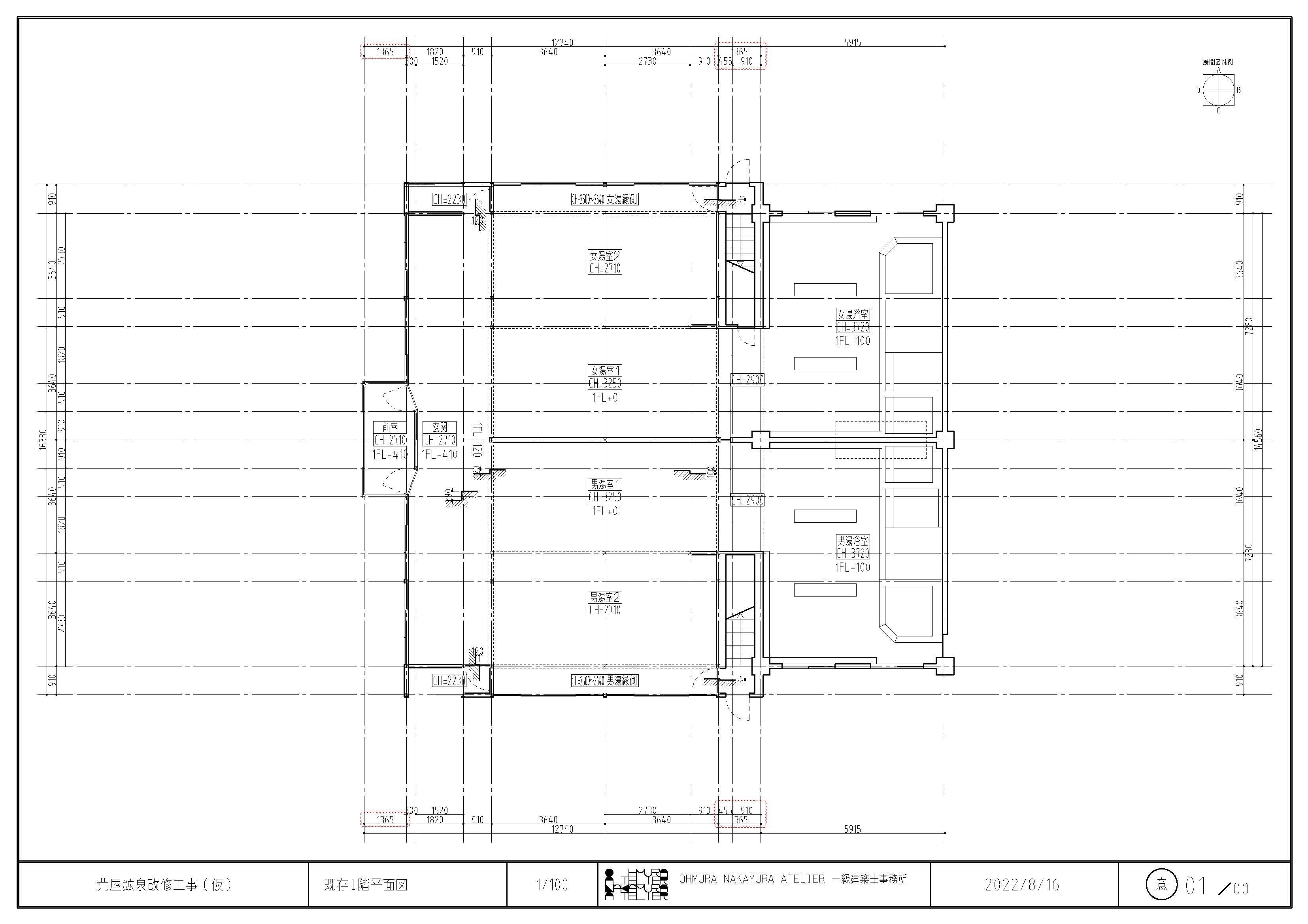
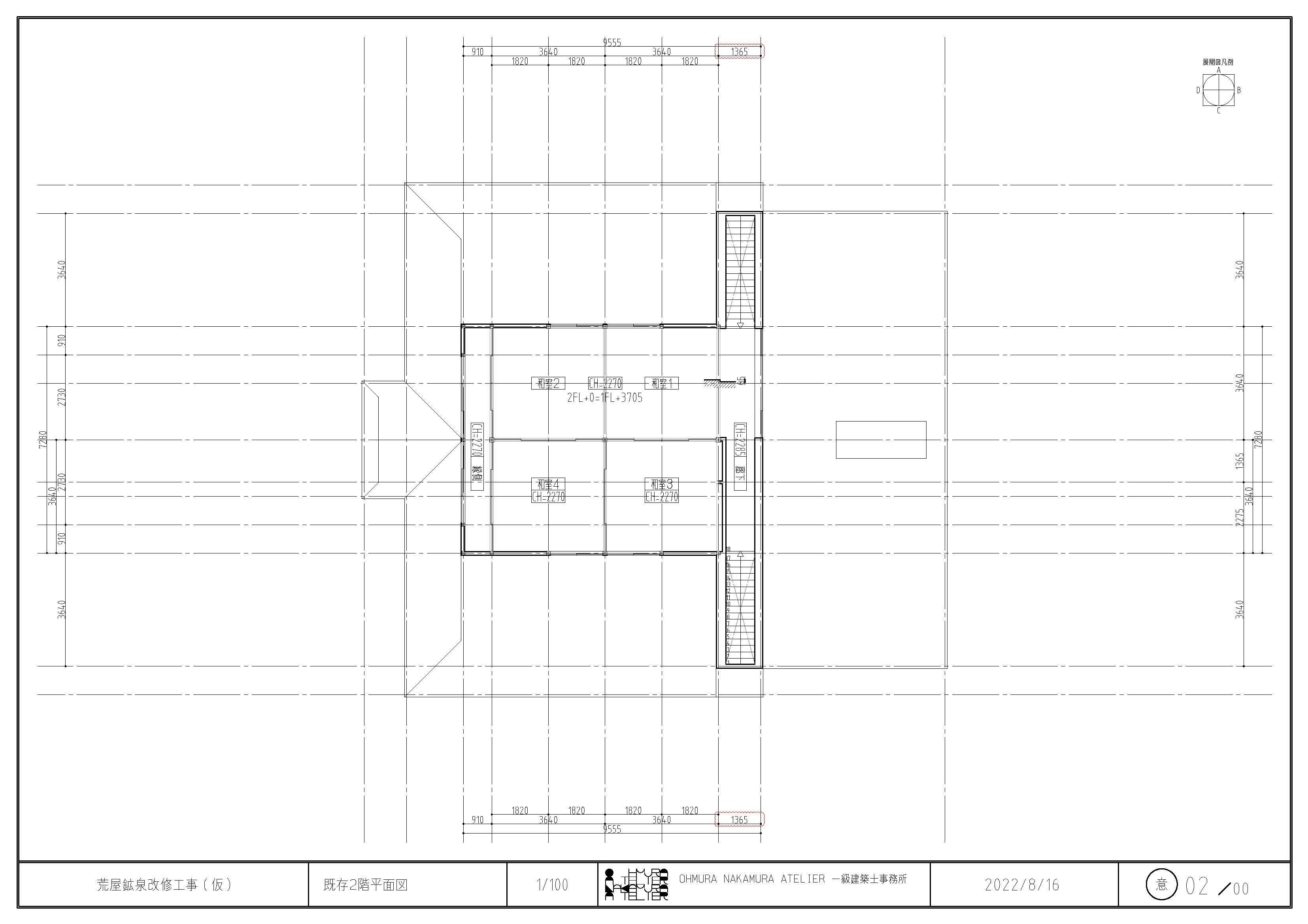
築100年以上の建物であるため図面が存在しません。そのため、5月にメンバーで現地を訪れ、建物の実測調査を行い図面を復元させました。

1階平面図
2階平面図
その時の様子を多数の新聞記事に取り上げていただきました。
・富山新聞
https://www.hokkoku.co.jp/articles/-/736326
・北日本新聞
・読売新聞

○コンクリートブロック塀の調査、補強
コンクリートブロック塀の倒壊はとても危険です。過去には、小学生が下敷きになってしまい亡くなってしまうという悲惨な事故が起きています。
《荒屋鉱泉》の建物の東側と西側には高く積み上げられたコンクリートブロック塀があります。5月にコンクリートブロックの積み上げ方、鉄筋の有無を確認しました。
そして、7月にはポリウレアを用いてコンクリートブロック塀の補強を行いました。事前の実験でポリウレアを塗布することで強度が2倍になることを確かめています。
女湯側施工前
◯ドローンを用いた屋根瓦の破損状況及びズレの確認、棟瓦の補強
屋根に登っての確認には危険が伴います。そのため、ドローンを用いて建物の屋根を撮影し、瓦の破損状況やズレを確認しました。
また、7月には棟瓦の補強を行いました。

棟瓦補強前
棟瓦補強後
○トイレ天井補修
トイレの天井は汚れが多い状態になっていました。そのため、富山県木材研究所から提供していただいた木シートを用いて補修を行いました。木シートをスチレンボードに貼り付け、ビスなどを用いて天井に貼り付けています。
木シートは2種類あり、男湯トイレには杉、女湯トイレには檜を用いています。
男湯トイレbefore
男湯トイレafter
女湯トイレbefore
女湯トイレafter
施工の様子は以下のリンクよりご覧ください
↓
https://youtube.com/shorts/gy2AkHe3-SI?feature=share
○1階焼杉外壁施工
1階外壁に焼杉を使用しました。富山県の県産材を使用しています。焼杉を外壁として使用することで、防虫効果などが期待されます。
焼杉制作から施工まで地元企業さん御協力の元、全て学生が行いました。焼杉制作では、富山県氷見市の岸田木材株式会社さん、施工では、富山県射水市の米田木材株式会社さんに御協力していただきました。
焼杉制作には「三角焼き」と呼ばれる方法を採用し、長さ4mの杉板を計156枚焼きました。

三角焼きの様子は以下のリンクよりご覧ください
↓
https://youtube.com/shorts/O4o0eHdaLfM?feature=share
施工では、事前にフレームを製作し、焼杉フレームを荒屋鉱泉に貼り付けていきました。フレームを貼り付けることで時間を短縮させることができます。

焼杉フレームは、焼杉縦貼り、斜め貼りの2通りで行いました。斜め貼りをすることで耐力向上が期待されます。
before
after
焼杉施工の様子を新聞記事に取り上げていただきました。
・富山新聞
・北日本新聞
○アルミ天井施工
元々、石膏ボードが貼られていた1階脱衣所天井にアルミホイルを貼り付けました。
アルミホイルを貼ったことで、蛍光灯の光が反射し、室内が以前よりも明るくなりました。
1階脱衣所 before
1階脱衣所 after
施工の様子は以下のリンクよりご覧ください
↓
https://youtu.be/0y_cl_R_UpU
○1階脱衣所糠拭き清掃
1階脱衣所のフローリング部分の糠拭き清掃を行いました。
以前はゴザなどがひかれていた為、剥がした後の汚れが目立っていましたが、米糠を少し水で濡らしてから拭くことで、汚れを落とすことができ、ツルツルの床に生まれ変わらせることができました。
女湯脱衣所 before
女湯脱衣所 after
糠拭きの様子は以下のリンクよりご覧ください
↓
https://youtu.be/o1jh2PvfzG4
○柿渋塗料製作
富山県、南砺市の農家の方から頂いた青柿10kgを使って柿渋塗料を製作中です。
青柿をミキサーなどで細かく砕き、水に浸して3日ほど寝かせた後に、木綿の布を使って絞りました。
再び数ヶ月寝かせた後に、荒屋鉱泉の柱などに塗る予定です。



柿渋塗料製作の様子は以下のリンクよりご覧ください
↓
https://youtu.be/SBj-ypfRUWI
※これまでの活動はYouTube、Twitterにも掲載していますので、是非ご覧ください。
実施スケジュール
2022年 5月 大掃除及び現地調査
2022年 6月 図面復元
2022年 7月 コンクリートブロック塀補強、瓦補修
2022年 8月〜 耐震補強案検討
2023年 耐震改修工事開始
資金の使い道
・耐震改修費用
・クラウドファンディング手数料
・返礼品準備費用
・学生交通費及び宿泊費
リターンのご紹介
クラウドファンディング終了後、作業総集編動画を制作致します。その際に今回ご支援頂いた皆様のお名前をエンドロールにてクレジットさせて頂きます。総集編動画は、2023年8月、耐震改修工事完了後製作予定です。
※申し込みの際、備考欄に記載希望のお名前をご記入ください。記載を希望されない場合、クレジット無希望と入力お願い致します。
・【学生純粋応援セット】500円
・【お礼のお手紙セット】1,500円
・【絵葉書3枚セット】2,000円 ←New!!!
・【before&after写真展招待セット//監修:イナガキヤストさん】3,000円 ←New!!!
・【直筆メッセージセット//ポリウレア端材】3,000円
・【オリジナル軍手セット】3,000円
・【荒屋鉱泉オリジナルフェイスセット】3,000円 ←New!!!
・【絵馬&御守りセット//放生津八幡宮】5,000円
・【防災カレンダーセット】5,000円
・【オープン記念懇親会セット】5,000円 ←New!!!
・【ブロック塀お絵描き権セット】6,000円
・【万葉の土セット】6,000円
・【荒屋鉱泉オリジナルTシャツセット】6,000円 ←New!!!
・【オリジナルTシャツセット】8,000円
・【オリジナルトートバックセット】10,000円
・【オリジナルポロシャツセット】10,000円
・【干物セット】15,000円 ←NEW!!!
・【研究室技術報告集セット】25,000円
・【before&after写真集セット//作成:プロジェクトチーム学生、監修:イナガキヤストさん】30,000円
・【広告権セット】30,000円 ←New!!!
・【補強材料名前刻印セット】100,000円
・【出前防災教室セット】500,000円
※リターン品の詳細はリターン品項目にてご確認ください。
最後に
このプロジェクトは、我々だけでは決して成功させることができません。
しかし、メンバー一同一歩でもプロジェクトの成功に近づけるよう日々奮闘しています。
空き家の再活用、そして射水市の地域活性化に繋げられるよう、ご協力お願いいたします。
<募集方式について>
本プロジェクトはAll-in方式で実施します。目標金額に満たない場合も、計画を実行し、リターンをお届けします。
最新の活動報告
もっと見る返礼品発送遅延のお詫び
2023/03/02 14:17こちらの活動報告は支援者限定の公開です。
第三弾、返礼品追加のお知らせ
2022/09/28 13:06ご覧いただきありがとうございます。第三弾、返礼品追加のお知らせです。【荒屋鉱泉オリジナルフェイスタオルセット】3,000円【荒屋鉱泉オリジナルTシャツセット】6,000円デザインは全て学生が行いました。フェイスタオルは2種類、Tシャツは4種類ご用意しております。詳細はリターン品目よりご確認ください。引き続き、御支援、御協力よろしくお願い致します。 もっと見る
公式Twitter及びYouTubeチャンネルのお知らせ
2022/09/19 10:36ご覧いただきありがとうございます。今回は公式Twitter及びYouTubeチャンネルをご紹介させていただきます。「荒屋鉱泉耐震改修プロジェクトチーム//建築アベンジャーズ」では公式Twitter及びYouTubeチャンネルを開設しています。公式Twitterでは、日々の活動の様子を随時アップしていく予定です。また、YouTubeには荒屋鉱泉耐震改修プロジェクトの作業動画を掲載しています。Twitterのいいねとフォロー、YouTubeアカウントのチャンネル登録よろしくお願い致します。Twitter→https://mobile.twitter.com/K__AvengersYouTube→https://youtube.com/channel/UCsk69rSCbYUsm3mMB3DH9NQぜひ、ご覧ください。 もっと見る







コメント
もっと見る