─[News]────────────────────────
2023年10月のOPENに向けて、着々と進行中!
内装デザインも決まり、施工業者との打ち合わせも進んでいます。
─────────────────────────────
■はじめに・ご挨拶
初めまして、私たちは株式会社スプラウトと申します。
株式会社スプラウトは、大阪市内で卸売業を営んでいる会社です。
私たちは空き家を活用した宿泊施設の開業をめざしたプロジェクトの実行を決めました。
このプロジェクトを成功したいと思い、この度キャンプファイヤーに掲載することにしました。
京丹後市の空き家を愛犬と快適に過ごせるように宿泊施設にリノベーションし、広々としたドッグランを併設いたします。

この場所が愛犬家の皆様、わんちゃんにとって安心して過ごせる快適な場所になるようにしたいと考えていますので、どうぞよろしくお願いします。
■プロジェクトを立ち上げた背景
京丹後で飼っている愛犬「ゴールデンレトリバー」の運動不足を解消したく、自由に走らせてあげられるドッグランを敷地内の畑を改装して作ることにしました。

それに伴い、何年も使用していない空き家を改装して宿泊施設にすれば、京丹後という立地を活かし、観光資源に恵まれた京丹後旅を愛犬と一緒に楽しんでいただけるのではないかと思い、宿泊施設を開業しようという思いにたどり着きました。
宿泊施設の隣は、民家ではありますが、1棟貸切のため、他の利用者を気にすることなく安心してご利用いただけます。
思う存分ドッグランを独り占めして遊ばせることができるため、愛犬と一緒に旅をしたい方にはピッタリのサービスになると考えました。

■私たちの地域のご紹介
プロジェクトを実行する場所、京丹後は観光地としても1年を通して人気のエリアです。

京丹後の隣には日本三景の1つ「天橋立」があり、年中観光客に恵まれています。
京丹後には、夏は海水浴、冬は蟹を楽しみに旅行者が多く来られます。
■施設のイメージについて


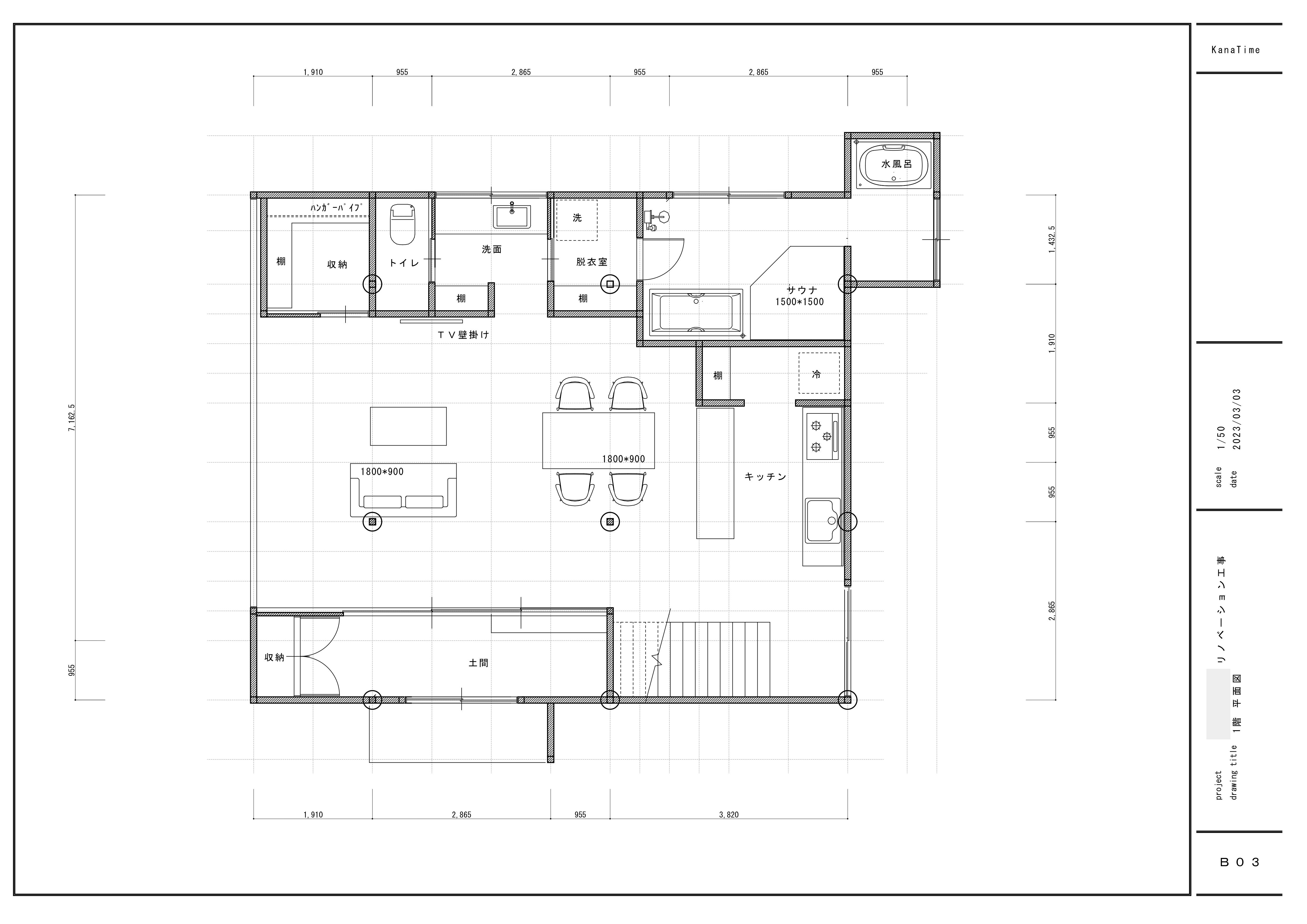
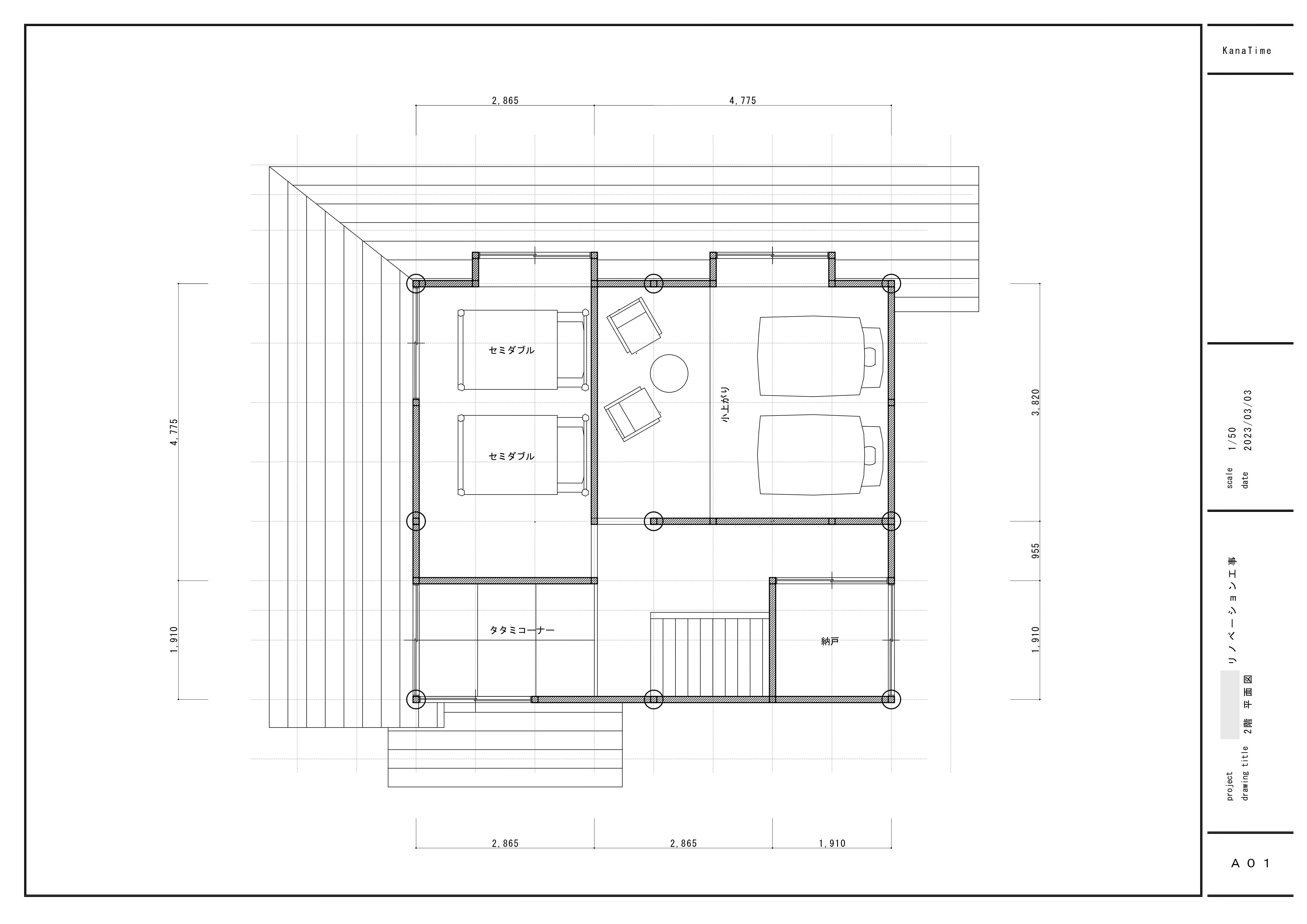
現在内装のデザインまで進んでいます。まだこの図面も完成ではないので変更する可能性もありますが、お風呂は広めにプライベートサウナを設置。1階は和の雰囲気を残しつつゆったりくつろげる空間をイメージしています。大型犬も対象としているので、1階は自由に歩きまわってもらえるような造りにできるよう検討中です。
・1階平面図
・2階平面図

■施設概要
所在地
京都府京丹後市弥栄町国久577-1
■サービス提供スケジュール
2022 年 11月 宿泊施設のデザイン、工事内容など検討開始
2023 年 6月〜7月頃ドッグラン拡張工事、宿泊施設の工事開始 ホームページ制作、宿泊サイトの登録開始予定
2023 年 10〜11月頃 OPEN予定
2023 年 10〜11月頃 OPENと同時にリターン発送予定
(リターンについて、現在公開中の一部の商品は9月の発送を予定しています)
■資金の使い道・実施スケジュール
①ドッグラン拡張100万円~200万円(実際費用300万円程度)
②宿泊施設のリノベーション1000万円~1500万円(実際の費用1500~2500万円程度)
③第二、第三の施設を建設1000万円~1500万円(これは1件目が成功したら実行したいと思っています)
■リターンのご紹介
今回、私たちのプロジェクトにご支援くださった方に、感謝の気持ちを込めてリターンをご用意いたしました。
【ご支援金額3,000円プラン】
<お礼の手紙>
支援してくださった方へ感謝の気持ちを「手紙」に込めてお届けします。
【ご支援金額10,000円プラン】
<お礼の手紙とワンちゃんのごはん入れ(ネーム入り)>
支援してくださった方へ感謝の気持ちを込めたお手紙に、わんちゃんの名前入りフードボウルを添えてお届けします。
★今後リターンの追加を予定しております。
■最後に
現在の古民家の写真になります。
・外観

・内観




和を基調にした「くつろげる宿」にリノベーションしたいと思います。
ワンちゃんは家族の一員なので、愛犬家にとってもワンちゃんにとっても安心してくつろげ、遊べ、休息を味わえるような宿を目指して様々な工夫を取り入れました。
大型犬も大満足!広々としたドッグラン。
室内も自由に歩き回れるように床材も滑りにくく掃除のしやすい素材へ。
浴室には、お風呂だけでなく流行りのサウナも設置。
プライベートサウナになるのでサウナ好きの方にはたまらない!
日頃の疲れを癒し、リフレッシュしていただけると思います。
食事の提供はないですが、バーベキュー用のグッズも完備しているので、お好きな食材を自由に焼いて楽しい時間を過ごしていただけます。
大切なワンちゃんと、家族や、友人、仲間たちと集まり、楽しくコミュニケーションを深められるそんな宿になってほしいと思います。





コメント
もっと見る