こんにちは、一般社団法人小さな地球で副代表をしている福岡達也です。
千葉県鴨川市にある美しい棚田の集落で、村づくりのプロジェクトを進めています。

都心から一番近い千枚田である「大山千枚田」のすぐ近くにある集落で、観光地でもなく、街道より一歩引いた場所でひっそりと活動しています。移住の先輩である林良樹さんと建築家の塚本由晴さんと共に「小さな地球プロジェクト」を立ち上げて、里山を丸ごとコモンズ(Comonns/共有財産)にするような活動、具体的には古民家の改修や、タイニーハウスの建設、茅葺き屋根の再生などを手掛けてきました。
サウナに関しては、構想から2年が立ちます。築100年になる古い蔵をベースに、北欧フィンランド式のサウナを作り上げていきます。すでに明治大学で建築学を教える川島範久さんとその研究室の手を借りながら、日本の伝統的な工法である「版築」で分厚い土の壁を作り上げてきました(以下”僕たち”という表記がある場合は彼らと共同で取り組んできた内容を指します)。学部生から関わってくれているプロジェクトのコアメンバーたちは院生生活のメイン活動として、この版築施工に携わってくれています。たくさんの土を手作業で掘って突き固める作業は、本当に根気のいる作業でした。
Earth Sauna 断面図
そして、いよいよサウナの完成ゴールが見えてきました。
このサウナはこれまで小さな地球プロジェクトが目指してきた「コモンズ」的側面を併せ持っています。家庭用のプライベートサウナとも、銭湯などで見られる他人と寄せ合うようなサウナとも異なり、特定の仲間と共に楽しむサウナです。
塚本由晴 普請と請負のマトリクス
サウナ文化発祥の地である北欧フィンランドではこうした「サードプレイス」としてのサウナが文化的に色濃く残っているそうです。アットホームで楽しそうな雰囲気はコミュニティからくるもので、日本の多くのサウナでは味わえない体験になっているでしょう。(こう言っている僕は北欧のサウナに入ったことないんですが)
サウナのサイズは5人が快適に入浴できるようなサイズです。まずは顔見知りの仲間と共に貸切で利用してみてください。普段とは全く違う体験になること間違いないと思います。
ジッケンとジッセン。サウナの新しい役割。仲間になって一緒に「Earth Sauna」を完成させよう!
話を「版築」の話に戻します。ある意味では単純な工法で、材料となるのは粘土と砂、砂利だけです。そこに少量の水と場合によっては石灰を加えました。
型枠に入れて強く突き固めることで、頑丈な土の壁をつくります。単純な一方で、繊細な工法でもあります。実は水分の量や配合比率は非常に繊細で絶妙なバランスで成り立っていることも、実践してみるとよくわかりました。水分量が多いとひび割れの原因になったりと、苦労しました。
近年では少なくなった土による構造物ですが、環境配慮の観点から海外では再注目されている古くて新しい素材になります。近年では土の耐火性能が認められ、法的にも扱いやすくなりました。建築した時に出る「残土」の問題を含め、私たちの生活の下には必ずある「土」を研究することができれば、新しい建築の可能性が開けるのではないかと思います。
また、版築の下にもたくさんの工夫を詰め込みました。僕たちがこのプロジェクトを始めるにあたって、コンクリートをなるべく使わないことを検討しました。天然素材で版築を作ること、また土中の環境を破壊しないように配慮したいという願いが込められています。しかし大きな重量になる版築を支える基礎として、コンクリートを使わないというのは大きなチャレンジでした。結果的に僕たちが出した解決策は、面ではなく線の束で支えるということでした。大量の松杭を打ち込みその摩擦で支えるように基礎を維持しつつ、土中への透水性や通気性をなるべく損なわないように配慮しています。むしろこの松杭の表面を伝って、窒息気味だった土壌が呼吸できるように環境改善をしているとも言えるでしょう。この意味で「Earth Sauna」は地球のためのサウナでもあります。
Earth Sauna 平面図
※プロジェクトの特性上、図面の内容は変更になる場合があります。
多くのジッケンとジッセンが混ざり合うプロジェクトになっている「Earth Sauna」。
最後にこのクラウドファンディングの資金用途とリターンについて詳しく書きたいと思います。資金の用途はサウナの要である「サウナストーブ」の購入費です。煙突とサウナストーンを含みます。広さに合う、十分な熱源となるサウナストーブを購入したいです。そのリターンとして利用権を先行販売したいと思います。現在予定している一般向けの貸し出し価格に比べかなりお得な設定にしています。
サウナ完成を機に、また多くの出会いを期待しています!応援よろしくお願いします。
【プロジェクトメンバーの紹介】

福岡達也(ふくおか・たつや):農ある暮らし=パーマカルチャーを求めて2020年に横浜から千葉県鴨川市の棚田の集落に移住。移住の先輩である林良樹、建築家の塚本由晴らと一般社団法人『小さな地球』を立ち上げ、里山をコモンズとして開く活動を始める。明治大学川島研究室と連携し、版築によるコモンズ・サウナづくりに挑戦中。
川島 範久(かわしま・のりひさ):私が主宰する明治大学理工学部建築学科・地域デザイン研究室では「環境ポテンシャル(身近な資源)をいかすエコロジカルな地域・建築デザイン」の研究・実践活動を進めています。アースサウナは、そのようなテーマを具現化するプロジェクトであり、さらにサウナ好きの私としては、完成が楽しみで仕方ありません!明治大学川島範久研究室:http://norikawashima-lab.jp/川島範久建築設計事務所:http://norihisakawashima.jp/

泉谷 智文(いずみだに・ともふみ):これまで無我夢中でつくってきたアースサウナがもう少しで完成します。土に囲まれたサウナではどのような体験ができるのでしょうか。洞窟のような。古代の遺跡のような。普段味わうことのできない土に囲まれたサウナで一緒にととのいましょう!

坂田 諒(さかた・りょう):ようやくあと一歩のところまで来ました!ずっと見てきた私達も惚れ惚れするような美しく且つ力強い土の壁がサウナを囲います。サウナ上がりには里山の清らかな風を感じながら、自分で摘んだ夏みかんを絞ったビールなんていかがでしょうか!?ここでしかない体験が確実にあります!
佐野 千優(さの・ちひろ):はじめまして。描いた図面が現実のものとして立ち上がっていくことに日々ワクワクが止まりません。千葉県出身なので、このプロジェクトに関われていることにご縁を感じております。どうぞ応援よろしくお願いします!

長森 勇輔(ながもり・ゆうすけ):1年半以上この里山とけいじをフィールドに様々な活動をしてきました。そんな中で版築のアースサウナを計画することになり、はじめて自分たちの作り上げた版築の壁を見たときはその迫力に感動しました。アースサウナは着々と完成に近づいています。うつくしい里山の景色と版築に見惚れながら一緒に汗をかきましょう!
<Special thanks>
左官職人 久住有生さん、浅沼組 技術研究所 構造研究グループ・材料研究グループの皆さん、八幡工業の皆さん、株式会社KSAG 境洋一郎さん、高田造園 高田宏臣さん、塩原匠さん、幾星霜 山本次郎さん
日本を代表して国内外で活躍されている左官職人である久住さんには、私たちへ「版築」という構法を発案していただき、実際の施工の際には現地でアドバイスをしていただきました。特に、版築の土の配合は久住さんの経験則による配合で決定しています。左官素人の私たちに土の扱い方から叩き方までご教授いただきました。そのほか、ゼネコンである浅沼組の皆さんには、地業・基礎や版築型枠の設計段階でエスキスをしていただり、八幡工業の皆さん、KSAGの境さんには、左官の道具やミキサーの支援をしていただきました。高田造園の高田さんには、土中環境改善の手法についてワークショップの参加や本を通して学ばせていただき、基礎や雨落ちの設計・施工で実践致しました。また、塩原さん・山本さんには、杭の打ち方や割栗石の小端立て方をご教授いただき、私たち素人でも施工できるようになりました。
【施設概要】
◆ コンセプト
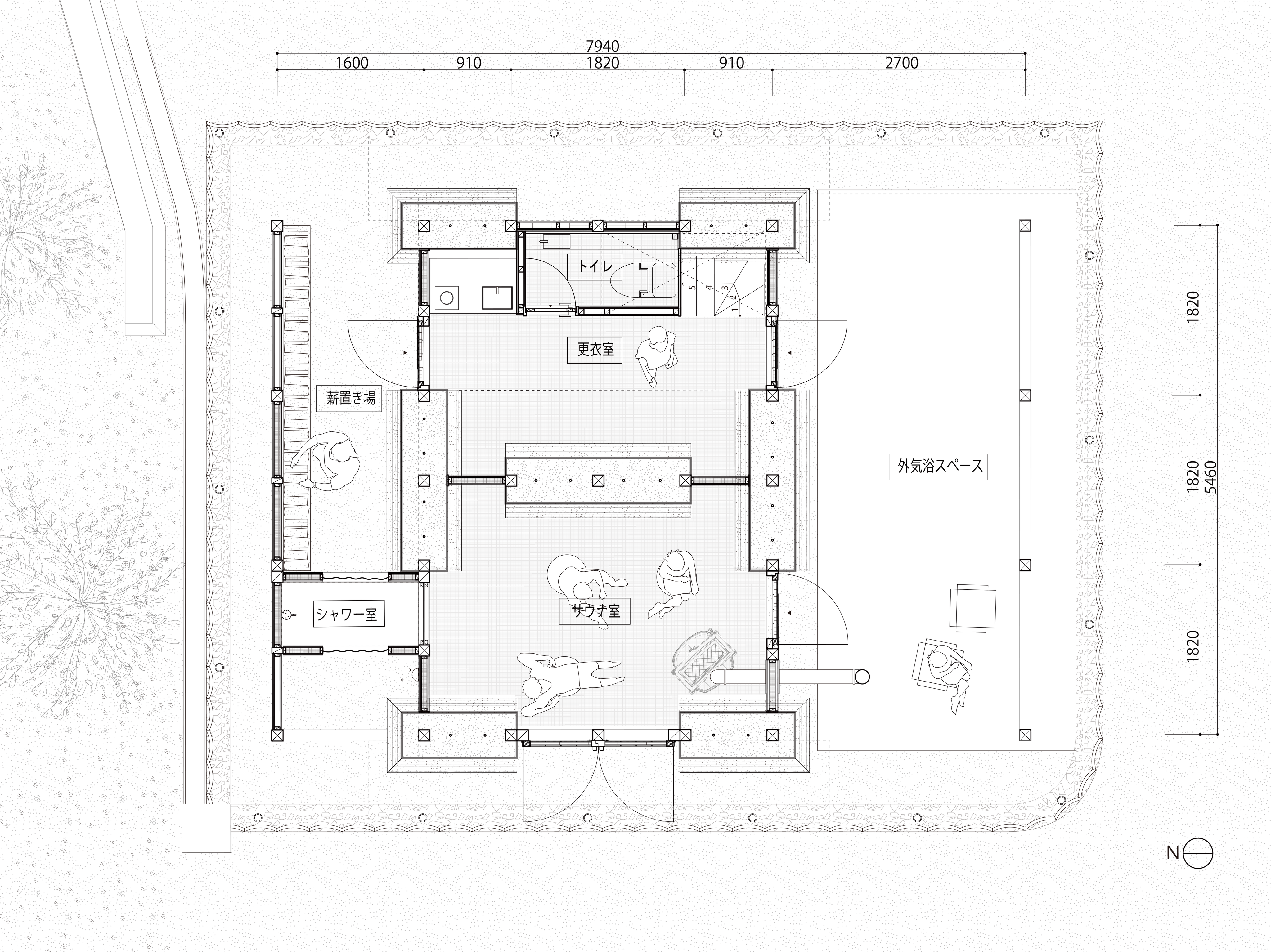
棚田の美しい集落にある築100年の古民家に移り住んだ僕たちは、母家のすぐ隣にある蔵に目をつけました。元々はお米を貯蔵庫として使っていたようですが、その一階部分をサウナとして蘇らせます。自然とつながる建築を得意とする明治大学川島範久研究室と共同で改修する実験的なプロジェクトです。完成したサウナはコモンズとして開かれ、里山に人が通う新しい入り口にもなります。

◆ サウナの構造
古くは城壁などで用いられていた工法で、土を一層づつ突き固める「版築」という伝統工法に挑戦しています。完成すると地層のように土のレイヤーが見えて美しいです。

◆ 土中環境に配慮された建築
このプロジェクトは日本の伝統工法である版築の実験であると共に、その重量で土中環境を破壊しないように配慮されています。およそ100本の焼き杭を大地に打ち込み、版築の重さを分散して支持することで大地の圧迫を抑えています。裏手の山から染み出した水や空気の流れを遮断せずに、自然の流れの中にある建築を目指しています。

◆ ロケーション
美しい棚田の集落の一番奥地。南向きに開かれた斜面には夏みかんの木が100本以上植っています。その他にもレモン、ライム、ブルーベリー、イチジク、クリなどたくさんの種類の苗木を育てている最中です。この果樹園も食べられる森として、コモンズ化していくことも想定しています(これについてはまた別の機会に)。サウナをあがった後は冷えた夏みかんのビール割りを最高のロケーションで楽しめます。

◆ 楽しみ方
サウナを楽しんだ後はBBQをしたり、集落に点在するプロジェクトを巡るツアーを組み込んだりすることも可能です。別料金になりますが、徒歩10分ほどの距離にある古民家したさんも宿泊施設として利用できます。リターンの選択肢以外の使い方を希望される方は、ぜひ個別にご相談ください。

◆ サウナのスペック
最大利用人数:5名
付属施設:男女別の更衣室・トイレ、簡易シャワー
◆ 購入を検討しているサウナストーブ
モキ製作所のサウナストーブ 茂暖(モダン) MS70 ¥415,800
サウナストーン ¥66,000
煙突 ¥200,000

【サウナの利用方法】
・友人を誘って貸切利用してください。
・男女兼用のため、水着を着用して利用ください。
・男女別の更衣室、バルククーラーを転用した水風呂やシャワーもあります。
・別棟にて宿泊の相談可能です。サウナ利用の際に個別に連絡のやり取りをさせていただければと思います。
【予約の方法】
・貸切権のリターンを選択いただいた方には個別に予約方法をメールで送らせていただきます。他の方と日程が被ることもございますので、事前に調整させていただければと思います。
【完成までのスケジュール】
・2024年3月以降に竣工予定。公衆浴場法上の免許取得の関係で、オープンが後にずれ込む可能性があります。
【支援金の用途】
・主にサウナストーブ及び煙突の購入費として。ストーブ本体+煙突+サウナストーン+CAMPFIRE手数の合計を目標額としています。
【アクセス】
千葉県鴨川市釜沼914 古民家けいじ
車でお越しの方
車(海ほたるPAより)約1時間
海ほたるPA→君津I.Cまで20分→一般道40分
海ほたるPA→鋸南保田I.Cまで40分→一般道20
電車ご利用の場合
JR外房線安房鴨川駅より約10km/バス:鴨川日東バス「大山千枚田」下車すぐ
<募集方式について>
本プロジェクトはAll-in方式で実施します。目標金額に満たない場合も、計画を実行し、リターンをお届けします。
<使用画像・動画について>
使用している写真は全て許諾を得て利用しています。
<プロジェクトオーナーについて(特商法上の表記)>
■特定商取引法に関する記載
●販売事業者名:一般社団法人小さな地球
●代表者:林 良樹(はやし よしき)
●事業者の住所/所在地:〒296-0231 千葉県鴨川市釜沼875
●事業者の電話番号:請求があり次第提供致しますので、必要な方はメッセージ機能にてご連絡ください。
●対価以外に必要な費用:プロジェクトページ、リターンに記載のとおり。
●その他記載事項:プロジェクトページ、リターン記載欄、共通記載欄(https://camp-fire.jp/legal)をご確認ください。
最新の活動報告
もっと見る
返礼品の木札と手ぬぐい
2024/11/14 10:13銭湯に行く時に渡されるロッカーの鍵?のようなデザインで、オリジナルの木札を作ってみました!建設過程で出た端材を加工して、消しゴムハンコを自作し、手作りしています。返礼品です。ぜひこれを持って、EarthSaunaに入りにきてください。※ストラップ的な小さなものを最初は想定していましたが、結果的にこうなりました! もっと見る
<祝!>Earth Sauna 完成しました!
2024/10/26 11:27みなさま、大変お待たせしました!遂にEarth Saunaが完成しました。MOKI製作所のサウナストーブも映えてます。遡れば2021年5月からプロジェクトの構想が始まり、かれこれ2年半が施工期間でした。・土を掘り、砂利と共に練り合わせ、型枠に詰めで叩き込んだ版築。その版築の重量を支えるための基盤となる地業のアイディアなど、工法の開発から始まりました。・使う素材を一つ一つ吟味し、環境負荷、接着剤の有無、製造過程、使用後の分解可能性など議論し尽くしました。・研究と実践を往復させ、多くのテスト期間も設けてきました。最後の3週間は学生たちと缶詰め状態で頑張って仕上げました・・!(本当にお疲れ様!)誰も見たことがない、唯一無二のサウナです。版築がアップライトで美しく照らされるサウナ空間2階の休憩室 兼書斎改修前の蔵の様子 (3年前)完成をお祝いして、オープンハウスを実施したいと思います。日程:11月16日(土) 申し込み方法や時間は追って連絡します。ここまで完成に至ったのは皆さんの応援のおかげです!心からお祝いしたいと思います。 もっと見るサウナ作りも大詰めです!9月8日は土壁作りもします。
2024/09/02 12:14アースサウナプロジェクト、ついに大詰めです。ずいぶん時間をかけまして、お待たせしてしまいました。2024年10月の竣工を目指して、9月はほぼ1ヶ月学生たちが泊まり込みで作業しています。先日は左官業界のスーパースター、久住有生さんが駆けつけてくれました。2年ほど前にも釜沼に来てくれて、版築の作り方を指導してくれました。(あれから2年か・・)版築の部分的補修の仕方や、最後の仕上げ方をレクチャー。小石を減らして粘土の比率を上げ、脆いところを剥がして少し濡らし、ギュッと押し込む。9月8日(日)は2階部分の土壁(左官仕事)を一気に仕上げる予定です。クラファンで応援いただいた方(特にワークショップの返礼を選んだ方は)はぜひ、この機会に参加ください!<イベント概要>日時:9月8日(日) 11時集合 - 17時解散 ランチあり(500円)対象:クラファンで応援いただいた方場所:鴨川市釜沼914 (古民家けいじ)申し込み方法:CAMPFIRE上でメッセージ or tabisurukurashisha@gmail.com(福岡)まで連絡 もっと見る







土でサウナを作るなんて本当に理想です。 建築許可はおりるのですか?