ゲームが大好き!eスポーツで強くなりたい!でも、ゲームに適したパソコンを自宅に購入するほどの金銭的な余裕もない……そんな人にぜひご利用いただきたい、時間利用のeスポーツカフェを、大阪府枚方市にオープンします!

はじめまして!ラグレア株式会社のeスポーツ事業担当冨永と申します。
弊社では、“創る喜びをキミに!"をコンセプトに、模型制作スペースを3店舗運営しています。

自宅での趣味の代表格であった「模型制作」を、環境の整った時間貸しのスペースで楽しんでもらうというサービスはとても喜ばれ
・自宅では揃えきれない機材を使用できる
・同じ趣味を持つ仲間と集まれる場になる
というところに、価値を感じるようになりました。
この模型制作を同様の価値を持つ新事業として、大阪府枚方市に、2023年春、300平米の広さを誇る「eスポーツカフェ ラグレア」をオープンします! このeスポーツカフェのことをたくさんの方に知っていただきたく、クラウドファンディングにチャレンジすることにしました。
高級車のディーラーを思わせるような、白を基調とした、クリーンで明るい空間で、コンマ1秒を争うeスポーツに適したパソコンで思いっきり楽しんでいただける、時間貸しのスペースです。
ビルのワンフロアをリフォームし、今までの、暗いゲームセンターのような雰囲気ではなく、女性やお子さまでも入りやすい、明るい空間に仕上げます。

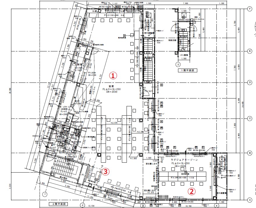
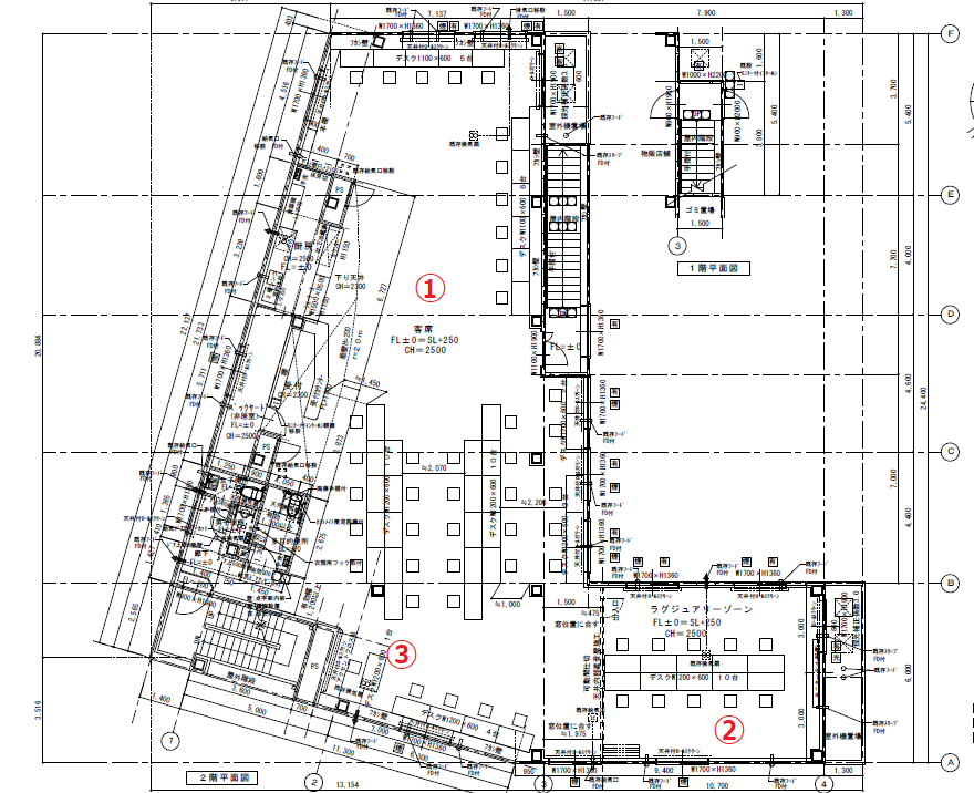
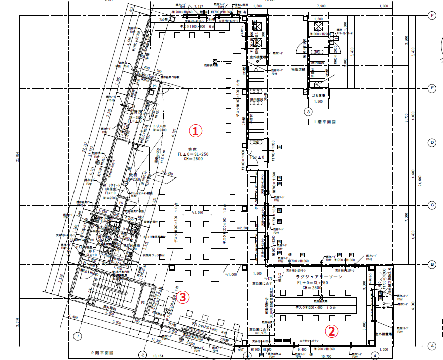
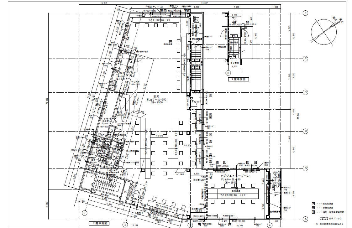
パソコンは40台程度設置(のちに60台に増台)予定です。

【上記平面図①】
30台分のスペースは、カジュアルにe-sports(PCゲーム)を楽しんでいただくことをイメージしています。床はグレー、壁は白にし、ライトで明るい雰囲気になる予定です。
白壁に差し色として明るい青、ラグレアのロゴなどを入れることにより爽やかなデザインにすることで、小中学生にも安心して使ってもらえたらと思います!
【上記平面図②】
ラグジュアリーゾーンと命名した奥ばった部屋は白と赤を基調とし、競技性・非日常性を強くしました。可動間仕切りを設置し、空間を分けられるようにする予定です。

【上記平面図③】
1台を配信スペースとして設け、施設利用者様でyoutubeやtwitchの配信をしたい方に、ぜひ使っていただきたいと考えています!

OS:Win11Pro
CPU:i7-12700KF
グラボ:RTX3060とRTX3070を20台ずつ
メモリ:16GB
モニター:27インチ 165Hz、23.6インチ165Hz
・イタリアのLA CINBALI(ラ・チンバリ)のエスプレッソマシンを使用しており、本格的なエスプレッソを味わっていただけます。(エスプレッソメニューはエスプレッソ、カフェラテ、カフェモカ、アメリカーノ等)

店のオリジナルコーヒーは、一杯一杯丁寧にハンドドリップで抽出。品質の高いの焙煎豆からさらに選び抜いた豆だけを使用し、ボリューム感のあるしっかりとした味わいが特徴です。
・その他ドリンクもご用意しております


住所:大阪府枚方市岡東町22-9 アドゥスイール2階
外観。ビルの2階

2023年春
平日:13時~23時
土日祝:10時~23時
定休日:なし

500円/1時間
(施設利用料・機材利用料込み)

eスポーツとは、コンピューターゲーム、ビデオゲームを使った対戦をスポーツ競技として捉える際の名称です。

eスポーツは、キーボードによるパソコンゲームが主流。3万円程度で購入できるコンシューマー(家庭用ゲーム機)とは違い、ゲーム用パソコンは30万円程度の初期投資が必要です。しかし、コンマ1秒が勝敗を分けるeスポーツの世界では、どのパソコンで戦うかはとても大切ですし、より映像に特化したパーツがあるに越したことはありません。
とは言え、学生やまだ若い社会人にとっては、この金額の初期投資はかなり困難です。eスポーツで強くなるために、いい環境で練習したい!という人のために、設備一式をそろえ、手ごろな価格で時間利用できるようにしたのが、この「eスポーツカフェ ラグレア」です。
そして、「練習」という観点から見た場合、強い人にアドバイスしてもらえたり、一緒に練習できれば、より上達もすることでしょう。競技としてのゲームを楽しむ人が増え、「強くなる」喜びを味わっていただく場になればと思います。
「eスポーツカフェ ラグレア」で練習を積んだ人が、大会で勝って稼げるようになると嬉しいです。

昔は、ゲームセンターで、1回100円でみんなでゲームをして遊んでいました。もちろん、今もゲームセンターはありますが、ゲームの主流は「家でそれぞれが楽しむ」ものへと変わっていきました。
eスポーツも、基本的にはオンラインで集まって楽しむものですが、実際に同じ趣味を持つ人が同じ場に集まることで発生するコミュニケーションを楽しんでほしいと考えました。
席を並べて同じゲームで戦う、マウスの操作について実際に動作を見ながら語り合う―リアルに一緒にいるからこそ、共有できることもあるはずです。
「eスポーツカフェラグレア」が、新たな人のつながりを生む場になればと考えています。

私富永も、弊社代表の一之瀬も、小さい頃からゲームが大好きでした。

そして、ゲームからたくさんのことを学んできました。
ロールプレイングゲームでは、本を読むような疑似体験と、根気や知識。格闘技ゲームでは、判断力や手先の器用さが培われたように思います。ゲームにたくさんのことを教わった私たちからすると、ゲームには、人間の原理原則が詰め込まれていて、人生に役立つと思っています。
近頃は、いろいろなメディアでeスポーツのことがとりあげられ、まさに黎明期と言えるでしょう。
子どもがゲームに熱中していても、「ゲームばっかりして」と親から叱られる対象ではなく、ゲームは電子機器を使ったスポーツだ、と胸を張って言える時代がやってきました。この追い風に乗り、ゲームのよさをたくさんの人に知ってほしい、ゲーム業界に恩返しをしたい、という意図で、eスポーツ事業をはじめることにしました。
コロナ禍で多くの人がその大切さに気付かされた、「人とつながる」の手段としても、eスポーツはとても価値のあるものです。

2021年8月に模型制作スペースラグレアをオープンし、時間で付加価値のあるスペースをご利用いただく、というビジネスモデルを構築した経験を活かして、ひとりでもたくさんの方に気軽に本格的なeスポーツを味わっていただきたいと、このプロジェクトを立ち上げました。
いただきました支援金は、CAMPFIRE手数料17%を除きまして、全額を店舗リフォーム費用の一部として使用させていただきます。
リターンの一例といたしまして、以下のようなものをご用意しております。
・施設利用料5時間 :2,000円 ※通常価格2,500円(500円×5時間)のところ500円お得です!(当日限り)
・施設利用料7時間 :2,750円 ※通常価格3,500円(500円×7時間)のところ750円お得です!(当日限り)
・施設利用料1か月相当時間フリーパス :82,000円 ※通常価格105,000円(500円×30日=210時間)のところ、23,000円もお得です!(7時間分を30枚)
・各種スポンサー
詳しくはリターン一覧をご覧ください!
2023年1月~ リフォーム工事開始・機材購入
2023年3月30日 クラウドファンディング終了
2023年春 「eスポーツカフェラグレア」オープン予定
※正式なオープン日が決まりましたら、活動報告や、ご支援いただいたみなさまへのメールでご連絡いたします!
※リターンの有効期限、掲載期間は、オープン日からになります
リフォーム工事、順調に進んでいます!
弊社代表の一之瀬は、「自分が好きなことを仕事にしたら、失敗するって言うけどね」と笑いながら、子どもの頃から好きな模型制作をビジネスにし、今回は、自分がお世話になったゲーム業界に恩返しをしたい、と意気込んでいます。
eスポーツの世界では、競技に体格差は関係ありません。いいスペックのPCを使い、技術を磨けば、だれでも強くなれるチャンスがあるのです。競技として、とてもワクワクしませんか?今後さらに盛り上がっていくことと思います。
同じ趣味の人たちが集まり、教えあったり、一緒に戦ったり…eスポーツカフェラグレアでは、家でひとりでPCに向かうよりも、「コミュニティ」の力で、さらにeスポーツを楽しめるようになると私たちは考えています。
ゲームが大好きなみなさん!ぜひあたたかいご支援をよろしくお願いします。そして何より、ぜひ「eスポーツカフェラグレア」に、ハイスペックPCでのeスポーツを楽しみに来てください!
<募集方式について>
本プロジェクトはAll-in方式で実施します。目標金額に満たない場合も、計画を実行し、リターンをお届けします。















コメント
もっと見る