はじめに・ご挨拶
はじめまして。サウナが大好きなだけで、サウナ作りに挑戦をしております。
プライベートサウナTENNNIMO.支配人の佐藤愼哉(さとうしんや)と申します。
2020年度にコロナ禍によって仕事は大打撃を受け、心身ともに疲れきっていました。
そのような中でサウナを習慣にしたことで身も心も癒されて、前向きに仕事に取り組めて私生活も好転していきました。
そんなサウナもアフターコロナでも安心して利用でき、サウナーが交流できるカフェ&バー併設の個室サウナが神奈川には無いんです...
サウナに出会って私の人生が好転したように、今度は、私がつくるサウナで、みんなを幸せに変えたい!
【施設概要】
※実際の仕様は、資材状況や施工可否により変更になる可能性があります。
◆エントランス

飲食スペースを併設し、厚木産のクラフトビールや地場の食材を使用したサ飯などを提供予定。
「ととのった」後のサウナー同士の交流も創出します。
◆サウナ

サウナ室には適度な明るさ空間を作り、解放感と閉塞感を両立。
湿度や調光、香りなどに徹底的にこだわり、“ ととのう熱さと心地いい” サウナ室を再現する。
ストーブはセルフロウリュ式。
アロマの香りの蒸気を全身で浴びながら汗を流し、じっくりと自分と向き合うことができます。
◆水風呂/ガッシングシャワー

プレミアムVIPルームは水風呂とガッシングシャワーを完備。
大柄な男性でも、肩までしっかり浸かることができる水風呂です。
完全プライベートなので頭の先まで思う存分潜ることをおすすめしています。
足先から頭のてっぺんまで、全身が冷水に包まれる心地よさを、ぜひ体感してください。
水風呂の水温は長く浸かっていられる14℃に設定予定。
「ガッシングシャワー」はアトラクション性と実用性を兼ね備えてます!ヒモを引くとバケツから冷たい水を浴びることができるので爽快! !!
※スタンダードルームは冷水シャワーとなります。
※ガッシングシャワーはプレミアムVIPルームのみとなります。
◆休憩スペース
※画像は1~3人用の部屋です。
広々とした外気浴スペースを作ります。
都会の喧騒を忘れ、自然を感じながら思う存分「ととのって」いただける空間です。
さらに、薬草の香りや森林の香りが充満し、リラックスできるBGMを流すことで癒しの時間を体験できます。
自分好みのBGMを流すことも可能です。
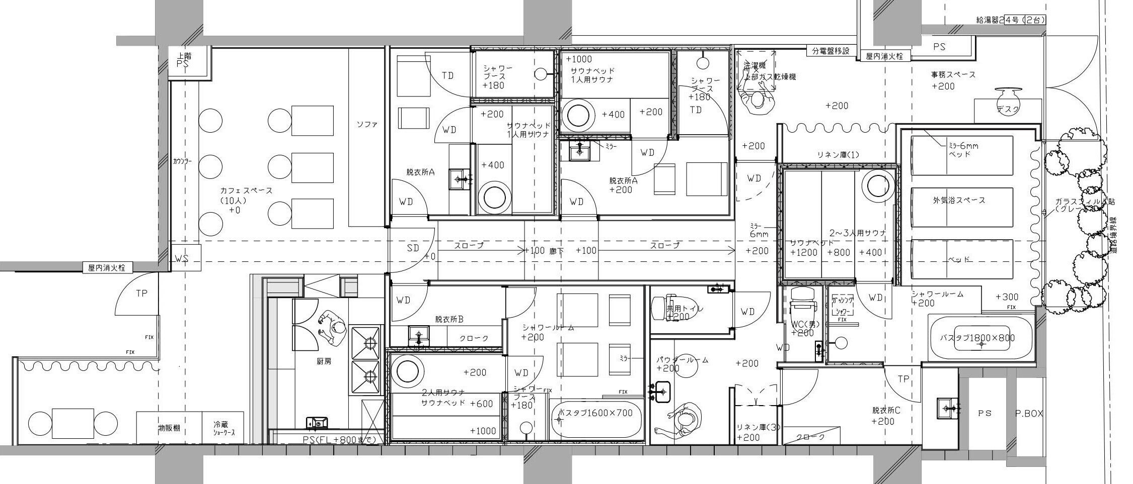
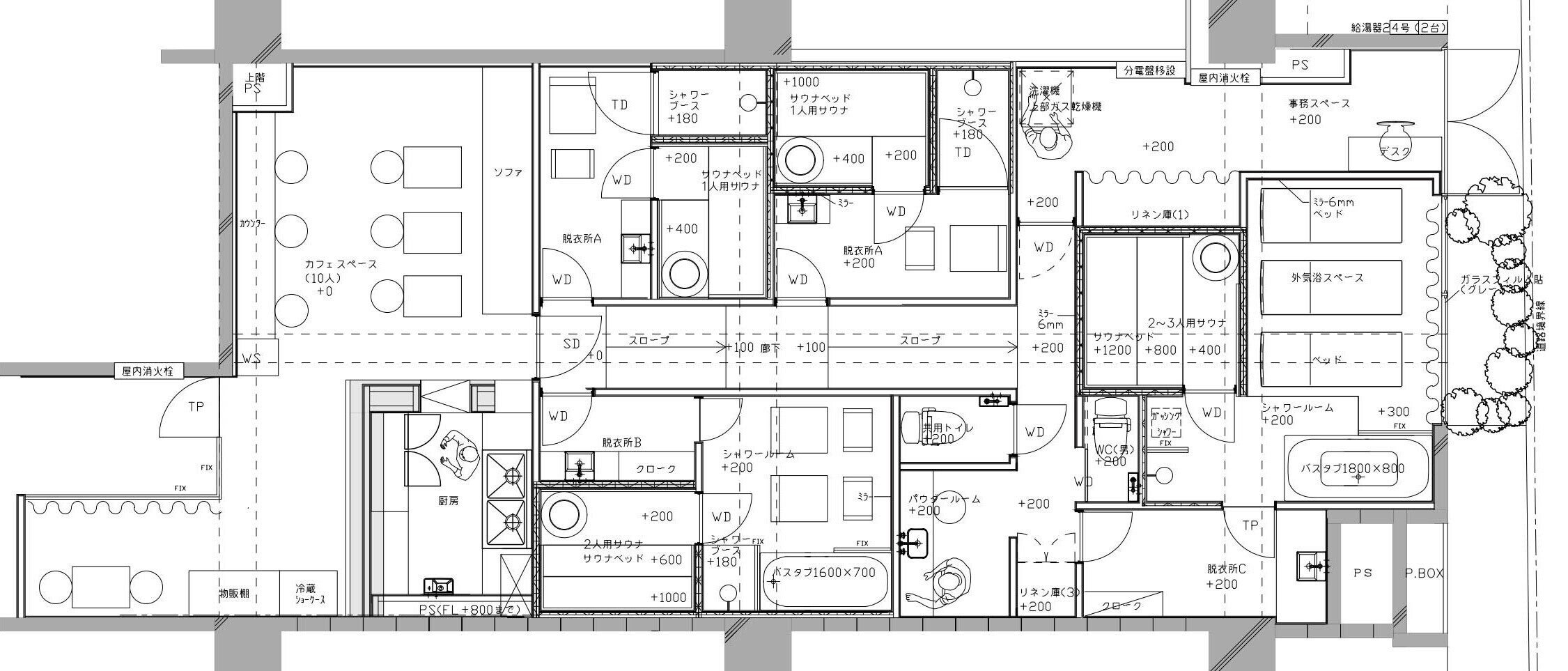
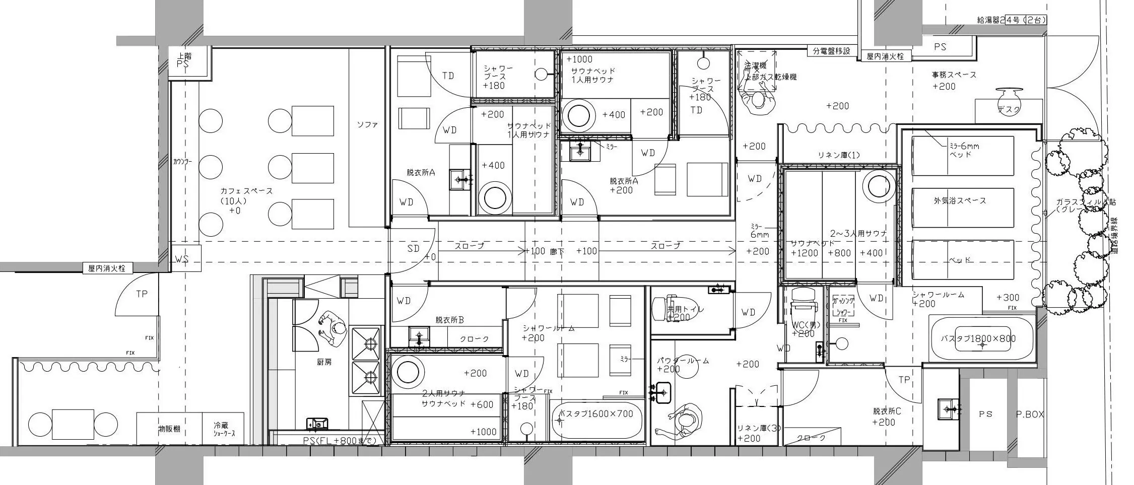
◆全体図面

※実際の仕様は、資材状況や施工可否により変更になる可能性があります。

理想のサウナ施設と実現のギャップを埋めるべく、拘った部分と泣く泣く諦めた部分などつきつめていった結果...

計画当初に簡易的に設計していたキッチンや飲食スペースも、サ飯やサウナーの交流を追求していったら予算が足りていませんでした。(水風呂などサウナに拘ったので)
設計士、建築会社、各所担当者の方々と何度も協議した結果、オープン後の収益による二期工事でしか実現できないという結論でした。
私が考えるサウナとは、サウナ設備だけのことではなく、サ飯やサウナ後のビール、サウナー同士の交流を含め、サウナに関わる体験全てのことだと思っています。
なんとかTENNNIMO,オープンと同時にサ飯を含めた「天にも昇るような」なサウナ体験を提供できるよう、どうかお力をお貸していただけないでしょうか…

私たちがサウナ設備以外にもこだわった、サウナ前後のご飯、いわゆるサ飯のご紹介です。
厚木市内で人気のカフェ、はるひごはん監修の食事を提供します。

フランス製の無水調理ができるストウブ鍋を使って鶏肉を柔らかく煮込みました。
米で作られているフォーはグルテンフリーでヘルシー!
油脂を最小限にし、カロリーダウン。
鶏肉入りのコールスローを入れた、しっかりボリュームのあるサラダ。
マヨネーズを使わず、隠し味は無脂肪ヨーグルトと柚子胡椒。
小腹が減った時にもピッタリのサラダです。
プロテイン入りも選べるスムージー!火照った身体に冷たいスムージーを。
■自己紹介

佐藤 愼哉(さとう しんや)
神奈川県厚木市生まれ厚木育ち厚木市在勤在住
1977年2月生まれ46歳
高校卒業後に大手電力会社に勤務。
その後、実家の電気工事会社に戻り、家業を継ぐ。
2011~2017年
公社)厚木青年会議所に所属し、地域貢献活動に積極的に参加する。
2018年~現在
厚木商工会議所青年部に所属し、地域貢献活動に積極的に参加する。
厚木商工会議所青年部2023年度の会長に就任。
■施設概要
店舗名:本厚木プライベートサウナ TENNNIMO.
所在地:神奈川県厚木市中町4丁目14-6
本厚木駅徒歩3分
営業時間: 8:00〜23:00 無休 ※予告なく変更となる場合がございます。
利用料金: 5,200円(スタンダード1人用90分)
12,000円(VIP1~2人用90分)
15,000円(プレミアムVIP1~3人用90分)
■開業までのスケジュール
2023年5月末 着工開始
2023年8月上旬 工事完了〜公衆浴場の営業許可取得
2023年8月中旬 プレオープン
2023年9月 本オープン
※工事進捗や営業許可の取得タイミングによりオープンが変更になる可能性があります。
■支援金の用途について
サウナ施設工事費 130万円
リターン制作費 36万円
プラットフォーム手数料 34万円
<募集方式について>
本プロジェクトはAll-in方式で実施します。目標金額に満たない場合も、計画を実行し、リターンをお届けします。
■最後に
最後まで読んで頂き有難うございます!
私は今まで仕事の傍ら、地域貢献活動などボランティアに力を入れてきました。
常日頃から、「大好きなこのまちに対して何ができるだろうか?」と考えています。
そんな問いに対しての自分なりの答えを見つけたのが、このプロジェクトでもあります。
厚木の地名の由来は相模川の上流の山々で切られた木材を川を使い運搬し、この土地に集散地があったことから、
『集め木』→『アツメギ』→『アツギ』となったと言われています。
このプロジェクトが集め木のように市民が集う場所になったり、市外の方が厚木へ遊びに来てくれるキッカケや、厚木を知るキッカケになれたら嬉しいです。
本厚木個室サウナTENNIMO.が完成したら是非厚木へ遊びにきてください!
厚木でお待ちしております!


T&Tボクシングスポーツジムの倉永です。
愼哉さんとは、厚木商工会議所青年部でご一緒させて頂いてます。会長でもある愼哉さんは、地域貢献などにも積極的に参加され、みんなから信頼されてる方です!今回のプロジェクトもとても共感でき、全力で応援したいと思います!
夢の実現に向けて頑張ってください!

望月商店(酒店)の望月太郎です。
代表の佐藤愼哉さんとは、商工会議所青年部や当店のお客様^_^としても大変お世話になっております。
シンプルにお二人の厚木愛やお客さんに体も心も健康で楽しい人生を送って欲しいというお気持ちを日頃よりビシビシ感じます^_^
厚木を盛り上げたい❗️そんな気持ちを当店も心より共感します^_^
当店の扱う、こだわりの日本酒やリキュール、ノンアルコール飲料などで微力ながらご協力させていただければと思います😊

【店舗デザインおよび施工】
9株式会社
代表取締役 久田一男氏
大阪、東京を拠点に全国で、空き家、空きビル、遊休地のリノベーションを得意とするベンチャー企業。 バケーションレンタル SAUN9INE(サウナイン)大阪東心斎橋/東京北参道を運営。
【フードデザイン】
株式会社はるひ
代表取締役 大橋由香氏
2014年厚木市内に「はるひごはん」をオープン。フランス製の無水鍋「ストウブ」と厚木野菜を使った、野菜たっぷりのカフェで女性に人気。店主大橋由香はレシピ本15冊出版、企業のレシピ開発、イベント講師等で活躍中。オンライン料理教室はるひごはんオンライン、YouTubeずぼら料理教室。2023年5月には同店内にパーソナルジム「はるひボディプラス」をオープンし、より健康に寄り添った飲食店に。
【グリーンデザイン】

有限会社東京グリーンインテリア/観葉植物専門店Plants up
代表 髙橋洸氏
観葉植物のレンタル、フェイクグリーン装飾、造園施工管理、インテリア・エクステリアコーディネートなど総合園芸事業を行う。
2021年3月に「植物というカテゴリを充実させ厚木を盛り上げたい!」という思いから【観葉植物専門店Plants up】をオープン。
【ホームページデザイン】

株式会社アドペック
代表取締役 池田祐樹氏
クライアント様の「創造をカタチ」にし、「効果・目的」を達成することを念頭に、本質を捉えた様々なクリエイティブワークでサポートさせていただきます。ビジネスおいての課題解決や、より良い社会づくりのために、株式会社アドペックを選択肢のひとつに加えていただき、共に成長し合える関係性を構築して参りたいと考えております。





コメント
もっと見る