《趣味がないと嘆いていた自分が、サウナに出会って変わった!》
はじめまして、間山大介と申します。武道具店「あおもりぶどうぐ」を経営しています。幼少期より剣道を続け、現在は指導者としても活動しています。開業前はコンビニフランチャイズ開拓営業やホテル支配人など、様々な職種に携わってきました。PTA会長や地域ねぶた実行委員長を務めた経験もあります。当店では武道具用品の販売だけではなく、時代の変化、お客様のニーズに合わせたお店の在り方を考え、剣道防具のサブスクリプションを全国初?で始めて成功させました。趣味の剣道と仕事の境界線が曖昧だった時に「サウナ」に出会い、多忙な中で得る一時の贅沢な時間が新しい世界を広げ、今では趣味の一つとなっています。


《ととのいに慣れてきたら、それ以上を目指したくなる》
ボクも最初のうちは「水風呂」が苦手な勇気のないオジサンでした。青森県は温泉天国ともいえるほど日帰り入浴施設があちこちにあり、ほとんどが温泉です。だからあえて「サウナ」に入る必要がなく、温泉に浸かって身体を洗う場所と思っていました。普段からお風呂は短時間なので、身体を温めることに重点を置いていませんでした。
ところが「サウナ修行」を続けていくと、怖かった「水風呂」がメインディッシュとなり、「ととのう」を体感したときのやみつき度といったらすごい物でした。明らかに脳も心も身体もリフレッシュしました。サウナなしでは週を越せない沼にハマりました。出先で空いた時間があれば、あちこちのサウナに行くようになりました。その中で、他県の個室サウナへ行く機会がありました。「ととのう」の深度が違ったのです。このコロナ禍、他人を全く気にしない「サウナ」の開放感を青森の人にも味わっていただきたい、家族風呂感覚でご夫婦やカップルで「サウナ」を楽しんでもらいたい。それがボクの実現したかった「完全個室サウナ」なのです。

《真のサウナーは厳格な探究者。サムライ》
ボクの考える真のサウナーとは厳しくルールを守り真摯にサウナを楽しむ「侍」のようなものだと思っています。ただ、地方にはサウナのルールが浸透していないことが多く、心落ち着けがたい事象も経験することがあるので、心静まる理想の個室サウナを作りたい気持ちが強くなったのです。それがプロジェクトを立ち上げた理由です。
サウナ好きなボクが素材からこだわって作ったサウナハット

《プライベートサウナ Vihta のこと》
完全個室のプライベートサウナを青森市内にオープンします。
全国に徐々にプライベートサウナが増えてきましたが、男女で利用できるサウナはまだまだ少ない印象です。
でも「Vihta」ではご夫婦やカップルなど一緒にサウナを楽しめます。
また、ローリューのできるサウナも県内には少なく、自分好みの温度や湿度でリラックスタイムを過ごすことができます。
自分のスタイルで利用でき、自分のペースで「ととのう」プライベートサウナを改装中です。
ただいま改装中
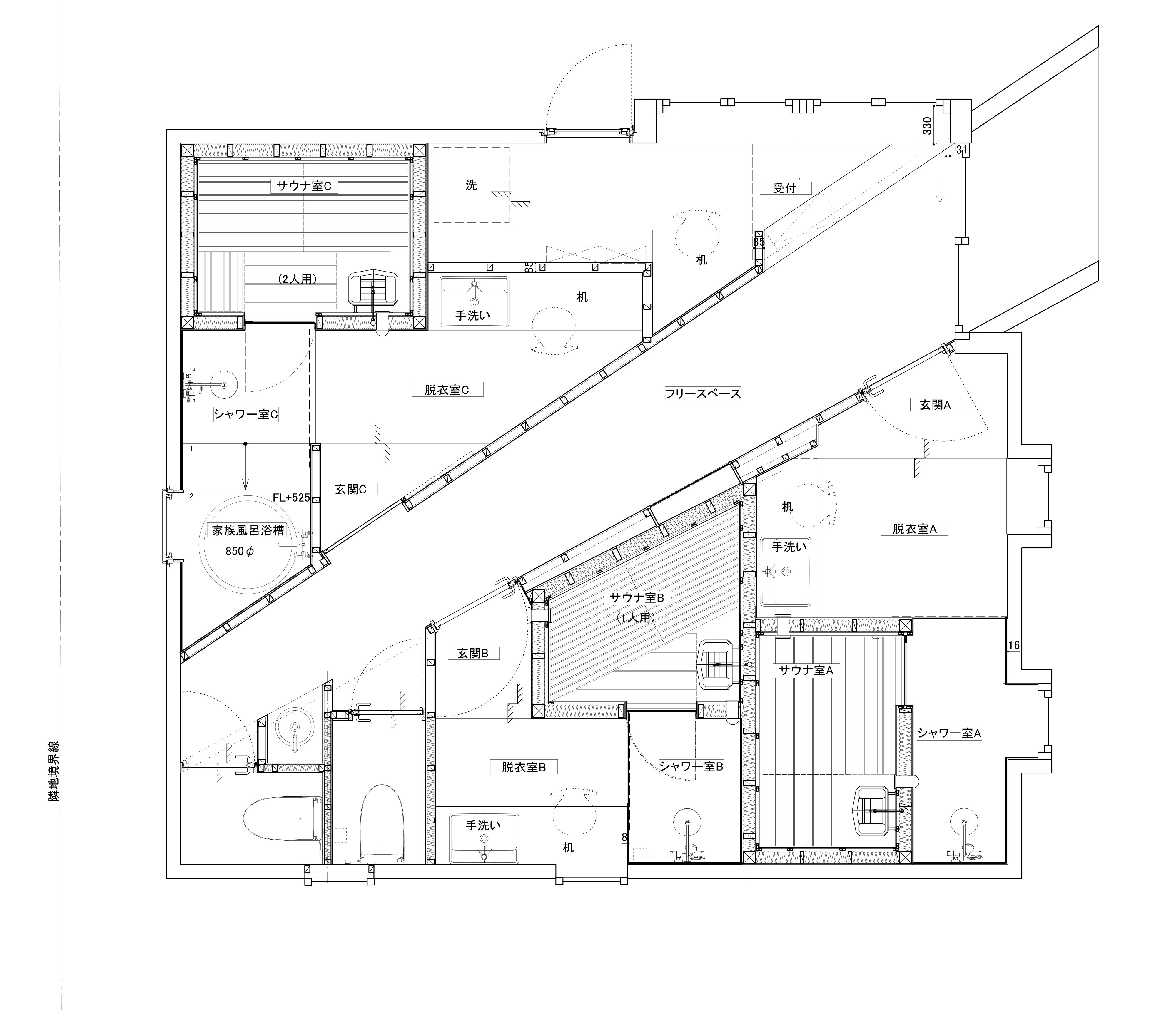
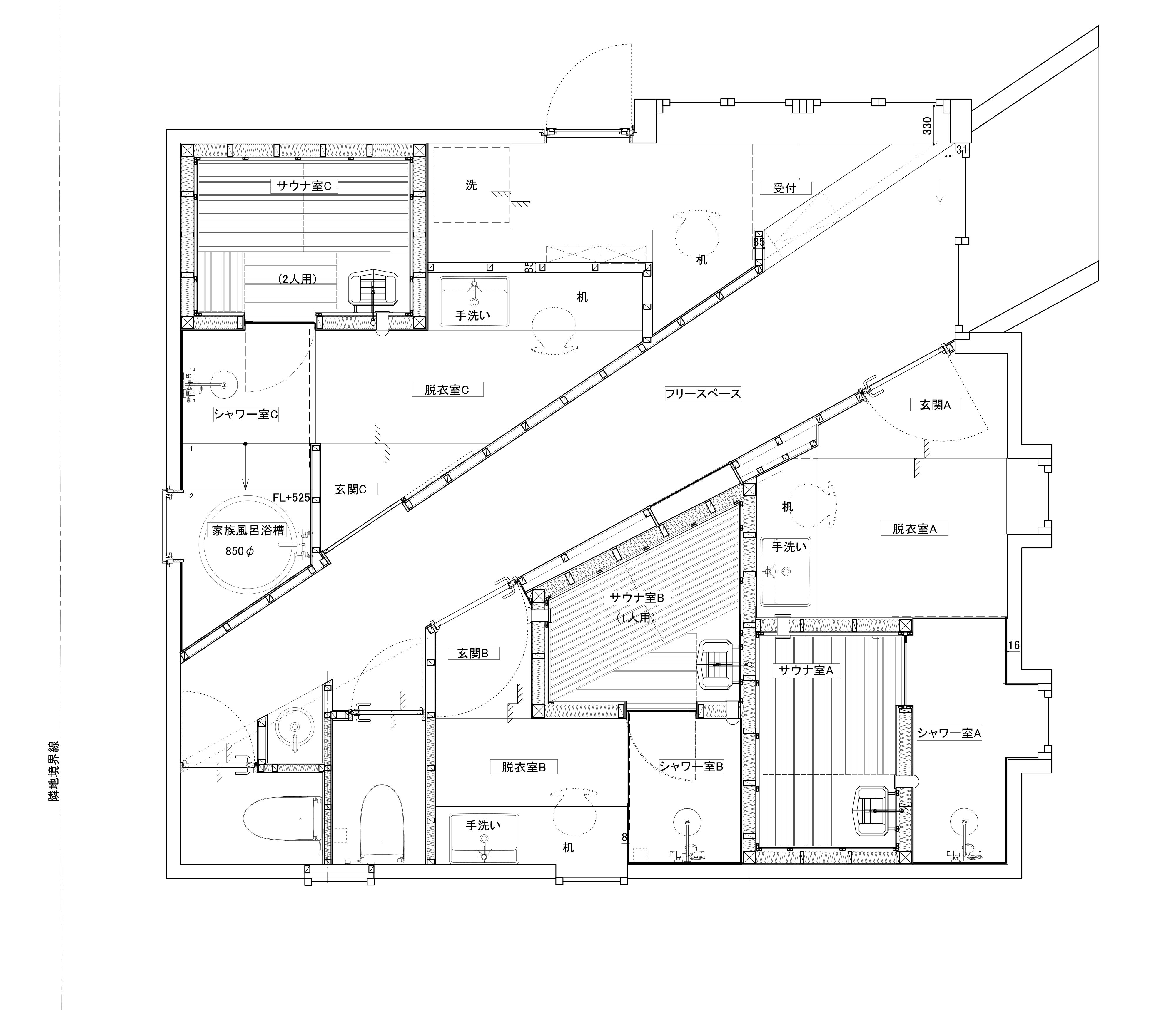
設計図
《当施設の協力者たち》
●設計者 ゲンジアーキさん
はじめまして!ゲンジアーキの古川と源です。私達は、青森と横浜を拠点に活動している建築設計事務所です。住宅や、店舗のリノベーション、最近では図書館の設計等にも関わる機会を頂きました。また黒石市では古いテナントを改修し、誰でも利用できるシェアキッチン「Circleこみせ」を作り管理人をしています。新しいチャレンジを応援する場所として、こみせ通りの中の街の居場所となってきています。
私達が間山さんとお会いしたのは2021年。有名な武道具のお店「あおもりぶどうぐ」が今度はサウナ!!初めてお話を聞いた時はびっくりしましたが、聞けば聞くほど面白い、間山さんの熱い理想のサウナ像。プライベートサウナ!夫婦でもカップルでも入れるサウナ!なんだかすごそうだ。
フィンランドでは、サウナは地域の情報交換の場であり、ビジネスの話をする場でもあります。精神的にもリラックスしながら集まれる「サウナ」という場所は、フィンランドの人達にとっては交流の場であると同時に、自分達の誇りでもあります。
完全個室のプライベートなサウナだけれども、どこか「地域のコミュニティ施設」のような場所になればいいな。という思いから、特徴的な入口を持った計画にしました。奥を覗いてみたい、奥に行ってみたい。と思えるようなエントランスの空間です。この施設が、地域を潤し、青森の寒い冬を乗り切れるための皆様の「よりどころ」となるような居場所になることを願っております。いちサウナ好きとしてもとても楽しみです。また、若手の私達にこのようなチャンスをくださりありがとうございました。応援しています!
●建設会社 有限会社 川村建築さん
私たち川村建築は、今回初めてプライベートサウナの建設に取り組むことになりました。ゲンジアーキさんの独創的なデザイン力と私たちの高い技術力を活かし、満足いただけるサウナ空間を提供することに全力で取り組んでいます。お客様の要望やイメージに沿った最高品質のサウナ空間を実現し、機能性を兼ね備え、安心してご利用いただける空間を提供できるよう頑張ります。
●HP制作者 株式会社From Northさん
以前から間山代表とお付き合いがあり、今回の「プライベートサウナ」の開店に向けてホームページ制作に携わっております。「プライベートサウナ」の良さを直感的に感じることが出来て、ホームページを見た方が「行ってみたい!」と思える、UI(ユーザーインターフェース) /UX(ユーザーエクスペリエンス) を重視した制作を進めています。また、制作後も安心して事業に取り組んでいただけるよう、運用面もサポートさせていただくことで多くの方に「プライベートサウナ」を知ってもらえる入口として、誠心誠意お手伝いさせていただきます。
《施設の場所》
新青森駅から 車(タクシー)で6分
青森ICから 車で15分
住所:青森県青森市羽白池上205-2
このプロジェクトは、地元にまだ存在しないプライベートサウナを提供することを目的としています。一人用サウナを設置することで、人目を気にせずにリラックスできる空間を提供し、また2人用サウナを設置することで、夫婦やカップルにとって共通の趣味として一緒にサウナを楽しんでいただける施設を作るプロジェクトです。

《プロジェクトの背景》
青森市内には公衆浴場にサウナがあるものの専用施設が存在しないため、今回のプロジェクトは注目を集めそうです。サウナ旅という旅行が人気となっている現在、県外からの集客も見込めるため、市内にサウナ専用施設を設立することは大変魅力的です。他県には個室サウナはあるものの、夫婦やカップルで利用できるサウナは少ないため、青森にこのような施設ができることは大きなアピールポイントです。青森は外風呂文化が発達しており、家族風呂も人気があります。この文化を生かし、心静まる理想の個室サウナを設立することで地元客にも愛される施設になることが期待されます。
《プロジェクトの範囲》
このプロジェクトでは、プライベートサウナ施設を快適に利用するために、空調機やタオル類、ロウリュ用の柄杓と桶、時計、温度計、イスなどの備品の購入に必要な資金を募集しています。ぜひ協力していただけると嬉しいです。
※画像はイメージです
《費用の説明》
集められた支援金の使い道
【プライベートサウナ費内訳】
①個室サウナ空調設備工事費 700,000円
②デザイン看板設置工事費 300,000円
③貸出用タオル類 200,000円
④サウナ室内備品(温度計・タイマー類) 100,000円
⑤セルフロウリュセット 100,000円
⑥リターン品にかかる経費他 100,000円
合計 1,500,000円
※支援金には「クラウドファンディング手数料+税」が含まれます。
《実施スケジュール》
・開業までのスケジュール
2022年11月 開業予定地の契約締結
2023年3月 着工開始
2023年5月上旬 工事完了〜公衆浴場の家族風呂申請営業許可取得
2023年5月中旬 プレオープン
2023年6月 オープン
※工事進捗や営業許可の取得タイミングによりオープンが変更になる可能性があります。
プロジェクトへの支援金に対して、特別なリターンをご用意しています。オリジナルデザインの手ぬぐいや施設利用券、さらには施設の壁面に飾ることができるサポーターの名入れ札や年間利用権など、魅力的な特典をご提供しています。ぜひ、この機会に私たちのプロジェクトを支援して、特別なリターンを手に入れてください。
どれもオリジナルで製作するリターン品です
サウナ専用施設であり個室サウナを開店するプロジェクトに、あなたの熱い支援をお願いします!私たちは、心身の健康維持やストレス発散、そしてプライベート空間を提供することで、地元の方々や観光客の皆様に快適なサウナ体験を提供します。支援金には魅力的な特典があります。青森には専用施設がないため、このプロジェクトが注目を集めることは間違いありません。あなたのご支援で、私たち青森のサウナーの夢を共に叶えましょう!
<募集方式について>
本プロジェクトはAll-in方式で実施します。目標金額に満たない場合、計画の実行及びリターンのお届けはございません。
最新の活動報告
もっと見る
チラシ作ってます
2023/04/13 17:03ご支援していただいたみなさん、本当にありがとうございます。締切まで頑張って走っていこうと思いますので、まだまだお付き合いください。おねがいします。また、Twitterの方でも援護射撃していただいて大変ありがたく思います。SNSでは個人的に独りよがりのつぶやきしかしてこなく、フォローやフォロワーを増やそうとはしていなかったので、お店のツイートをどのようにしたらいいのか、手探り状態なんですよね。Twitter活動について、アドバイスがあれば教えてもらいたいです。いま、チラシを作っています。どうしてもスマホなどで支援することを苦手とする年配の方にも分かりやすくご説明したいと思いまして。それゆえ肩が凝ります。今日はどこのサウナに行こうかな♪ もっと見る
フォロー&リツイートキャンペーンを実施
2023/04/06 18:48Twitterでフォロワーを増やしたいと思い、プレゼント企画を実施してみました。↓こちらから確認できますhttps://twitter.com/Vihta_Sauna2052/status/1643907360145158147?s=20 #プレゼント企画 #クラウドファンディング 実施記念https://camp-fire.jp/projects/view/661512?utm_campaign=cp_po_share_c_msg_mypage_projects_show「サゴリ」オリジナル和手ぬぐいを5名様に #プレゼント 応募方法① @Vihta_Sauna2052 をフォロー②このツイートをいいね&リツイート 締切 4/12(水)23:59まで当選者にDM#サウナ #青森 もっと見る










コメント
もっと見る