
【ネクストゴール(350万円)挑戦中!】
6月22日(木)、残り3日で目標額300万円に到達しました!みなさん、本当にありがとうございます!
ネクストゴールとして350万円を目指して、残り3日間、引き続きご支援よろしくお願いします!


■ ごあいさつ:「東京最後の清流」と私たちについて
都心から西へ、電車でたった60分の大自然、秋川渓谷(あきる野市~檜原村)をご存知でしょうか。透き通った川の流れには鮎やヤマメが泳ぎ、周囲の山々には表情豊かなトレイルが網の目のように走り、あちこちにある小さなピークからは都心が見通せる眺望。自然の中での体験価値が注目される時代の変化もあり、秋川渓谷は、多摩地域の中でもまだ観光開発が進んでいない穴場、東京の自然体験フロンティアとして近年注目が高まっています。

皆さんはじめまして。東京裏山ベースのジンケンとミチコと申します。私たちは7年前、秋川渓谷の玄関口であるJR武蔵五日市駅前に、アウトドアアクティビティと地域観光の拠点「東京裏山ベース」を立ち上げました。裏山ベースは、当時まだ閑散としていた武蔵五日市駅前に様々なコミュニティが生まれるきっかけとなり、自転車やトレイルランニングといった自然の中での遊びの起点・情報発信基地として、武蔵五日市~檜原村の秋川渓谷エリア、さらにはその奥に広がる秩父多摩甲斐国立公園への玄関口となる施設として、とくにアウトドア愛好家に広く認知されていきました。ここから地域に新たな賑わいと交流が生まれ、駅前の風景が変わるきっかけにもなりました。

そんな中、この地域にも、私たちの裏山ベースにも、コロナ禍の大波が直撃しました。一時は遠くに足を伸ばせない社会的雰囲気もあって、逆に秋川渓谷には意図せず観光客が集中。交通渋滞を引き起こしたり、ゴミやマナーの問題が地域の危機感を高めてしまい、地域がやや閉鎖的に傾いた時期もありました。
しかしそうした困難を乗り越えて2023年に入った今、私たちに残ったのは、東京都内でありながら自然豊かで、多くの人に手軽で本質的に価値のある体験を提供できる秋川渓谷の役割と可能性は、コロナ禍を経てますます大きくなっていくという実感でした。
この数年、この地域と自分たちの役割を問い直し続けた私たちが辿り着いたのは、東京裏山ベースを、清流・秋川の水辺の美しさと清々しさを肌で感じられる体験を多くの方に届けるための「裏山リバーフロント」としてリニューアル(バージョンアップ!)するということです。
「『アウトドア』と言われると少し敷居が高く感じてしまうけれど、自然に触れてリフレッシュしたい」、「自然遊びの知識や体力には自信がないけれど、週末の一日だけ、普段は行かない自然の中でのんびり過ごしたい」。今高まりつつあるそんなニーズに対して大きなポテンシャルを秘めている秋川渓谷。このプロジェクトは、秋川渓谷の魅力の本質である渓谷の水辺の美しさ、そして「静かな清流の水辺で感じる、大自然に包み込まれるような非日常感」にフォーカスして秋川渓谷の持つ可能性を未来にひらく、東京裏山ベースのネクストステージへの挑戦です!
”駅前に「リバーフロント」をつくる”とは、どういう意味なのか?何を目指すのか?
少し長くなりますが、ぜひ最後までお読みいただけると嬉しいです!

※店舗リニューアルに先駆けて、「東京裏山リバーフロント」として新しいウェブサイトを公開しました!(今後、店舗詳細などさらに充実予定)
https://ura-yama.com/
■ あらためて、秋川渓谷とは
秋川渓谷は、東京都心から西へ1時間ちょっと、あきる野市から上流の檜原村にかけての約20kmにわたるエリアです。檜原村の最奥にある三頭山を源流として流れ下り、長い年月をかけてこの地の変化に富んだ地形を作ってきた秋川は、拝島あたりで多摩川に合流する、多摩川最大の支流です。本流とは違って上流にもダムがなく、源流の一滴からよどむことなく流れる水は「東京最後の清流」の名に恥じない水質の良さを誇ります。とくにその中上流部は新緑、紅葉など四季折々に表情を変える景色が美しく、水辺に下りると谷に抱かれるような感覚で大自然の力強さと清々しさを感じることができます。

秋川渓谷の玄関口である武蔵五日市駅に降り立って地図を広げると、山あり、谷あり、巨木あり、寺社仏閣も石仏も滝も鍾乳洞も、一つ一つは小粒だけれどそれぞれに特徴がある、個性的なスポットが地域のあちこちに点在していることがわかります。険しすぎない山と深すぎない谷が特徴で、あちこちから川に降りられる水との距離の近さも嬉しいところ。

観光化されすぎず、昔ながらの山里の暮らしを想像させる風景も特徴で、あちこちで歴史の物語を感じることができます。例えば川沿いの何気ない小道は、かつては山の中で焼いた炭を背負った村人が行き来する街道だったり、かつて木場のあった東京湾まで続く川の流れは、山の中で伐倒された木が運ばれる、物流の要路だったり。
しかし、自然と歴史の物語が豊かな場所は全国いたるところ、東京の多摩地域にもいくつもあります。それでは、高尾山とも奥多摩とも違う、秋川渓谷ならではの魅力の本質はなんでしょうか?

コロナ禍の期間立ち止まって、それについて考えた私たちが辿り着いた答えは、シンプルなものでした・・・今の時代にキラリと光る、ここ秋川渓谷ならではの魅力の本質、それは、「東京都内でありながら清流の水辺の美しさ・清々しさが手軽に体験できる稀有な地域」だということ。
・都心からのアクセスの良さ
・驚くほどの水質の良さ
・水辺に降りて清流に触れる体験がしやすい、険しすぎない地形
・開発されすぎていない、昔ながらの風景
高尾山とも奥多摩とも違う、秋川渓谷ならではの特徴です。

秋川渓谷周辺の自然、地形、歴史はすべて、秋川の流れが時間とともに形作ってきたものです。そこで私たちは、秋川渓谷全体をひとつの「水辺空間」として捉えることにしました。
川面を吹き抜ける風を感じながら川沿いの道を進むと、あちこちにひっそり隠れた川への降り口があり、水辺に降りれば手軽に清流のせせらぎに触れることができます。
上流に進むと次第に渓谷は狭く力強い姿を見せ、谷間に降りると大自然に包み込まれるような、圧倒的な非日常を感じることができます。そこで得られる癒しと清々しさ、そしてまるで自分が新しい存在へと生まれ変わるかのような清浄さと解放感こそが、秋川渓谷が我々を惹きつける本質的な魅力だと私たちは考えました。
秋川渓谷の水辺空間で得られるこうした「体感」こそが、私たちが多くの人に届けたい、秋川渓谷の魅力のエッセンスです。これほど感情を動かす美しさを持ち、しかも都心からも手軽にアクセスできる渓谷を、私たちは他に知りません。
■ 課題:秋川渓谷ならではの魅力をどう届けるか

しかしそんな秋川渓谷の魅力を多くの人に存分に味わってもらうためには、多くの壁があります。
・「秋川渓谷といえばBBQ」という漠然としたイメージしか持っていない人が多く、魅力の本質が伝わっていない
・秋川渓谷は駅前からは見えない場所にあり、いざ駅についても道に迷ってしまう人が多い
・駅周辺の観光案内が充実していないため、どこで情報が得られるのか、どこで何をして楽しめばいいのか分かりづらい
・それゆえ、限られた観光情報を元に多くの人が特定のスポットに集中してしまいがち
・秋川渓谷周辺の観光スポットはあちこちに点在していて、歩いて巡るには時間がかかり、一方でバス等の二次交通の便も良くない

そのため、「静かな清流の水辺で、大自然に包み込まれて非日常感を感じる」という、ここでしか得られない体験にたどり着ける人は限られているのが現状です。
こうした課題を解決するためには、観光客の多くが利用する武蔵五日市駅前に、水辺体験コンシェルジュ的な機能を備えた施設が必要です。秋川の魅力と楽しみ方の情報を集約して発信し、「まずこれ!」と言えるツアーやアクティビティを提供し、地域を周遊するためのモビリティ(移動手段)もセットにして水辺空間に送り出していく仕組みを作れたら、秋川渓谷の持つポテンシャルは、もっと大きく花開いていくはずです。

■このプロジェクトで実現したいこと
~「秘密基地」から、「東京の裏山リバーフロント」へ~

そこで私たちは、7年前から運営してきた武蔵五日市駅前の「東京裏山ベース」を、全ての人に開かれた清流の水辺体験と地域観光の起点となる施設として、「東京裏山リバーフロント」へとバージョンアップすることにしました。

具体的には以下のような取り組みを行い、秋川渓谷ならではの魅力をトータルで体感できる仕組みを作っていきます。
・電動レンタサイクルの充実
・「秋川渓谷リバーサイドマップ(仮)」の制作・提供
・アクティビティ&ツアーの案内カウンターの設置
・公共空間としてのラウンジスペースの提供
・カフェ機能の増強(テイクアウトカウンター新設、新メニューの展開)
・荷物預かり、更衣室、シャワー等のサービスの維持

プロジェクトへのご支援をきっかけに、たくさんの方と一緒に秋川渓谷の未来を作っていければ、こんなに嬉しいことはありません。
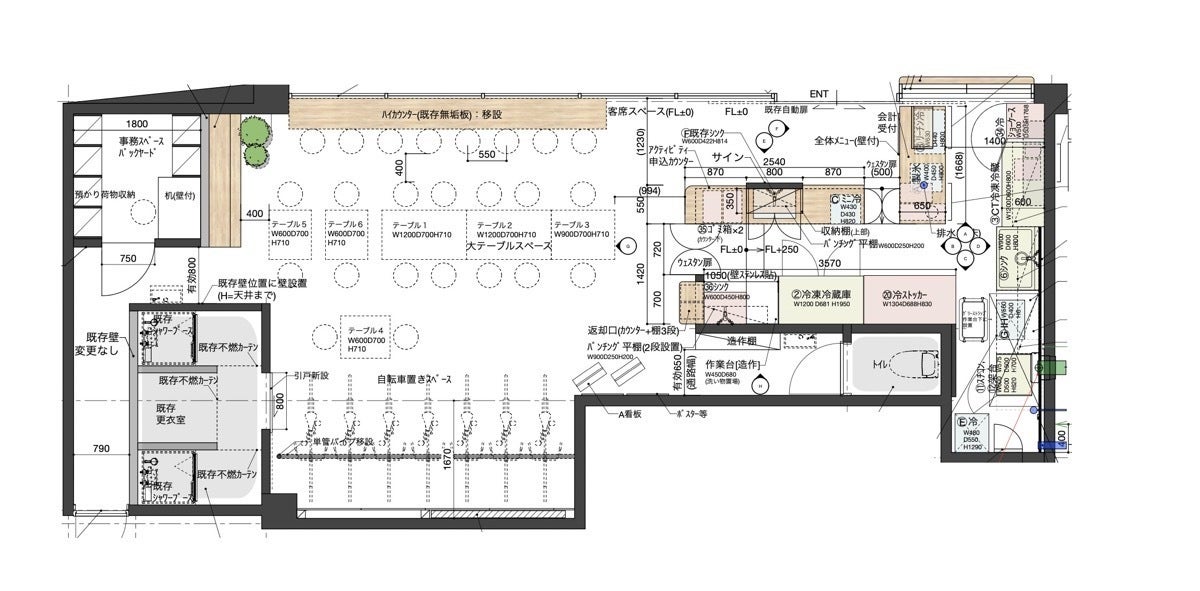
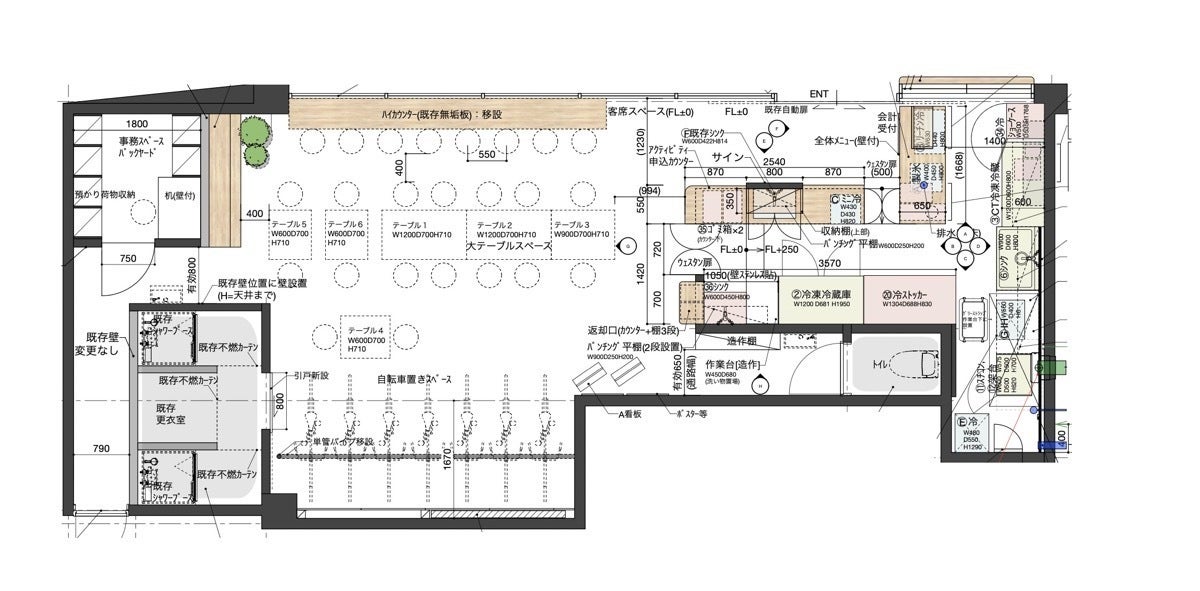
■ スケジュールと新しい機能

【スケジュール】
5月中旬:東京裏山ベースリニューアル工事開始
6月中旬:工事完了、開店準備
6月25日(日):クラウドファンディング終了
7月1日(土):オープニングレセプションイベント(招待制)
7月2日(日):グランドオープン!
7月下旬〜:返礼品の発送開始


【東京裏山リバーフロントの新しい機能】
(1)レンタサイクル&レンタルグッズの充実と特製マップの制作
▶︎ 駅前からすぐ乗り出せるレンタサイクル
秋川渓谷の水辺をあちこち巡る足として、最適なツールが自転車です。秋川渓谷の長年の課題だった地域観光における二次交通の課題を、駅前すぐのシェアサイクル「東京渓谷サイクリング」(※)と店舗でのレンタサイクルで解決します。駅を降りたらすぐに自転車に飛び乗って、渓谷の水辺にたどり着けます。電動アシスト自転車なら、立体的な地形が特徴の秋川渓谷周辺で、移動そのものがアトラクションに!


(※)当プロジェクトに先駆けて、私たちが2022年11月に先行スタートさせた秋川渓谷エリアのシェアサイクル。武蔵五日市駅前と温泉(瀬音の湯)近くに無人貸出・返却ができるポートを置き、相互に乗り捨てが可能。
▶︎レンタサイクルご利用の方に「秋川渓谷リバーサイドマップ」(※)をプレゼント

(※)この地域でツアー実績を重ねてきた東京裏山ベースが、おすすめスポットを厳選した特製マップを製作中。「東京渓谷サイクリング」またはレンタサイクル利用とセットで無料提供します。秋川渓谷の水辺空間が一覧でき、川と地域の全体像が把握できます!わかりにくい川への降り口もピンポイントでご案内。おすすめ立ち寄りスポットやビュースポット、自転車旅の合間に休憩できるカフェ情報も厳選して掲載しています。
▶︎ 携帯チェアやマットなど、レンタル品もさらに充実
ワクワクする道具を自転車に乗せて、自然の中へ!
手ぶらで来ても、駅前でいろいろな遊び道具やのんびり過ごすためのツールがレンタルできます。

一番手軽なおすすめアクティビティは、清流の水辺で時間を忘れてゆっくり過ごす「何もしない贅沢」を楽しめる、「渓谷チェアリング」です!

(2)アクティビティ・ツアーの相談・予約カウンターの新設
その日すぐに出発できるセルフツアーから、次回のために予約ができる日帰り&一泊二日のガイド付きツアーまで、その場でメニューを見ながら検討・予約できるようになります。

▶︎セルフツアー
「渓谷チェアリング満喫セット」:電動レンタサイクルと専用マップ、携帯チェアとテイクアウトフード(裏山ランチボックス)がセットになったメニューです。
専用マップを見ながら電動レンタサイクルで秋川渓谷の水辺サイクリング。人が少ないとっておきの水辺スポットで川に降りて、携帯チェアにもたれてのんびり「渓谷チェアリング」。特製テイクアウトフードを大自然独り占めの特別なスポットで楽しむ、東京裏山リバーフロントならではの提案です。
※ご参加時には、ゴミを川に残さないようにご注意ください。

▶︎予約制ガイドツアー
地域を知り尽くしたガイドがご案内!電動アシスト自転車での軽いサイクリングの後、川の中をバシャバシャ歩いて秘密の滝にたどり着く日帰りのリバートレッキングツアーから、温泉のコテージに泊まり、一泊二日で秋川渓谷のベストオブベストを満喫する旅行商品まで!
(地域限定旅行業登録済み)


▶︎さらに季節限定で、全身で清流を体感できるスペシャルツアーの予約・受付も!
トラックチューブで川下り「渓谷どんぶらこ」in 檜原村!
川の中からしか行けない、ふたつの川の合流地点へも行けます!
ガイド付きツアーだけでなく、それぞれのペースで楽しめるオリジナルコンテンツもあり、その場で比較検討が可能です。(大自然で楽しむ謎解きから、ファミリー向け探検プログラムまで!)
親子で秘境探検!
とっておきのツールで特別な体験を
裏山の大冒険
※CO2削減や脱炭素への取り組みが重視される昨今、こうした地域の自然や地形を活かした体験コンテンツは、排出するCO2もゴミも僅かで、地域環境へのダメージを最小に抑えた持続可能な観光への取り組みとして注目されています。

(3)カフェも大幅バージョンアップ!:新メニュー展開、テイクアウトカウンター新設、ラウンジスペースの充実
秋川渓谷の水辺空間のイメージ写真を大きく展示する演出の店内で、コーヒーなどを飲みながら旅の準備をしたり、アクティビティ後にくつろぎながら次の来訪のプランを立てたりできる拠点カフェになります。
新メニューも多数追加して、飲食店として充実した内容に進化します!
左上から低温調理チキンのコブサラダ、多摩ミックスフラッペ、自家製裏山レモネード、テリヤキチキンと秋川とうもろこしのピザ
(※画像はイメージです)
▶︎新設のオーブンでつくる新作メニュー
特におすすめしたいのが、じっくり低温調理したポークパストラミを使った特製の「裏山キューバサンド」。

テイクアウトにもぴったりなので、天気の良い日はぜひ川辺で!
自然を満喫した後は、ピザやチーズナチョスなど、ビールが進むメニューがお出迎え。軽めのおつまみメニューも増えて、戻ってからの楽しみも増えました。
▶︎新作裏山カレー
裏山ベースといえばこれまでカレーが大人気。(外遊びの後のカレーって、どうしてこんなに美味しいんでしょう?)

リニューアル後は新たなカレーをメニューに加えるべく、研究を進めています!
▶︎焼き菓子・スイーツ
以前から人気の檜原村の手づくりパウンドケーキに加えて、店内で焼き上げる特製マフィンや濃厚チーズケーキもメニューに仲間入り!
▶︎地酒&地ビールも復活提供!
今回のリニューアルのテーマは川・・・ということで、お酒も川でつながるふたつの銘柄をピックアップ!
裏山ベースから秋川を少し上流に遡った野崎酒造さんの地酒「喜正」、そして少し下流、多摩川本流との合流点にほど近い石川酒造さんのクラフトビール「TOKYO BLUES」(生ビールサーバーで提供)。
どちらも、地域の自慢の名水を使って丁寧に作られたお酒&ビールです。
▶︎店舗正面にテイクアウトカウンターを設置
入り口左側の大きなガラス壁をひとつ撤去して、テイクアウトカウンターに。表通りから直接テイクアウトメニューの購入が可能になります。サイクリストの方は自転車に跨ったままサッとエスプレッソを一杯・・・なんてことも。

▶︎駅前のパブリックスペースを補うラウンジを拡大
店内の客席は、駅前の公共空間を補う役割も担うラウンジスペースとして、水辺を訪れた観光客だけでなく、山から降りてきたトレイルランナーやサイクリスト、地元の方など、思い思いのスタイルで秋川渓谷を楽しむ人たちの交差点(パブリックスペース)となることを目指します。

(4)アクティブ派向けのサービスの維持:荷物預かり、更衣室、シャワー等のランステ的サービスも継続
トレイルランナーやサイクリストに支持されてきたシャワー等のサービスはしっかり継続。
五日市をスタート・フィニッシュ地点として毎年開催されるトレイルランニングの人気大会(ハセツネCUP=日本山岳耐久レース)の試走や、裏山ベースが提唱する低山を5つ繋いで五日市を一周するトレイルコース「武蔵五日市裏山ファイブ」などに挑戦するトレイルランナーさん、そして都民の森へのヒルクライムに挑戦するサイクリストの充実した一日の拠点として、これまで以上に便利にご利用いただけます。
■【東京裏山リバーフロントを起点にこんな一日が実現】

〈 自転車+テイクアウトで渓谷チェアリングを楽しむリフレッシュ旅 〉
朝、ふらっと手ぶらで電車でやってきて、駅前の裏山ベースで電動アシスト自転車とチェアをレンタル。
厳選水辺スポットが記された地図を見ながら、自分だけの景色を楽しめるスポットを目指して川沿いをサイクリング。
清流の水辺に降りたら、椅子を出してそのままのんびり。渓谷チェアリング、まるで大自然を独り占め。
(これがやりたかったんだよね!)
水の音ときらめきに包まれながら川に手足をつけたり、石切りをしてみたり。ひととおり五感を解放して清流を満喫した後は、テイクアウトしたキューバサンドとコーヒーを楽しみつつ、食後は川面を吹きそよぐ風を感じながら、ちょっとうたた寝・・・。
午後にはまた自転車に乗って、温泉まで足を伸ばして足湯でほっこり。
最後は夕陽を背中に浴びながら、川沿いをスルスル走って裏山ベースに戻ったら、帰りの電車の時間まで、クラフトビールで乾杯!
帰りに店内のツアーカウンターで翌週のガイドツアーの予約。
東京の秘境でリバートレッキング、楽しみだな。
横断歩道を渡ったらすぐに駅。
電車に飛び乗って、ゆっくりと都会の日常へと戻っていく・・・
■リターン品について
以下のものを組み合わせ、3000円から50万円までのリターン品を設定しています。
(詳細は各リターンの説明文をご確認ください)
■お礼のメール
■東京裏山ベースいつでも10%割引カード(有効期限:2024年4月26日)
■ 東京裏山ベースいつでも20%割引カード(有効期限:2024年4月26日)
■ 新作オリジナルURYM Tシャツ(コットン100%)※3色あり
■ 新作オリジナルURYM Tシャツ(ポリ100% 吸汗速乾タイプ)※3色あり
※Tシャツはいずれもホワイトボディ、文字カラーは「水に映る森色」「深淵の空色」「光に揺れる水面色」から選べます
■「東京渓谷サイクリング」電動アシストシェアサイクル1日パス(1枚=3500円相当)
■ 裏山ベース「電動アシスト」レンタサイクル1日チケット(1台=3500円分)
■ 裏山ベース「電動アシスト」〈平日限定〉レンタサイクル1日チケット(3500円分)
■ 渓谷チェアリング満喫セット チケット(1名様=約6,000円相当)
■ 東京裏山ベースのレジで何にでも使える1000円分クーポン(有効期限:2024年4月26日)
■ 東京裏山ベースのレジで何にでも使える〈平日限定〉1000円分クーポン (有効期限:2024年4月26日)
■ 東京裏山ベースのシャワーチケット(600円相当)
■ 支援者限定”Premium Supporter”ステッカー
■ 支援者限定”Super Premium Supporter”ステッカー
■ 日帰りリバートレッキングツアーの参加時に使えるクーポン
■ 7/1(土)開催予定のオープニングレセプションパーティー(非公開)ご招待
■ 個人様でも、企業様でも:【平日限定】渓谷ワーケーションパッケージ
■ HPの記事と店内に掲出するPremium Supporterリストへのお名前記載
( HPでの掲載は https://ura-yama.com/ の記事内となります。店内での掲出は、リバーフロントとしての演出に馴染むよう、掲載する全てのお名前をA4サイズ(50音順)1-2枚に納まる大きさに調整して印刷し掲出します。 店内への掲出期間は2024年6月30日まで。※その後も延長して掲出する場合があります)
■ 資金の使い道

目標金額:300万円
36万円→CAMPFIREのクラウドファンディング手数料(12%)
15万円→決済手数料(5%)
49万円(概算)→リターン品の製作費・送料等
200万円(概算)→東京裏山ベースを新たにリバーフロントとして機能させるために必要な内外装工事、マップ等の作成、シェアサイクルの維持運営の費用
▶︎内外装工事費用
すでにご紹介した通り、以下のような内外装リニューアル工事を行います。
・アクティビティ&ツアーの案内カウンターの設置
・店内での秋川渓谷の水辺イメージ展示(フォトグラファー/竹之内祐幸氏)
・オーブン等の厨房機器・生ビールサーバーの導入
・店舗正面にテイクアウトカウンターを新設
・ラウンジとして座席・スペースを増設
▶︎秋川渓谷リバーサイドマップ(仮)の制作・印刷費用
秋川渓谷の水辺スポットを厳選して掲載する、これまでにないマップを制作します。
▶︎駅前シェアサイクル「東京渓谷サイクリング」の運営・維持費用費用
本来は公的機関等が手掛けることの多い地域モビリティ提供ですが、地域課題の解決に貢献すべく、自社で導入しました。今後もしっかり維持していけるよう、ご支援をお願いします。(今回のご支援とご利用が、地域観光インフラ整備への支援となります)
■ さらなる未来ビジョン・意義

このプロジェクトは、店舗のリニューアルで終わりではありません。ここは新しいスタート地点です。私たちは、今回のプロジェクトをきっかけにして、地域にも新しい風を吹かせていきます。リニューアルした東京裏山ベースを拠点に、秋川渓谷ならではの魅力を理解した良質な来訪者が地域のファンとして多く行き来し、秋川の水辺空間全体が公共空間として開かれ、そのことにより地域も外に開いていく。地元民も来訪者も、秋川の恩恵を享受するもの同士、互いに尊重しながらときに交流し、水辺から秋川渓谷がイキイキと活気のある場所になっていく。
東京最後の清流・秋川渓谷を舞台に、自然の癒しと公共空間の拡張を求める全国的な機運を背景に、時代のニーズと地域の持つ可能性の歯車がひとつずつ噛み合い、大きな循環が回り始める・・・このプロジェクトではそんな、観光とまちづくりが調和するビジョンを描きながら、その実現に全力で取り組んでいきます。
■ プロジェクト主宰者について

ジンケン:
四国の野山を駆け回って育った。小さい頃から次々と新しい遊びをつくり出す才能を発揮し、数多くのコンテンツを世に送り出してきた「外遊びの天才」。東京都檜原村エコツアーガイド・エコツーリズム推進協議会委員。
ミチコ:
東京・杉並区育ち。自然に憧れを持つ都会人の気持ちに寄り添い、サービスをブラッシュアップしていく、体験コンテンツの編集者。
▶︎ 夫婦共に一橋大学(社会学)大学院在学中(2011年)に東京のフロンティア・秋川渓谷へ移住。
2016年に武蔵五日市駅前に拠点施設「東京裏山ベース」を開業。アウトドアガイド業、各種イベント開催、大自然の中で楽しむ謎解きの制作・開催、セルフガイドコンテンツの制作・提供、里山を探検しながら大自然に隠されたアートを探す子ども向けプログラムまで、既存の枠組を超えてさまざまな「自然や地域を楽しむ仕掛け」「自然遊びのワクワクを手軽に感じられるコンテンツ」を企画・制作し、地域に実装し運営してきました。
既存の地域資源を活かしながらもエンターテインメント性を盛り込んだ独自のスタイルの観光・体験のコンセプトメイカー・体験コンテンツ制作者として全国で活動しています。
■ 各方面から力強い応援コメントをいただきました!(順不同)
一般社団法人エリア・イノベーション・アライアンス代表理事
内閣府地域活性化伝道師
木下 斉 様

東京都といえばどこまでも大都会と思われガチですが、多摩と小笠原という山と海を持つ自然力もある地域なのを忘れがちです。世界最大級の都市圏に位置するというマーケットとしてはこの上ない立地にも関わらず、これらはいまいち使われておらず、遊休資産ともいえる状況にあります。
これまでも秋川渓谷の魅力を伝えるプログラムを展開してきたジンケンさんたちが、心機一転より魅力を伝える拠点を作り、多くのお客様をお迎えするという挑戦、気づかれていなかった東京の裏山の魅力が発掘され、多摩地域の活性化にもつながることを心から期待しています! 頑張ってください。

JR東日本八王子支社 マネージャー 兼 沿線まるごと㈱ 取締役
会田 均 様

東京の秘密基地が生まれ変わります!JR五日市線武蔵五日市駅にお越しいただければ、東京とは思えない秋川の清流と自然を五感で感じとれる体験・発信拠点が駅の目の前に!是非とも外遊びの天才 ジンケンさん・ミチコさんの非日常体験コンテンツを皆で味わいましょう!

株式会社さとゆめ 代表取締役 社長
嶋田 俊平 様

“駅前に「リバーフロント」をつくる“、そんな構想をジンケンさん、ミチコさんから聞いたとき、すごくワクワクしました。
何気なく通り過ぎてしまうような、一見ありきたりのように見える風景が、斬新なコンセプトを加えることで、風景の見え方が劇的に変わり、新しい行動を生み出すことがあります。ジンケンさん・ミチコさんは、これまで“東京裏山ベース”というコンセプトで、秋川渓谷一帯をみんなで謎解きをするように楽しむ素敵なワンダーランドに変えてこられましたが、今回、“東京裏山リバーフロント”というコンセプトで、秋川が育んできた自然・文化・暮らしをさらに奥深く味わい、水辺をしっとりと楽しむ、新しい世界観をつくっていかれるのでしょう。応援しています!そして、リバーフロント、楽しみにしています!

ミズベリングプロジェクト・ディレクター
水辺総研取締役
滝澤 恭平 様

眺めて良し、食べて良し、流れてみても良し。東京の裏山、駅チカに、最強の癒やし系水辺スポットの出現!
水辺と里山の風景が一体となった秋川渓谷は何度訪れても感動があります。ジンケンさんミチコさんの類まれなセンスと行動力が生み出す、水辺プレイスメイキングを応援します。

ライター/『チェアリング入門』著者
パリッコ 様

数年前、友達のスズキナオさんとともに、アウトドア用の椅子だけを持って外へ行き、好きな場所に座ってただのんびりする行為に「チェアリング」と名前をつけて始めました。予想もしていなかったことに、それが「もっとも敷居の低いアウトドアアクティビティ」として多くの人におもしろがってもらって広まり、そこからさまざまなチェアリングのスタイルが生まれていきました。
武蔵五日市は、駅から数分歩けば美しい清流のすぐそばでチェアリングができる都内屈指のスポットで、個人的にも何度も訪れています。その拠点とも言える東京裏山ベースが「リバーフロント」へと進化するこの計画。心のそこからわくわくします!

奥住運輸有限会社
山の上広告株式会社
代表取締役 奥住 尚弘 様

なんとまた、ジンケンさんがクラファンに挑戦するという。
思い起こせば2016年、市役所のそれなりの立場の方に「私、クラウドファンディングの運営はじめます。何かご一緒できませんかね?」と言った時、「それはふるさと納税のライバルですか?」と言われるくらい、クラファンの認知度が低かった時代でした。そんな頃に、果敢に「東京裏山ベースを作りたい!」といってエントリーされたのがジンケンさんで、それからのお付き合いになります。今回も、施設の改装だけではなく、地域のブランディング含め、たくさんの企画やアクティベーションを提供していくとのこと。率直に、バカみたいに大変なことするなあと思いますが、そう言えば私も「ただの山、じゃない。御岳山」というキャンペーンを展開し、バカみたいに大変な思いをしている真っ最中でした。
秋川と御岳山でも、何かやれたら良いですね。クラファンの成功と秋川地域の発展を心から応援しています。

あきる野市 五日市タウンマネージャー
國廣 純子 様

あきる野市五日市のまちなかリノベーション推進のお手伝いをしているタウンマネージャーの國廣です。秋川渓谷の魅力を存分に知り尽くしたおふたりにお任せすれば、初めて訪れる方はもちろん、ディープな自然へダイブしたい方まで満足度120%の体験世界へ連れて行ってもらえること間違いなし!東京裏山リバーフロント構想、是非一緒に盛り上げていただけたら嬉しいです。せせらぎが傍にあるこのまちで、皆様のお越しをお待ちしております!

近藤醸造 株式会社
代表取締役 近藤 寛 様

アウトドアアクティビティの拠点がついに秋川渓谷にもできた!
2016年、東京裏山ベースのオープン時の衝撃と喜びは忘れられません。それからの武蔵五日市駅周辺の景色は明らかに変わりました。お客様も雰囲気も。
自然を楽しむアクティビティの枠にとどまらず、地域の観光や交通の課題にも新しい発想をもって取り組んできてくれた東京裏山ベースさんのこれからのチャレンジも応援しています!

株式会社 do-mo 代表取締役
高水 健 様

私たちdo-moがかつて、最初にカフェを運営させていただいた東京裏山ベースは、私たちが卒業してからも進化を続け、この度さらに新提案!
裏山遊びの名人夫婦が、新たな秋川渓谷ならではの自然の楽しみ方を揃えてバージョンアップするとのこと!
水辺を気持ちよく体感できる素敵なコンテンツがたくさん!
地域の事業者として応援しております^_^
頑張れ、東京裏山リバーフロント!!!

秋川渓谷瀬音の湯
支配人 渡邉 智宣 様

東京裏山ベースさんがこの秋川渓谷の魅力を発信し続けてはや8年目となりました。
子供のように目をキラキラさせて山や川での遊び方を語る様は
最初は興味のない人でもきっと知らぬうちに引き込まれてしまう事でしょう。
そんな裏山ベースさんが今回「裏山リバーフロント」として再スタート、新たな切り口で秋川渓谷を紹介するとの事にワクワクがとまりません。
全力で応援させて頂きます!

<募集方式について>
本プロジェクトはAll-in方式で実施します。目標金額に満たない場合も、計画を実行し、リターンをお届けします。
最新の活動報告
もっと見る
【ネクストゴール(350万円)挑戦中!】
2023/06/24 01:236月22日(木)、残り3日で目標額300万円に到達しました!みなさん、本当にありがとうございます!https://camp-fire.jp/projects/view/670910ネクストゴールとして350万円を目指して、残り2日間、引き続きご支援よろしくお願いします!店内に飾られる秋川渓谷の写真たち、続々届いてます!裏山ベース店内は、まさに駅前のリバーフロントへ!お楽しみに! もっと見るカフェメニュー開発中!
2023/06/20 01:23東京裏山ベース、リニューアルの目玉の一つがカフェの充実!というわけで、鋭意メニュー開発中!我ながらどれもこれも美味しすぎてやばいです。 もっと見る
改修作業も進行中!
2023/06/10 12:48東京裏山ベースを東京最後の清流・秋川渓谷の魅力と楽しみ方を発信する「駅前のリバーフロント」へと改修する作業も進んでいます!設計は五日市の設計士さん、施工もあきる野市内の工務店さんにお願いしましたが、予算の関係もあり塗装はDIYです!塗りかけ画像ですがこんな感じ。キッチンの青と緑と天井の薄いミント色は、クラウドファンディングのリターンにもなってるTシャツの3色と同じく、秋川渓谷の写真の中の特徴的なカラーからインスピレーションを得て決めました。そして本日、新しい厨房機器の搬入もありました。7/2のリニューアルオープンに向けて、少しずつ進んでいます!【クラウドファンディング挑戦中】秩父多摩甲斐国立公園の玄関口・秋川渓谷の清流の魅力と楽しみ方を提案&発信!駅前に「東京の裏山リバーフロント」を作るプロジェクトに、クラウドファンディングを通じてぜひご参加下さい!https://camp-fire.jp/projects/view/670910 もっと見る







コメント
もっと見る