■ごあいさつ
2023年12月 堺市東区で一時預かり専門託児所を開所予定の「キッズクローネ」です。
■開園の思い
私は様々な保育の現場で経験を重ねて参りました。子ども達はもちろん保護者の方々との関わりも多く、その中で子育ての悩みや不安などの相談を受けてきました。
自分の時間がない、ホッとひと息つけない、つらさ、しんどさ…それぞれの思いがありました。
よく耳にしたのは保護者自身の体調不良や兄弟の学校行事、ご家族のことで急用ができるなど突発的な状況になった時に身近に頼れる人がいないということでした。
そこから保護者に必要とされる保育ができないかと考えるようになり『困っている"今"』…を解決することが必要だと強く感じました。
今すぐ預けたい、いつでも預けられるところがあれば、パパ・ママがリフレッシュできるのではと思い一時預かり専門託児所を構想しました。
お子様を一時的にでも預けることで、また温かい気持ちで育児に向き合ってほしい!日々笑顔で過ごせるように職員みんなでサポートしていきたい!と思っています。
専業主婦(専業主夫)の方、お仕事をされている方、子育てを頑張っている皆様に寄り添える保育、安心してお子様を預けられる環境を目指します。
施設長 藤田 芽虞

■キッズクローネの由来
クローネ(krone)はドイツ語で冠を意味します。
キラキラと光り輝き、特別な日や大切な記念日にかぶると自然と笑顔に!そして、子ども達のかわいさを引き立て主役にしてくれます。
保育では、子ども達がお誕生会で冠をかぶり、お友達みんなからお祝いをしてもらうことで喜びを感じ嬉しそうにしている姿を見てきました。今でも素敵な笑顔が心に刻まれています。
絵本が大好きな子ども達は、お城から始まる素敵なストーリーに憧れを持ち、色紙や新聞紙などで冠を作り王子様やお姫様になりきってのごっこ遊びへと広がります。
"子ども達みんなが主役!"心豊かに楽しい時間を過ごしてほしい、とびきりの笑顔になれる場所にしたいという想いを込めキッズクローネという施設名にしました。
■物件との出会い

今年の4月から、いろいろな不動産屋さん、物件を探していてようやく理想の物件に出会うことができました。
以前は介護のトレーニング施設として利用されていた物件に出会うことができました。
介護 と 保育 似通っていて何かご縁を感じました。
■開所イメージ
現在看板のデザインも試行錯誤しながら製作していただいてます。

※看板完成のイメージです。
■現在の施設内
天井の色は変更します。白色で明るくするつもりです。
床は私たちでじゅうたんカーペットを張り替えます。(350枚!!出来るかな)
ここは調乳室にしまーす。
だんだんと形になってきました

手洗いはお子さんの手の届く高さのものに作っていただきます
おトイレも介護仕様なので かわいく使っていただけるように改装します
駐車場も私たちで明るくかわいくします。お花をいっぱいにします!!
ブロック塀も塗り替えします。
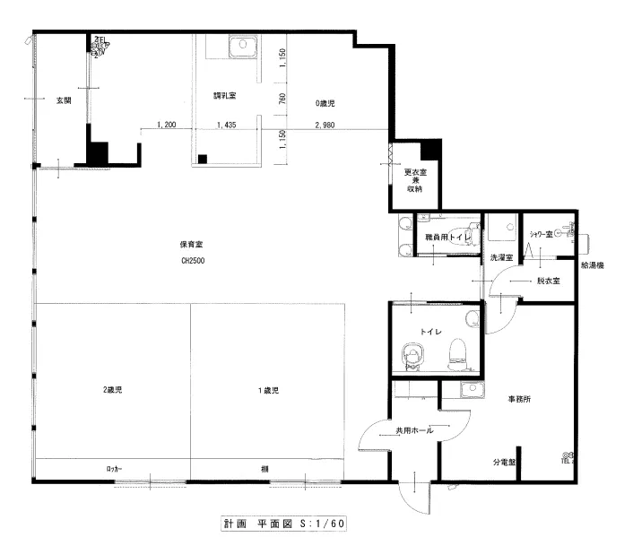
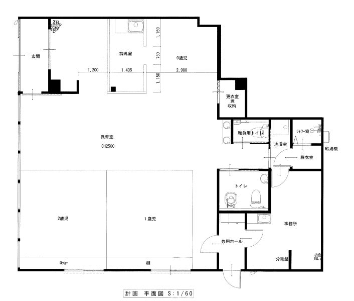
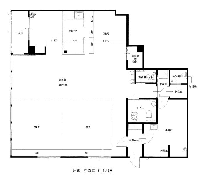
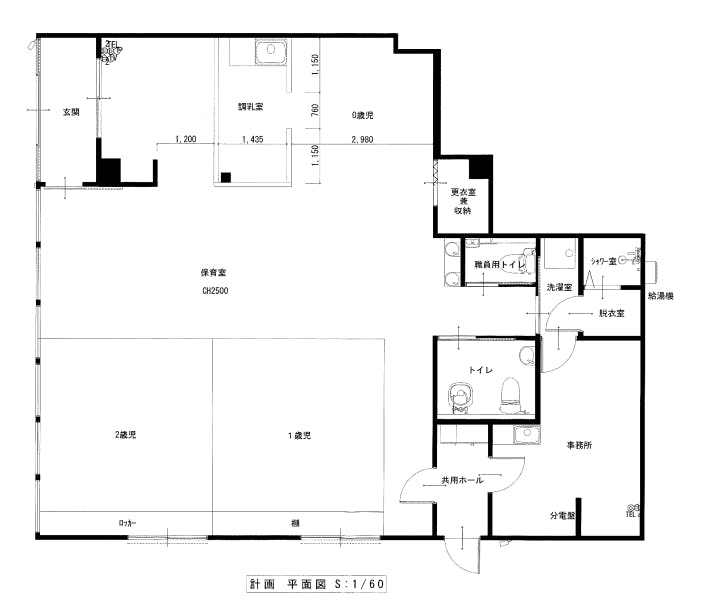
■施設 図面

かなり広々としているので子供たちにのびのびと利用していただけます!!
■ ロゴイメージ
現在はどのロゴにするか検討しています

■おもちゃ
温かみを感じるおもちゃを現在は集めています







■保育士と託児施設について
施設長を含めて3~4名の保育士の体制で運営させていただきます。
認可外保育施設として「認可外保育指導監督基準」に沿った施設の整備と運営をしてまいります。
■スケジュール
9月 13日 物件契約
9月 20日 工事開始
10月3週目 工事完了
10月3週目 内装作業スタート
11月4週目 オープン予定
1月2週目 リターン発送
■資金の使い道
物件礼金 80万円
仲介手数料 30万円
工事費 200万円
LED交換 15万円
AED設置購入費 30万円
看板製作設置費 20万円
家電購入費 35万円
用具おもちゃ費 20万円
その他備品 10万円
リターン準備費 10万円
合計 450万円
■SNS
https://instagram.com/kids_krone?igshid=OGQ5ZDc2ODk2ZA%3D%3D&utm_source=qr
最後に
◉なぜクラウドファンディングを利用するのか
『キッズクローネ』は認可外保育施設です。国や市区町村からの補助金等はありません。
保育環境を整えるにあたり自分達でできるところは自分達でやることに決めました。(保育室・事務室の床の張り替え《タイルカーペット 350枚》玄関フロアシートの張り替え《6帖分》駐車場の整備・花壇撤去など)
安全面・衛生面は考慮し大工さんや内装屋さんに相談しながら依頼しました。
コツコツと作業を進め現時点でオープンまでの形が見えつつあります。
しかし、保護者の皆様に施設に安心して預けていただくための運営費や設備費に余裕がない現状があります。
そこで今回クラウドファンディングを利用させていただくことにしました。
保育と運営がしっかり軌道にのることで、子ども達と保護者様により心の安らぎと楽しく充実した時間を確立してもらえると考えています。
そして、保育者にとっても働きやすい職場をつくっていきたいと思います。
最後まで読んでいただき、ありがとうございました!
ぜひ、皆さんのお力をお貸しください。
■所在地
〒599-8124
大阪府堺市東区南野田138-3
キッズクローネ
担当 藤田
<募集方式について>
本プロジェクトはAll-in方式で実施します。目標金額に満たない場合も、計画を実行し、リターンをお届けします。
最新の活動報告
もっと見るキッズクローネ プレオープン見学会!
2023/12/08 16:20こんにちは! 一時預かり専門託児所 キッズクローネです!本日12/8(金)より、キッズクローネの体験会を開催しております!体験会に来てくださった方には、その場で撮影したお子様のお写真を缶バッジにしてお渡しさせていただいております!スタッフに協力してもらいました。 完成例です。かわいい!親子で見学に来てくださった方です。※掲載承諾済スタートより4名ほど見学に来てくださっていて、託児所もスタッフ一同も大変盛り上がっております!ご来場お待ちしております! もっと見る






コメント
もっと見る