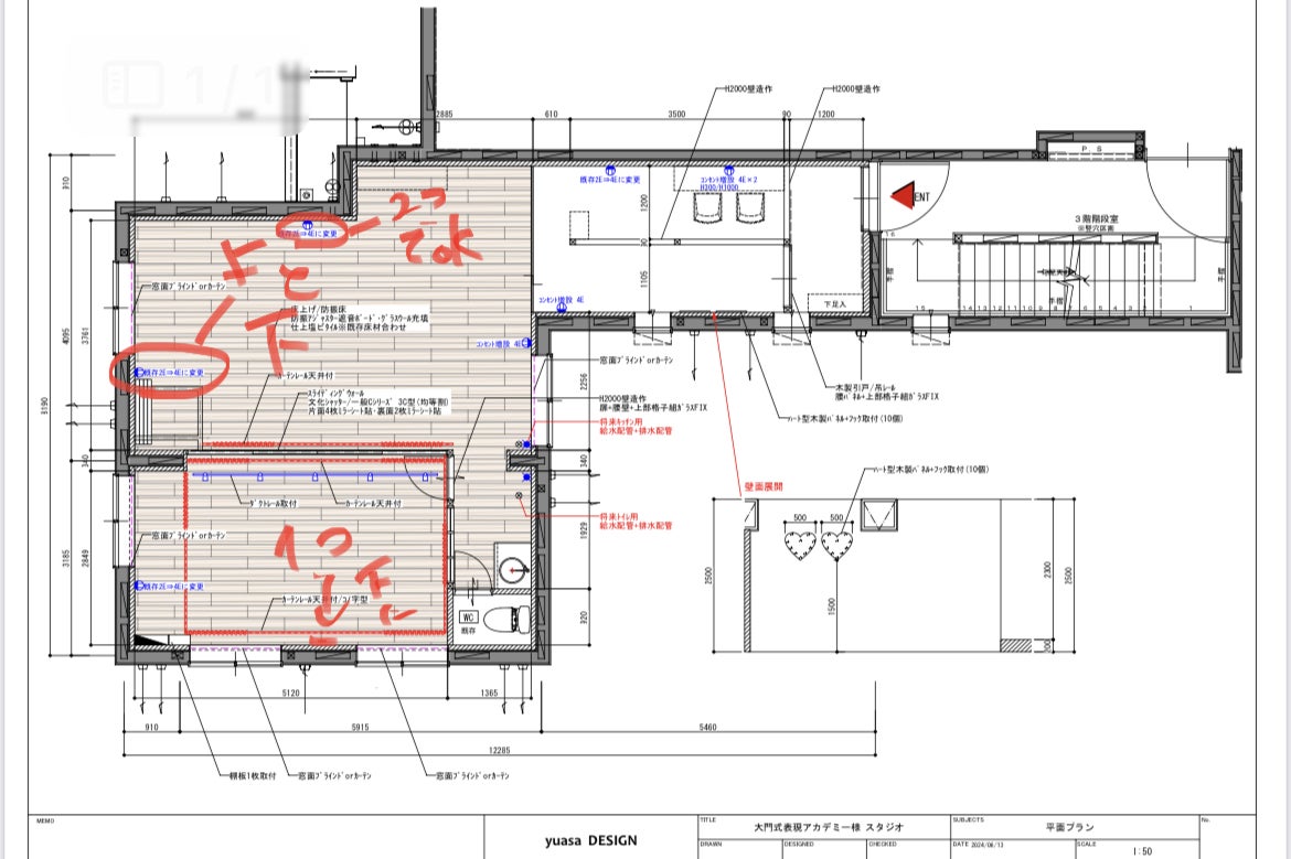
2024/06/15 08:11

今回のクラウドファンディングの理由である教室の内装工事の図面がこちらです!
小さくてわかりにくいかもしれませんが、着実に進んでいます!
本当ギリギリペースですが、気持ちとやる気だけは大きいので、
ご支援のほど、どうぞよろしくお願いします^_^
開校したら、皆さんに見ていただきたいです!





現在の支援総額
2,110,000円
目標金額は1,500,000円
支援者数
161人
募集終了まで残り
終了
このプロジェクトは、2024/06/12に募集を開始し、 161人の支援により 2,110,000円の資金を集め、 2024/06/30に募集を終了しました





現在の支援総額
2,110,000円
140%達成
目標金額1,500,000円
支援者数161人
このプロジェクトは、2024/06/12に募集を開始し、 161人の支援により 2,110,000円の資金を集め、 2024/06/30に募集を終了しました

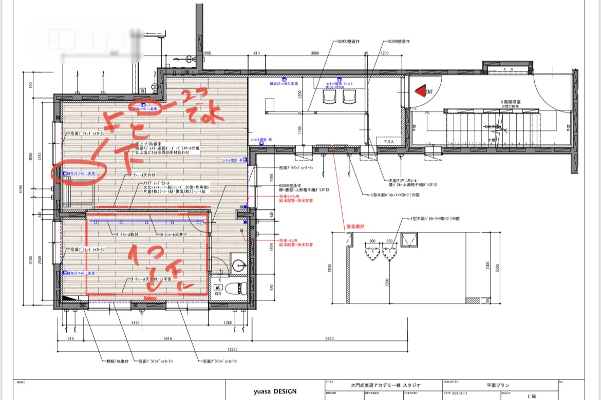
今回のクラウドファンディングの理由である教室の内装工事の図面がこちらです!
小さくてわかりにくいかもしれませんが、着実に進んでいます!
本当ギリギリペースですが、気持ちとやる気だけは大きいので、
ご支援のほど、どうぞよろしくお願いします^_^
開校したら、皆さんに見ていただきたいです!