おかげさまでご支援額が200万円を超えました!ご支援・拡散いただいた皆さま、誠にありがとうございます。感謝の気持ちでいっぱいです。締切まで残り23日、目標まで約170万円!引き続きよろしくお願いいたします。





現在の支援総額
3,786,150円
目標金額は3,700,000円
支援者数
148人
募集終了まで残り
終了
このプロジェクトは、2024/11/15に募集を開始し、 148人の支援により 3,786,150円の資金を集め、 2024/12/22に募集を終了しました





現在の支援総額
3,786,150円
102%達成
目標金額3,700,000円
支援者数148人
このプロジェクトは、2024/11/15に募集を開始し、 148人の支援により 3,786,150円の資金を集め、 2024/12/22に募集を終了しました
おかげさまでご支援額が200万円を超えました!ご支援・拡散いただいた皆さま、誠にありがとうございます。感謝の気持ちでいっぱいです。締切まで残り23日、目標まで約170万円!引き続きよろしくお願いいたします。
おかげさまで現在180万円を超えております。もっと興居島を楽しんでもらいたい!興居島でゆっくりしてもらいたい!思い出を持ち帰ってもらいたい!お土産をメインとした複合施設、様々な想いが集まる場所になりたいと思っています。実家のような宿、海外リゾートのような宿、仕掛けがいっぱいの楽しい宿、かまどや五右衛門風呂などむかし暮らしが楽しめる宿、インテリアが素敵でスタイリッシュな宿、、、多様な宿がどんどん増えている近年の興居島。日帰りはもちろん泊まりでも存分に楽しむことができます!詳しくはごごしまブック(ページ内にリンク先・QRコードあり)をご覧くさい♪締切まで26日、 引き続きご支援・拡散よろしくお願いいたします!
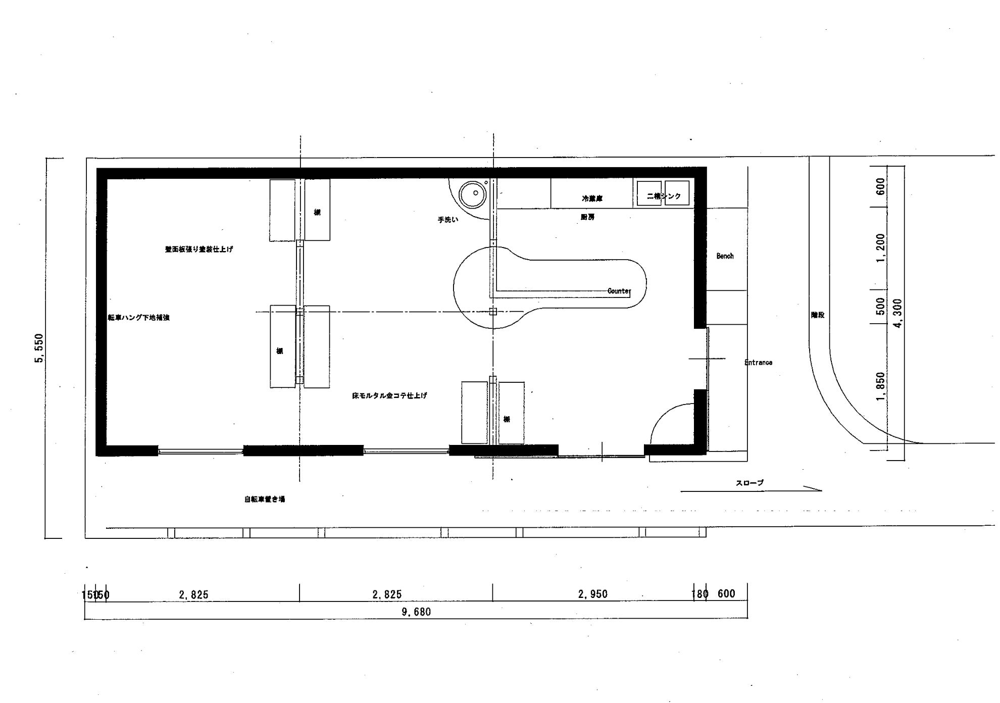
クラウドファンディング挑戦開始一週間となりました!おかげさまでご支援金が150万円に!!!本当にありがとうございます!感謝でいっぱいです。締切の12月22日まであと一ヶ月弱です。写真はお土産店の平面図です。みなさまに楽しでいただける施設になるよう、妄想真っ最中です。クラファン最終日まで、引き続きご支援・拡散のほどお願い申し上げます。
プロジェクトを支援してくださり、ありがとうございます!皆さまのおかげで現在達成率40%、ご支援額が150万円に迫っております。あと31日、目標370万円達成に向け、さらに多くの皆さまにご周知いただけますようSNSなどでシェアしていただけると助かります。引き続き応援よろしくお願いいたします。