ご挨拶
はじめまして、私たちはリノベする学生団体 DaBo -勝浦Project- です。DaBoは関東10大学の建築学科の学生を中心に150名ほどの人数で活動している団体です。空き家の改修を通して地域課題を解決することを目指し、さまざまなプロジェクトに取り組んできました。
このたび、DaBo -勝浦Project- は縁あって勝浦市沢倉の海沿いにある「旧勝浦市立東保育園」を「一棟貸しの宿泊施設」という形で再生するプロジェクトを立ち上げました。地元の方々の大切な思い出を守りながら、宿泊施設という形で勝浦の魅力を発信していく挑戦にご協力いただけたら幸いです!
勝浦市立旧東保育園について
勝浦市の海沿いに位置する東保育園は昭和40年代に建てられた、きれいな砂浜が目の前にある保育園です。最盛期には100名近くの園児が通う地域のゆりかごでしたが、東日本大震災後に好立地が仇になり、また少子化もあいまって、惜しまれながらも2012年頃に閉鎖されました。
地域の思い出がたくさん詰まったこの建物を民泊として再生させることで未来につなげたいと思っています。

解体前の様子。当時の保育所の面影が残っています

職員室や給食室も12年前の名残がありました
これまでの活動とクラウドファウンディングの背景
「119年猛暑日なしの涼しい町」として知名度が向上している勝浦市は、400年以上の歴史を持つ朝市や、華やかな「ビッグひな祭り」などたくさんの魅力があります。そんな勝浦市に愛着を持ち移住されたオーナーさんからご相談を受けたのは2024年の春頃。保育園を民泊へ再生する際の一部リノベーションを依頼したいというご相談でした。
コンセプトは、海が見える立地と約400㎡の一棟貸しという開放感ある空間で非日常感を味わってもらう、というものです。
背景には、親しまれてきた保育園を地域資産として残しつつ、回復してきたインバウンド需要を勝浦市の地域活性化に繋げたいというオーナーさんの想いがありました。
はじめは規模や難易度に戸惑いましたが、「案件への興味」と「海辺」というポジティブ要素、加えて「オーナーさんの熱意」に共感したので、最終的に案件をお引き受けしました。

現地に赴き入念な打ち合わせを重ねます

こちらは昭和43年当時の設計図

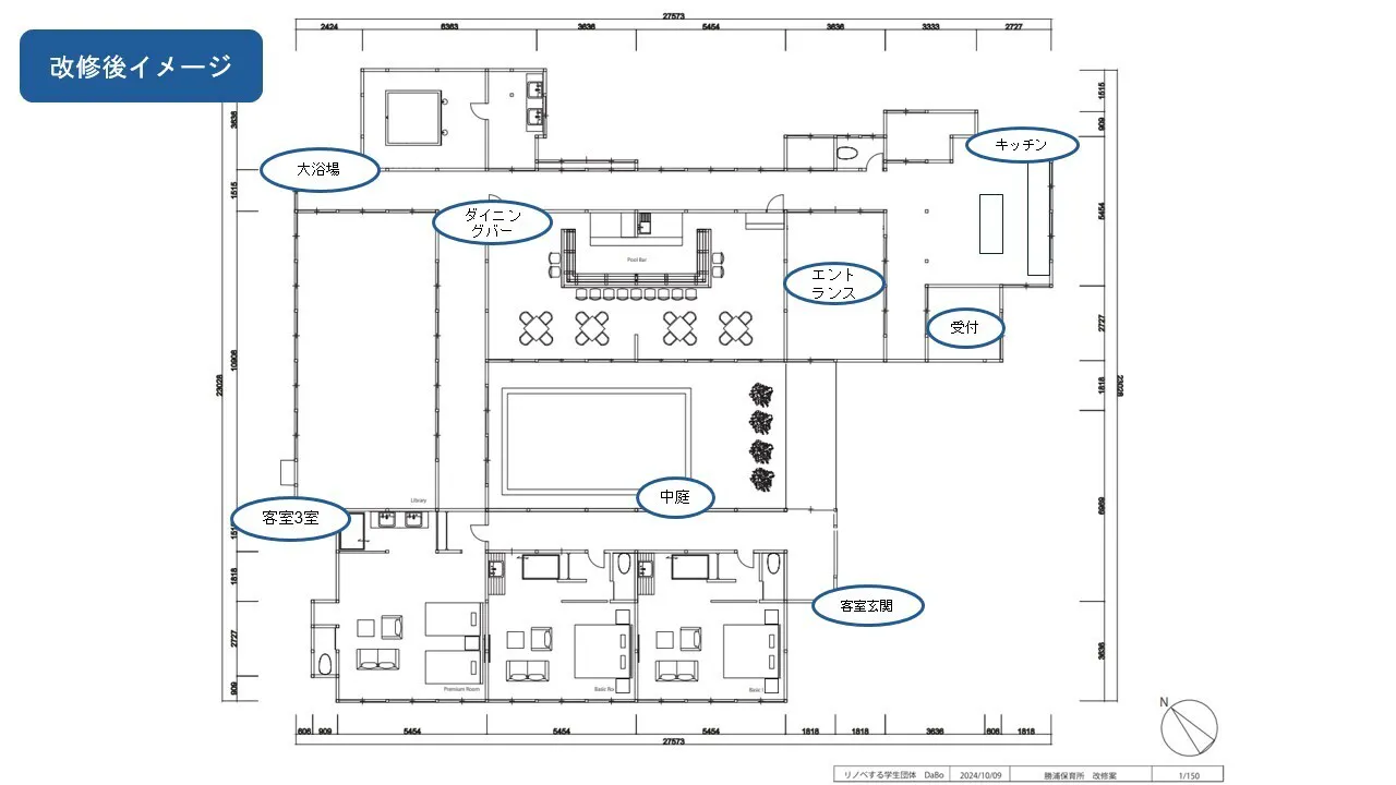
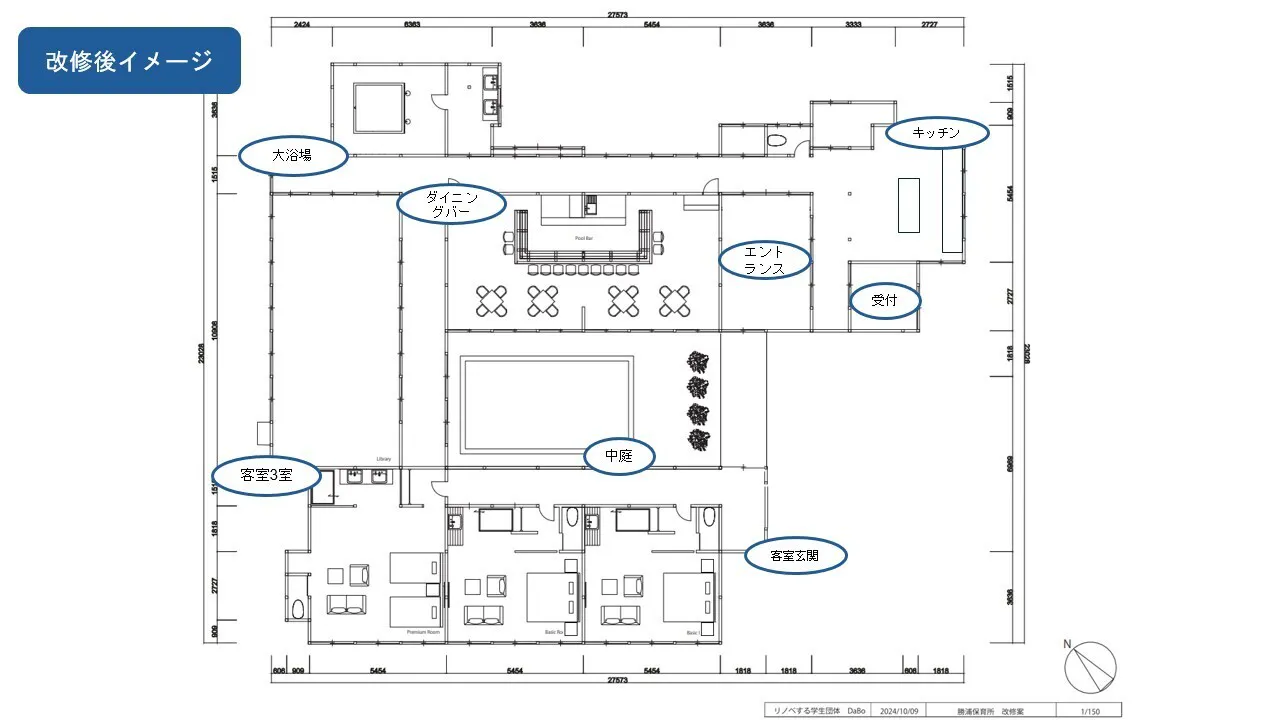
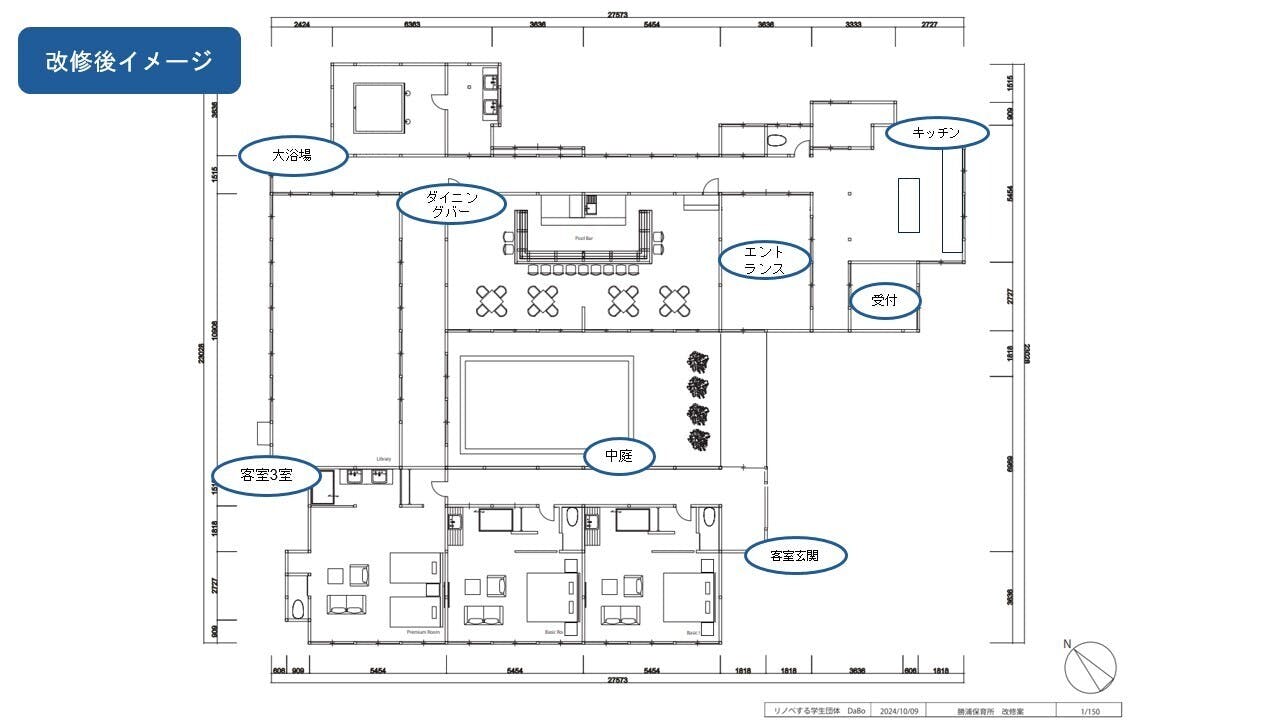
こちらがDaBo -勝浦Project- で設計した図面(イメージ)になります
資金や部材の調達はオーナーさん、施工関係はDaBo -勝浦Project- 、という分担で二人三脚で進めてきましたが、融資審査時の追加条件で500万円弱の追加予算を見込まざるを得なくなり、一部施工を諦めなければならない状態に陥りました。
どうしても進めたい施工が含まれる為、オーナーさんと相談した結果、我々の活動とこのプロジェクトを多くの方に知って頂きたいという想いから、DaBo-勝浦Project-として初めてクラウドファウンディングに踏み切ることにしました。

解体工事の様子。まずは室内に残った残置物の撤去から

大工さんや専門業者の方と分担しながら施工を進めます

10年の間にジャングルのようになっていた中庭。青空が見えるようになりました!

13名のプロジェクト。3つの班に分かれ声を掛け合いながらどんどん進めます!

こどもたちもできることをお手伝い

そして1週間かけて積みあげた廃材はなんとトン袋18袋…!
これで一旦、解体作業は終了です。
プロジェクトの進行状況について
2024年5月
定例会スタート(月数回)
水回り、電気関係の専門業者様の選定
2024年6月
草刈り、中庭の草木伐採実施(ボランティア実施)
2024年10月
電気、水回り工事。インフラ復旧
営業許認可取得に向けた清掃作業(ボランティア実施)
2024年11月
宿泊営業許認可取得
さらなるリフォームに向け、最大13人体制で1週間の泊まり込み解体作業。※作業は大工さんのご指導の元行なっています
2024年12月初旬
融資決定。資材の選定、発注作業
2025年1月
春休みに向けてスケジュール確認
2025年2月~3月
春休みを利用して内装、外構のリノベーション ★現在進行中です
2025年4月~(予定)
内装仕上げ、開業準備
作業は、私たち DaBo -勝浦Project- 以外にも、全国で古民家改築等を手がけている大工さんや専門業者の方、地元の方、ボランティアの方々が集まり、プロジェクトの実現を後押ししてくださっている状況です。
2025年5月のプレオープンに向けて、少しずつ進んでいます。
プロジェクトで実現したいこと
リノベーションを完遂させて、「宿泊される方に勝浦の良さを届けたい、良い思い出をたくさん作ってほしい」というオーナーさんの想いを宿泊客の方々に届けたいです!
もちろん民泊内部には地域コミュニティのハブとなるような空間をつくり、こども達でも気軽に立ち寄れる思い出の場所も再生します。
将来的には、私達がお手伝いしたこの建物が、地元飲食店との連携、地産食材の提供など、民泊で出来ることを通して地域情報の発信拠点になることを願っています。
解体合宿最終日。達成感あふれるこの表情!
リターンについて
ご支援いただいた方には、以下のリターンをご用意しています。
①お礼&活動報告メール
②お礼&活動報告の手紙(改修工事後の写真3~4枚とお礼の手紙を郵送)
③DaBo -勝浦Project- プロジェクト記念ロゴ入りTシャツ
④DaBo -勝浦Project- プロジェクト記念ロゴ入りタンブラー
⑤DaBo -勝浦Project- プロジェクト記念ロゴ入りトートバッグ
⑥リノベーションワークショップ(主に壁塗りの施工などに日帰りでご参加いただけます)
⑦完成記念イベントへのご招待
⑧宿泊割引券(10,000円割引券)
⑨宿泊割引券(20,000円割引券)
※宿泊価格:1泊98,000円~。有効期間:2025年7月1日より1年間(予定)
※⑥〜⑨についての交通費は支援者様ご自身でご負担ください。
詳細はオーナーさんからメールでご連絡いたします。
プロジェクトメンバーで考案したプロジェクト記念ロゴ♪
トレードマークの赤い瓦屋根と波のしぶきをイメージしています
どのリターンも私たち DaBo -勝浦Project- の成果や勝浦の魅力を感じていただけるものです!
資金の使い道
500万円弱の追加予算を投じたことで、以下にかかる予算がひっ迫しております。
1.建物のリノベーション費(特に老朽化部分の補修・改修が喫緊の課題です!) 150万円
2.新規内装デザイン・施工費(特にダイニングバーやライブラリー、大浴場の資材調達および施工にかかる費用) 180万円
3.エアコン他設備の導入費用 100万円
4.ウェブサイト構築費用 50万円
※いただいたご支援は上記のうち、私たちDaBo -勝浦Project- が関わる「1.建物のリノベーション」の部分に使わせていただきます。
※目標金額を超えた場合は、こちらも私たちDaBo -勝浦Project- が関わる「2.新規内装デザイン・施工」に充填させていただきます。
皆さまのご協力が、この夢の実現につながります。どうぞよろしくお願いいたします!






コメント
もっと見る