
クラウドファンディング終了まで、あと11日となりました。
ぜひ目標額を達成できればと思います。
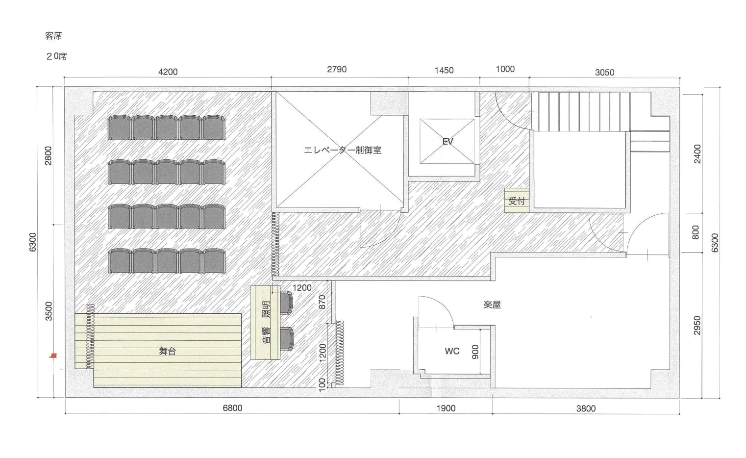
図面が完成しました!(変更の可能性はありますが)
新会場のオープンに向けて、少しずつ準備を進めています。
現在、客席側の壁をペンキで塗っています。

自分たちでできることを進めながら、
完成に向けて作業を進めています。
自ら手を動かすことで、より一層愛着も湧いてきます。
ここから、会場がどんどん形になっていくと思います。
随時ご報告いたしますので、どうぞよろしくお願いいたします。

現在の支援総額
2,096,500円
目標金額は2,000,000円
支援者数
252人
募集終了まで残り
終了
このプロジェクトは、2025/02/02に募集を開始し、 252人の支援により 2,096,500円の資金を集め、 2025/03/31に募集を終了しました

現在の支援総額
2,096,500円
104%達成
目標金額2,000,000円
支援者数252人
このプロジェクトは、2025/02/02に募集を開始し、 252人の支援により 2,096,500円の資金を集め、 2025/03/31に募集を終了しました

クラウドファンディング終了まで、あと11日となりました。
ぜひ目標額を達成できればと思います。
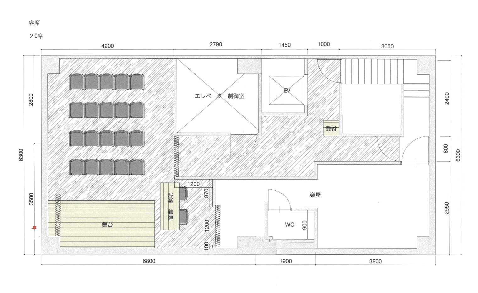
図面が完成しました!(変更の可能性はありますが)
新会場のオープンに向けて、少しずつ準備を進めています。
現在、客席側の壁をペンキで塗っています。

自分たちでできることを進めながら、
完成に向けて作業を進めています。
自ら手を動かすことで、より一層愛着も湧いてきます。
ここから、会場がどんどん形になっていくと思います。
随時ご報告いたしますので、どうぞよろしくお願いいたします。