※3月8日 追記【目標達成のお礼】
皆様のおかげで、目標達成することができました。
応援、ご支援いただいた方へ感謝の思いで胸がいっぱいです。
本当にありがとうございます。
ご支援いただいた資金は大切に使わせていただきます。
クラウドファンディング終了まで、より多くの方に知ってもらうために、ネクストゴール50万円を目指します。
みなさん、最終日まで一緒にこのプロジェクトを盛り上げて応援してください。

はじめまして。私は河野昇徳と申します。
これまで20年以上にわたり建築業に携わり、住宅や施設の設計・施工を通じて多くの方々の暮らしを支えてきました。建築という仕事は、人々の生活に密接に関わるものであり、家を建てることはその人の人生の基盤をつくることでもあります。住まいの在り方によって、人々の生活の質が大きく変わることを実感しながら、より良い住環境を提供するために誠心誠意取り組んできました。

しかし、長年建築業に携わる中で、「住まいをつくる」だけでは解決できない社会課題があることを強く感じるようになりました。
特に、知的障害を持つ方々やそのご家族が直面している問題について知る機会が増え、私自身の中で「このままで良いのか」「建築の枠を超えて、より直接的に社会に貢献できる方法はないか」と考えるようになったのです。
現在、日本では知的障害を持つ方々の受け入れ先が十分に確保されておらず、特に重度の障害を持つ方が安心して暮らせる環境が不足しているのが現状です。
支援学校を卒業した後、適切な受け入れ先が見つからず、親御さんが日々介護をしながら生活を送らなければならないケースが多くあります。その結果、親御さんは仕事を辞めざるを得なかったり、自身の健康を犠牲にしながら日常生活を送っていたりするのが実情です。そして、親御さんが高齢になったとき、「自分が面倒を見られなくなったら、この子はどうなるのか?」という大きな不安がつきまといます。このような課題を目の当たりにし、私は何か自分にできることはないかと考え始めました。

こうした問題を少しでも解決するために、私は新たな挑戦として、福祉事業に取り組むことを決意しました。
そして、現在、羽曳野市において グループホーム「ゆたかな里」を開設する計画を進めています。この施設では、知的障害を持つ方々を受け入れ、一人ひとりが安心して暮らせる環境を整えることを目的としています。単なる「住まい」ではなく、彼らが自分のペースで生活できるような仕組みを整え、スタッフが適切な支援を提供することで、安心して暮らせる空間をつくりたいと考えています。また、一般的な施設のような閉鎖的な雰囲気ではなく、家庭的で温かみのある環境を提供することを大切にしたいと考えています。

さらに、このグループホームは、利用者ご本人だけでなく、そのご家族にとっても大きな支えとなる場所を目指しています。
知的障害を持つ方のご家族は、日々のケアや将来への不安を抱えており、自分の時間を持つことが難しい現状があります。家族の介護負担を軽減することで、親御さんも少しずつ自分自身の人生を楽しめるようになり、安心して子どもの将来を見守ることができるのではないかと考えています。「ゆたかな里」が、利用者とご家族にとって心の拠り所となる場所になればと願っています。
今回の挑戦は、私にとってこれまでの建築業とは全く異なる新しい分野への挑戦ではありますが、「安心して暮らせる環境をつくる」という点では、これまでの経験と深くつながる部分があると感じています。
住まいを提供するだけではなく、その場所で生活する人々が心から安心し、快適に過ごせるようにすることが、私が長年培ってきた建築の知識と経験を生かせる部分だと思っています。
このプロジェクトを通じて、知的障害を持つ方々が自分らしく生活できる場所をつくり、同時に、ご家族が安心して過ごせる社会の実現に向けて取り組んでまいります。多くの方々にとって、より良い未来につながる取り組みとなるよう、一歩ずつ確実に進めていきたいと考えています。
私たちが目指すのは、知的障害を持つ方々が自立して暮らせる環境を整え、ご家族の負担を軽減することです。
特に、重度の知的障害を持つ方々の受け入れ先が全国的に不足しているのが現状で、多くのご家族が「自分が面倒を見られなくなったらどうすればいいのか」という不安を抱えながら生活しています。知的障害を持つお子さんがいるご家庭では、親御さんが常に付き添い、介護が必要なために仕事に行くことができず、家族全体の生活にも大きな影響を及ぼしているケースが多くあります。経済的な問題だけでなく、精神的な負担も大きく、親御さんが体調を崩してしまうことも少なくありません。

その時に考えたのが、知的障害を持つ方々のためのグループホームを作ることで、社会福祉に貢献できるのではないかということでした。
現在、知的障害を持つ方々の受け入れ先が足りず、特に重度の方を受け入れる施設は全国的に不足しています。この施設ができることで、ご家族が安心して仕事に行けるようになり、また、利用者の方々が適切なケアを受けながら、できる限り普通に近い生活を送れる環境を整えたいと考えました。
また、障害を持つ方々の生活環境が整うことで、地域社会にもプラスの影響をもたらすと考えています。
地域の人々が障害者施設を身近に感じ、障害を持つ方々が社会の一員として受け入れられる風土が生まれれば、共生社会の実現にもつながります。障害を持つ方々が閉鎖的な環境ではなく、社会の中で自分の居場所を見つけられるような施設にしたいと強く思っています。

そこで、私たちはグループホーム「ゆたかな里」を設立し、10部屋(5部屋×2フロア)を備えた施設を作ることにしました。
このグループホームでは、ただ住む場所を提供するだけでなく、利用者の方々が自分らしく暮らせるような仕組みを整え、適切なケアを受けながら安心して生活できる環境を目指します。スタッフが寄り添いながら生活を支え、日常の困りごとを解決することで、利用者ができることを少しずつ増やし、少しでも自立した生活を送れるようサポートしていきます。
この施設が実現することで、知的障害を持つ方々が地域の一員として社会に溶け込み、ご家族も安心して暮らせるようになります。
結果的に、介護負担が軽減されることで、親御さんが仕事を続けることができ、経済的にも安定し、社会全体にとっても大きなメリットをもたらすことができるのではないかと考えています。また、親御さんが安心してお子さんを預けられる環境が整うことで、家庭内のストレスが減り、家族関係もより良いものになるでしょう。

私たちの目標は、単に施設を作ることではなく、そこに住む方々が「自分の家」として安心して暮らせる場所を作ることです。
利用者の方々が「住まわせてもらっている」ではなく、「ここが自分の居場所だ」と思えるような、あたたかい施設にしたいと考えています。そして、知的障害を持つ方々が少しでも自立し、ご家族が負担を感じることなく、普通に生活できる人が増えていくような社会の実現に向けて、全力で取り組んでまいります。
このグループホームが実現すれば、知的障害を持つ方々とそのご家族の未来に明るい希望をもたらすことができると信じています。
地域の一員として受け入れられ、安心して暮らせる場所をつくることで、利用者の方々が生き生きとした毎日を送れるよう、これからも努力を続けていきます。

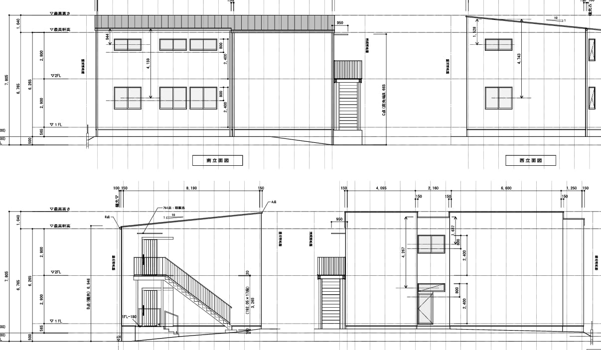
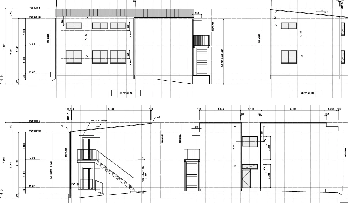
「ゆたかな里」は、羽曳野市に開設予定のグループホームで、知的障害を持つ方々が安心して暮らせる環境を提供することを目的とした施設です。
この施設は、利用者が自分の家のように感じられる温かく落ち着いた空間づくりを目指し、居住者とそのご家族が安心できる場所を提供します。
施設内には10部屋が用意されており、5部屋ずつの2フロア構成となっています。
それぞれのフロアには、居住者がプライベートな時間を確保できる個室を設け、生活の中で必要な設備を整えています。また、共有スペースでは食事や会話、くつろぎの時間を過ごすことができ、利用者同士やスタッフとの交流を通じて、より豊かな日々を実現することを目指しています。

さらに、各フロアには専属のスタッフを配置し、利用者が快適で安全に過ごせる環境を整えています。
スタッフは日常生活の支援を行うだけでなく、個々の利用者の特性やニーズに合わせたきめ細やかなサポートを提供します。加えて、施設全体を統括するサービス管理責任者を設置することで、利用者一人ひとりに適した支援計画を作成し、適切なケアが継続的に行える体制を構築しています。
「ゆたかな里」は、住む場所を提供するだけでなく、利用者が自立した生活を送るための第一歩となるような支援を行い、ご家族の負担を軽減するとともに、地域社会と共生する新しいモデルケースを目指しています。
現在、「ゆたかな里」の建築工事が順調に進行しており、2024年9月のオープンを目指して準備を進めています。
建築工事は、利用者が安心して快適に過ごせる住環境を整えることを第一に考え、設計段階から細部にわたってこだわり抜いています。施設全体は、利用者が「第二の我が家」と感じられるような温かみのあるデザインを採用し、住み心地の良さと機能性を両立させています。また、施設内の動線設計や設備配置についても、利用者やスタッフが安全でスムーズに生活を送れるように配慮しています。

工事を進める中では、建築業で培ってきた長年の経験を活かしながら、福祉施設として必要な条件を満たすだけでなく、長期的に利用者を支えられる耐久性やメンテナンス性にもこだわっています。
例えば、各部屋や共有スペースには、利用者が過ごしやすい空間づくりを実現するため、適切なサイズ感や安全性に配慮した設計を取り入れるとともに、自然光を多く取り入れる工夫を施し、心地よい明るさを確保しています。また、スタッフが利用者にしっかり寄り添える環境をつくるため、十分な作業スペースや適切な動線を確保し、介助がスムーズに行えるよう設計されています。

施設全体が完成するまでの間も、引き続き現場での安全管理や品質チェックを徹底し、利用者やそのご家族に安心していただける施設づくりを進めていきます。
建築工事が完了するのはもちろんのこと、オープン後も継続的に利用者に寄り添い、地域社会の中で長く愛される施設となることを目指しています。ただ住まいを提供するだけでなく、利用者がその場所で充実した日々を過ごし、ご家族も安心して生活を送れる環境を整えるため、これからも努力を重ねてまいります。
「ゆたかな里」は、住む場所そのものが利用者の人生に温かさをもたらし、ご家族や地域社会全体を支える拠点となれるよう、一歩一歩確実に準備を進めています。
今回のクラウドファンディングでは以下のリターンを用意させていただきました。
スタッフTシャツ

グループホーム「ゆたかな里」のスタッフTシャツをお送りさせていただきます。 サイズはS・M・L・LLから選んでいただけます。 送料込みのお値段です。
Tシャツはクラウドファンディングのみでの販売となります。
ぜひご購入ください。
お礼の直筆お手紙
グループホーム「ゆたかな里」の活動をただただ応援してくださる方向けのリターンです。
事業責任者の河野昇徳より直筆のお礼のお手紙をお送りさせていただきます。
上乗せ支援大歓迎です。
企業スポンサー
グループホーム「ゆたかな里」の企業スポンサーになれる権利です。グループホーム「ゆたかな里」のHPにあなたの企業名とHPのリンクを掲載させていただきます。
HPであなたの会社をPRできます。
企業スポンサーはクラウドファンディングのみでの募集となります。
この機会にぜひスポンサーになってください。
上記以外にもリターンを用意しております。
ぜひリターン一覧をご覧ください。

2025年3月 クラウドファンディング開始
2025年4月末 クラウドファンディング終了
2025月6月 入居者募集開始
2025年6月 リターン実施
2025年9月 グループホーム「ゆたかな里」オープン
知的障害を持つお子さんの介護は、昼夜を問わず続くことが多く、ご家族の負担は計り知れません。
時には自分の時間を持つことすら難しく、自分自身の人生を犠牲にしながら、お子さんの将来を考え続ける。そんな親御さんが、ふと「自分がいなくなったら、この子はどうなるのか」と考えたときに、安心して「この子は大丈夫だ」と思える場所を作りたい。それが、このグループホーム「ゆたかな里」を立ち上げる一番の理由です。

この施設を開設することで、利用者の方々が安心して生活できるだけでなく、ご家族も穏やかな気持ちで日々を過ごせるような社会を目指したいと考えています。
ただ「預ける場所」を作るのではなく、利用者一人ひとりが「ここは自分の家なんだ」と思えるような、温かみのある空間を作りたい。そして、同時にご家族にとっても「ここがあるから安心だ」と思ってもらえる場所にしたいのです。
また、私は羽曳野という地域をもっと活性化させ、地域全体が知的障害を持つ方々と共に生きる環境を整えていくことも大きな目標としています。
福祉施設というと「支援する人とされる人が分かれている」というイメージを持たれることが多いですが、私たちはその垣根をなくし、障害を持つ方々が地域の一員として自然に溶け込める環境をつくりたいと考えています。「ゆたかな里」をきっかけに、羽曳野の地域が盛り上がり、ここが福祉の新たな拠点として機能していくことを願っています。

しかし、ここで終わるつもりはありません。
今回の施設を第一歩として、目標としてあと2つ施設を作り、合計30部屋まで増やしたいと考えています。受け入れられる方の数を増やすことで、より多くのご家族の不安を取り除くことができます。しかし、それだけではまだ足りません。
私が本当に目指したいのは、「住まいの提供」だけではなく、「自分らしく生きる場所」の提供です。
知的障害を持つ方々が、ただ生活の場を得るだけでなく、そこで自分の役割を持ち、活動し、生きがいを感じられるような環境を整えていきたい。そのために、将来的には彼らが社会とつながることができる活動の場を作り、住まい・仕事・コミュニティというすべての面からトータルにサポートできる仕組みをつくることが私の夢です。
たとえば、軽作業ができる場を用意し、利用者の方々が地域の中で働く経験を持てるようにする。
農作業や手作りの商品を販売する場を設け、社会の一員として活躍できる機会を増やす。そうした仕組みを作ることで、「この子は将来、何もできなくなるのではないか」という親御さんの不安を少しでも減らし、「この子はこの場所で生きていける」という確信を持ってもらえるようにしたいのです。

しかし、このプロジェクトを実現するには、私一人の力では限界があります。
皆様の温かいご支援があれば、この夢を現実にすることができます。知的障害を持つ方々が自分らしく生き、ご家族が安心して未来を託せる社会をつくるために、どうかお力を貸してください。皆様の応援が、希望となり、支えとなり、新しい未来を切り拓いていく力になります。
このプロジェクトは、ただの施設開設ではありません。「家族の未来を守る」ことにつながるものです。今、この文章を読んでくださっているあなたが、少しでもこの想いに共感してくださるなら、その気持ちが大きな力になります。誰もが安心して暮らせる社会を、一緒に作っていきましょう!










コメント
もっと見る