自己紹介
はじめまして。ミステリーデザイナーの眞形隆之(まがた たかゆき)と言います。このプロジェクトに興味を持って頂きまして、誠にありがとうございます。感謝します!
私は、これまで、ゲーム・テレビ・舞台・イベントといった様々なジャンルで、数多くのエンタメコンテンツを制作してきました。最近は「ドラゴンクエスト人狼」「ずとまよカード」などのカードゲームを制作したり、謎解きゲーム、人狼ゲーム、マーダーミステリー、ARGといった分野で、舞台や映像、イベントなどの体験型エンタメの企画・制作に関わることが多くなりました。
今回は僕の地元で新しいチャレンジをしたいと思っています。ぜひ、最後まで読んで、応援したいと思ってくれることを期待しています。
・゜・☆。・゜。・。・゜・☆。・゜。・。・゜・☆。・゜。・。・゜・☆。
このプロジェクトで実現したいこと
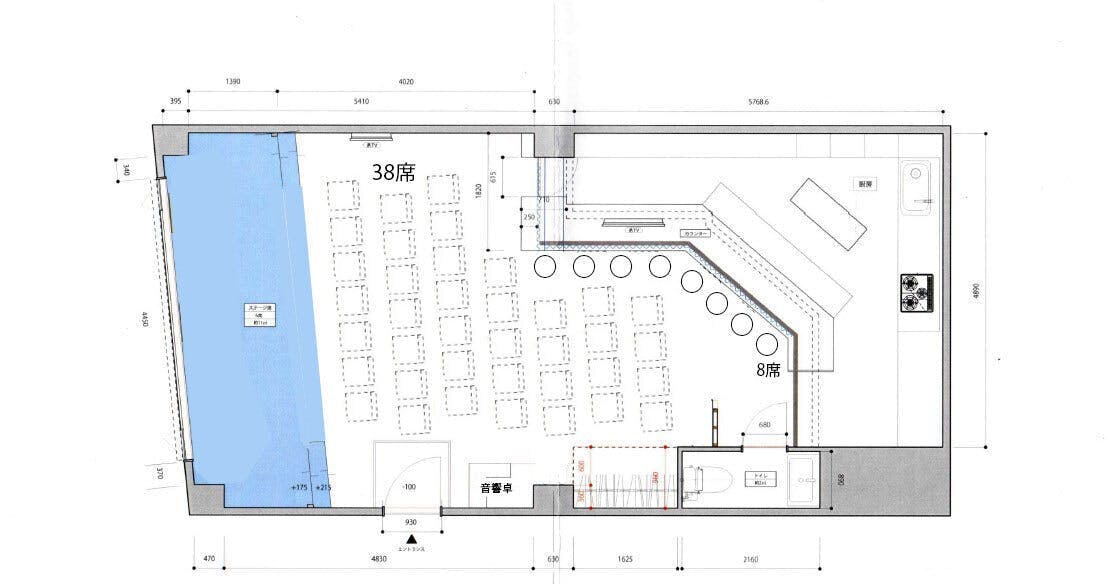
東京都板橋区。弘兼憲史先生の漫画「ハロー張りネズミ」の舞台にもなった私の地元・下赤塚(東武東上線)の南口改札を出て目の前のビルの2階に貸切専用の箱貸しエンタメスペース「下赤塚BOXX」をつくることにしました。
都心から少し離れていますが、交通の便がよく、池袋駅から東武東上線で14分。地下鉄メトロの副都心線を使えば、新宿三丁目から21分、渋谷駅から24分で到着します。

トークショー、ファンミーティング、オフ会、謎解きイベント、マーダーミステリー、イマーシブシアター、デスゲームなど、多くのクリエイターが様々なイベントを企画・制作・運営している中で、安価で使い勝手のよいスペースが求められていると感じました。
着席で40名ほどのお客様が入る小さなスペースですが、大きな夢を持ったクリエイターが「下赤塚BOXX」を使って、様々なエンタメの新しい発信場所、実験的スペースとして使用してもらえればと考えています。

・゜・☆。・゜。・。・゜・☆。・゜。・。・゜・☆。・゜。・。・゜・☆。
プロジェクト立ち上げの背景
今回、一緒に「下赤塚BOXX」を運営する伊藤さんは、30年を超える付き合いのある私の友人です。複数の飲食店を経営する伊藤さんは、この場所で10年以上、飲食店を営んできました。22坪=72.7273平米。下赤塚駅から歩いて10秒という好立地。この場所で、飲食にこだわらない新しい業態に挑戦したいという話を聞いて、二人で意気投合しました。(※写真は旧店舗の内装写真です)
・゜・☆。・゜。・。・゜・☆。・゜。・。・゜・☆。・゜。・。・゜・☆。
現在の準備状況
飲食店を箱貸しスペースにするために今年の1月中旬から内装工事をはじめました。舞台を作り、床や壁をリニューアルして、映像と音響関係の設備を整えている段階です。今後、お店を使っていただけそうなエンタメ関係者を集めて、2月中旬~後半にかけて複数回のお披露目会を考えています。春までは実験的な貸切イベントでテストをする中で、様々な意見を聞いてよりよいスペースづくりのための改善をしたいと考えています。春先以降に完全な形で一般貸しできればと準備をしています。

窓には遮光防音カーテン、舞台後方にはプロジェクターを映し出すロールスクリーンを取り付けます。

窓の外をのぞくと、目の前が下赤塚駅南口です。
・゜・☆。・゜。・。・゜・☆。・゜。・。・゜・☆。・゜。・。・゜・☆。
リターンについて
お返しの品は、実際にお店を使ってもらう権利です。
◆応援プラン ※お礼メッセージが届きます(梅 3000円・竹 1万円・松 3万円)
◆平日1日利用券(10-22時)12時間(1万円・2万円・3万円)※早期割引あり、数量限定
◆平日昼利用券(10-16時)6時間(5000円・1万円)※早期割引あり、数量限定
◆平日夜利用券(16-22時)6時間(1万円・2万円・3万円)※早期割引あり、数量限定
◆土日祝日1日利用券(10-22時)12時間(5万円・6万円・7万円)※早期割引あり
◆土日祝日昼利用券(10-16時)6時間(1万円・2万円)※早期割引あり
◆土日祝日夜利用券(16-22時)6時間(3万円・4万円・5万円)※早期割引あり
◆週末金土日3日間利用券(10-22時)15万円
◆一週間利用券(10-22時)30万円
◆眞形zoom相談1on1(30分・5000円) ※相談や質問、何でもお答えします。
・゜・☆。・゜。・。・゜・☆。・゜。・。・゜・☆。・゜。・。・゜・☆。
スケジュール
1月~2月 内装工事
2月中旬~下旬 関係者下見期間
3~4月 店舗テストオープン
3月 公式HP公開
4月以降 本格オープン(リターン利用期間スタート)
・゜・☆。・゜。・。・゜・☆。・゜。・。・゜・☆。・゜。・。・゜・☆。
使いみち
支援いただいた資金は、主に店舗の内外装工事費・設備投資・ホームページ制作費・宣伝費に使わせていただきます。
内装工事・設備投資費用 40%
看板・外装工事費用 20%
ホームページ制作費用 13%
宣伝費用 10%
利用手数料・決算手数料 17%
・゜・☆。・゜。・。・゜・☆。・゜。・。・゜・☆。・゜。・。・゜・☆。
応援メッセージ
日頃から大変お世話になっています、個人的にお付き合いのあるスペシャルな知人より、応援メッセージが届きました。励みになります。ありがとうございます!
◆堀井雄二様(ゲームクリエイター 代表作「ドラゴンクエスト」シリーズ)
「ドラゴンクエスト人狼」を作ったり、一緒にマーダーミステリーを遊んでいる眞形さんを応援しています!頑張ってください!
◆大高洋夫様(俳優)
激安ショップのとや がなくなっても、下赤塚がエンタメ文化の発信地!今「BOXX」がテンションダダ漏れ!なんでもやるぜ!
◆酒井敏也様(俳優)
新しいお店での大高洋夫ライブ、大高洋夫のパン販売、大高洋夫の裁縫展示会 etc.希望します♪♪♪ お店のオープン応援してま〜す
◆えのきどいちろう様(コラムニスト)
下赤塚はデビュー直後のナンシー関が住んでた街です。眞形さんがイベントスペース&お店を始めるというので、久しぶりに訪ねてみたい。消しゴム買ってた「文具の三光堂」はまだあるかな。ああ、僕も何かトークイベントやりたいなぁ。
◆326様(イラストレーター 代表作「ito」)
まがたさんは面白いことを生み出す天才なので、きっとその場所も面白い場所になるに決まっています(笑)。面白いことを探している人はぜひ行ってみてはどうかと強くお勧めします。
◆えっちゃん様(Youtuber ボンボンTV)
いつもみんなを楽しませてくれて笑顔にしてくれるまがたさん! 新しいお店、応援してます✨
・゜・☆。・゜。・。・゜・☆。・゜。・。・゜・☆。・゜。・。・゜・☆。
最後に
最後まで読んでいただき、ありがとうございます。
私は1972年生まれの52歳。ここまでの人生、多くの人の力を借りて生きてきました。たくさんの貴重な経験ができたのは、人脈があったからこそだと思います。
振り返れば、好きなことばかりやってきました。若い頃はアイデアが溢れ出し、欲求や情熱が大きくなる一方で、貧乏からはなかなか抜け出せず、制作費を捻出するのも大変でした。
もしも、若い頃に「下赤塚BOXX」みたいな安価で借りれる自由なスペースがあれば、自分で面白いことを考えて公演して、たくさんの人に喜んでもらうコンテンツをいくつも作っていただろうなと思います。
今は、そんな人たちに会ってみたい、まだ見たことのない新しいコンテンツを見てみたい、新しい文化を発信する場所を作りたいと思っています。
アイドル、声優、俳優、芸人、ゲームクリエイター、映画監督、アニメ作家、マダミス作家……そして、それを楽しむお客様。あらゆる人にとって「下赤塚BOXX」が大切な場所になりますように。そう願っています。一緒に夢を応援してください。ご支援のほど、よろしくお願いします。
最新の活動報告
もっと見るクラウドファウンディング終了しました
2025/05/09 15:44クラウドファウンディング終了しました。おかげさまで多くの支援を集めることができました。支援者の皆様、改めて、ありがとうございました。2月16日に募集を開始してから、店舗の改装を完了させ、レンタルスペースという初の試みということで、まずは、自分たちが主宰するイベントをいくつか開催しました。その後、知り合い限定でお店を使ったクローズなイベントを開催し、改善点をみつけ、ノウハウを蓄積してきました。ホームページも現在、制作中です。今後は、レンタルスペース専門のサイトにも登録して、一般への貸し出しを行いたいと考えています。今後は、オリジナルのマダミス作品や、定期的な人狼会の開催などを計画しています。引き続き、応援のほど、よろしくお願いします。なお、利用権で応援してくれた利用者の皆様には、Xアカウント(@akatsukaboxx)のDM、もしくはshimoakatsukaboxx@gmail.com のメールにて使用日のご連絡のやりとりをさせていただければと思います。よろしくお願いします。 もっと見る
誕生日パーティーに使用してもらいました
2025/02/23 12:39先日、下赤塚BOXXを誕生日パーティーに使って頂きました。私たちが考えていた理想的な使い方をして頂き、ありがとうございました。30人弱の参加者たちがゲームに参加して、終わった後はゆっくり懇談会。大きなスクリーンを使ってのゲーム説明映像が好評でした。大きなスクリーン以外にも3つの大型テレビモニターが壁に設置してあるので、すべての方向から確認できます。BGMを流しながらでも、スピーカーから出るワイヤレスマイクのボリュームが大きいので聞き漏らしもありません。また是非、使ってもらいたいです。今回はお誕生日おめでとう御座いました。 もっと見る
3日間のお披露目会に111名のお客様が来られました
2025/02/21 00:403日間、開催されたお披露目会に合計111名のお客様が来られました。人気のアニソンアーティスト、人気のアイドルグループに楽曲を提供している作曲家、世界的なマジシャン、人気ゲーム会社の偉い人、人気の謎解き作家、人気のマダミス作家、人気の漫画家、人気のイベント主催者、人気のテレビ制作ディレクター、区議会議員、クイズ作家、人気Youtuber・・・など。毎回、多種多様なメンバーで盛り上がりました。これは定期的にクリエイター交流会を開催しなければならないなと思いました。お客様に聞いてみたところ「駅から近い」「使いやすそう」「安い」という意見が多かったです。おかげさまで、人狼ゲーム、デスゲーム、マーダーミステリー、サッカーチームの懇談会として、すぐに使いたいと予約してくれた方もいます。ぜひ、引き続き、ご支援のほど、よろしくお願いします。 もっと見る







コメント
もっと見る