これまでのご支援ありがとうございます!!まさかまさかの残り15日にして目標金額の達成、本当に感謝です!!!達成し、安堵したのも束の間。こんなにもご支援をいただいて、応援してくださる方が居て、実際にお店に来てがっかりさせてはならぬ!!!ということで、ネクストゴールを設定いたしました!
次の目標金額は400万円です!
おぉっと!また高い金額にしてきたな!と思われるかもしれませんが、実は今回改修工事が始まって、出るわ出るわ、あそこもここも必要だった件。。。リフォームしたことある人だったらわかるはず。。。
そんな中で、実はトイレは自分たちで何とかキレイにしようと思っていたのですが、やっぱり気になるトイレのあちこち。このトイレをキレイにできればと思っています!

やっぱり飲食店のトイレはきれいな方が良いですもんね!(お食事中の方ごめんなさい)

さらには厨房側の窓のひび割れの修繕や、屋外の電灯看板設置などなど、来てくれるお客様に素敵なお店だったねと言ってもらえるように、出来る限り綺麗に、そして可愛く、女性一人でも来れるようなお店にしたいと思います!!
クラウドファンディングの終わりまであと2週間!最後まで駆け抜けたいと思いますので、ご支援、情報の拡散等ご支援いただければ幸いです!引き続きよろしくお願いいたします!!

私たちは四国の太平洋を望む高知県の海の町でもある

ほど良い田舎の須崎(すさき)市で、地元の美味しい豊かな食材を使った
【クラフトビールをプロデュース】している
『合同会社すさきシェアブルワリー』です。

(この素敵なロゴを製作してくれたのは『NANALABO DESIGN』さんです
(文末にサイトリンクあります)
20年前にUターンし、今は味噌醤油屋の女将として奮闘している
元ビール醸造家の代表夫婦と須崎とビールが大好きな仲間が集まり、立ち上げました。

40代の女性二人が発起人となり、合同会社を設立。同世代の女性を応援したい、ほっと出来る時間を過ごして欲しい、また明日も頑張ろう!っと背中を押したい。そんな想いで、クラフトビールの味やラベルデザインをプロデュースしてきました。自分のプチ贅沢やご褒美に、頑張る誰かと飲みたくなるような、そんなビールを創っていきたい!!との想いでスタートした会社です。
私たちのこのスタートが、世の女性のまだまだこれから!っと
笑顔と背中を後押しするそんな会社でありたいと願っています。
昨年7月に販売をスタートした、須崎市の「金柑」や「はちみつ」を使ったクラフトビールでは、金柑の優しい苦みと蜂蜜の香りが女性に好評をいただきました。
今年の1月には新たに「土佐文旦」と「はちみつ」を使ったビールを新発売。須崎市でも多く生産されている文旦の皮や果汁を使用して、苦みと文旦の爽やかさ、はちみつの優しさを感じられる商品となりました。
5月には第3弾で、須崎が日本一の生産量を誇る「茗荷(みょうが)」を使用したクラフトビールをプロデュースし、販売を開始。地元の特産品である茗荷を使用したことで、地元の方に喜んでいただき、魚の町でもある須崎のお料理にも合う、スパイス感じるエールとして好評をいただいています。
全て女性デザイナーさんにラベルデザインをしてもらいました!
私たちはこのプロジェクトで、高知県須崎市の商店街に、
自分たちのプロデュースしたクラフトビールを楽しむ【飲食店】を開きたいと考えています。
これまで、イベント等での販売で皆さんに楽しんでいただくことはできましたが、ビールを楽しむ本質は、皆で集まり楽しむことにあると考えています。美味しいクラフトビールと美味しいおつまみを用意して
日頃の家事・育児・仕事で疲れた女性たちが集まれる【場】になるように。自分へのご褒美として、クラフトビールを楽しみ、再び始まる日々の生活の糧となれるようなお店をオープンしたいと思います。
これまで私たちも「共に飲む」ことで関係性を育んできました。お酒が入ることで、そういう場ではいつもは言えないことを言えたり、喜怒哀楽を分かち合い、また明日から頑張ろう!と別れる。そんな時間がとても楽しく、そこで生まれる飲みニケーションが実際にあることを実体験としてしてきました。もちろんアルコールが飲めない人もいるでしょう。でも、そういった【場】が好きで、飲めないけど飲み会好きの女性も多いはず。
飲んでも飲まなくても 世の女性たちがココロから
「はぁ。今日も自分お疲れ様」と一息つけるようなお店を作りたいと考えています。
そして、この場所を通して、少しでも商店街に賑わいを取り戻し、須崎駅前の活性化、訪れてくれる人の笑顔を増やすこと、夢を叶える大人の後姿を次世代に見せること、ビールファンの発掘や共に飲食業にチャレンジする人の発掘・育成、住民同士のつながりを深める場作りなどを行っていきたいと考えています。


私たちが暮らす【高知県須崎市】は、東西に長い高知県の南側、太平洋に面する沿岸部の、ほぼ中央に位置するまちです。

積雪もほとんどなく、温暖な気候で、高知市からも車で約30分(高速道路使用)と交通のアクセスも良く、過ごしやすく暮らしやすいのが特徴です。

海・山・川が揃う須崎市は昔から漁業・農業・商業が盛んな地域で、豊かな自然から取れた水産物や農産物は商人の手によって市外へ発信されてきました。須崎の魚は美味しい!須崎の野菜は新鮮!と多くの人が口をそろえて言ってくれます。

しかし、私たちが生まれた時には人口が3万人近くいたこの須崎は、今や高齢化、少子化もまったなしで、市外や県外への流出も多く、商店街や住宅地もどんどん空き家が進んでいます。学校や保育園も統合や廃校がすすみ、課題先進県といわれる高知県の中でも須崎市の衰退スピードは速いと感じることもあります。
ですが、須崎のポテンシャルを私たちはずっと信じて、小さなイベントを開催したりママ友で集ったり、女子会や子育てイベントなど、少しずつ街に関わり、活動したりしてきました。
課題は多い、けれどそんな須崎市は私たちの暮らす場所。
これまでもこれからも私たちが暮らす場所。
自分たちが暮らす街だからこそ自分たちで盛り上げたい。
ここ須崎での挑戦が始まります。
そもそも私たちがクラフトビールを作ろうと動き出したのは、代表でもある竹中佳生子の20年来の想いからでした。横浜で元々醸造経験を持ち、そこで一緒にビールを造っていた、同じく高知県出身者の夫と、地元の須崎市へ戻ってから結婚しました。後継者がいなかった100年続く味噌醤油屋を受け継いだ竹中夫婦は家業に勤しみますが、嫁はずっとビールを作りたいと想い続けます。コロナが明け、人と人との交流が再び活発さを取り戻した今、子育ても一段落かしらと、ビール醸造の想いも更に膨らみ、チャレンジするならもう今だ!!醸造所を作りたい!!と仲間に打ち明け、計画が立ち上がり、2024年4月1日に私たちの会社「すさきシェアブルワリー」が設立されました。
「すさきシェアブルワリー」
なんでシェアなの?
と思われる方もいるかもしれません。
それは、
【多様で気軽でカジュアル、自由でフレンドリーで奥深い、ビールの世界】
に魅せられた代表の想いからでもあります。
ビールを楽しむことを一緒に共有(シェア)したい!という想いと
ビ―ルの醸造をみんなにも体験してもらえるブルワリー(ビール醸造所)を構え
仲間と、お客様と、一緒にビールを醸造したい!という想いからでした。
その後、ブルワリー建設に向けての動きが加速しますが、申請した補助金には手が届かず、借入を行い、醸造所を作ったとしても年間の醸造量のクリアやこなさなければならない販売数など、メンバーが個別に家業や仕事を持ちながら行うことは、とても難しいということに直面します。
そこで自分たちの想いや、無理のない動きで、今、実行できるのが、OEM製造(委託製造)でした。須崎市の美味しい、そして魅力的な食材たち、破棄されがちな食材をビールに生まれ変わらせ、須崎市オリジナルのビールとして販売をスタートさせることに先ずは着手しました。

醸造施設の整備は将来の大きな夢として、まずは一歩一歩、須崎ならではのビールの開発を行い、たくさんの人に楽しんでもらいたい。そして、その拠点作りとしてこのプロジェクトを実現させたいと思っています。
すさきシェアブルワリー代表の
竹中佳生子(たけなか かなこ)です!

須崎の片田舎から、都会への進学、そして、お酒解禁の二十歳を超えて、私の世界はとてつもなく拡がりました。沢山の出逢いの場、敬愛する恩師との学びの場、苦しいときも辛いときも、嬉しいときも楽しいときも、気付けば横にはビールがありました。乾杯して打ち解けて、お昼のビールで癒されて。
もともとビール大好きな私でしたが、都会暮らしでビールの世界が格段に広がり、その多様性に魅せられ、大好きなビールに導かれて、偶然なのか運命なのか、実は今の私がいます。
明治学院大学での勝俣ゼミの校外実習で訪れた、アフリカのガーナでの体験。またアフリカへ行きたいからと帰国後すぐに始めたバイト先が、「横浜ビール」のブルワリー併設のレストランでした。
まだ「クラフトビール」なんておしゃれな名前ではなかった「地ビール」と呼ばれていた時代に出逢ってしまった、ビール造り。「ビールって作れるんだ!!」「作りたてのビールの美味しいこと!!」っとすっかり地ビールファンになった私は、そのまま大学卒業後、横浜ビールに入社します。卒論は「ビールと権力」。
横浜は日本のビールの発祥の地。親方を始め、プライドを持ったブルワー(ビール醸造家)さんらとの刺激的なビール談義。そして、主人との出逢いも、横浜ビールにいたからなのです。地元、須崎へUターンして21年目。現在は丸共味噌醤油醸造場で4代目女将として働いています。
醤油味噌、発酵の世界は本当に面白く、ビールも発酵。生きてる菌との共同作業。果てしなく長く続いてきている発酵の歴史は、そんなに特別なことでも生活と離れていることとも思いません。もっと身近で、もっと寄り添う楽しい息吹のようなもの。
シェアキッチンのような、シェアブルワリーを創りたい。。。。それが将来の夢でもあります。味噌醤油屋の女将、兼、まちのビール屋さんとして、ますます元気に頑張りたいと思います。サポート応援してくれる、主人や家族に感謝です。
立ち上げメンバーの
大﨑緑(おおさきみどり)です!
代表の竹中と同じく高知・須崎で生まれ育ち、現在は須崎市で移住支援NPOを運営しています。佳生子さん(と呼ばせていただきます)との出会いは、私が前職の時代、現在のNPOの理事長をしてくださっている方から紹介されたのがきっかけです。最初は普通の飲み仲間、よさこい仲間、だったのが、あれよあれよと巻き込まれ、佳生子さんのどんどんと強くなっていく「ビールを作りたい」宣言に、「いつやるのよ」と煽っていたのが私です(笑)
同じ働く女性として、地域活動を共にする仲間として、そして、子育てママの先輩として、佳生子さんには色々なことを教えてもらいました。彼女の、誰とでも打ち解ける力、コミュニケーション力は計り知れません。私にはない彼女の魅力・想いをもっともっと応援したいと、一緒に走りつつ、でもたまに手綱を引きつつここまでやって来ました。
クラフトビールの魅力は、地域の食材・産物を取り入れられること。今となっては、全国各地にあるクラフトビールですが、私たち女性が飲みたいと思えるビールを作りたい、そして、地元の人が喜んでくれるwin-win-win(生産者・醸造者・消費者)なクラフトビールを作りたいと私は思っています。
ビールをみんなで飲む楽しさも、家事も子育てもちょっと横に置いて、昼間っから飲むビールも美味しさも、もっともっとみんなと共有したい!そんな想いを実現する場所をこれから作っていきたいと思っています!!
どうぞ、ご支援の程よろしくお願いします!
現在、私たちはこのプロジェクトを進めるための様々な準備を進めています!
■物件の選定
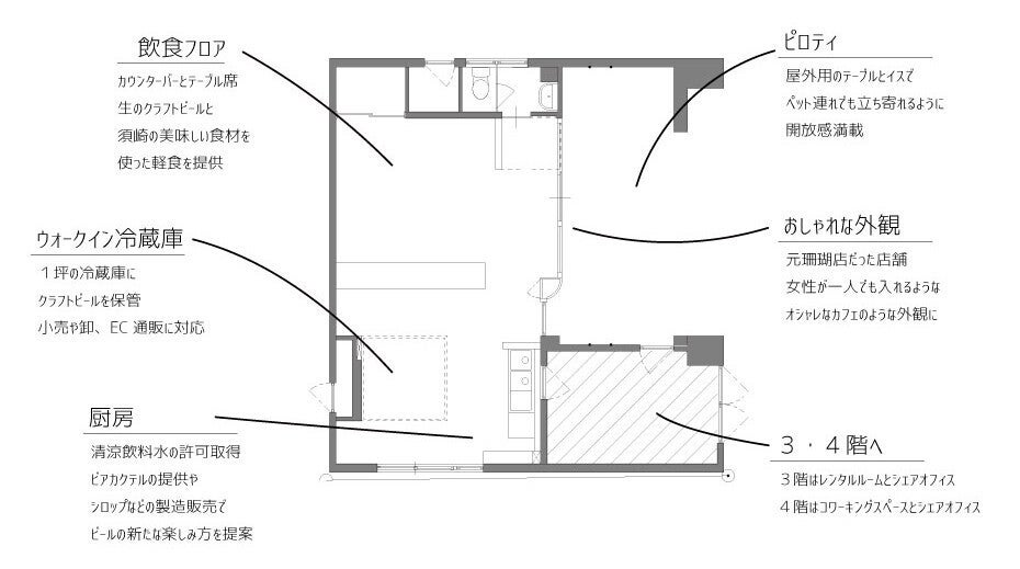
JR須崎駅から港方面の南へ続く商店街はかつて人の行き来も多く、栄えた場所でした。そんな駅前の通りに面した、元珊瑚店だった場所が、今回私たちがプロジェクトを実現させようとしている場所です。長らく使用されていない物件で、改修が必須ではありますが、オーナー様のご厚意により借りることができました。
■改修計画
拠点が決まり、次は改修計画です。私たちのクラフトビール販売の拠点であり、皆さんにビールを楽しんでもらえる場としての設計計画が行われています。酒類販売・通販の許可をこの場所で取るとともに、飲食店及び清涼飲料水製造の許可も取得したいと考えています。

■資金計画
私たちのプロジェクトには多少ならずともお金がかかります。現在のところ、かかりそうな予算は以下の通り。実は2月に開催された「すさきスタートアップコンテスト」で大賞をいただき、賞金100万円を獲得はしたのですが、まだまだ足りないのが実情で、金融機関からの借入も交渉中です。
・改修費400万、プレハブ冷蔵庫150万、厨房機器120万、許可申請料20万、その他消耗品や保険料など60万
私たちのことを知ってもらいたい、須崎のビールを飲んで欲しい、飲む人も飲まない人も応援して良かったと思ってもらえるようなリターンをご用意しました!
●お礼状
●オリジナルTシャツ…すさきシェアブルワリーのロゴが印字されたTシャツです!
●オリジナルビール…季節のオリジナルビールと定番ビールをセットにしてお届けします!
※20歳未満の者による飲酒は法令で禁止されています。20歳未満の方はこのリターンを選択できません。
※この商品は通信販売酒類小売業免許を有する株式会社パンクチュアルから直送します。
(通知書文書番号:須法(免許)第6号)
●ドリンク券…11月オープン予定の店舗で使えるドリンク券です!
●オリジナルボトル…すさきシェアブルワリーのロゴをプリントした、オリジナルボトル!
●オリジナルグラス…すさきシェアブルワリーのロゴをプリントした、オリジナルグラス!
●施設見学&オープニングパーティーご招待…11月23日のオープニングを一緒にお祝いしてください!
●飲んで食べて泊まって須崎…飲むだけじゃない!須崎の魅力満喫コースです!ぜひ現地で体験ください!
8月27日 クラウドファンディング開始
8月下旬 物件の改修スタート
9月30日 クラウドファンディング終了
10月下旬 リターン発送① ※ビール以外のリターンを発送いたします
10月下旬 改修完了・許可申請
11月23日 オープニングパーティー
11月24日 店舗オープン
11月下旬 リターン発送② ※ビールのリターンを協力店より発送いたします
12月頃 HPにて通信販売開始
11月24日の店舗オープン後は毎週日曜日の11:00~17:00でお店をオープン予定!オリジナルクラフトビールのほか、美味しいペアリング料理や、ビールカクテルなども提供予定です。また、清涼飲料水の製造許可を取得し、オリジナルのクラフトドリンクを製造予定で、アルコールが飲めない人にも来やすい場所を作っていきたいと思っています。
さらには、この飲食店舗をシェアしてくれる出店者を募集しています!月曜~土曜日までは、飲食店にチャレンジしたい人に貸し出しすることで、その人の「やってみたい」を形にできるような支援が出来ればと考えています。

須崎の美味しい食材をビールにしよう!
須崎の皆に美味しいエールを!
頑張る女性たちへ至極の一杯を!!
という合言葉で1年間走ってきました。
醸造所建設の計画から一旦白紙状態になり、これからどうして行こうかとメンバーと話し合いを重ねつつも現在に至ったのは、やはり地元素材を使った美味しいビールを一緒に楽しみたい、届けたい想いがあるからです。アラフィフの頼りない代表でありますが、仲間に家族に助けられ、長年の夢を少しづつ形にしていけてる今の状況には感謝しかありません。
私たちの作るクラフトビールのコンセプトは、
【仕事・家事・育児・介護に忙しい30代~40代の女性にエールを送るべく、
とっておきのご褒美ビールとして飲んでもらいたい】
というものです。
一日の終わりに、はたまた週末やたまの休日に昼間っからビール、
そんな時間があってもいいじゃない、
そんな時間をここで過ごしてほしい。
たくさんの笑顔が見られる場所を
これから作っていこうと思いますので、
ぜひご支援のほどよろしくお願いいたします!

ナナラボさん➡参照サイトこちら★
最新の活動報告
もっと見るECサイトをオープンしました!
2026/03/17 10:00こちらの活動報告は支援者限定の公開です。
ありがとうございました!!
2025/10/01 12:26昨日で、クラウドファンディングの期間が終了しました!本当にたくさんのご支援ありがとうございました!!期間中、あたたかいメッセージとともにご支援いただき、応援してるよ、のお言葉、本当にうれしかったです!!ありがとうございました!2月の須崎市のスタートアップコンテスト大賞受賞からここまで駆け抜けてきましたが、応援してくれる方の多さ、期待の大きさを、どんどんと感じている次第です。「旗を振っている人が笑顔じゃないと周りの人たちも楽しくないですからね!明るく楽しく元気よく!これからも頑張ってください!」とメッセージをくれた方がいました。本当にその通りですね。私たちは、私たちのために楽しんでこの事業をスタートさせました。色々と立ちはだかる難題をクリアできてきたのも、笑顔でやって来れたからだと思います。(もちろんメンバーの動きには感謝しかないですが)怖い顔して、数字とにらめっこは本当に私たちには似合わないなぁと(時には必要なんですけど。笑)思っています。まだまだお店がオープンするにはやることたくさん!ご支援いただいた皆さんに素敵な返礼品をお贈りしつつ、お店のオープンに向けてこれからも邁進していきたいと思います!お店が出来たら皆さんと乾杯できる日を本当に楽しみにしておりますので、飲みながら営業スタイルもぜひお許しいただければ幸いです♪(笑)2025年10月1日 合同会社すさきシェアブルワリー 竹中佳生子・大﨑緑 もっと見る
いよいよ今日・明日!
2025/09/29 13:43いよいよ今日・明日でクラウドファンディングも終了です!ここまでのご支援、本当にありがとうございます!!!残りの時間、どうか駆け込み、すべり込み支援を期待しつつです!よろしくお願いします!!先日は11月にお披露目したいなと思っている新作のビールに使う酢みかんの皮を剥き剥きしておりました!今時期、ここ須崎ではぶしゅかん・すだち・かぼすなどいろんな青みかんが直販所に並びます。材料として必要なものが皮のみということなので、中身は絞って、魚にかけたりしようと思います^^そして、栗も今年は豊作!とってもきれいな大きな栗、おすそわけしまくってもまだまだある栗。。。これもビールに使えないかしらと画策中です♪どうぞ新作もお楽しみに!!残りの時間も拡散・ご支援にご協力いただければ幸いです♪ もっと見る










コメント
もっと見る