自己紹介
初めまして。合同会社RESTです。
この度、製パン業務に長年携わっているメンバーを中心に会社を設立しました。
私達全員が仙台で生まれ育ち、仙台をこよなく愛しています。
会社設立の目的は宮城県仙台市に「パンとエスプレッソと」を誘致し、ベーカリーカフェを開店するためです。
「パンとエスプレッソと」は2009年4月に表参道にオープンし、現在は全国的に店舗を展開しています。
https://www.bread-espresso.jp/index.html
〈パンとエスプレッソと表参道店〉
この度、「パンとエスプレッソと」の運営会社である「株式会社日と々と」様と「HIS」様との共同プロジェクトである「47都道府県ご当地オーナー制度」を締結することができました。
2025年9月に宮城県初出店となる「パンとエスプレッソとひとやすみ」を仙台市太白区秋保温泉にオープンします。
《 店舗情報 》
住所:宮城県仙台市太白区秋保町湯向25-3
営業時間:8:00~17:00(予定)
定休日:未定
https://www.instagram.com/bread.espresso.and.hitoyasumi?igsh=MWhkbDg2eDV5eXQ4ZA%3D%3D&utm_source=qr

このプロジェクトで実現したいこと
今回のプロジェクトでは店舗東側をメインに心地よい時間を過ごせるお庭をつくりたいと思っています。
秋保の自然を感じながらコーヒーを片手にほっとひとやすみ出来る場所を提供したいと考えています。
完成イメージ図
現在の様子
プロジェクト立ち上げの経緯
「パンとエスプレッソと」は2009年のオープン以降「一日、一日」をコンセプトに一つのパン、一杯のエスプレッソ、そこから発展される様々なメニュー開発を行いお客様にとっての「好き」を届けています。店舗は全国に展開し出店を続けており、古民家を改造した店舗や指定文化財である名建築をリノベーションした店舗もあります。それぞれの地域に根ざしたその土地ならではのお店づくりに定評があり、メディア紹介・受賞歴も多い人気店となっています。最近では大手コンビニチェーンとのコラボ商品がSNSでも話題になりました。
パンとエスプレッソと嵐山庭園
パンとエスプレッソと好日亭(千葉県)
パンとエスプレッソと由比ヶ浜商店(神奈川県)
~「パンとエスプレッソと」との出会い~
友人からのお土産で貰った「パンとエスプレッソと」の看板商品のムーを食べたのが始まりでした。パンとは深い関わりのある私達全員がその美味しさに驚きました。しっとりとした生地にバターの香り、今まで食べた食パンとは明らかに違う。どんなお店なのだろう?と早速インターネットで検索をしてみました。そこで、大手旅行代理店であるHIS様との共同企画「47都道府県ご当地オーナー制度」があるのを発見しました。
ムー
【以下HIS様企画ページより抜粋】
現在、全国に約20店舗。まだ店舗が存在しない都道府県のほうが多い、いまだからこそ。それぞれの地方に根ざした皆さまに、その土地ならではの個性的で魅力的な『パンとエスプレッソと』の「ご当地オーナー」になっていただくこと。そしてそこに人が集い、まちの、地域の活性化につなげていくこと。それが本プロジェクトの目的です。
HISにできることは、「旅」を通じて「地域」と「人」を結ぶことです。HISのリソースを通じて、国内外の旅行者に『パンとエスプレッソと』の魅力、そして日本全国の「地域」の魅力を発信していければと思います。

https://www.bread-espresso.jp/local_owner/
~私達の思い~
私達はこの47都道府県ご当地オーナー制度の「人が集い、まちの、地域の活性化につなげていく」というコンセプトにとても共感しました。
私達の地元、仙台の魅力を多くの人に知っていただきたい、観光地として今、熱く、成長している秋保温泉ならば、それを実現できるのではないかと可能性を感じ、この地を選びました。
じつは秋保温泉地区に本格的なベーカリーはありません。ここで暮らす地域の方たちの身近な「パン屋さん」でもありたい。観光客の方も地域の方も気軽に店を訪れてほしい。そして訪れていただいた皆様の大切な「一日一日」を「好き」とともにゆったりと過ごせるベーカリーカフェを作りたいと思っています。
~秋保温泉とは~
秋保温泉は仙台駅から車で30分程とアクセスがよく、2015年にはワイナリー、2024年にはブルワリーがオープンしました。観光農業施設の秋保ヴィレッジでは、周辺農家で栽培された新鮮な野菜や果物を買うことができます。近年若い世代が移住し個性的なカフェや工房もオープンしています。
温泉地としては、戦国時代より保養・療養の地として認知され、伊達政宗公も訪れた記録の残る由緒ある地です。泉質の多くは湯冷めがしにくく保温効果のある塩化物泉です。
日本の滝百選に選ばれている秋保大滝、名取川が秋保石の大地を侵食して作った奇岩が並ぶ磊々峡など四季折々の景観が楽しめる豊かな自然にも恵まれています。秋保工芸の里や仙台万華鏡美術館などの文化施設も点在し観光スポットとしても魅力的です。
秋保大滝
磊々峡~これまでの活動~
R5年11月に初めて「日と々と」様、「HIS」様とオンラインミーティングを行い秋保温泉の魅力をプレゼンしました。同時に同地区での土地探しもスタート。毎週末、秋保地区に足を運んで、いくつかの候補地の中から、駐車場を10台以上確保できること、温泉街から徒歩圏内であることを条件に絞り込んでいきました。候補地が決定したR6年5月、「日と々と」の山本社長、「HISフランチャイズ・ライセンス事業部」の岸様に現地視察に来ていただきました。秋保の魅力と仙台の可能性をアピールすることができ、47都道府県ご当地オーナー制度の締結に至りました。

現在の準備状況
秋保温泉ならではの魅力を最大限に引き出すことができるよう、丁寧に計画を練っています。地元の皆さんや観光客の方々が彩り豊かな時間を過ごせるようなお店づくりを進めています。
庭造りの専門家との打ち合わせを行い、訪れる方々がくつろげるスペースを作る予定です。
現在、弊社のパン職人2人がパンとエスプレッソと直営店にて研修を受けています。

パンとエスプレッソと本部の協力の元、地元の素材を活用した商品開発も進めています。
今後、厨房設備や内装、開店の準備を進め、9月にオープン予定です
毎日焼き立てのパンを準備し、カフェスペースは21席、イートインメニューは「パンとエスプレッソと」の看板商品「ムー」を使ったフレンチトーストやパニーニ等のプレート料理を準備。「パンとエスプレッソと珈琲製作所」で焙煎されたコーヒー豆を使用したこだわりのエスプレッソや、オリジナルアイスドリンクも提供予定です。
ドリンク
リターンについて
来店型と来店が難しい方用に全国発送可能な2タイプのリターンを準備いたしました。

ご支援いただいた資金の使い道
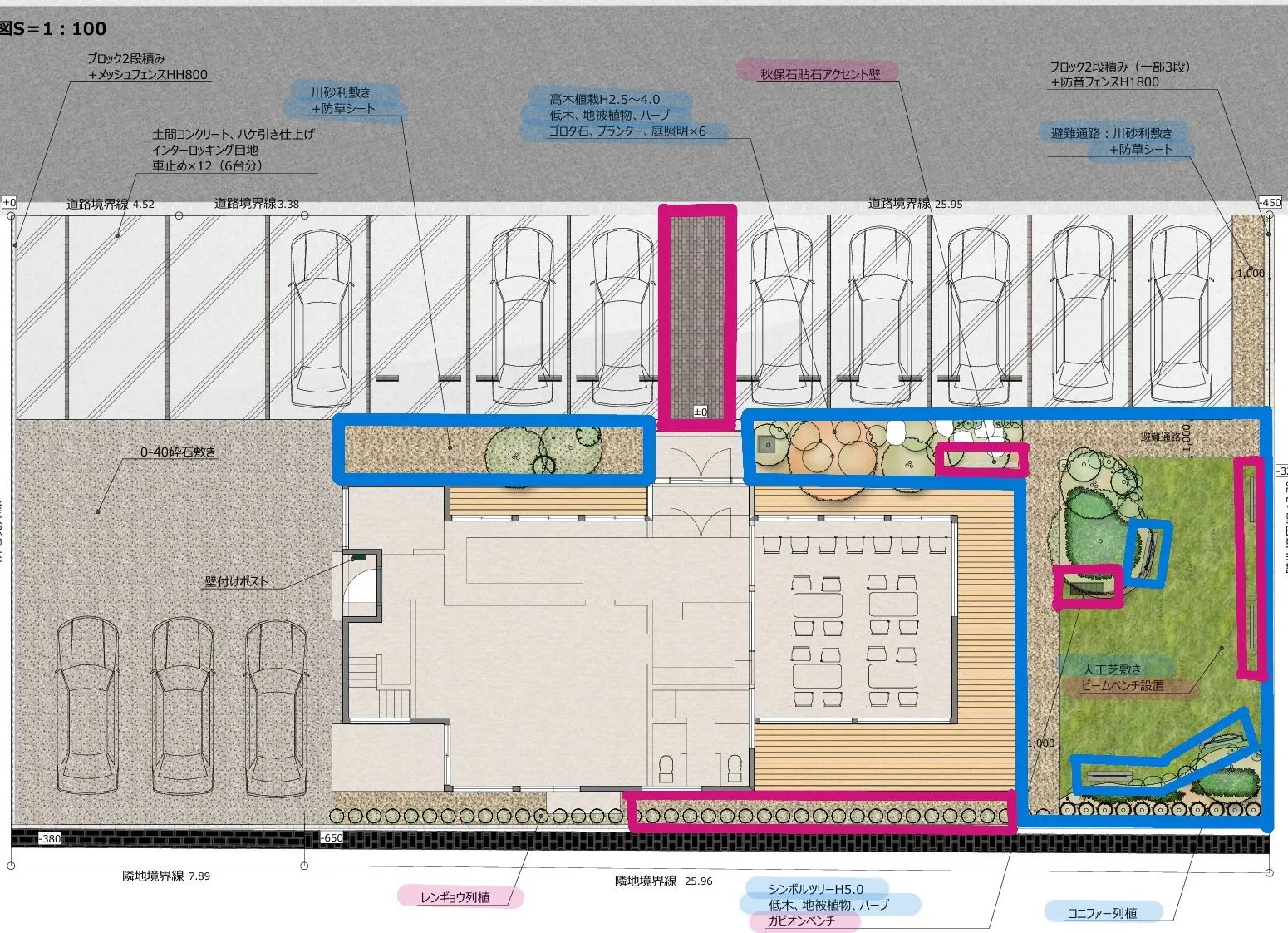
皆様からご支援いただいた資金は店舗東側約23坪の広さの庭を中心とした整備費用に充てさせていただきます。
集まった資金に応じて段階的に庭造りをしていきます。
第一段階(~200万円)・・シンボルツリー、店舗東側植栽、店舗正面植栽、地被植物等、人工芝、ベンチ3台、 照明、川砂利敷き、防草シート
第二段階(201万円~)・・秋保石貼りアクセント壁、ガビオンベンチ、ベンチ2台、アプローチ、店舗南側植栽

スケジュール
5月末 建物完成
6月上旬 インスタグラム開設
6月中旬 保健所による施設検査
営業許可証交付予定
クラウドファンディング開始
6月下旬 外構工事開始(~8月上旬まで)
7月 末 クラウドファンディング終了
8月末 リターン発送開始
9月 店舗オープン

最後に
私達のプロジェクトに興味を持っていただきありがとうございます。
仙台の魅力は、食べ物が美味しく、ほどほど都会でほどほど田舎な所だと思います。ビルが立ち並ぶ賑やかな仙台駅から車で30分程で自然豊かな秋保温泉へ到着します。
美味しいパンと香り高いコーヒーをご用意して皆様の来店をお待ちしております。訪れていただいた皆様が日常の喧騒を忘れ、ゆったりと過ごせるベーカリーカフェを目指してスタッフ一同努力してまいります。お会いできる日を楽しみにしています。
ぜひ、このクラウドファンディングを通じて私達を応援していただけると幸いです。
最新の活動報告
もっと見る
外構工事始まっています!
2025/07/15 09:53これまでのご支援有り難うございます。目標金額の30%を達成しました。地元の方はもちろん県外の方からも温かいご支援をいただいております。建物内の工事も完成に近づき、先日より外構の工事がスタートしました。オープンに向けて着実に進んでいるのを目にしてドキドキしてきました。7月末のプロジェクト終了まで間もなくです。引き続き皆様のご支援お待ちしております。 もっと見る










コメント
もっと見る