プロジェクトの実行者について
初めまして、浅川美嘉と申します。こちらのプロジェクトをご覧いただき、ありがとうございます。私は現在、香川県丸亀市にある本島で父の介護をしながら生活しています。本島は母が生まれ育った場所ですが、私も小さい頃から数年に一度は帰省していましたので、私の心の故郷でもあります。私はバイクで旅をすることが趣味で、これまでに全国いろいろな場所へバイクで出かけ、数多くのライダーたちと交流を重ねてきましたが、自由にでかけることが難しい現在、ライダーたちが安心して過ごせる場所を自分で作り、たくさんの人に来てもらえないだろうかと考えるようになりました。
このプロジェクトで実現したいこと
このプロジェクトでは、香川県丸亀市本島にライダーハウスをオープンすることを目指しています。バイク乗りが集い、訪れる人々が島の魅力を発見し、共有し、ほっとできる場所を作りたいと思っています。そして新しい出会いや交流を通じて、瀬戸内海の美しい自然や文化を多くの人に楽しんでいただき、島全体の活性化に寄与したいと考えています。
プロジェクト立ち上げの背景
瀬戸内海の島々は、その美しい風景や豊かな自然、そして温かい人々によって多くの旅人を惹きつけています。しかし近年、人口減少と過疎化が急速に進み、地域の活力が失われ、空家が増えています。私は、この状況を少しでも改善するために、自分の好きなバイクというツールを使って、島に新たな風を吹き込めないかと考えました。そんな折、昨年亡くなった叔母の家を譲り受けましたが、かなり傷んでいて大がかりな修繕が必要な状態であることがわかりました。費用がかさむため、たくさんの方からご支援をいただけないかと思い、プロジェクトを立ち上げることにしました。ライダーハウスを開業した際には、島に訪れるライダーたちがこの地を第二の故郷と感じ、何度も足を運びたくなるような場所にしたいと願っています。
現在の外観。すぐそばの道路から瀬戸大橋が見えます。
室内の現状。
本島とは
香川県丸亀市に属する塩飽諸島の中心島で、瀬戸内海国立公園の一部です。面積は約6.74平方キロメートル、周囲は約16.4キロメートル、人口は約250人です。かつて塩飽水軍の本拠地として栄え、現在も歴史や文化、自然が豊かで、瀬戸大橋を目の前に望む美しい景観が特徴です。丸亀港からフェリーを利用して35分程で車やバイクで行くことができます。
これまでの活動と準備状況
譲り受けた家を修繕するため、現在、地元の工務店と協力し、リフォーム内容について詰めています。自分の経験も踏まえながら、ライダーが快適に過ごせるような空間づくりを考えています。
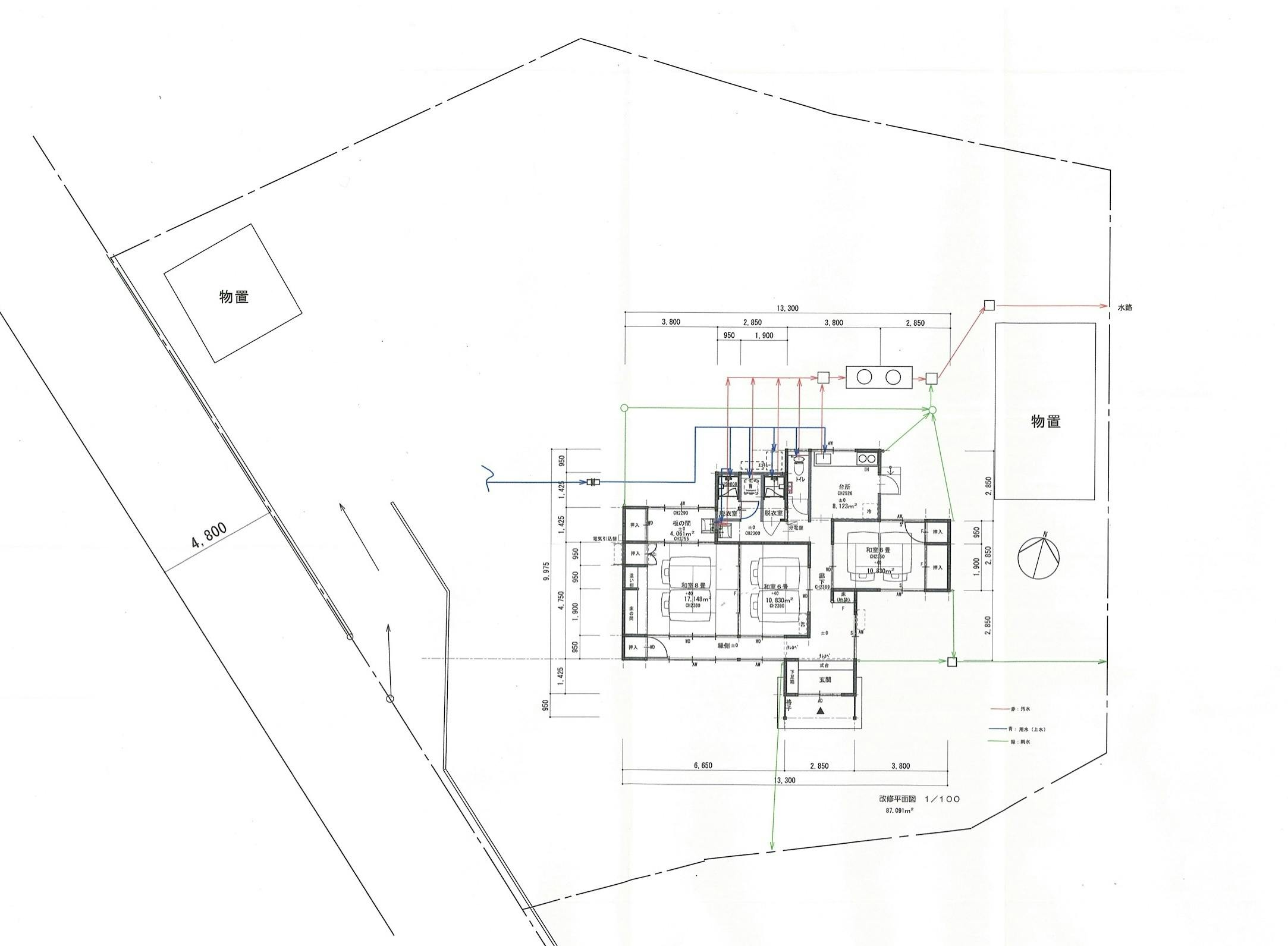
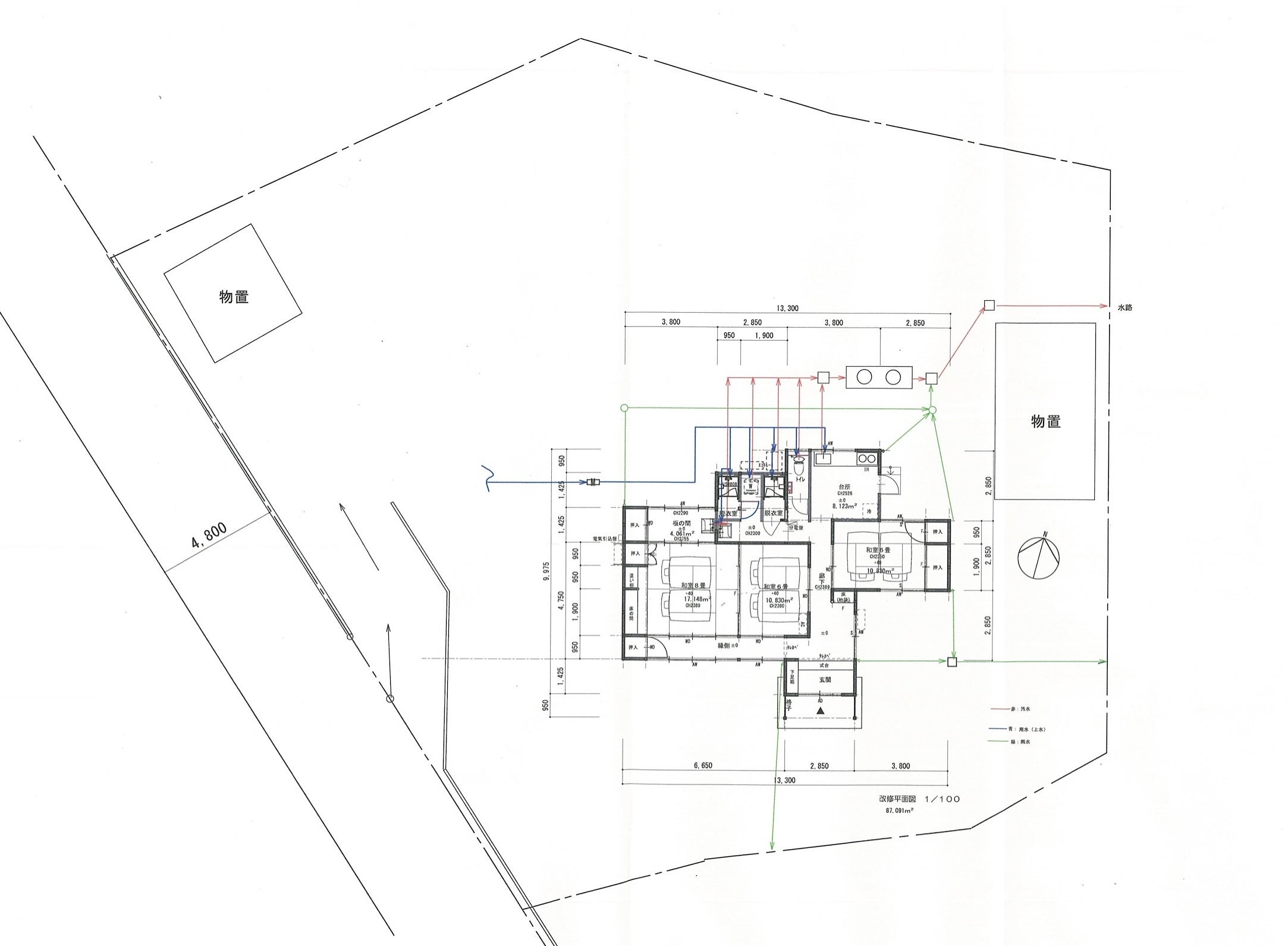
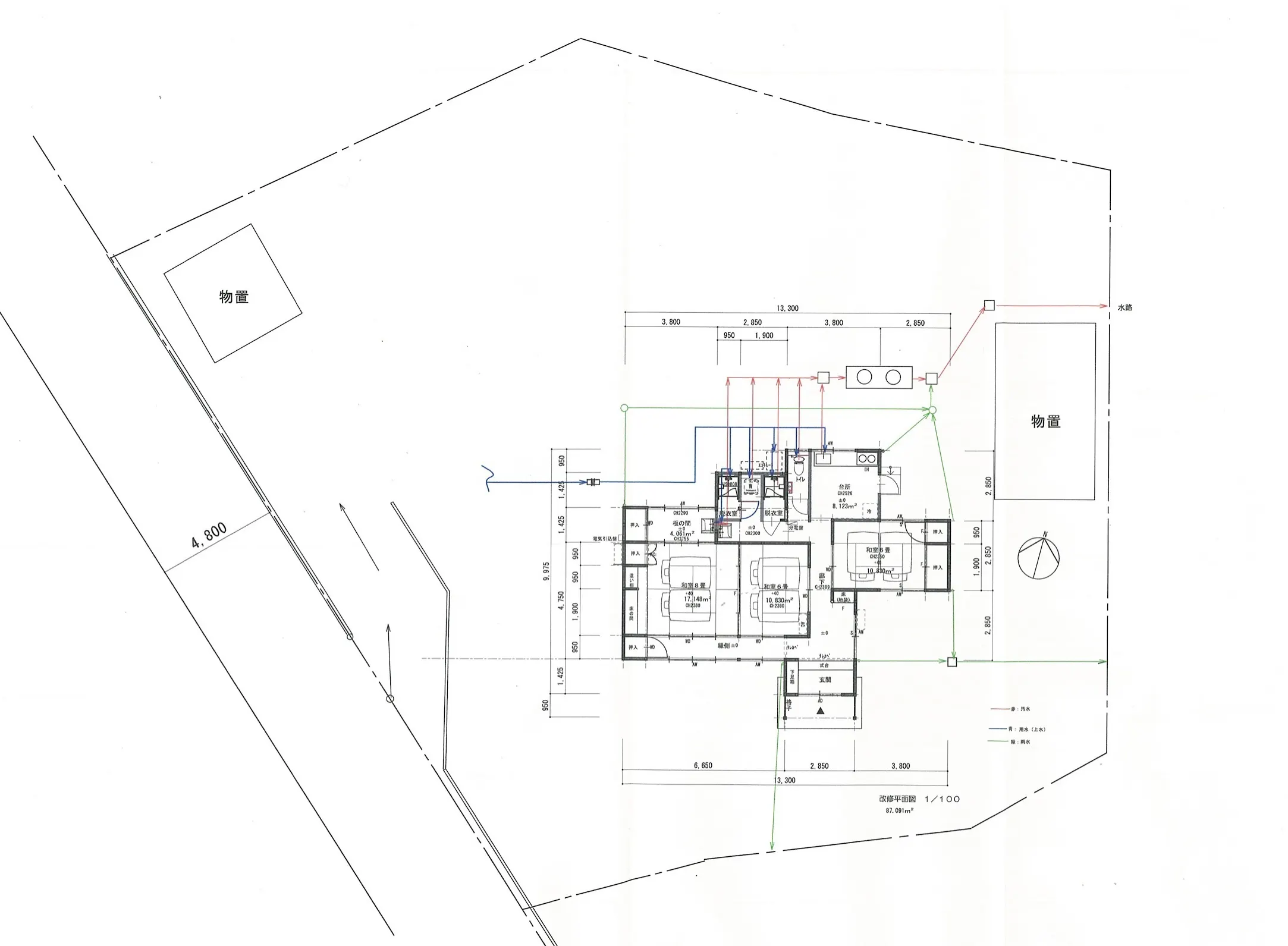
リフォーム後の間取り図。
リターンについて
ライダーハウスといえばオリジナルグッズ!
私がデザインしたグッズをお送りする予定です。
スケジュール
2025年1月に建物を取得後、建物の現状調査とリフォーム箇所の検討を行いました。現在、工事開始に向けて準備を行なっています。
7月から10月にかけてリフォーム工事を行い、営業許可がおりた後、11月下旬〜12月上旬のオープンを目指しています!
リターンは12月に発送させていただく予定です。
最後に
瀬戸内海の離島(香川県丸亀市本島)にライダーハウスをオープンすることは、私の夢であり、また島の未来を切り拓く新たな一歩です。このプロジェクトを通じて、多くの方々に島の魅力を知っていただき、地域の活性化に繋げることができればと考えています。皆様の温かいご支援とご協力を心よりお願い申し上げます。
最新の活動報告
もっと見る
リフォーム工事完了しました
2025/12/14 09:37『瀬戸内ライダーハウス:島活性化プロジェクト』にご理解・ご支援いただき、誠にありがとうございます。前回の投稿よりだいぶ時間が空いてしまいましたが、11月末にリフォーム工事が完了いたしました。シロアリ被害が最初の調査時よりもかなり広がっており、改修箇所が増えたり、防蟻処理を行ったことにより、予定よりも時間がかかりました。現在、保健所に簡易宿所の営業許可申請を行なっております。また現在、皆様にお送りするリターンの発送準備も行なっております。12月上旬とお伝えしていましたが、もう少し時間がかかることをご了承ください。皆様からいただいたご寄付は、リターンの作成・発送にかかる費用を除いた額を、外部照明やカーテン等の設備、宿泊営業に必要な電化製品、寝具等の購入費に充てさせていただきます。営業許可が下りてオープン日が決まりましたら、改めてお知らせいたします。 もっと見る
リフォーム工事始まりました
2025/08/09 07:54「瀬戸内ライダーハウス:島活性化プロジェクト」を応援してくださりありがとうございます!7月30日よりリフォーム工事が始まりました。まず家の中の不用品処分と、交換・修繕予定箇所の解体作業をしました。家の周りの草木も綺麗にしてもらったので、今はとてもすっきりしています。画像キャプション事前の調査でシロアリ被害が確認されていましたが、予想以上に広がっていました。 もっと見る
タオルデザインできました!
2025/08/08 00:27こんにちは「瀬戸内ライダーハウス:島活性化プロジェクト」に温かいご支援をいただき、本当にありがとうございます!前回の投稿からだいぶ時間が空いてしまいましたが、リターンとしてお送りする予定のフェイスタオルのデザインができましたのでお知らせします。大変お待たせいたしました。旅行などで持ち運びがしやすく、吸水性のよいガーゼパイル生地で作成する予定です。画像は角が丸い生地となっていますが、四角い生地で作成する可能性もありますので、ご了承ください。(白い部分がタオル本体で、黄色い部分は背景です。) もっと見る






コメント
もっと見る