
わたし達が現在の医療のあり方と向き合うきっかけとなったのは、2020年〜世界的に猛威を奮った新型コロナウイルス感染症でした。
コロナ禍で立ち上げた統合医療の現場で800人以上のコロナ患者さんと向き合いながら、様々な治療法を試みてきました。
でも薬や医者への依存心から、自分の命と向き合えずに苦しむ患者さんが多く、症状をみるための医療の限界を痛いほど感じた3年間でした。
新型コロナやワクチンをきっかけに、医療・福祉分野で気づきを得た仲間が集まり「自分の命を悦びで生きるために」という本来の医療の役割に立ち返り『NPO法人 まごころ医療のある暮らし創り』が出来ました。
『病気』や『生きづらさ』の根本原因の本質は、自分の本音に蓋をして、嘘をついて生きてきたわたし達のカラダが『生き方のズレ』を教えてくれるサインと言えます。
病気の根本治療に繋がる気づきが得られる医療の場として『コミュニティ診療所』を開きます。これは古き良き時代の日本にあった、懐かしくも新しい暮らしの中の診療所。
これからの時代に必要な医療のひな形として、和歌山県紀美野町から始めるわたし達の想いが日本中に広がりますように。
20年後、パパやママになる世代の子ども達が暮らす日本が、人と自然が豊かに循環していく自律した社会でありますことを願っています。
理事長 今田真穂


18年間、看護師として命の誕生からお見取りまで様々な分野での医療に従事。療育の児童精神科での経験がきっかけとなり、心身魂の命の繋がりを学びホリスティック医学に出会う。コロナ禍は統合医療クリニックの立ち上げに携わり、800人以上のコロナ患者さんと自身の病気や生きづらさにも向き合う中で、人の病気の根底には意識の持ち方や生き方のズレが影響していることに気づく。
医療を窓口に、みんなが幸せに生きられるあり方を模索し、自律と共創を軸にした暮らし創りを学び、生まれ育った和歌山の高野山のお膝元にある紀美野町にご縁をいただき移住。
豊かな自然とまごころの繋がりが残るこの地の人達と共に、多世代で子育てや田畑をし、自然なお産や医薬のある暮らし創りを体現する中で、仲間と共に『NPO法人まごころ医療のある暮らし創り』を立ち上げる。2025/6 月 第三子を自宅にて出産。本音を分かち合うパートナーシップや自然なお産、みんなで子育てするあり方を通して、新しい時代の医療のひな形『気づきのコミュニティ診療所』を創っている。


日本内科学会認定内科医 /日本内科学会認定 総合内科専門医 /日本呼吸器内科認定 呼吸器内科専門医難病指定医
小学校の時から、病気を治したい、苦しんでる人を癒したいと思い医師になる。 きっかけは大好きだった初恋の女の子が喘息でしんどそうだったから。念願の医師になりたくさんの方をみていく中で、どうしても病気の奥底にストレスや生きづらさがあることを確信する。しかもその本質的な考え方や行動パターンが、人間関係や仕事面などの社会生活にも影響していることに気づく。ここを変えないと、人は本当に幸せになれないと思い、何とか変わってほしい、気づいてほしいと思いながら試行錯誤するも通常の保険診察の中だけのアドバイスでは人は変わらないことを痛感。そもそもの根本的生活の中での生き方を変えなければ人は変わらないという結論に達し、現在の医療のやり方では限界を感じ、新しい医療の形を創りたいと、もともと生まれ育った大好きな和歌山で、その中でも自然豊かな紀美野町に携わることになる。


NPO 法人天寿会 理事長
高齢者の生活支援・終活支援を主とする NPO 天寿会を立ち上げ、社会的に弱者の独居高齢者、貧困高齢者、障害者、貧困女性の支援を実施。特に行政への働きかけを行う。身元保証の勉強会などを実施し、身元保証、成年後見人の認知に注力する。 今後、独居老人が大幅に増えていき、孤独死が増加するとみられている。その状況に危機感を覚え、特に独居老人の身元保証に力を入れ活動を続ける中で、2年前に咽頭がんとなり、私は独居なので、より孤独死を実感する。 この死と向き合うことがきっかけで、いままでの活動だけでは、救えない心の問題があると深く感じ、当時の活動は単に、対症療法なのではないかと感じるようになる。 私達が今目指す活動は、医療を超えて、自然と触れ合い、食事を共にし、心の本質を深掘りし、心の健全化、人とのつながりをたいせつにしたコミュニティづくりをめざした活動で、独居老人を減らすことの一助につながると感じる。また、自分自身の心の在り方も変わり、活動の有用性に魅力を感じ、NPO 法人の立ち上げに協力し、活動に参加している。


YouTube「毎週キングコング」のディレクター「病気障がいラヂオ」プロデューサー/パーソナリティー 渋谷/ニューヨーク/パリ/ロンドン/で写真展を開催ぬりえ えんとつ町のプペルを出版、カジサック、乙武洋匡、など多数の著名人のプロフィール写真も撮影。 普段はフォトグラファー/ビデオグラファーとして活動。障害者/福祉界隈の友人が多く、当事者団体が行うイベントなどの撮影をしたり自身の YouTube の中でも、病気や障害の有無に関わらず沢山の人たちの『生きづらさ』に触れる。これまでは生きづらさの解消の為に、現状を発信して気づいてもらうこと、心のバリアフリーの促進にと思い動く。
代表の真穂さんと出会い一緒に活動をしていく中で、自分の今までの活動は、「根本的な生きづらさの解消」にはなっていないということに気づく。生きづらさの解消には『その人自身の心のあり方』が大事。どんな辛い事象が起きたとしても、心のあり方で捉え方が変わってくる。その心のあり方は、その人自身が意識的に行動して暮らしていくことでしか、変容が起きないと感じるようになる。
みなさんの生き方が、僕自身や誰かのためになることを知ってもらいたい。 『病気障がいラヂオ』では 4 年で 200 人以上の障害当事者を中心にゲストと対談を実施。 「病気や障害の有無にかかわらず、生きづらさを感じている全ての人が生きやすい社会」にするために、フォトグラファーとして色々な活動を広める活動をしている。
【みんなでみんなの命をみる自律社会へ】
医療を窓口に自分の本音に正直に生きられる安心・安全な居場所を創りたいという想いから始まった「いつきのくにプロジェクト」
これからの時代に必要なのは、わたし達ひとりひとりが「命」を悦びで生きられる自分の本音に嘘をつかずに生きるための暮らし創りだと考えています。
ただ集まるだけの単なるコミュニティを作りたいわけではありません。そこに大切な要素が“暮らし”というキーワード。暮らしに必要な衣・食・住・医療 ・教育・子育て、すべてのものが循環していく安心安全な場所。その土地の歴史と暮らしてこられた人々の想いを受け継ぎながら、そこにいるだけで人が笑顔になり、気づき、幸せになれる暮らしを創っていきたいのです。
なぜわたし達が“暮らし”を大切にするのか...?
“暮らし”とは、ただ生きて生活しているというだけでなく、「日々をどう過ごすか」「誰と時間を過ごすか?」「どんな心持ちで日常を送るか」人間の営み全体を指します。
食べること、眠ること、働くこと、休むこと、助け合う事、笑いあうこと、季節を感じること……それらが織りなす毎日の積み重ねが“暮らし”です。
暮らしは、私たちの心や体、そして人間関係を形作る土台です。豊かな暮らしは、孤独を恐れることなく心に余裕を生みます。安定した暮しは、未来への不安を和らげます。思いやりのある暮しは、人と人との信頼を築きます。分かち合いのある暮らしは、今ここにある悦びに気づきます。
逆に、どんなに成功していたり、物質的に豊かでも、日々の暮らしが苦しいものであれば、人は本当の意味で幸せを感じられません。
つまり、暮らしとは『人生の質そのもの』と言えるのではないでしょうか?

しかし、ここ最近は食糧品の品不足や、価格高騰での危機や安心、安全な食べ物が少なくなってきていると感じることはありませんか?睡眠時間を削らねばいけない余裕のない日常を過ごしてはいませんか?人間関係が希薄になり、温かなつながりが失われていませんか?安心安全な暮らしが脅かされているのをひしひしと感じざるを得ません。

・自分に嘘をつかずに生きられていますか?
・なんのために働いていますか?
・今本当に健康に自信がありますか?
・心からつながれる人、本当の自分を包み隠さずさらけ出せる人は身近にいますか?
・時に痛みをともなっても、本音を共有する勇気と優しさで関わり合える人はいますか??
・日々の些細な喜びを分かち合える人はいますか??
今の日本の社会で、全てにYESと答えられる人はほんのごく一部だと思います。
今これほどまでにわたし達の暮らしが脅かされているのです。この“暮らし”という人生における土台が原因となり、人は病気や生きづらさを抱えていきます。そして、もはや国や政府が何かしてくれるという過度な期待はできません。小さくても自分たちでできることから始めていくしかありません。
自分の「命」は自分で悦ばせて生きる、自律するという意識を持つことが、これからの時代に生きるわたし達には不可欠です。

自律社会に向けた暮らしに必要なもの
ただただお金儲けのためだったり、自己満足のために動いていても、より良い社会は創造していけないと考えています。そういった感覚でプロジェクトを進めていくやり方は、これからの時代、長く続かず、命が悦ぶ暮らし創り(自律社会)にはなっていきません。
大切なのは、その土地歴史や、長年守られてきた土地の人の声に耳を傾けること。そして、自然と共に人がまごころをもって調和して生きる意識。その想いが人の我欲でなく、どれほど純度の高いものであるか、生き方や暮らし方を通して問われます。
和歌山県紀美野町という町
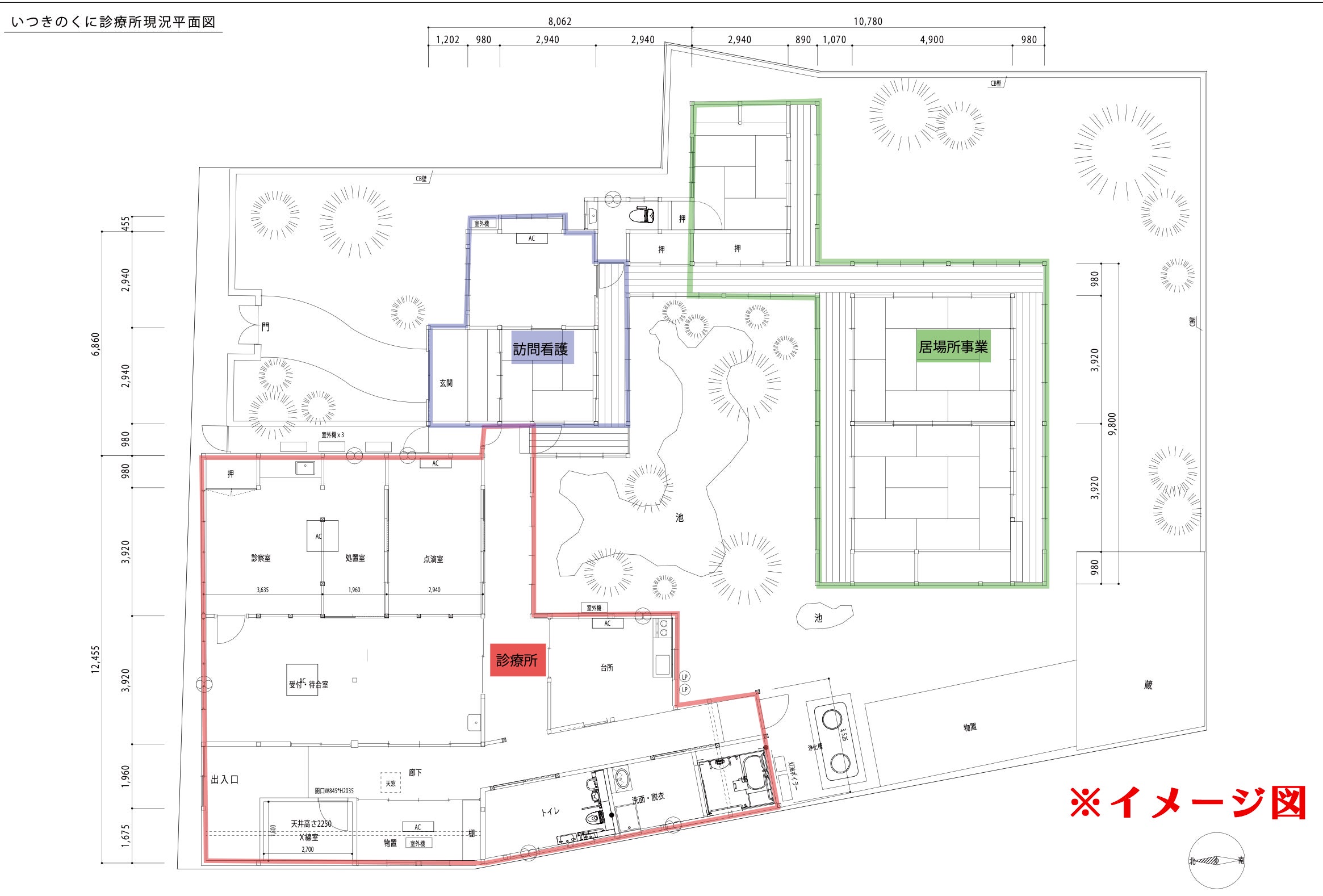
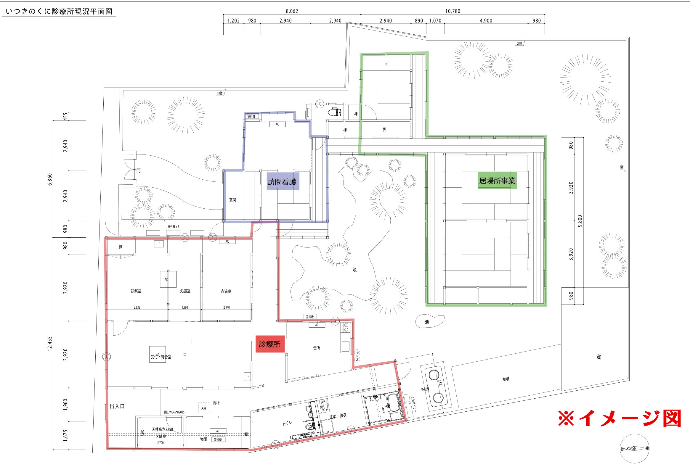
わたし達がご縁をいただいた土地は高野山のお膝元 和歌山県紀美野町。豊かな自然とまごころある暮らしが残る古い歴史ある場所。診療所となる古民家は小学校と子ども園がすぐ裏にある120年以上前に建てられた名家でした。
40年以上使われていない空き家ですが、かつては本屋や文房具として地元の人がたくさん集まり笑顔や活気が溢れていたお屋敷。さらに100年以上前には地域の診療所として、たくさんの命をみてきた場所でもありました。

古民家のすぐ近くには『醫王寺』という高野山真言宗 高野長峰霊場第三番札所のお寺があります。江戸時代には、祈りを司る高野山と政治を行っていた紀州藩の関所を担っていた場所。『醫』の漢字のごとく、「医療」と「仏教(の教え)」を繋いでいた場所。精神性や霊性の観点から、生命を輝かせて生きるために本当に大切なことは何なのか深い気づきをいただける場です。
【みんなで田畑】
近くには、地域の皆さんと作る畑や人手不足で眠ってしまっているたけのこ山や雑木林が多くあります。
地域課題でもある耕作放棄地にマンパワーで少しずつ手入れを始めています。

なかでも600年以上の歴史をもつ「中田の棚田」の再生には特に想いを込めています。
高野山のお膝元の町として、かつては高野山に献上するお米を作っていましたが、担い手がなくなり
荒れてしまっていた田んぼを地域内外のボランティアのみんなで耕し、機械が入らない小さな場所は手作業で工夫しています。(※小川地域棚田振興協議会が中心となって活動されています。)


生石高原から湧き出る「竜王水」とみんなのまごころで作る自然農のお米は味も質も絶品です。山々に望む棚田からの景色は、ほっとひと息つく時、心と体が緩む時間となります。大地の香りに包まれて、土に触れる時間に受け取る大自然のエネルギーは、心身を解放し生き方を整えるきっかけになります。このようにこの土地と共に、命の源になる食の安心・安全を守るために、みんなの得意を持ち寄った農作物づくりをはじめています。また自然農での食物だけでなく、医療に使用できる薬草づくりもはじめていきます。

【みんなで子育て】
年齢や職業、障がいの有無などは関係なく、そこにいるみんなで子ども達を育て合う暮らし。核家族やワンオペ子育てではなく、まごころで関わり合いながら、血縁の有無に関わらず、大きな家族のような形でみんなで子育てする環境を作っています。みんなで子育てをするための基盤となる「自然なお産」も暮らしの中で実現しています。

【みんなでご飯】
みんなで持ち寄った食材でご飯を作り、みんなでいただきます。核家族の増加やコロナ禍の規制により、人との繋がりが分断されてきた社会の弊害により孤独感を感じる人が増えている中で、大きなお釜とお鍋で作ったご飯を、みんなで分かち合いながら食べる時間は、人と人との繋がりが感じられ、自然と笑顔が溢れます。

【みんなの人生を持ち寄る本音での深い対話】
この場には医師や看護師、医療関係者が多く参加しますが、ここでの対話で大切にしていることは、年齢や肩書きなど関係なく、みんな対等で本音で話しあうこと。
「そんな風な考え方で良いんだ。」「この価値観を参考にしてみよう。」
「今日使う言葉から変えてみよう。」「親や子、パートナーに自分の本音を伝えてみよう。」
自分の生きづらさの根源にある固執した価値観や思考癖に気づけます。何者でもないただの自分の人生を持ち寄ることで、自身の過去の経験や気づきがその場にいるみんなの役に立っていきます。みんなのエネルギーが循環していく本音での対話を通して、自身や他者と向き合うきっかけとなり、次第に意識の変容が促されていきます。


【空き家を活用してみんなで作るコミュニティ診療所】
診療所は暮らし創りの窓口になれればと思っています。総合内科、小児科、精神科、心療内科を標榜し、現代の医療の利点を活用しながらも、自然なお産・水・塩・薬草など自然な医薬を取り入れ、体にやさしい治療を受けることができる暮らしに寄り添ったコミュニティ診療所をつくります。また、地域の課題解決に向けて、思春期外来、病児保育施設、訪問看護ステーション、女性総合外来(産前産後院)を併設予定です。この診療所は、単に病気を治すだけの場所ではありません。自然豊かな環境の中で、人と人が対話をしながら、いろいろなことに「気づき」「自己成長」していくことのできる場所。まごころを大切にみんなの力で病気の本質的な意味に気づける古民家診療所を開きます。

【災害時医療拠点】
万が一の災害など有事の際には、県や町と連携をとり、救護の拠点となる場として解放いたします。正しい知識を持ち正しく恐れ、正しく備える。日頃から防災意識が整えられるよう、災害を想定した避難訓練やシュミレーション、ライフラインの確保、備品の備えなども行っています。

命の喜びや輝きを感じられる暮らしはみんなの得意を持ち寄って創られていきます。
自律社会を目指す仲間を募集しています‼
自分の暮らす町(地域)でも創りたいと思ってくださる方も大歓迎します‼︎


わたし達ひとりひとりの意識が変わり、自分を見出し、自らの選択でその自分を生きられる人が増えた先に、みんなでみんなの命を喜ばせ合う自律した社会が実現していきます。
みんなで意識を合わせ共創していけますと幸せです。



「NPO法人まごころ医療のある暮らし創り」は幼少期から病気や生きづらさと向き合ってきた1人の看護師ママの想いから始まりました。当法人の理事長 今田真穂は、混沌としたコロナ禍の医療現場で「コロナのせいで〇〇ができなくなった」「病気であっても子育ても仕事も1人頑張るしかないんです」と孤独感や被害者意識をもって受診される人と向き合いました。「医者が治してくれる」「薬で治してもらう」などどこか医療に依存的で、自分の病気を自分で治して生きようとする意識の方はほとんどいません。コロナやコロナ後遺症には特効薬があるわけではなく、代替医療、民間療法などに頼っても治らない時、、、最終的に治るか治らないかの命運を分けてるものは、わたし達ひとりひとりの「生きることに対する価値観」にあると感じるようになりました。
「人に迷惑をかけてはいけない」「わたしがひとりで頑張らなきゃ」仕事も、家庭も、子育ても人に迷惑かけないように嫌われないようにと自分の本音を押しころして、【良い人仮面】をつけて、だんだん自分の本音にも仮面にも気づけないほど、それが当たり前になって生きている、、、その先に表れるのが病気や生きづらさ。言い方を変えれば、病気や生きづらさの原因は【分断された社会】と【生き方のズレ】にある。そう気づかされました。
ひとりひとりが思い込みや既存の価値観を外し、自分の本音に気づく生き方に自分で変えなければ本質的な解決にはならない。コロナ禍の医療現場を経験したからこそ、本質を捉えた【医療のあり方】を求め、病気や生きづらさが教えてくれている命の本質に気づき、人が本当の意味で生命を健康に輝かせて生きるにはどうすれば良いのか、、辿り着いたのが「みんなでみんなの命をみる暮らし創り」でした。

繰り返しになりますが、
命にとって本当に大切なことに気づくにはみんなで子育て、みんなで田畑、みんなでご飯、本音で話す深い対話、自然なお産、自然な医薬が暮らしの中に必要です。
これは、古き良き幸せな時代に日本中にあった暮らし創り。
そして、『自分の命は自分で悦ばせて生きること』
これは、これからの時代にわたし達に必要な意識のあり方。
わたし達ひとりひとりが“命“の悦ぶ幸せな安心安全な暮らしを創っていくことで、その先にはみんなでみんなの命を喜ばせあう循環した自律社会が生まれます。

今、日本のあちこちで、同じ想いを持ち、自分の出来ることで共創し合える仲間が集まってきているように思います。
共感してくださる皆さんの力で
想いで繋がる土地と仲間と共に
日本中に自律社会を創っていけると幸せです。

この土地を選んでいる理由は、土地に住む方達がわたし達を受け入れ、活動を喜んでくださっているから。
600年の時を経て、中田の棚田再生プロジェクトに尽力してくださる皆さん
感性や精神性を高めていくお手伝いをしてくださる醫王寺のご住職や副住職さん
多世代みんなでご飯を食べて子育てする、喜びで運営するキミノコドモ食堂(キノコ食堂)の皆さん
畑を楽しみ、いつも美味しい季節の野菜を分けてくださる地元のおじいちゃんおばあちゃん。
地域に根差し、地域のため子ども達のためにと色んな方を繋いでくださる地元の社長さん。
町民と共に走り回られている町長や役場の皆さん。
地域で古民家のレンタルスペースや民泊、喫茶店を運営し、地域の魅力を発信してくださる皆さん。
古民家のリフォームを請け負い、想いで動いてくださっている工務店さん。
移住者を受け入れ、定住を進めてくださる定住支援の会の皆さん。
地域の自然や特産品、食材を使ったイベントを盛り上げてくれている皆さん。
自然遊びや生き物との触れ合いを通した自然サークルの皆さん。
地域の子ども達への五感を使った遊び場の提供をしてくれる子育てサークルの皆さん。
町内40ヶ所以上で孤独をなくすための居場所作りをしている地域サロンの皆さん。
たくさんの応援をいただき、この土地で1年半の活動を経て、この度このような形でクラウドファンディングをスタートすることになりました。まごころで繋がってくださる皆さまに、心より感謝申し上げます。


スケジュール
2025年
5月 古民家解体(リフォーム)作業開始
7月1日 クラウドファンディングスタート
8月31日 クラウドファンディング終了
10月19日 いつきのくに診療所 内覧会(お餅まき・オープンイベント)
11月1日 いつきのくに診療所スタート
〜最後に〜
みなさんは「人間として幸せに生きることとは?」の問いの答えはどんなふうに考えますか?人それぞれ色々な考え方があると思いますが、私たちが答えとして持っているものは、「幸せになるために人として成長すること」そして「成長するためには、幸せとは何かに気づくこと」だと思っています。
自分の生きづらさはなんなのか?当たり前になりすぎていて、もしかしたら自分の「生きづらさ」にも気づかずに生きている方たちもいるかと思います。
当NPOのメンバーもなんらかの生きづらさを抱えていたり、生きづらさを抱えてるたくさんの人たちと向き合ってきました。そこで見えてきたことは、従来のコミュニティ作りやただの癒しの場を作るのでは、病気や生きづらさの根本解決には至らないということです。
今までのコミュニティは「その場所に行けば癒される」「仲間がいるから安心する」というように、どこか依存的だったり、限定的だったりしていたようにも思えます。私たちの目指すのは、居場所を超えた気づきのコミュニティ診療所。
時に痛みを伴っても、勇気持って本音を分かち合うことで互いに成長していく。そしてその場での気づきを、それぞれの暮らしの中に持ち帰っていただき、ひとりひとりが生き方を整えていく。
医療を窓口に、地域の方達、そして血縁を超えた【となりにいる人】の生きづらさが解消される安心安全の場所を創ります。
そしてその先に、人も自然も豊かに循環していく自律した日本社会になっていくことを願って活動を続けていきます。
NPO法人 まごころ医療のある暮らし創り

※順不同

































コメント
もっと見る